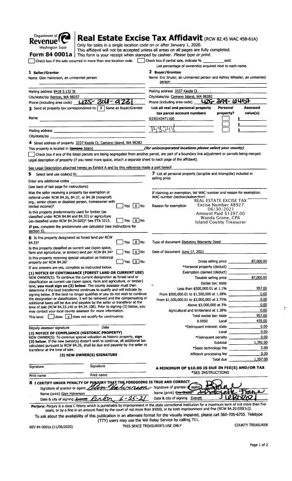
Property
Account |
| Property ID: | 57618 | Abbreviated Legal Description: | 93 - IN GL 1: WLY 90' MEAS @ R/A FR & PARA/TO SWLY LN FOLL DESC: BG MST NLY CR LOT 27 BAYVIEW BEACH ADD S34*E ALG ELY LN LOT 27 250 M/L TP HITIDE TPB N34*W250' M/L TO MST NLY CR LOT 27 N53*E ALG SLN SHORE AVE 358.68' TO 4/CR COM TO SECS 23&24 N53*E IN SEC |
| Geographic ID: | R22923-240-5060 | Agent Code: | |
| Type: | Real | | |
| Tax Area: | 750 - APPRAISER-S Whid Schl Dist, Special District, improved & less than 1 acre | Land Use Code | 11 |
| Open Space: | N | DFL | N |
| Historic Property: | N | Remodel Property: | N |
| Multi-Family Redevelopment: | N | | |
| Township: | 29 | Section: | 23 |
| Range: | R2 |
Location |
| Address: | 1980 SHORE AVE FREELAND, WA 98249 | Mapsco: | |
| Neighborhood: | Cycle 3 | Map ID: | 339 |
| Neighborhood CD: | 3 |
Owner |
| Name: | 1980 SHORE LLC | Owner ID: | 297493 |
| Mailing Address: | C/O SONJA OWEN 11736 NE 148TH PL KIRKLAND, WA 98034 | % Ownership: | 100.0000000000% |
| | | Exemptions: | |
Taxes and Assessment Details
Values
| (+) Improvement Homesite Value: | + | $0 | |
| (+) Improvement Non-Homesite Value: | + | $451,755 | |
| (+) Land Homesite Value: | + | $0 | |
| (+) Land Non-Homesite Value: | + | $1,995,900 | |
| (+) Curr Use (HS): | + | $0 | $0 |
| (+) Curr Use (NHS): | + | $0 | $0 |
| | | -------------------------- | |
| (=) Market Value: | = | $2,447,655 | |
| (–) Productivity Loss: | – | $0 | |
| | | -------------------------- | |
| (=) Subtotal: | = | $2,447,655 | |
| (+) Senior Appraised Value: | + | $0 | |
| (+) Non-Senior Appraised Value: | + | $2,447,655 | |
| | | -------------------------- | |
| (=) Total Appraised Value: | = | $2,447,655 | |
| (–) Senior Exemption Loss: | – | $0 | |
| (–) Exemption Loss: | – | $0 | |
| | | -------------------------- | |
| (=) Taxable Value: | = | $2,447,655 | |
Taxing Jurisdiction
| Owner: | 1980 SHORE LLC | | |
| % Ownership: | 100.0000000000% | | |
| Total Value: | $2,447,655 | | |
| Tax Area: | 750 - APPRAISER-S Whid Schl Dist, Special District, improved & less than 1 acre |
| CF | Conservation Futures | 0.0316035091 | $2,447,655 | $2,447,655 | $77.35 | | |
| FIRE3 | Fire & Rescue Dist #3 S Whidbey GEN | 1.2004855531 | $2,447,655 | $2,447,655 | $2,938.37 | | |
| HOBOND | Hospital BOND | 0.1910887512 | $2,447,655 | $2,447,655 | $467.72 | | |
| HOGEN | Hospital GEN | 0.3902502903 | $2,447,655 | $2,447,655 | $955.20 | | |
| CE | County Current Expense | 0.3708482477 | $2,447,655 | $2,447,655 | $907.71 | | |
| CR | County Roads | 0.4584763726 | $2,447,655 | $2,447,655 | $1,122.19 | | |
| ISLANDEMS | Hospital GEN (EMS) | 0.5000000000 | $2,447,655 | $2,447,655 | $1,223.83 | | |
| LIB | Library Sno-Isle GEN | 0.3153421757 | $2,447,655 | $2,447,655 | $771.85 | | |
| PORTWHID | Port of S Whidbey GEN | 0.1094540357 | $2,447,655 | $2,447,655 | $267.91 | | |
| SCH206BOND | School 206 BOND | 0.3161759235 | $2,447,655 | $2,447,655 | $773.89 | | |
| SCH206MO | School 206 Enrichment | 0.4547169547 | $2,447,655 | $2,447,655 | $1,112.99 | | |
| ST | State School | 1.3035497053 | $2,447,655 | $2,447,655 | $3,190.64 | | |
| ST2 | State School Part 2 | 0.8169543533 | $2,447,655 | $2,447,655 | $1,999.62 | | |
| SWHIDPRBD | P & R S Whidbey BOND | 0.0152817568 | $2,447,655 | $2,447,655 | $37.40 | | |
| SWHIDPRBD2 | P & R S Whidbey BOND2 | 0.0138911264 | $2,447,655 | $2,447,655 | $34.00 | | |
| SWHIDPRMT | P & R S Whidbey GEN | 0.2053334452 | $2,447,655 | $2,447,655 | $502.59 | | |
| | Total Tax Rate: | 6.6934522006 | | | | | |
| | | | | Taxes w/Current Exemptions: | $16,383.26 | | |
| | | | | Taxes w/o Exemptions: | $16,383.26 | | |
Improvement / Building
| Improvement #1: | RESIDENTIAL | State Code: | Y | 2892.3 sqft | Value: | $451,755 |
| Bathrooms: | 2 | Bedrooms: | 3 | | Ceiling: | DRYWALL PAINTED | Exterior Wall/Cover: | SHINGLE | | Floor Covering: | CARPET/VINYL 80-20 | Floor Structure: | WOOD W/SUBFLOOR | | Foundation: | CONCRETE | Heating: | FHA ELECTRIC | | Interior Finish: | DRYWALL PAINT | Plumbing Fixture Cnt: | 13 | | Roof Slope: | 8" IN 12" | Roof Structure/Cover: | STEEL TERNE |
|
| | Type | Description | Class CD | Sub Class CD | Year Built | Area |
| | BAS | BASE/MAIN FLOOR | 4 | 0 | 1968 | 1498.3 |
| | OP4 | OPEN PORCH W/CEILING-ROOF | 4 | 0 | 1968 | 148.5 |
| | BIG | BUILT IN GARAGE | 4 | 0 | 1968 | 747.5 |
| | UPS | UPPER STORY | 4 | 0 | 1968 | 737.0 |
| | UPS | UPPER STORY | 4 | 0 | 1968 | 657.0 |
| | OWP | OPEN WOOD PORCH W/STEPS | 4 | 0 | 1968 | 989.3 |
| | OWP | OPEN WOOD PORCH W/STEPS | 4 | 0 | 1968 | 74.2 |
| | OWC | OPEN WOOD PORCH W/STEPS/ROOF/C | 4 | 0 | 1968 | 183.7 |
Sketch
Property Image
Land
| 1 | LB | LOW BANK | 0.0000 | 0.00 | 90.00 | 0.00 | 1.00 | $1,995,000 | $0 |
| 2 | 55 | TIDES | 0.0000 | 0.00 | 90.00 | 0.00 | 1.00 | $900 | $0 |
Roll Value History
| 2026 | N/A | N/A | N/A | N/A | N/A |
| 2025 | $451,755 | $1,995,900 | $0 | $2,447,655 | $2,447,655 |
| 2024 | $458,677 | $1,995,900 | $0 | $2,454,577 | $2,454,577 |
| 2023 | $465,601 | $1,995,900 | $0 | $2,461,501 | $2,461,501 |
| 2022 | $427,873 | $1,995,900 | $0 | $2,423,773 | $2,423,773 |
| 2021 | $377,521 | $1,750,900 | $0 | $2,128,421 | $2,128,421 |
| 2020 | $369,491 | $1,300,900 | $0 | $1,670,391 | $1,670,391 |
| 2019 | $271,836 | $1,300,900 | $0 | $1,572,736 | $1,572,736 |
| 2018 | $281,113 | $900,900 | $0 | $1,182,013 | $1,182,013 |
| 2017 | $283,125 | $900,900 | $0 | $1,184,025 | $1,184,025 |
| 2016 | $287,384 | $900,900 | $0 | $1,188,284 | $1,188,284 |
| 2015 | $291,644 | $1,250,900 | $0 | $1,542,544 | $1,542,544 |
| 2014 | $295,902 | $1,250,900 | $0 | $1,546,802 | $1,546,802 |
| 2013 | $292,299 | $1,240,002 | $0 | $1,532,301 | $1,532,301 |
| 2012 | $296,665 | $1,240,002 | $0 | $1,536,667 | $1,536,667 |
| 2011 | $301,033 | $1,240,002 | $0 | $1,541,035 | $1,541,035 |
| 2010 | $315,380 | $1,240,002 | $0 | $1,555,382 | $1,555,382 |
| 2009 | $329,261 | $1,438,677 | $0 | $1,767,938 | $1,767,938 |
| 2008 | $252,355 | $1,490,960 | $0 | $1,743,315 | $1,743,315 |
| 2007 | $220,350 | $1,490,330 | $0 | $1,710,680 | $1,710,680 |
Deed and Sales History
| 1 | 12/22/2020 | QCD | Quit Claim Deed | GEBERT, LISA S | 1980 SHORE LLC | | | $0.00 | 46291 | 4506195 |
| 2 | 12/22/2020 | QCD | Quit Claim Deed | GEBERT 1/4 INT, LISA S | GEBERT, LISA S | | | $0.00 | 46289 | 4506194 |
| 3 | 12/03/2010 | QCD | Quit Claim Deed | GEBERT TTEE, LISA A | GEBERT 1/4 INT, LISA S | | | $0.00 | 3293 | 4288114 |
| 4 | 05/13/2008 | QCD | Quit Claim Deed | GEBERT, LISA S | SIEVERS ET AL, TODD C | | | $0.00 | 81286 | 4229112 |
| 5 | 12/22/2003 | WD | Warranty Deed | GEBERT, LISA S | GEBERT, LISA S | | | $0.00 | 42928 | 4105546 |
| 6 | 12/22/2003 | WD | Warranty Deed | GEBERT, LISA S | GEBERT, LISA S | | | $0.00 | 42927 | 4105545 |
| 7 | 12/22/2003 | WD | Warranty Deed | GEBERT, LISA S | GEBERT, LISA S | | | $0.00 | 42926 | 4105544 |
| 8 | 12/22/2003 | QCD | Quit Claim Deed | SIEVERS, CHRISTIAN H | GEBERT, LISA S | | | $0.00 | 40137 | 4089433 |
| 9 | 12/22/2003 | QCD | Quit Claim Deed | SIEVERS, CHRISTIAN H | SIEVERS, CHRISTIAN H | | | $0.00 | 40136 | 4089432 |
| 10 | 01/22/2003 | QCD | Quit Claim Deed | GEBERT, LISA S | GEBERT, LISA S | | | $0.00 | 40138 | 4089434 |
| 11 | 10/01/1964 | CD | DNU - Correction Deed | SIEVERS, HOWARD F | SIEVERS, CHRISTIAN H | | | $0.00 | 18230 | 0 |
| 12 | 01/01/1900 | OTHER | Other - Misc. Documents | Unknown | SIEVERS, HOWARD F | | | $0.00 | 0 | 0 |
Payout Agreement
| No payout information available.. |