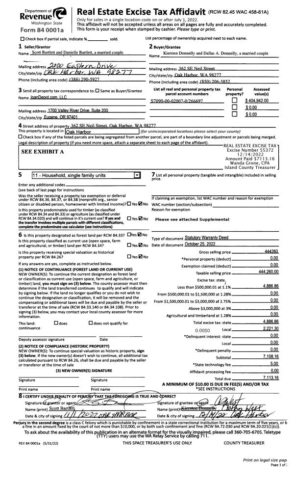
Property
Account |
| Property ID: | 576558 | Abbreviated Legal Description: | 1983 GENERAL LIMITED 14X66 TPO %67606 VIN# SH4869A |
| Geographic ID: | M901500000540 | Agent Code: | |
| Type: | Mobile Home | | |
| Tax Area: | 110 - APPRAISER-OH Schl Dist, outside OH, improved & 1 acre or less | Land Use Code | 11 |
| Open Space: | N | DFL | N |
| Historic Property: | N | Remodel Property: | N |
| Multi-Family Redevelopment: | N | | |
| Township: | | Section: | |
| Range: | |
Location |
| Address: | 318 HOMESTEAD RD OAK HARBOR, WA 98277 | Mapsco: | |
| Neighborhood: | Cycle 6 | Map ID: | |
| Neighborhood CD: | 6 |
Owner |
| Name: | GARCIA, ISELA | Owner ID: | 295187 |
| Mailing Address: | 3414 W 6TH ST ANACORTES, WA 98221 | % Ownership: | 100.0000000000% |
| | | Exemptions: | |
Taxes and Assessment Details
Values
| (+) Improvement Homesite Value: | + | $0 | |
| (+) Improvement Non-Homesite Value: | + | $20,669 | |
| (+) Land Homesite Value: | + | $0 | |
| (+) Land Non-Homesite Value: | + | $0 | |
| (+) Curr Use (HS): | + | $0 | $0 |
| (+) Curr Use (NHS): | + | $0 | $0 |
| | | -------------------------- | |
| (=) Market Value: | = | $20,669 | |
| (–) Productivity Loss: | – | $0 | |
| | | -------------------------- | |
| (=) Subtotal: | = | $20,669 | |
| (+) Senior Appraised Value: | + | $0 | |
| (+) Non-Senior Appraised Value: | + | $20,669 | |
| | | -------------------------- | |
| (=) Total Appraised Value: | = | $20,669 | |
| (–) Senior Exemption Loss: | – | $0 | |
| (–) Exemption Loss: | – | $0 | |
| | | -------------------------- | |
| (=) Taxable Value: | = | $20,669 | |
Taxing Jurisdiction
| Owner: | GARCIA, ISELA | | |
| % Ownership: | 100.0000000000% | | |
| Total Value: | $20,669 | | |
| Tax Area: | 110 - APPRAISER-OH Schl Dist, outside OH, improved & 1 acre or less |
| CF | Conservation Futures | 0.0316035091 | $20,669 | $20,669 | $0.65 | | |
| CEM1 | Cemetery #1 | 0.0040320932 | $20,669 | $20,669 | $0.08 | | |
| FIRE2 | Fire & Rescue Dist #2 N Whidbey GEN | 0.5475949600 | $20,669 | $20,669 | $11.32 | | |
| HOBOND | Hospital BOND | 0.1910887512 | $20,669 | $20,669 | $3.95 | | |
| HOGEN | Hospital GEN | 0.3902502903 | $20,669 | $20,669 | $8.07 | | |
| CE | County Current Expense | 0.3708482477 | $20,669 | $20,669 | $7.67 | | |
| CR | County Roads | 0.4584763726 | $20,669 | $20,669 | $9.48 | | |
| ISLANDEMS | Hospital GEN (EMS) | 0.5000000000 | $20,669 | $20,669 | $10.33 | | |
| LIB | Library Sno-Isle GEN | 0.3153421757 | $20,669 | $20,669 | $6.52 | | |
| NWHIDPRMT | P & R N Whidbey GEN | 0.2004466701 | $20,669 | $20,669 | $4.14 | | |
| SCH201MO | School 201 Enrichment | 1.8559231640 | $20,669 | $20,669 | $38.36 | | |
| ST | State School | 1.3035497053 | $20,669 | $20,669 | $26.94 | | |
| ST2 | State School Part 2 | 0.8169543533 | $20,669 | $20,669 | $16.89 | | |
| | Total Tax Rate: | 6.9861102925 | | | | | |
| | | | | Taxes w/Current Exemptions: | $144.40 | | |
| | | | | Taxes w/o Exemptions: | $144.40 | | |
Improvement / Building
| Improvement #1: | MANUFACTURED HOME | State Code: | Y | 1020.0 sqft | Value: | $20,669 |
| Bathrooms: | 0 | Bedrooms: | 0 | | Ceiling: | PLASTER PAINTED | Cooling: | EVAP NO DUCT | | Exterior Wall/Cover: | VINYL | Floor Covering: | CARPET 100% | | Floor Structure: | SLAB ON GRADE | Foundation: | SLAB | | Heating: | FHA ELECTRIC | Interior Finish: | PLASTER | | Plumbing Fixture Cnt: | 1 | Roof Slope: | FLAT | | Roof Structure/Cover: | CJ ALUMINIUM HEAVY |   |   |
|
| | Type | Description | Class CD | Sub Class CD | Year Built | Area |
| | BAS | BASE/MAIN FLOOR | 3 | 0 | 1983 | 1020.0 |
| | OWC | OPEN WOOD PORCH W/STEPS/ROOF/C | 3 | 0 | 1983 | 452.0 |
Sketch
Property Image
Land
No land segments exist for this property.
Roll Value History
| 2026 | N/A | N/A | N/A | N/A | N/A |
| 2025 | $20,669 | $0 | $0 | $20,669 | $20,669 |
| 2024 | $21,757 | $0 | $0 | $21,757 | $21,757 |
| 2023 | $20,767 | $0 | $0 | $20,767 | $20,767 |
| 2022 | $7,360 | $0 | $0 | $7,360 | $7,360 |
| 2021 | $6,613 | $0 | $0 | $6,613 | $6,613 |
| 2020 | $6,834 | $0 | $0 | $6,834 | $6,834 |
| 2019 | $5,709 | $0 | $0 | $5,709 | $5,709 |
| 2018 | $6,199 | $0 | $0 | $6,199 | $6,199 |
| 2017 | $6,525 | $0 | $0 | $6,525 | $6,525 |
| 2016 | $6,851 | $0 | $0 | $6,851 | $6,851 |
| 2015 | $7,177 | $0 | $0 | $7,177 | $7,177 |
| 2014 | $7,504 | $0 | $0 | $7,504 | $7,504 |
| 2013 | $7,830 | $0 | $0 | $7,830 | $7,830 |
| 2012 | $8,319 | $0 | $0 | $8,319 | $8,319 |
| 2011 | $8,645 | $0 | $0 | $8,645 | $8,645 |
| 2010 | $9,870 | $0 | $0 | $9,870 | $9,870 |
| 2009 | $10,451 | $0 | $0 | $10,451 | $10,451 |
| 2008 | $10,911 | $0 | $0 | $10,911 | $10,911 |
| 2007 | $11,318 | $0 | $0 | $11,318 | $11,318 |
Deed and Sales History
| 1 | 07/15/2020 | MANHOME | Manufactured Home | RODARTE-HIDALGO, YOLANDA | GARCIA, ISELA | | | $5,000.00 | 43800 | |
| 2 | 06/28/2016 | MANHOME | Manufactured Home | CHISOLM, WILLIAM V | RODARTE-HIDALGO, YOLANDA | | | $4,900.00 | 25026 | |
| 3 | 02/21/2006 | OTHER | Other - Misc. Documents | SEYMOUR, SHRLEY A | CHISOLM, WILLIAM V | | | $0.00 | 60755 | 0 |
| 4 | 05/01/1993 | OTHER | Other - Misc. Documents | YORK, GARY W | SEYMOUR, SHRLEY A | | | $15,000.00 | 31782 | 0 |
| 5 | 08/01/1987 | OTHER | Other - Misc. Documents | BENJAMIN, GEORGE W | YORK, GARY W | | | $0.00 | 72653 | 0 |
| 6 | 01/01/1984 | OTHER | Other - Misc. Documents | RICHARD, MARK A | BENJAMIN, GEORGE W | | | $17,616.00 | 40131 | 0 |
| 7 | 01/01/1983 | OTHER | Other - Misc. Documents | Unknown | RICHARD, MARK A | | | $21,000.00 | 11111111 | 0 |
Payout Agreement
| No payout information available.. |