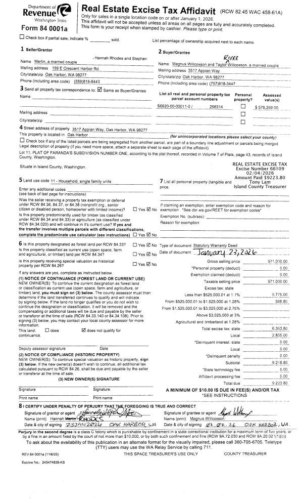
Property
Account |
| Property ID: | 576996 | Abbreviated Legal Description: | 1983 BERKSHIRE 24X40 VIN# WAFL2AD22314673 TPO %80221 |
| Geographic ID: | M91000000053-1 | Agent Code: | |
| Type: | Mobile Home | | |
| Tax Area: | 300 - APPRAISER-Cpvl Schl Dist, in Cpvl | Land Use Code | 11 |
| Open Space: | N | DFL | N |
| Historic Property: | N | Remodel Property: | N |
| Multi-Family Redevelopment: | N | | |
| Township: | | Section: | |
| Range: | |
Location |
| Address: | 701 S MAIN ST # 53 COUPEVILLE, WA 98239 | Mapsco: | |
| Neighborhood: | Cycle 2 | Map ID: | |
| Neighborhood CD: | 2 |
Owner |
| Name: | GORDON, MERYL C | Owner ID: | 265649 |
| Mailing Address: | 701 S MAIN ST #53 COUPEVILLE, WA 98239 | % Ownership: | 100.0000000000% |
| | | Exemptions: | |
Taxes and Assessment Details
Values
| (+) Improvement Homesite Value: | + | $0 | |
| (+) Improvement Non-Homesite Value: | + | $97,128 | |
| (+) Land Homesite Value: | + | $0 | |
| (+) Land Non-Homesite Value: | + | $0 | |
| (+) Curr Use (HS): | + | $0 | $0 |
| (+) Curr Use (NHS): | + | $0 | $0 |
| | | -------------------------- | |
| (=) Market Value: | = | $97,128 | |
| (–) Productivity Loss: | – | $0 | |
| | | -------------------------- | |
| (=) Subtotal: | = | $97,128 | |
| (+) Senior Appraised Value: | + | $0 | |
| (+) Non-Senior Appraised Value: | + | $97,128 | |
| | | -------------------------- | |
| (=) Total Appraised Value: | = | $97,128 | |
| (–) Senior Exemption Loss: | – | $0 | |
| (–) Exemption Loss: | – | $0 | |
| | | -------------------------- | |
| (=) Taxable Value: | = | $97,128 | |
Taxing Jurisdiction
| Owner: | GORDON, MERYL C | | |
| % Ownership: | 100.0000000000% | | |
| Total Value: | $97,128 | | |
| Tax Area: | 300 - APPRAISER-Cpvl Schl Dist, in Cpvl |
| CF | Conservation Futures | 0.0316035091 | $97,128 | $97,128 | $3.07 | | |
| CEM2 | Cemetery #2 | 0.0095056933 | $97,128 | $97,128 | $0.92 | | |
| COUP | City: Town of Coupeville | 0.8426414490 | $97,128 | $97,128 | $81.84 | | |
| FIRE5 | Fire & Rescue Dist #5 C Whidbey GEN | 1.2008080668 | $97,128 | $97,128 | $116.63 | | |
| FIRE5BOND | Fire & Rescue Dist #5 C Whidbey BOND | 0.1400090713 | $97,128 | $97,128 | $13.60 | | |
| HOBOND | Hospital BOND | 0.1910887512 | $97,128 | $97,128 | $18.56 | | |
| HOGEN | Hospital GEN | 0.3902502903 | $97,128 | $97,128 | $37.90 | | |
| CE | County Current Expense | 0.3708482477 | $97,128 | $97,128 | $36.02 | | |
| ISLANDEMS | Hospital GEN (EMS) | 0.5000000000 | $97,128 | $97,128 | $48.56 | | |
| LIB | Library Sno-Isle GEN | 0.3153421757 | $97,128 | $97,128 | $30.63 | | |
| LIBCAP | Library Sno-Isle BOND (Cap Fac Imp Area) | 0.0543427938 | $97,128 | $97,128 | $5.28 | | |
| POCOUP | Port of Coupeville GEN | 0.1093371703 | $97,128 | $97,128 | $10.62 | | |
| POCOUPIDD | Port of Coupeville IDD | 0.3409740022 | $97,128 | $97,128 | $33.12 | | |
| COUPSDTECH | School 204 CP (TECH) | 0.7545480007 | $97,128 | $97,128 | $73.29 | | |
| SCH204MO | School 204 Enrichment | 0.6716186034 | $97,128 | $97,128 | $65.23 | | |
| ST | State School | 1.3035497053 | $97,128 | $97,128 | $126.61 | | |
| ST2 | State School Part 2 | 0.8169543533 | $97,128 | $97,128 | $79.35 | | |
| | Total Tax Rate: | 8.0434218834 | | | | | |
| | | | | Taxes w/Current Exemptions: | $781.23 | | |
| | | | | Taxes w/o Exemptions: | $781.23 | | |
Improvement / Building
| Improvement #1: | MANUFACTURED HOME | State Code: | Y | 960.0 sqft | Value: | $97,128 |
| Bathrooms: | 1.75 | Bedrooms: | 2 | | Ceiling: | PLASTER PAINTED | Cooling: | EVAP NO DUCT | | Exterior Wall/Cover: | VINYL | Floor Covering: | CARPET 100% | | Floor Structure: | SLAB ON GRADE | Foundation: | SLAB | | Heating: | FHA ELECTRIC | Interior Finish: | PLASTER | | Plumbing Fixture Cnt: | 1 | Roof Slope: | FLAT | | Roof Structure/Cover: | CJ ALUMINIUM HEAVY |   |   |
|
Sketch
Property Image
Land
No land segments exist for this property.
Roll Value History
| 2026 | N/A | N/A | N/A | N/A | N/A |
| 2025 | $97,128 | $0 | $0 | $97,128 | $97,128 |
| 2024 | $53,887 | $0 | $0 | $53,887 | $53,887 |
| 2023 | $34,415 | $0 | $0 | $34,415 | $34,415 |
| 2022 | $32,805 | $0 | $0 | $32,805 | $32,805 |
| 2021 | $29,954 | $0 | $0 | $29,954 | $29,954 |
| 2020 | $30,463 | $0 | $0 | $30,463 | $30,463 |
| 2019 | $25,087 | $0 | $0 | $25,087 | $25,087 |
| 2018 | $14,056 | $0 | $0 | $14,056 | $14,056 |
| 2017 | $14,739 | $0 | $0 | $14,739 | $14,739 |
| 2016 | $15,422 | $0 | $0 | $15,422 | $15,422 |
| 2015 | $16,105 | $0 | $0 | $16,105 | $16,105 |
| 2014 | $16,787 | $0 | $0 | $16,787 | $16,787 |
| 2013 | $17,470 | $0 | $0 | $17,470 | $17,470 |
| 2012 | $18,672 | $0 | $0 | $18,672 | $18,672 |
| 2011 | $19,355 | $0 | $0 | $19,355 | $19,355 |
| 2010 | $20,042 | $0 | $0 | $20,042 | $20,042 |
| 2009 | $21,593 | $0 | $0 | $21,593 | $21,593 |
| 2008 | $22,569 | $0 | $0 | $22,569 | $22,569 |
| 2007 | $23,543 | $0 | $0 | $23,543 | $23,543 |
Deed and Sales History
| 1 | 04/15/2014 | OTHER | Other - Misc. Documents | GORDON, MERYL C | GORDON, MERYL C | | | $0.00 | 14905 | |
| 2 | 06/11/1999 | OTHER | Other - Misc. Documents | JOYCE, W B | GORDON, MERYL C | | | $18,000.00 | 92258 | 0 |
| 3 | 05/01/1991 | OTHER | Other - Misc. Documents | WEIMER, RICHARD W | JOYCE, W B | | | $25,515.00 | 11617 | 0 |
| 4 | 06/01/1983 | OTHER | Other - Misc. Documents | Unknown | WEIMER, RICHARD W | | | $21,244.00 | 11111111 | 0 |
Payout Agreement
| No payout information available.. |