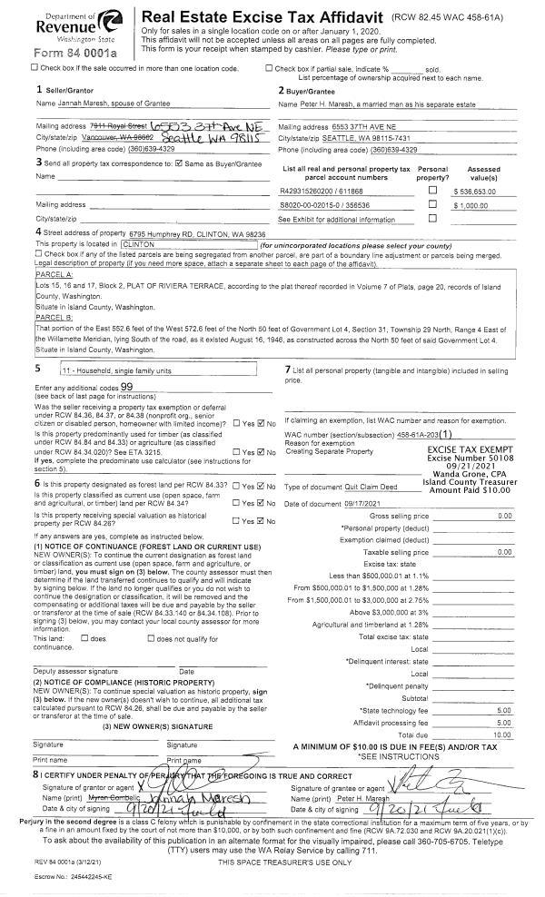
Property
Account |
| Property ID: | 577012 | Abbreviated Legal Description: | LOT 1 SP 82-99-12.23226.189-0730 V1 SP P250 AF#419773 |
| Geographic ID: | R23226-189-1040 | Agent Code: | |
| Type: | Real | | |
| Tax Area: | 519 - APPRAISER-Stan/Cam Schl Dist, vacant & 50 acres or less | Land Use Code | 91 |
| Open Space: | N | DFL | N |
| Historic Property: | N | Remodel Property: | N |
| Multi-Family Redevelopment: | N | | |
| Township: | 32 | Section: | 26 |
| Range: | R2 |
Location |
| Address: | | Mapsco: | |
| Neighborhood: | North Camano | Map ID: | 566 |
| Neighborhood CD: | 06-C |
Owner |
| Name: | KOZBER, WERNER | Owner ID: | 26527 |
| Mailing Address: | 3327 37TH AVE W SEATTLE, WA 98199-2510 | % Ownership: | 100.0000000000% |
| | | Exemptions: | |
Taxes and Assessment Details
Values
| (+) Improvement Homesite Value: | + | $0 | |
| (+) Improvement Non-Homesite Value: | + | $0 | |
| (+) Land Homesite Value: | + | $0 | |
| (+) Land Non-Homesite Value: | + | $260,000 | |
| (+) Curr Use (HS): | + | $0 | $0 |
| (+) Curr Use (NHS): | + | $0 | $0 |
| | | -------------------------- | |
| (=) Market Value: | = | $260,000 | |
| (–) Productivity Loss: | – | $0 | |
| | | -------------------------- | |
| (=) Subtotal: | = | $260,000 | |
| (+) Senior Appraised Value: | + | $0 | |
| (+) Non-Senior Appraised Value: | + | $260,000 | |
| | | -------------------------- | |
| (=) Total Appraised Value: | = | $260,000 | |
| (–) Senior Exemption Loss: | – | $0 | |
| (–) Exemption Loss: | – | $0 | |
| | | -------------------------- | |
| (=) Taxable Value: | = | $260,000 | |
Taxing Jurisdiction
| Owner: | KOZBER, WERNER | | |
| % Ownership: | 100.0000000000% | | |
| Total Value: | $260,000 | | |
| Tax Area: | 519 - APPRAISER-Stan/Cam Schl Dist, vacant & 50 acres or less |
| CF | Conservation Futures | 0.0316035091 | $260,000 | $260,000 | $8.22 | | |
| EMS1 | Fire & Rescue Dist #1 Camano GEN (EMS) | 0.3677864386 | $260,000 | $260,000 | $95.62 | | |
| CE | County Current Expense | 0.3708482477 | $260,000 | $260,000 | $96.42 | | |
| CR | County Roads | 0.4584763726 | $260,000 | $260,000 | $119.20 | | |
| LCIB | Library Sno-Isle BOND (Camano Island) | 0.0396325772 | $260,000 | $260,000 | $10.30 | | |
| LIB | Library Sno-Isle GEN | 0.3153421757 | $260,000 | $260,000 | $81.99 | | |
| SCH205_401 | School 205-401 Enrichment | 1.2698420524 | $260,000 | $260,000 | $330.16 | | |
| SCH205BOND | School 205-401 BOND | 0.9396497583 | $260,000 | $260,000 | $244.31 | | |
| ST | State School | 1.3035497053 | $260,000 | $260,000 | $338.92 | | |
| ST2 | State School Part 2 | 0.8169543533 | $260,000 | $260,000 | $212.41 | | |
| | Total Tax Rate: | 5.9136851902 | | | | | |
| | | | | Taxes w/Current Exemptions: | $1,537.55 | | |
| | | | | Taxes w/o Exemptions: | $1,537.55 | | |
Improvement / Building
Sketch
| No sketches available for this property. |
Property Image
Land
| 1 | 32 | AC (03.01-09.99) | 4.9500 | 0.00 | 0.00 | 0.00 | 1.00 | $260,000 | $0 |
Roll Value History
| 2026 | N/A | N/A | N/A | N/A | N/A |
| 2025 | $0 | $260,000 | $0 | $260,000 | $260,000 |
| 2024 | $0 | $240,000 | $0 | $240,000 | $240,000 |
| 2023 | $0 | $200,000 | $0 | $200,000 | $200,000 |
| 2022 | $0 | $180,000 | $0 | $180,000 | $180,000 |
| 2021 | $0 | $160,000 | $0 | $160,000 | $160,000 |
| 2020 | $0 | $130,000 | $0 | $130,000 | $130,000 |
| 2019 | $0 | $140,000 | $0 | $140,000 | $140,000 |
| 2018 | $0 | $120,000 | $0 | $120,000 | $120,000 |
| 2017 | $0 | $90,000 | $0 | $90,000 | $90,000 |
| 2016 | $0 | $90,000 | $0 | $90,000 | $90,000 |
| 2015 | $0 | $110,880 | $0 | $110,880 | $110,880 |
| 2014 | $0 | $110,880 | $0 | $110,880 | $110,880 |
| 2013 | $0 | $110,880 | $0 | $110,880 | $110,880 |
| 2012 | $0 | $110,880 | $0 | $110,880 | $110,880 |
| 2011 | $0 | $138,600 | $0 | $138,600 | $138,600 |
| 2010 | $0 | $138,600 | $0 | $138,600 | $138,600 |
| 2009 | $0 | $148,500 | $0 | $148,500 | $148,500 |
| 2008 | $0 | $163,350 | $0 | $163,350 | $163,350 |
| 2007 | $0 | $125,000 | $0 | $125,000 | $125,000 |
Deed and Sales History
| 1 | 02/03/2021 | EZ | Easement | KOZBER, WERNER | BERGER, MICHAEL J. | | | $12,000.00 | 46978 | 4511208 |
|   | |
| 2 | 06/01/1990 | WD | Warranty Deed | LYNN, JOEL W | KOZBER, WERNER & | | | $31,000.00 | 3589 | 90011613 |
| 3 | 05/01/1990 | QCD | Quit Claim Deed | WILDMAN, JUDSON A | LYNN, JOEL W | | | $0.00 | 3211 | 90010442 |
| 4 | 07/01/1986 | PACD | Purchaser's Assignment | WOOLLEY, JOSEPH | WILDMAN, JUDSON A | | | $0.00 | 61747 | 86008247 |
| 5 | 02/01/1984 | REC | Real Estate Contract | LYNN, JAMES E | WOOLLEY, JOSEPH | | | $23,594.00 | 41749 | 426084 |
| 6 | 10/01/1982 | PACD | Purchaser's Assignment | Unknown | LYNN, JAMES E | | | $0.00 | 22682 | 402475 |
Payout Agreement
| No payout information available.. |