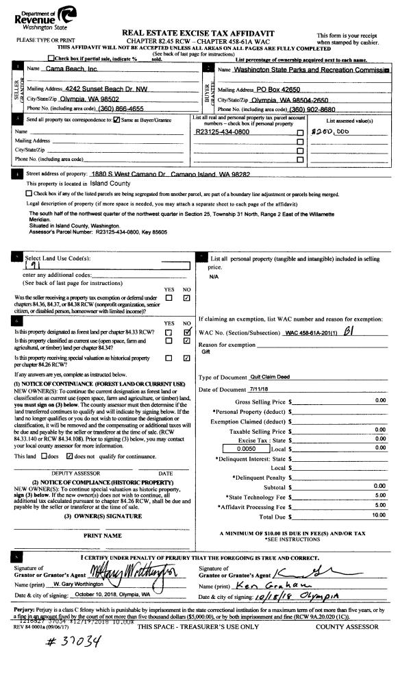
Property
Account |
| Property ID: | 577030 | Abbreviated Legal Description: | LOT 3 SP 82-99-12.23226.189-0730 V1 SP P250 AF#419773 |
| Geographic ID: | R23226-155-0430 | Agent Code: | |
| Type: | Real | | |
| Tax Area: | 512 - APPRAISER-Stan/Cam Schl Dist, improved, greater than 1 acre | Land Use Code | 11 |
| Open Space: | N | DFL | N |
| Historic Property: | N | Remodel Property: | N |
| Multi-Family Redevelopment: | N | | |
| Township: | 32 | Section: | 26 |
| Range: | R2 |
Location |
| Address: | 766 GLENACRE LN CAMANO ISLAND, WA 98282 | Mapsco: | |
| Neighborhood: | North Camano | Map ID: | 566 |
| Neighborhood CD: | 06-C |
Owner |
| Name: | BREWER, ETHAN J | Owner ID: | 300701 |
| Mailing Address: | ASHLEY A BREWER PO BOX 54 SILVANA, WA 98287 | % Ownership: | 100.0000000000% |
| | | Exemptions: | |
Taxes and Assessment Details
Values
| (+) Improvement Homesite Value: | + | $0 | |
| (+) Improvement Non-Homesite Value: | + | $455,232 | |
| (+) Land Homesite Value: | + | $0 | |
| (+) Land Non-Homesite Value: | + | $360,000 | |
| (+) Curr Use (HS): | + | $0 | $0 |
| (+) Curr Use (NHS): | + | $0 | $0 |
| | | -------------------------- | |
| (=) Market Value: | = | $815,232 | |
| (–) Productivity Loss: | – | $0 | |
| | | -------------------------- | |
| (=) Subtotal: | = | $815,232 | |
| (+) Senior Appraised Value: | + | $0 | |
| (+) Non-Senior Appraised Value: | + | $815,232 | |
| | | -------------------------- | |
| (=) Total Appraised Value: | = | $815,232 | |
| (–) Senior Exemption Loss: | – | $0 | |
| (–) Exemption Loss: | – | $0 | |
| | | -------------------------- | |
| (=) Taxable Value: | = | $815,232 | |
Taxing Jurisdiction
| Owner: | BREWER, ETHAN J | | |
| % Ownership: | 100.0000000000% | | |
| Total Value: | $815,232 | | |
| Tax Area: | 512 - APPRAISER-Stan/Cam Schl Dist, improved, greater than 1 acre |
| CF | Conservation Futures | 0.0316035091 | $815,232 | $815,232 | $25.76 | | |
| EMS1 | Fire & Rescue Dist #1 Camano GEN (EMS) | 0.3677864386 | $815,232 | $815,232 | $299.83 | | |
| FIRE1 | Fire & Rescue Dist #1 Camano GEN | 1.2502910536 | $815,232 | $815,232 | $1,019.28 | | |
| FIRE1BOND | Fire & Rescue Dist #1 Camano BOND | 0.1570001679 | $815,232 | $815,232 | $127.99 | | |
| CE | County Current Expense | 0.3708482477 | $815,232 | $815,232 | $302.33 | | |
| CR | County Roads | 0.4584763726 | $815,232 | $815,232 | $373.76 | | |
| LCIB | Library Sno-Isle BOND (Camano Island) | 0.0396325772 | $815,232 | $815,232 | $32.31 | | |
| LIB | Library Sno-Isle GEN | 0.3153421757 | $815,232 | $815,232 | $257.08 | | |
| SCH205_401 | School 205-401 Enrichment | 1.2698420524 | $815,232 | $815,232 | $1,035.22 | | |
| SCH205BOND | School 205-401 BOND | 0.9396497583 | $815,232 | $815,232 | $766.03 | | |
| ST | State School | 1.3035497053 | $815,232 | $815,232 | $1,062.70 | | |
| ST2 | State School Part 2 | 0.8169543533 | $815,232 | $815,232 | $666.01 | | |
| | Total Tax Rate: | 7.3209764117 | | | | | |
| | | | | Taxes w/Current Exemptions: | $5,968.30 | | |
| | | | | Taxes w/o Exemptions: | $5,968.30 | | |
Improvement / Building
| Improvement #1: | RESIDENTIAL | State Code: | Y | 2318.6 sqft | Value: | $455,232 |
| Bathrooms: | 2.5 | Bedrooms: | 3 | | Ceiling: | DRYWALL PAINTED | Exterior Wall/Cover: | CEMENT FIBER | | Floor Covering: | CARPET/VINYL 20-80 | Floor Structure: | WOOD W/SUBFLOOR | | Foundation: | CONCRETE | Heating: | WALL HEAT ELECTRIC | | Interior Finish: | DRYWALL PAINT | Plumbing Fixture Cnt: | 13 | | Roof Slope: | 10" IN 12" | Roof Structure/Cover: | BEAM ASPHALT |
|
| | Type | Description | Class CD | Sub Class CD | Year Built | Area |
| | BAS | BASE/MAIN FLOOR | 4 | 0 | 2003 | 1459.3 |
| | OP1 | OPEN PORCH SLAB | 4 | 0 | 2003 | 528.0 |
| | OP2 | OPEN PORCH W/STEPS | 4 | 0 | 2003 | 52.0 |
| | OP4 | OPEN PORCH W/CEILING-ROOF | 4 | 0 | 2003 | 44.0 |
| | UPS | UPPER STORY | 4 | 0 | 2003 | 635.0 |
| | LOF | LOFT | 4 | 0 | 2003 | 224.3 |
| | DGR | DETACHED GARAGE | 4 | 0 | 2003 | 224.0 |
| | DGR | DETACHED GARAGE | 4 | 0 | 2003 | 960.0 |
Sketch
Property Image
Land
| 1 | 32 | AC (03.01-09.99) | 5.0800 | 0.00 | 0.00 | 0.00 | 1.00 | $360,000 | $0 |
Roll Value History
| 2026 | N/A | N/A | N/A | N/A | N/A |
| 2025 | $455,232 | $360,000 | $0 | $815,232 | $815,232 |
| 2024 | $450,014 | $340,000 | $0 | $790,014 | $790,014 |
| 2023 | $455,232 | $320,000 | $0 | $775,232 | $775,232 |
| 2022 | $382,532 | $300,000 | $0 | $682,532 | $682,532 |
| 2021 | $336,629 | $230,000 | $0 | $566,629 | $566,629 |
| 2020 | $305,060 | $190,000 | $0 | $495,060 | $495,060 |
| 2019 | $222,538 | $220,000 | $0 | $442,538 | $442,538 |
| 2018 | $212,264 | $175,000 | $0 | $387,264 | $387,264 |
| 2017 | $213,491 | $150,000 | $0 | $363,491 | $363,491 |
| 2016 | $210,566 | $150,000 | $0 | $360,566 | $360,566 |
| 2015 | $213,014 | $113,792 | $0 | $326,806 | $326,806 |
| 2014 | $215,464 | $113,792 | $0 | $329,256 | $329,256 |
| 2013 | $217,911 | $113,792 | $0 | $331,703 | $331,703 |
| 2012 | $220,360 | $113,792 | $0 | $334,152 | $334,152 |
| 2011 | $222,809 | $142,240 | $0 | $365,049 | $365,049 |
| 2010 | $229,617 | $142,240 | $0 | $371,857 | $371,857 |
| 2009 | $239,191 | $170,180 | $0 | $409,371 | $409,371 |
| 2008 | $244,285 | $220,980 | $0 | $465,265 | $465,265 |
| 2007 | $244,444 | $220,980 | $0 | $465,424 | $465,424 |
Deed and Sales History
| 1 | 08/11/2021 | WD | Warranty Deed | PHABY, JAMES E | BREWER, ETHAN J | | | $731,000.00 | 49608 | 4526755 |
| 2 | 11/26/2018 | WD | Warranty Deed | SCHROEDER, DARYL | PHABY, JAMES E | | | $460,000.00 | 36781 | 4455599 |
| 3 | 08/23/2017 | QCD | Quit Claim Deed | SCHROEDER, JAIME | SCHROEDER, DARYL | | | $0.00 | 36780 | 4455598 |
| 4 | 07/13/2017 | QCD | Quit Claim Deed | SCHROEDER, DARYL | SCHROEDER, DARYL | | | $0.00 | 30871 | 4429211 |
| 5 | 05/17/2016 | WD | Warranty Deed | LYNN, MICHAEL F | SCHROEDER, DARYL | | | $365,000.00 | 24368 | 4399528 |
| 6 | 09/01/1986 | REC | Real Estate Contract | LYNN, JAMES E | LYNN, MICHAEL F | | | $22,993.00 | 62922 | 86014168 |
| 7 | 10/01/1982 | PACD | Purchaser's Assignment | Unknown | LYNN, JAMES E | | | $0.00 | 22682 | 402475 |
Payout Agreement
| No payout information available.. |