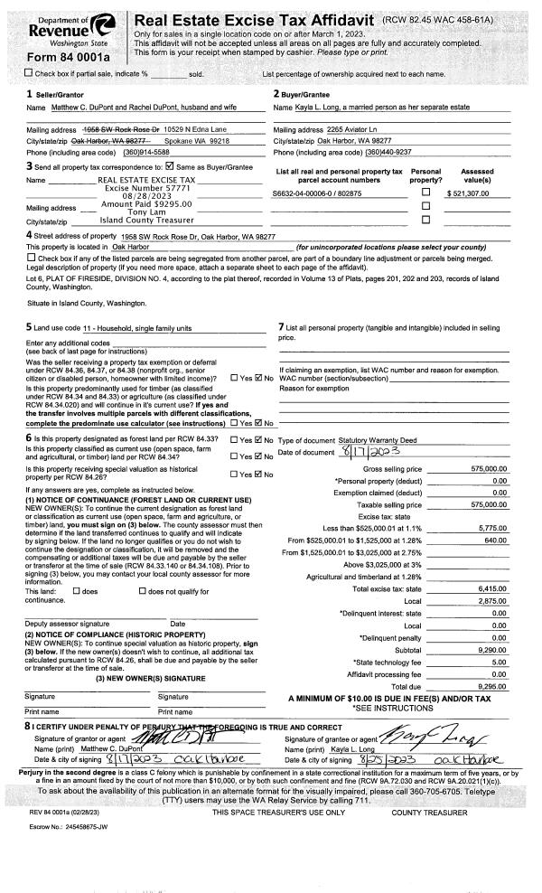
Property
Account |
| Property ID: | 577316 | Abbreviated Legal Description: | LOT 1 SP 81-27.23223.166-1710 V1 SP P244 AF#418260 |
| Geographic ID: | R23223-182-1750 | Agent Code: | |
| Type: | Real | | |
| Tax Area: | 512 - APPRAISER-Stan/Cam Schl Dist, improved, greater than 1 acre | Land Use Code | 11 |
| Open Space: | N | DFL | N |
| Historic Property: | N | Remodel Property: | N |
| Multi-Family Redevelopment: | N | | |
| Township: | 32 | Section: | 23 |
| Range: | R2 |
Location |
| Address: | CAMANO ISLAND, WA 98282 | Mapsco: | |
| Neighborhood: | North Camano | Map ID: | 554 |
| Neighborhood CD: | 06-C |
Owner |
| Name: | AKIN, WILLIAM D & SHIRLEE | Owner ID: | 58684 |
| Mailing Address: | 662 LORIEN LN CAMANO ISLAND, WA 98282-6638 | % Ownership: | 100.0000000000% |
| | | Exemptions: | |
Taxes and Assessment Details
Values
| (+) Improvement Homesite Value: | + | $353,330 | |
| (+) Improvement Non-Homesite Value: | + | $0 | |
| (+) Land Homesite Value: | + | $380,000 | |
| (+) Land Non-Homesite Value: | + | $0 | |
| (+) Curr Use (HS): | + | $0 | $0 |
| (+) Curr Use (NHS): | + | $0 | $0 |
| | | -------------------------- | |
| (=) Market Value: | = | $733,330 | |
| (–) Productivity Loss: | – | $0 | |
| | | -------------------------- | |
| (=) Subtotal: | = | $733,330 | |
| (+) Senior Appraised Value: | + | $0 | |
| (+) Non-Senior Appraised Value: | + | $733,330 | |
| | | -------------------------- | |
| (=) Total Appraised Value: | = | $733,330 | |
| (–) Senior Exemption Loss: | – | $0 | |
| (–) Exemption Loss: | – | $0 | |
| | | -------------------------- | |
| (=) Taxable Value: | = | $733,330 | |
Taxing Jurisdiction
| Owner: | AKIN, WILLIAM D & SHIRLEE | | |
| % Ownership: | 100.0000000000% | | |
| Total Value: | $733,330 | | |
| Tax Area: | 512 - APPRAISER-Stan/Cam Schl Dist, improved, greater than 1 acre |
| CF | Conservation Futures | 0.0316035091 | $733,330 | $733,330 | $23.18 | | |
| EMS1 | Fire & Rescue Dist #1 Camano GEN (EMS) | 0.3677864386 | $733,330 | $733,330 | $269.71 | | |
| FIRE1 | Fire & Rescue Dist #1 Camano GEN | 1.2502910536 | $733,330 | $733,330 | $916.88 | | |
| FIRE1BOND | Fire & Rescue Dist #1 Camano BOND | 0.1570001679 | $733,330 | $733,330 | $115.13 | | |
| CE | County Current Expense | 0.3708482477 | $733,330 | $733,330 | $271.95 | | |
| CR | County Roads | 0.4584763726 | $733,330 | $733,330 | $336.21 | | |
| LCIB | Library Sno-Isle BOND (Camano Island) | 0.0396325772 | $733,330 | $733,330 | $29.06 | | |
| LIB | Library Sno-Isle GEN | 0.3153421757 | $733,330 | $733,330 | $231.25 | | |
| SCH205_401 | School 205-401 Enrichment | 1.2698420524 | $733,330 | $733,330 | $931.21 | | |
| SCH205BOND | School 205-401 BOND | 0.9396497583 | $733,330 | $733,330 | $689.07 | | |
| ST | State School | 1.3035497053 | $733,330 | $733,330 | $955.93 | | |
| ST2 | State School Part 2 | 0.8169543533 | $733,330 | $733,330 | $599.10 | | |
| | Total Tax Rate: | 7.3209764117 | | | | | |
| | | | | Taxes w/Current Exemptions: | $5,368.68 | | |
| | | | | Taxes w/o Exemptions: | $5,368.68 | | |
Improvement / Building
| Improvement #1: | RESIDENTIAL | State Code: | Y | 2752.0 sqft | Value: | $353,330 |
| Bathrooms: | 2 | Bedrooms: | 3 | | Ceiling: | DRYWALL PAINTED | Exterior Wall/Cover: | WOOD SIDING | | Floor Covering: | CARPET/VINYL 80-20 | Floor Structure: | WOOD W/SUBFLOOR | | Foundation: | CONCRETE | Heating: | FHA GAS | | Interior Finish: | DRYWALL PAINT | Plumbing Fixture Cnt: | 9 | | Roof Slope: | 5" IN 12" | Roof Structure/Cover: | CJ ASPHALT |
|
| | Type | Description | Class CD | Sub Class CD | Year Built | Area |
| | BAS | BASE/MAIN FLOOR | 3 | 0 | 1996 | 1684.0 |
| | DWN | DOWNSTAIRS LIVING AREA | 3 | 0 | 1996 | 1068.0 |
| | OP4 | OPEN PORCH W/CEILING-ROOF | 3 | 0 | 1996 | 96.0 |
| | AGR | ATTACHED GARAGE | 3 | 0 | 1996 | 528.0 |
| | BIG | BUILT IN GARAGE | 3 | 0 | 1996 | 616.0 |
| | OWP | OPEN WOOD PORCH W/STEPS | 3 | 0 | 1996 | 264.0 |
Sketch
Property Image
Land
| 1 | 32 | AC (03.01-09.99) | 3.2500 | 0.00 | 0.00 | 0.00 | 1.00 | $380,000 | $0 |
Roll Value History
| 2026 | N/A | N/A | N/A | N/A | N/A |
| 2025 | $353,330 | $380,000 | $0 | $733,330 | $733,330 |
| 2024 | $357,844 | $390,000 | $0 | $747,844 | $747,844 |
| 2023 | $362,362 | $380,000 | $0 | $742,362 | $742,362 |
| 2022 | $319,943 | $350,000 | $0 | $669,943 | $669,943 |
| 2021 | $281,764 | $240,000 | $0 | $521,764 | $521,764 |
| 2020 | $275,695 | $200,000 | $0 | $475,695 | $475,695 |
| 2019 | $219,639 | $240,000 | $0 | $459,639 | $103,013 |
| 2018 | $220,314 | $220,000 | $0 | $440,314 | $103,013 |
| 2017 | $221,666 | $200,000 | $0 | $421,666 | $103,013 |
| 2016 | $206,546 | $120,000 | $0 | $326,546 | $113,414 |
| 2015 | $209,096 | $110,000 | $0 | $319,096 | $113,414 |
| 2014 | $211,645 | $97,500 | $0 | $309,145 | $213,534 |
| 2013 | $214,196 | $65,000 | $0 | $279,196 | $209,196 |
| 2012 | $216,745 | $65,000 | $0 | $281,745 | $211,745 |
| 2011 | $219,296 | $81,250 | $0 | $300,546 | $213,534 |
| 2010 | $226,599 | $81,250 | $0 | $307,849 | $283,534 |
| 2009 | $234,899 | $110,540 | $0 | $345,439 | $283,533 |
| 2008 | $240,276 | $129,379 | $0 | $369,655 | $283,533 |
| 2007 | $242,417 | $114,079 | $0 | $356,496 | $283,533 |
Deed and Sales History
| 1 | 01/01/1991 | WD | Warranty Deed | HUDDLESTON, HAROLD D | AKIN, WILLIAM D | | | $25,000.00 | 10268 | 91001267 |
| 2 | 01/01/1900 | OTHER | Other - Misc. Documents | Unknown | HUDDLESTON, HAROLD D | | | $0.00 | 0 | 0 |
Payout Agreement
| No payout information available.. |