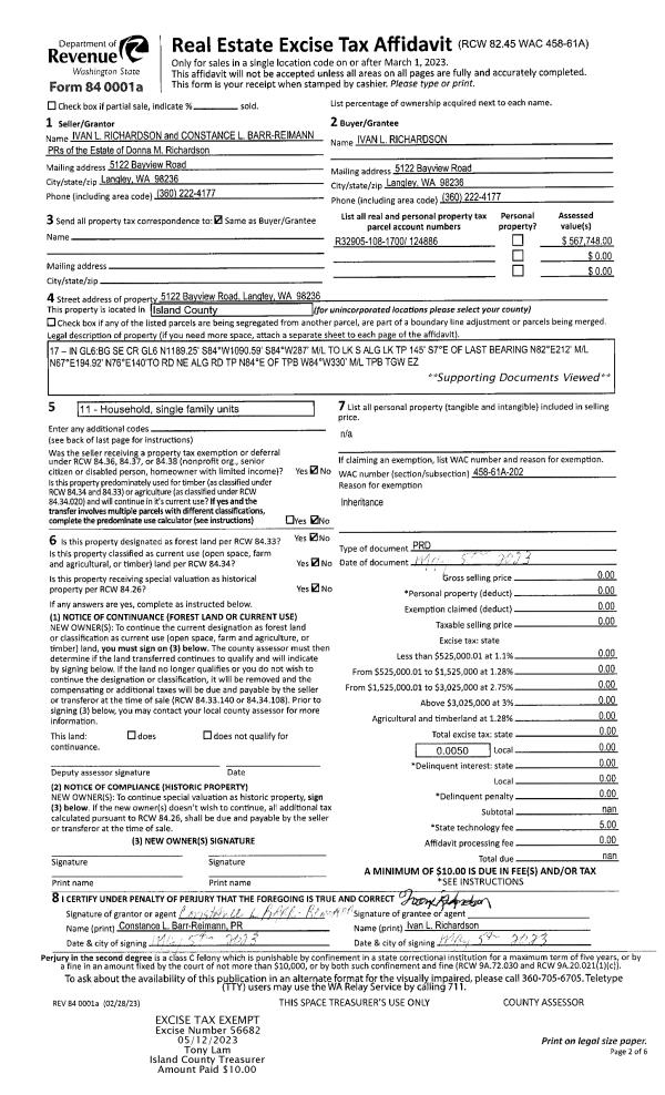
Property
Account |
| Property ID: | 577361 | Abbreviated Legal Description: | LOT 1 SP 81-70-33222.040-3660 V1 SP P227 AF#413111 |
| Geographic ID: | R33222-039-3800 | Agent Code: | |
| Type: | Real | | |
| Tax Area: | 512 - APPRAISER-Stan/Cam Schl Dist, improved, greater than 1 acre | Land Use Code | 11 |
| Open Space: | N | DFL | N |
| Historic Property: | N | Remodel Property: | N |
| Multi-Family Redevelopment: | N | | |
| Township: | 32 | Section: | 22 |
| Range: | R3 |
Location |
| Address: | 1491 SR532 CAMANO ISLAND, WA 98282 | Mapsco: | |
| Neighborhood: | North Camano | Map ID: | 973 |
| Neighborhood CD: | 06-C |
Owner |
| Name: | HAMRE, STEVEN J | Owner ID: | 61188 |
| Mailing Address: | 1481 STATE HIGHWAY 532 CAMANO ISLAND, WA 98282-8839 | % Ownership: | 100.0000000000% |
| | | Exemptions: | |
Taxes and Assessment Details
Values
| (+) Improvement Homesite Value: | + | $0 | |
| (+) Improvement Non-Homesite Value: | + | $319,962 | |
| (+) Land Homesite Value: | + | $0 | |
| (+) Land Non-Homesite Value: | + | $340,000 | |
| (+) Curr Use (HS): | + | $0 | $0 |
| (+) Curr Use (NHS): | + | $0 | $0 |
| | | -------------------------- | |
| (=) Market Value: | = | $659,962 | |
| (–) Productivity Loss: | – | $0 | |
| | | -------------------------- | |
| (=) Subtotal: | = | $659,962 | |
| (+) Senior Appraised Value: | + | $0 | |
| (+) Non-Senior Appraised Value: | + | $659,962 | |
| | | -------------------------- | |
| (=) Total Appraised Value: | = | $659,962 | |
| (–) Senior Exemption Loss: | – | $0 | |
| (–) Exemption Loss: | – | $0 | |
| | | -------------------------- | |
| (=) Taxable Value: | = | $659,962 | |
Taxing Jurisdiction
| Owner: | HAMRE, STEVEN J | | |
| % Ownership: | 100.0000000000% | | |
| Total Value: | $659,962 | | |
| Tax Area: | 512 - APPRAISER-Stan/Cam Schl Dist, improved, greater than 1 acre |
| CF | Conservation Futures | 0.0316035091 | $659,962 | $659,962 | $20.86 | | |
| EMS1 | Fire & Rescue Dist #1 Camano GEN (EMS) | 0.3677864386 | $659,962 | $659,962 | $242.73 | | |
| FIRE1 | Fire & Rescue Dist #1 Camano GEN | 1.2502910536 | $659,962 | $659,962 | $825.14 | | |
| FIRE1BOND | Fire & Rescue Dist #1 Camano BOND | 0.1570001679 | $659,962 | $659,962 | $103.61 | | |
| CE | County Current Expense | 0.3708482477 | $659,962 | $659,962 | $244.75 | | |
| CR | County Roads | 0.4584763726 | $659,962 | $659,962 | $302.58 | | |
| LCIB | Library Sno-Isle BOND (Camano Island) | 0.0396325772 | $659,962 | $659,962 | $26.16 | | |
| LIB | Library Sno-Isle GEN | 0.3153421757 | $659,962 | $659,962 | $208.11 | | |
| SCH205_401 | School 205-401 Enrichment | 1.2698420524 | $659,962 | $659,962 | $838.05 | | |
| SCH205BOND | School 205-401 BOND | 0.9396497583 | $659,962 | $659,962 | $620.13 | | |
| ST | State School | 1.3035497053 | $659,962 | $659,962 | $860.29 | | |
| ST2 | State School Part 2 | 0.8169543533 | $659,962 | $659,962 | $539.16 | | |
| | Total Tax Rate: | 7.3209764117 | | | | | |
| | | | | Taxes w/Current Exemptions: | $4,831.57 | | |
| | | | | Taxes w/o Exemptions: | $4,831.57 | | |
Improvement / Building
| Improvement #1: | RESIDENTIAL | State Code: | Y | 1664.0 sqft | Value: | $319,962 |
| Bathrooms: | 1.75 | Bedrooms: | 3 | | Ceiling: | DRYWALL PAINTED | Exterior Wall/Cover: | WOOD SIDING | | Floor Covering: | HARDWOOD/CARP 60-40 | Floor Structure: | WOOD W/SUBFLOOR | | Foundation: | CONCRETE BLOCKS | Heating: | FHA GAS | | Interior Finish: | DRYWALL PAINT | Plumbing Fixture Cnt: | 10 | | Roof Slope: | 12" IN 12" | Roof Structure/Cover: | CJ ASPHALT |
|
| | Type | Description | Class CD | Sub Class CD | Year Built | Area |
| | BAS | BASE/MAIN FLOOR | 3 | 0 | 1890 | 992.0 |
| | OP3 | OPEN PORCH W/ROOF | 3 | 0 | 1890 | 128.0 |
| | UPS | UPPER STORY | 3 | 0 | 1890 | 672.0 |
| | OWC | OPEN WOOD PORCH W/STEPS/ROOF/C | 3 | 0 | 1890 | 168.0 |
Sketch
Property Image
Land
| 1 | 17 | AC (01.01-02.00) | 0.0000 | 0.00 | 0.00 | 0.00 | 1.00 | $340,000 | $0 |
Roll Value History
| 2026 | N/A | N/A | N/A | N/A | N/A |
| 2025 | $319,962 | $340,000 | $0 | $659,962 | $659,962 |
| 2024 | $324,583 | $320,000 | $0 | $644,583 | $644,583 |
| 2023 | $329,203 | $320,000 | $0 | $649,203 | $649,203 |
| 2022 | $293,917 | $270,000 | $0 | $563,917 | $563,917 |
| 2021 | $259,214 | $200,000 | $0 | $459,214 | $459,214 |
| 2020 | $253,191 | $200,000 | $0 | $453,191 | $453,191 |
| 2019 | $186,178 | $220,000 | $0 | $406,178 | $406,178 |
| 2018 | $186,814 | $210,000 | $0 | $396,814 | $396,814 |
| 2017 | $188,084 | $150,000 | $0 | $338,084 | $338,084 |
| 2016 | $179,676 | $130,000 | $0 | $309,676 | $309,676 |
| 2015 | $182,206 | $115,000 | $0 | $297,206 | $297,206 |
| 2014 | $184,737 | $115,000 | $0 | $299,737 | $299,737 |
| 2013 | $187,268 | $115,000 | $0 | $302,268 | $302,268 |
| 2012 | $189,800 | $115,000 | $0 | $304,800 | $304,800 |
| 2011 | $189,800 | $115,000 | $0 | $304,800 | $304,800 |
| 2010 | $226,919 | $125,000 | $0 | $351,919 | $351,919 |
| 2009 | $235,827 | $150,000 | $0 | $385,827 | $385,827 |
| 2008 | $237,769 | $150,000 | $0 | $387,769 | $387,769 |
| 2007 | $239,719 | $150,000 | $0 | $389,719 | $389,719 |
Deed and Sales History
| 1 | 05/01/1990 | WD | Warranty Deed | BOWEN, D H | HAMRE, STEVEN J | | | $140,000.00 | 2515 | 90008082 |
| 2 | 07/01/1984 | WD | Warranty Deed | WESLEY, PAUL J | BOWEN, D H | | | $65,000.00 | 42233 | 84001387 |
| 3 | 08/01/1980 | EXECUTORD | Executor Deed | Unknown | WESLEY, PAUL J | | | $75,000.00 | 2650 | 372174 |
Payout Agreement
| No payout information available.. |