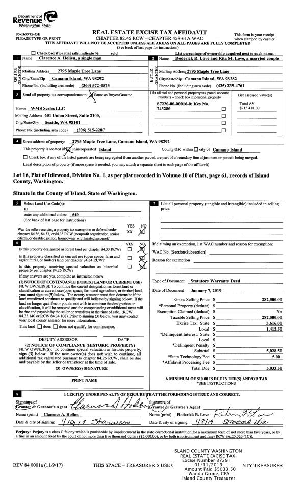
Property
Account |
| Property ID: | 577548 | Abbreviated Legal Description: | LOT A SP 82-73.32812.312-0700 & .287-0540 V1 SP P199 AF#405896 REV LOT A SP 84-38 V1 SP P294 AF#84004061 |
| Geographic ID: | R32812-320-0180 | Agent Code: | |
| Type: | Real | | |
| Tax Area: | 712 - APPRAISER-S Whid Schl Dist, outside Langley, improved, greater than 1 acre | Land Use Code | 11 |
| Open Space: | N | DFL | N |
| Historic Property: | N | Remodel Property: | N |
| Multi-Family Redevelopment: | N | | |
| Township: | 28 | Section: | 12 |
| Range: | R3 |
Location |
| Address: | 7763 SUMMIT VIEW LN CLINTON, WA 98236 | Mapsco: | |
| Neighborhood: | Cycle 4 | Map ID: | 706 |
| Neighborhood CD: | 4 |
Owner |
| Name: | DION, DAVID | Owner ID: | 288762 |
| Mailing Address: | 7763 SUMMIT VIEW LN CLINTON, WA 98236 | % Ownership: | 100.0000000000% |
| | | Exemptions: | |
Taxes and Assessment Details
Values
| (+) Improvement Homesite Value: | + | $0 | |
| (+) Improvement Non-Homesite Value: | + | $334,100 | |
| (+) Land Homesite Value: | + | $0 | |
| (+) Land Non-Homesite Value: | + | $280,000 | |
| (+) Curr Use (HS): | + | $0 | $0 |
| (+) Curr Use (NHS): | + | $0 | $0 |
| | | -------------------------- | |
| (=) Market Value: | = | $614,100 | |
| (–) Productivity Loss: | – | $0 | |
| | | -------------------------- | |
| (=) Subtotal: | = | $614,100 | |
| (+) Senior Appraised Value: | + | $0 | |
| (+) Non-Senior Appraised Value: | + | $614,100 | |
| | | -------------------------- | |
| (=) Total Appraised Value: | = | $614,100 | |
| (–) Senior Exemption Loss: | – | $0 | |
| (–) Exemption Loss: | – | $0 | |
| | | -------------------------- | |
| (=) Taxable Value: | = | $614,100 | |
Taxing Jurisdiction
| Owner: | DION, DAVID | | |
| % Ownership: | 100.0000000000% | | |
| Total Value: | $614,100 | | |
| Tax Area: | 712 - APPRAISER-S Whid Schl Dist, outside Langley, improved, greater than 1 acre |
| CF | Conservation Futures | 0.0316035091 | $614,100 | $614,100 | $19.41 | | |
| FIRE3 | Fire & Rescue Dist #3 S Whidbey GEN | 1.2004855531 | $614,100 | $614,100 | $737.22 | | |
| HOBOND | Hospital BOND | 0.1910887512 | $614,100 | $614,100 | $117.35 | | |
| HOGEN | Hospital GEN | 0.3902502903 | $614,100 | $614,100 | $239.65 | | |
| CE | County Current Expense | 0.3708482477 | $614,100 | $614,100 | $227.74 | | |
| CR | County Roads | 0.4584763726 | $614,100 | $614,100 | $281.55 | | |
| ISLANDEMS | Hospital GEN (EMS) | 0.5000000000 | $614,100 | $614,100 | $307.05 | | |
| LIB | Library Sno-Isle GEN | 0.3153421757 | $614,100 | $614,100 | $193.65 | | |
| PORTWHID | Port of S Whidbey GEN | 0.1094540357 | $614,100 | $614,100 | $67.22 | | |
| SCH206BOND | School 206 BOND | 0.3161759235 | $614,100 | $614,100 | $194.16 | | |
| SCH206MO | School 206 Enrichment | 0.4547169547 | $614,100 | $614,100 | $279.24 | | |
| ST | State School | 1.3035497053 | $614,100 | $614,100 | $800.51 | | |
| ST2 | State School Part 2 | 0.8169543533 | $614,100 | $614,100 | $501.69 | | |
| SWHIDPRBD | P & R S Whidbey BOND | 0.0152817568 | $614,100 | $614,100 | $9.38 | | |
| SWHIDPRBD2 | P & R S Whidbey BOND2 | 0.0138911264 | $614,100 | $614,100 | $8.53 | | |
| SWHIDPRMT | P & R S Whidbey GEN | 0.2053334452 | $614,100 | $614,100 | $126.10 | | |
| | Total Tax Rate: | 6.6934522006 | | | | | |
| | | | | Taxes w/Current Exemptions: | $4,110.45 | | |
| | | | | Taxes w/o Exemptions: | $4,110.45 | | |
Improvement / Building
| Improvement #1: | RESIDENTIAL | State Code: | Y | 1687.8 sqft | Value: | $334,100 |
| Bathrooms: | 2 | Bedrooms: | 3 | | Ceiling: | DRYWALL PAINTED | Exterior Wall/Cover: | WOOD SIDING | | Floor Covering: | CARPET/VINYL 80-20 | Floor Structure: | WOOD W/SUBFLOOR | | Foundation: | CONCRETE | Heating: | WALL HEAT ELECTRIC | | Interior Finish: | DRYWALL PAINT | Plumbing Fixture Cnt: | 9 | | Roof Slope: | 6" IN 12" | Roof Structure/Cover: | CJ ALUMINIUM HEAVY |
|
| | Type | Description | Class CD | Sub Class CD | Year Built | Area |
| | BAS | BASE/MAIN FLOOR | 3 | 0 | 1987 | 1687.8 |
| | AGR | ATTACHED GARAGE | 3 | 0 | 1987 | 528.0 |
| | OWP | OPEN WOOD PORCH W/STEPS | 3 | 0 | 1987 | 432.0 |
| | ENP | ENCLOSED PORCH | 3 | 0 | 1987 | 130.0 |
| | CPD | OPEN CARPORT DIRT FLOOR | 3 | 0 | 1987 | 384.0 |
| | UTY | STORAGE/UTILITY | 3 | 0 | 1987 | 864.0 |
| | CPD | OPEN CARPORT DIRT FLOOR | 3 | 0 | 1987 | 220.0 |
| | OP1 | OPEN PORCH SLAB | 3 | 0 | 1987 | 80.2 |
Sketch
| No sketches available for this property. |
Property Image
Land
| 1 | 17 | AC (01.01-02.00) | 1.7100 | 74487.60 | 0.00 | 0.00 | 1.00 | $280,000 | $0 |
Roll Value History
| 2026 | N/A | N/A | N/A | N/A | N/A |
| 2025 | $334,100 | $280,000 | $0 | $614,100 | $614,100 |
| 2024 | $338,661 | $270,000 | $0 | $608,661 | $608,661 |
| 2023 | $343,222 | $260,000 | $0 | $603,222 | $603,222 |
| 2022 | $314,915 | $250,000 | $0 | $564,915 | $564,915 |
| 2021 | $277,434 | $175,000 | $0 | $452,434 | $452,434 |
| 2020 | $223,663 | $220,000 | $0 | $443,663 | $443,663 |
| 2019 | $168,996 | $250,000 | $0 | $418,996 | $418,996 |
| 2018 | $169,520 | $240,000 | $0 | $409,520 | $409,520 |
| 2017 | $170,533 | $170,000 | $0 | $340,533 | $340,533 |
| 2016 | $172,632 | $155,000 | $0 | $327,632 | $327,632 |
| 2015 | $174,728 | $140,000 | $0 | $314,728 | $314,728 |
| 2014 | $167,253 | $85,000 | $0 | $252,253 | $252,253 |
| 2013 | $169,377 | $85,000 | $0 | $254,377 | $254,377 |
| 2012 | $171,502 | $127,500 | $0 | $299,002 | $299,002 |
| 2011 | $173,626 | $150,000 | $0 | $323,626 | $323,626 |
| 2010 | $180,453 | $150,000 | $0 | $330,453 | $330,453 |
| 2009 | $188,457 | $200,000 | $0 | $388,457 | $388,457 |
| 2008 | $187,771 | $250,000 | $0 | $437,771 | $437,771 |
| 2007 | $190,589 | $250,000 | $0 | $440,589 | $440,589 |
Deed and Sales History
| 1 | 01/31/2019 | QCD | Quit Claim Deed | DION, F RICHARD | DION, DAVID | | | $0.00 | 37586 | 4459249 |
| 2 | 08/05/2004 | EZ | Easement | DION, F RICHARD | DION, F RICHARD | | | $0.00 | 43820 | 4110322 |
| 3 | 08/26/2003 | WD | Warranty Deed | SANDILANDS, BRIAN S | DION, F RICHARD | | | $290,000.00 | 33829 | 4073086 |
| 4 | 08/18/1999 | WD | Warranty Deed | DIEKER, PAUL E | SANDILANDS, BRIAN S | | | $235,000.00 | 93476 | 99019933 |
| 5 | 08/01/1984 | WD | Warranty Deed | EDWARDS, RICHARD E | DIEKER, PAUL E | | | $25,000.00 | 42506 | 84002419 |
| 6 | 08/01/1982 | EZ | Easement | Unknown | EDWARDS, RICHARD E | | | $8,400.00 | 21993 | 399677 |
| 7 | 01/01/1900 | OTHER | Other - Misc. Documents | DIEKER, PAUL E | DIEKER, PAUL E | | | $0.00 | 0 | 0 |
Payout Agreement
| No payout information available.. |