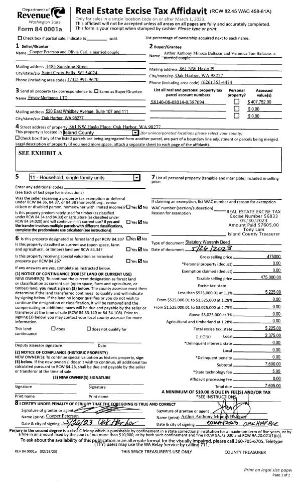
Property
Account |
| Property ID: | 577628 | Abbreviated Legal Description: | LOT 1 SP 83-67.9.13303.049-4800 V1 SP P252 AF#420162 TGW EZ AF#90018091 |
| Geographic ID: | R13303-047-4560 | Agent Code: | |
| Type: | Real | | |
| Tax Area: | 112 - APPRAISER-OH Schl Dist, outside OH, improved, greater than 1 acre | Land Use Code | 11 |
| Open Space: | N | DFL | N |
| Historic Property: | N | Remodel Property: | N |
| Multi-Family Redevelopment: | N | | |
| Township: | 33 | Section: | 03 |
| Range: | R1 |
Location |
| Address: | 4449 MORAN RD OAK HARBOR, WA 98277 | Mapsco: | |
| Neighborhood: | Cycle 6 | Map ID: | 197 |
| Neighborhood CD: | 6 |
Owner |
| Name: | BOOTH, LAUREL A | Owner ID: | 24750 |
| Mailing Address: | 4449 MORAN RD OAK HARBOR, WA 98277-9719 | % Ownership: | 100.0000000000% |
| | | Exemptions: | |
Taxes and Assessment Details
Values
| (+) Improvement Homesite Value: | + | $0 | |
| (+) Improvement Non-Homesite Value: | + | $51,412 | |
| (+) Land Homesite Value: | + | $0 | |
| (+) Land Non-Homesite Value: | + | $300,000 | |
| (+) Curr Use (HS): | + | $0 | $0 |
| (+) Curr Use (NHS): | + | $0 | $0 |
| | | -------------------------- | |
| (=) Market Value: | = | $351,412 | |
| (–) Productivity Loss: | – | $0 | |
| | | -------------------------- | |
| (=) Subtotal: | = | $351,412 | |
| (+) Senior Appraised Value: | + | $0 | |
| (+) Non-Senior Appraised Value: | + | $351,412 | |
| | | -------------------------- | |
| (=) Total Appraised Value: | = | $351,412 | |
| (–) Senior Exemption Loss: | – | $0 | |
| (–) Exemption Loss: | – | $0 | |
| | | -------------------------- | |
| (=) Taxable Value: | = | $351,412 | |
Taxing Jurisdiction
| Owner: | BOOTH, LAUREL A | | |
| % Ownership: | 100.0000000000% | | |
| Total Value: | $351,412 | | |
| Tax Area: | 112 - APPRAISER-OH Schl Dist, outside OH, improved, greater than 1 acre |
| CF | Conservation Futures | 0.0316035091 | $351,412 | $351,412 | $11.11 | | |
| CEM1 | Cemetery #1 | 0.0040320932 | $351,412 | $351,412 | $1.42 | | |
| FIRE2 | Fire & Rescue Dist #2 N Whidbey GEN | 0.5475949600 | $351,412 | $351,412 | $192.43 | | |
| HOBOND | Hospital BOND | 0.1910887512 | $351,412 | $351,412 | $67.15 | | |
| HOGEN | Hospital GEN | 0.3902502903 | $351,412 | $351,412 | $137.14 | | |
| CE | County Current Expense | 0.3708482477 | $351,412 | $351,412 | $130.32 | | |
| CR | County Roads | 0.4584763726 | $351,412 | $351,412 | $161.11 | | |
| ISLANDEMS | Hospital GEN (EMS) | 0.5000000000 | $351,412 | $351,412 | $175.71 | | |
| LIB | Library Sno-Isle GEN | 0.3153421757 | $351,412 | $351,412 | $110.82 | | |
| NWHIDPRMT | P & R N Whidbey GEN | 0.2004466701 | $351,412 | $351,412 | $70.44 | | |
| SCH201MO | School 201 Enrichment | 1.8559231640 | $351,412 | $351,412 | $652.19 | | |
| ST | State School | 1.3035497053 | $351,412 | $351,412 | $458.08 | | |
| ST2 | State School Part 2 | 0.8169543533 | $351,412 | $351,412 | $287.09 | | |
| | Total Tax Rate: | 6.9861102925 | | | | | |
| | | | | Taxes w/Current Exemptions: | $2,455.01 | | |
| | | | | Taxes w/o Exemptions: | $2,455.01 | | |
Improvement / Building
| Improvement #1: | MANUFACTURED HOME | State Code: | Y | 1426.8 sqft | Value: | $51,412 |
| Bathrooms: | 0 | Bedrooms: | 0 | | Ceiling: | PLASTER PAINTED | Cooling: | EVAP NO DUCT | | Exterior Wall/Cover: | VINYL | Floor Covering: | CARPET 100% | | Floor Structure: | SLAB ON GRADE | Foundation: | SLAB | | Heating: | FHA ELECTRIC | Interior Finish: | PLASTER | | Plumbing Fixture Cnt: | 1 | Roof Slope: | FLAT | | Roof Structure/Cover: | CJ ALUMINIUM HEAVY |   |   |
|
| | Type | Description | Class CD | Sub Class CD | Year Built | Area |
| | BAS | BASE/MAIN FLOOR | 4 | 0 | 1986 | 1426.8 |
| | OWP | OPEN WOOD PORCH W/STEPS | 4 | 0 | 1986 | 222.0 |
Sketch
Property Image
Land
| 1 | 32 | AC (03.01-09.99) | 3.0300 | 0.00 | 0.00 | 0.00 | 1.00 | $300,000 | $0 |
Roll Value History
| 2026 | N/A | N/A | N/A | N/A | N/A |
| 2025 | $51,412 | $300,000 | $0 | $351,412 | $351,412 |
| 2024 | $54,528 | $280,000 | $0 | $334,528 | $334,528 |
| 2023 | $51,481 | $270,000 | $0 | $321,481 | $321,481 |
| 2022 | $42,847 | $240,000 | $0 | $282,847 | $282,847 |
| 2021 | $39,117 | $175,000 | $0 | $214,117 | $214,117 |
| 2020 | $39,785 | $140,000 | $0 | $179,785 | $179,785 |
| 2019 | $32,766 | $200,000 | $0 | $232,766 | $232,766 |
| 2018 | $34,191 | $175,000 | $0 | $209,191 | $209,191 |
| 2017 | $36,329 | $140,000 | $0 | $176,329 | $176,329 |
| 2016 | $38,191 | $140,000 | $0 | $178,191 | $178,191 |
| 2015 | $39,632 | $120,000 | $0 | $159,632 | $159,632 |
| 2014 | $41,074 | $75,000 | $0 | $116,074 | $116,074 |
| 2013 | $43,235 | $45,675 | $0 | $88,910 | $88,910 |
| 2012 | $44,676 | $45,675 | $0 | $90,351 | $90,351 |
| 2011 | $46,117 | $50,750 | $0 | $96,867 | $96,867 |
| 2010 | $57,009 | $50,750 | $0 | $107,759 | $107,759 |
| 2009 | $60,161 | $50,750 | $0 | $110,911 | $110,911 |
| 2008 | $60,432 | $60,212 | $0 | $120,644 | $120,644 |
| 2007 | $62,160 | $89,385 | $0 | $151,545 | $151,545 |
Deed and Sales History
| 1 | 10/01/1993 | OTHER | Other - Misc. Documents | SIMON, WILLIAM F | BOOTH, LAUREL A | | | $0.00 | 65598 | 0 |
| 2 | 11/01/1986 | OTHER | Other - Misc. Documents | BOOTH, DOROTHY M | SIMON, WILLIAM F | | | $32,000.00 | 11111111 | 0 |
| 3 | 04/01/1986 | WD | Warranty Deed | GIVENS, GARY | BOOTH, DOROTHY M | | | $20,000.00 | 60964 | 86004482 |
| 4 | 04/01/1986 | QCD | Quit Claim Deed | BOOTH, DOROTHY M | BOOTH, DOROTHY M | | | $0.00 | 60965 | 86004483 |
| 5 | 01/01/1900 | OTHER | Other - Misc. Documents | Unknown | GIVENS, GARY | | | $0.00 | 0 | 0 |
Payout Agreement
| No payout information available.. |