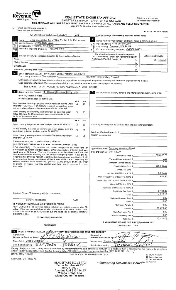
Property
Account |
| Property ID: | 57770 | Abbreviated Legal Description: | 12 - NE SW NW |
| Geographic ID: | R22923-368-0950 | Agent Code: | |
| Type: | Real | | |
| Tax Area: | 712 - APPRAISER-S Whid Schl Dist, outside Langley, improved, greater than 1 acre | Land Use Code | 11 |
| Open Space: | N | DFL | N |
| Historic Property: | N | Remodel Property: | N |
| Multi-Family Redevelopment: | N | | |
| Township: | 29 | Section: | 23 |
| Range: | R2 |
Location |
| Address: | 6125 MORGAN RD FREELAND, WA 98249 | Mapsco: | |
| Neighborhood: | Cycle 3 | Map ID: | 340 |
| Neighborhood CD: | 3 |
Owner |
| Name: | WARREN, MISTY | Owner ID: | 277939 |
| Mailing Address: | 6125 MORGAN RD FREELAND, WA 98249 | % Ownership: | 100.0000000000% |
| | | Exemptions: | |
Taxes and Assessment Details
Values
| (+) Improvement Homesite Value: | + | $0 | |
| (+) Improvement Non-Homesite Value: | + | $279,027 | |
| (+) Land Homesite Value: | + | $0 | |
| (+) Land Non-Homesite Value: | + | $400,000 | |
| (+) Curr Use (HS): | + | $0 | $0 |
| (+) Curr Use (NHS): | + | $0 | $0 |
| | | -------------------------- | |
| (=) Market Value: | = | $679,027 | |
| (–) Productivity Loss: | – | $0 | |
| | | -------------------------- | |
| (=) Subtotal: | = | $679,027 | |
| (+) Senior Appraised Value: | + | $0 | |
| (+) Non-Senior Appraised Value: | + | $679,027 | |
| | | -------------------------- | |
| (=) Total Appraised Value: | = | $679,027 | |
| (–) Senior Exemption Loss: | – | $0 | |
| (–) Exemption Loss: | – | $0 | |
| | | -------------------------- | |
| (=) Taxable Value: | = | $679,027 | |
Taxing Jurisdiction
| Owner: | WARREN, MISTY | | |
| % Ownership: | 100.0000000000% | | |
| Total Value: | $679,027 | | |
| Tax Area: | 712 - APPRAISER-S Whid Schl Dist, outside Langley, improved, greater than 1 acre |
| CF | Conservation Futures | 0.0316035091 | $679,027 | $679,027 | $21.46 | | |
| FIRE3 | Fire & Rescue Dist #3 S Whidbey GEN | 1.2004855531 | $679,027 | $679,027 | $815.16 | | |
| HOBOND | Hospital BOND | 0.1910887512 | $679,027 | $679,027 | $129.75 | | |
| HOGEN | Hospital GEN | 0.3902502903 | $679,027 | $679,027 | $264.99 | | |
| CE | County Current Expense | 0.3708482477 | $679,027 | $679,027 | $251.82 | | |
| CR | County Roads | 0.4584763726 | $679,027 | $679,027 | $311.32 | | |
| ISLANDEMS | Hospital GEN (EMS) | 0.5000000000 | $679,027 | $679,027 | $339.51 | | |
| LIB | Library Sno-Isle GEN | 0.3153421757 | $679,027 | $679,027 | $214.13 | | |
| PORTWHID | Port of S Whidbey GEN | 0.1094540357 | $679,027 | $679,027 | $74.32 | | |
| SCH206BOND | School 206 BOND | 0.3161759235 | $679,027 | $679,027 | $214.69 | | |
| SCH206MO | School 206 Enrichment | 0.4547169547 | $679,027 | $679,027 | $308.77 | | |
| ST | State School | 1.3035497053 | $679,027 | $679,027 | $885.15 | | |
| ST2 | State School Part 2 | 0.8169543533 | $679,027 | $679,027 | $554.73 | | |
| SWHIDPRBD | P & R S Whidbey BOND | 0.0152817568 | $679,027 | $679,027 | $10.38 | | |
| SWHIDPRBD2 | P & R S Whidbey BOND2 | 0.0138911264 | $679,027 | $679,027 | $9.43 | | |
| SWHIDPRMT | P & R S Whidbey GEN | 0.2053334452 | $679,027 | $679,027 | $139.43 | | |
| | Total Tax Rate: | 6.6934522006 | | | | | |
| | | | | Taxes w/Current Exemptions: | $4,545.04 | | |
| | | | | Taxes w/o Exemptions: | $4,545.04 | | |
Improvement / Building
| Improvement #1: | RESIDENTIAL | State Code: | Y | 2038.5 sqft | Value: | $279,027 |
| Bathrooms: | 2.25 | Bedrooms: | 2 | | Ceiling: | BEAM PAINTED | Cooling: | HEAT PUMP/CONV/V | | Exterior Wall/Cover: | SHINGLE | Floor Covering: | HARDWOOD/CARP 20-80 | | Floor Structure: | WOOD W/SUBFLOOR | Foundation: | CONCRETE BLOCKS | | Interior Finish: | DRYWALL PAINT | Plumbing Fixture Cnt: | 11 | | Roof Slope: | 4" IN 12" | Roof Structure/Cover: | BEAM ALUMINUM HEAVY |
|
| | Type | Description | Class CD | Sub Class CD | Year Built | Area |
| | BAS | BASE/MAIN FLOOR | 3 | 0 | 1975 | 1725.5 |
| | BGR | BASEMENT GARAGE | 3 | 0 | 1975 | 789.0 |
| | ENP | ENCLOSED PORCH | 3 | 0 | 1975 | 165.0 |
| | OWP | OPEN WOOD PORCH W/STEPS | 3 | 0 | 1975 | 392.0 |
| | OWR | OPEN WOOD PORCH W/STEPS/ROOF | 3 | 0 | 1975 | 147.0 |
| | ENP | ENCLOSED PORCH | 3 | 0 | 1975 | 97.5 |
| | LOF | LOFT | 3 | 0 | 1975 | 313.0 |
Sketch
Property Image
Land
| 1 | 35 | AC (10.00-30.99) | 10.0000 | 435600.00 | 0.00 | 0.00 | 1.00 | $400,000 | $0 |
Roll Value History
| 2026 | N/A | N/A | N/A | N/A | N/A |
| 2025 | $279,027 | $400,000 | $0 | $679,027 | $679,027 |
| 2024 | $278,955 | $360,000 | $0 | $638,955 | $638,955 |
| 2023 | $283,586 | $350,000 | $0 | $633,586 | $633,586 |
| 2022 | $260,982 | $230,000 | $0 | $490,982 | $490,982 |
| 2021 | $230,595 | $230,000 | $0 | $460,595 | $460,595 |
| 2020 | $169,674 | $190,000 | $0 | $359,674 | $359,674 |
| 2019 | $123,069 | $300,000 | $0 | $423,069 | $423,069 |
| 2018 | $123,539 | $245,000 | $0 | $368,539 | $368,539 |
| 2017 | $124,481 | $190,000 | $0 | $314,481 | $314,481 |
| 2016 | $135,426 | $150,000 | $0 | $285,426 | $285,426 |
| 2015 | $137,447 | $175,000 | $0 | $312,447 | $312,447 |
| 2014 | $139,469 | $130,000 | $0 | $269,469 | $269,469 |
| 2013 | $143,675 | $130,000 | $0 | $273,675 | $273,675 |
| 2012 | $145,674 | $130,000 | $0 | $275,674 | $275,674 |
| 2011 | $147,672 | $130,000 | $0 | $277,672 | $277,672 |
| 2010 | $147,141 | $130,000 | $0 | $277,141 | $277,141 |
| 2009 | $154,183 | $260,000 | $0 | $414,183 | $414,183 |
| 2008 | $154,419 | $268,250 | $0 | $422,669 | $422,669 |
| 2007 | $154,789 | $268,250 | $0 | $423,039 | $423,039 |
Deed and Sales History
| 1 | 10/26/2023 | QCD | Quit Claim Deed | WARREN, WILLIAM | WARREN, MISTY | | | $0.00 | 58411 | 4566367 |
| 2 | 12/16/2016 | WD | Warranty Deed | PERMENTER, RHONDA Z | WARREN, MISTY | | | $315,000.00 | 27390 | 4413541 |
|   | |
| 3 | 05/04/2016 | PRD | Personal Representatives Deed | PERMENTER, TERRY O | PERMENTER, RHONDA Z | | | $0.00 | 24141 | 4398651 |
| 4 | 03/01/1983 | WD | Warranty Deed | PERMENTER, THOMAS A | PERMENTER, TERRY O | | | $47,500.00 | 30703 | 407344 |
| 5 | 02/01/1983 | QCD | Quit Claim Deed | PERMENTER, THOMAS A | PERMENTER, THOMAS A | | | $0.00 | 30702 | 407343 |
| 6 | 01/01/1900 | OTHER | Other - Misc. Documents | Unknown | PERMENTER, THOMAS A | | | $0.00 | 0 | 0 |
Payout Agreement
| No payout information available.. |