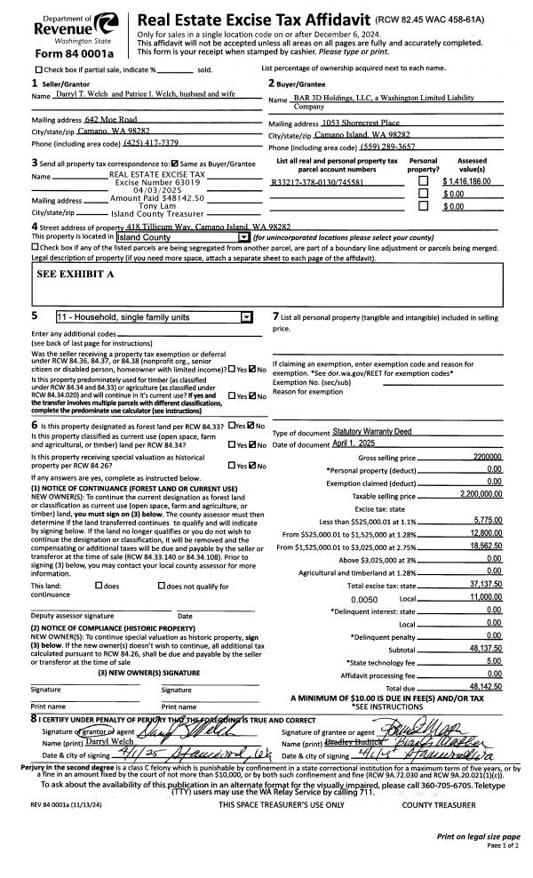
Property
Account |
| Property ID: | 577824 | Abbreviated Legal Description: | LOT 19 SP 84-14.13230.436-3750,358 2590 & 370-3400 V2 SP P45 AF#86009249 SUB SCENIC EZ EX PT TO IS CO AF#86012552 EX P |
| Geographic ID: | R13230-370-3400 | Agent Code: | |
| Type: | Real | | |
| Tax Area: | 332 - APPRAISER-Cpvl Schl Dist, Special Dist, improved, greater than 1 acre | Land Use Code | 94 |
| Open Space: | Y | DFL | N |
| Historic Property: | N | Remodel Property: | N |
| Multi-Family Redevelopment: | N | | |
| Township: | 32 | Section: | 30 |
| Range: | R1 |
Location |
| Address: | 655 ZYLSTRA RD COUPEVILLE, WA 98239 | Mapsco: | |
| Neighborhood: | Cycle 2 | Map ID: | 165 |
| Neighborhood CD: | 2 |
Owner |
| Name: | MILLER, CLAYTON W | Owner ID: | 262041 |
| Mailing Address: | BEVERLY J MILLER 655 ZYLSTRA RD COUPEVILLE, WA 98239 | % Ownership: | 100.0000000000% |
| | | Exemptions: | |
Taxes and Assessment Details
Values
| (+) Improvement Homesite Value: | + | $0 | |
| (+) Improvement Non-Homesite Value: | + | $740,830 | |
| (+) Land Homesite Value: | + | $0 | |
| (+) Land Non-Homesite Value: | + | $355,473 | |
| (+) Curr Use (HS): | + | $0 | $0 |
| (+) Curr Use (NHS): | + | $59,658 | $5,966 |
| | | -------------------------- | |
| (=) Market Value: | = | $1,155,961 | |
| (–) Productivity Loss: | – | $53,692 | |
| | | -------------------------- | |
| (=) Subtotal: | = | $1,102,269 | |
| (+) Senior Appraised Value: | + | $0 | |
| (+) Non-Senior Appraised Value: | + | $1,102,269 | |
| | | -------------------------- | |
| (=) Total Appraised Value: | = | $1,102,269 | |
| (–) Senior Exemption Loss: | – | $0 | |
| (–) Exemption Loss: | – | $0 | |
| | | -------------------------- | |
| (=) Taxable Value: | = | $1,102,269 | |
Taxing Jurisdiction
| Owner: | MILLER, CLAYTON W | | |
| % Ownership: | 100.0000000000% | | |
| Total Value: | $1,155,961 | | |
| Tax Area: | 332 - APPRAISER-Cpvl Schl Dist, Special Dist, improved, greater than 1 acre |
| CF | Conservation Futures | 0.0316035091 | $1,102,269 | $1,102,269 | $34.84 | | |
| CEM2 | Cemetery #2 | 0.0095056933 | $1,102,269 | $1,102,269 | $10.48 | | |
| FIRE2 | Fire & Rescue Dist #2 N Whidbey GEN | 0.5475949600 | $1,102,269 | $1,102,269 | $603.60 | | |
| HOBOND | Hospital BOND | 0.1910887512 | $1,102,269 | $1,102,269 | $210.63 | | |
| HOGEN | Hospital GEN | 0.3902502903 | $1,102,269 | $1,102,269 | $430.16 | | |
| CE | County Current Expense | 0.3708482477 | $1,102,269 | $1,102,269 | $408.77 | | |
| CR | County Roads | 0.4584763726 | $1,102,269 | $1,102,269 | $505.36 | | |
| ISLANDEMS | Hospital GEN (EMS) | 0.5000000000 | $1,102,269 | $1,102,269 | $551.13 | | |
| LIB | Library Sno-Isle GEN | 0.3153421757 | $1,102,269 | $1,102,269 | $347.59 | | |
| LIBCAP | Library Sno-Isle BOND (Cap Fac Imp Area) | 0.0543427938 | $1,102,269 | $1,102,269 | $59.90 | | |
| POCOUP | Port of Coupeville GEN | 0.1093371703 | $1,102,269 | $1,102,269 | $120.52 | | |
| POCOUPIDD | Port of Coupeville IDD | 0.3409740022 | $1,102,269 | $1,102,269 | $375.85 | | |
| COUPSDTECH | School 204 CP (TECH) | 0.7545480007 | $1,102,269 | $1,102,269 | $831.71 | | |
| SCH204MO | School 204 Enrichment | 0.6716186034 | $1,102,269 | $1,102,269 | $740.30 | | |
| ST | State School | 1.3035497053 | $1,102,269 | $1,102,269 | $1,436.86 | | |
| ST2 | State School Part 2 | 0.8169543533 | $1,102,269 | $1,102,269 | $900.50 | | |
| | Total Tax Rate: | 6.8660346289 | | | | | |
| | | | | Taxes w/Current Exemptions: | $7,568.20 | | |
| | | | | Taxes w/o Exemptions: | $7,568.20 | | |
Improvement / Building
| Improvement #1: | RESIDENTIAL | State Code: | Y | 3627.3 sqft | Value: | $740,830 |
| Bathrooms: | 3.25 | Bedrooms: | 5 | | Ceiling: | DRYWALL PAINTED | Cooling: | PACKAGE HEAT & COOL | | Exterior Wall/Cover: | CEMENT FIBER | Floor Covering: | CARPET/VINYL 60-40 | | Floor Structure: | WOOD W/SUBFLOOR | Foundation: | CONCRETE | | Interior Finish: | DRYWALL PAINT | Plumbing Fixture Cnt: | 16 | | Roof Slope: | 10" IN 12" | Roof Structure/Cover: | CJ ASPHALT |
|
| | Type | Description | Class CD | Sub Class CD | Year Built | Area |
| | BAS | BASE/MAIN FLOOR | 4 | 0 | 2005 | 1902.0 |
| | DWN | DOWNSTAIRS LIVING AREA | 4 | 0 | 2005 | 728.8 |
| | DGR | DETACHED GARAGE | 4 | 0 | 2005 | 823.4 |
| | UPS | UPPER STORY | 4 | 0 | 2005 | 996.5 |
| | OWP | OPEN WOOD PORCH W/STEPS | 4 | 0 | 2005 | 252.0 |
| | OWC | OPEN WOOD PORCH W/STEPS/ROOF/C | 4 | 0 | 2005 | 80.0 |
| | UTY | STORAGE/UTILITY | 4 | 0 | 2005 | 408.8 |
| | CPD | OPEN CARPORT DIRT FLOOR | 4 | 0 | 2005 | 392.0 |
| | OWP | OPEN WOOD PORCH W/STEPS | 4 | 0 | 2005 | 239.5 |
Sketch
| No sketches available for this property. |
Property Image
Land
| 1 | HS | HOMESITE | 1.0000 | 43560.00 | 0.00 | 0.00 | 1.00 | $340,000 | $0 |
| 2 | 97 | PUBLIC BENEFIT | 7.2100 | 314067.60 | 0.00 | 0.00 | 1.00 | $59,658 | $5,966 |
| 3 | 91 | UNDEVELOPED LAND-METES AND BOUNDS | 1.8700 | 81457.20 | 0.00 | 0.00 | 1.00 | $15,473 | $0 |
Roll Value History
| 2026 | N/A | N/A | N/A | N/A | N/A |
| 2025 | $740,830 | $415,131 | $5,966 | $1,102,269 | $1,102,269 |
| 2024 | $790,730 | $360,000 | $2,798 | $1,125,553 | $1,125,553 |
| 2023 | $806,866 | $380,180 | $29,694 | $919,805 | $919,805 |
| 2022 | $613,714 | $340,180 | $26,645 | $714,091 | $714,091 |
| 2021 | $540,058 | $315,180 | $24,740 | $632,583 | $632,583 |
| 2020 | $527,996 | $315,180 | $24,740 | $620,521 | $620,521 |
| 2019 | $447,061 | $330,180 | $25,883 | $544,297 | $544,297 |
| 2018 | $454,232 | $260,180 | $20,548 | $529,484 | $529,484 |
| 2017 | $456,712 | $280,180 | $22,072 | $538,245 | $538,245 |
| 2016 | $461,962 | $280,180 | $22,072 | $543,495 | $543,495 |
| 2015 | $467,211 | $250,000 | $19,054 | $545,726 | $545,726 |
| 2014 | $472,462 | $230,720 | $17,585 | $544,922 | $544,922 |
| 2013 | $477,711 | $230,720 | $17,585 | $550,171 | $550,171 |
| 2012 | $483,241 | $230,720 | $17,584 | $555,700 | $555,700 |
| 2011 | $488,492 | $302,720 | $23,040 | $583,532 | $583,532 |
| 2010 | $0 | $230,720 | $23,040 | $23,040 | $23,040 |
| 2009 | $0 | $266,770 | $26,677 | $26,677 | $26,677 |
| 2008 | $0 | $266,770 | $26,677 | $26,677 | $26,677 |
| 2007 | $0 | $101,360 | $101,360 | $10,516 | $10,516 |
Deed and Sales History
| 1 | 04/18/2024 | EZ | Easement | MILLER, CLAYTON W | WAVEDIVISION HOLDINGS, LLC | | | $1,000.00 | 60011 | 4572506 |
| 2 | 04/02/2024 | EZ | Easement | MILLER, CLAYTON W | ZIPLY FIBER NORTHWEST LLC | | | $1,000.00 | 60009 | 4572507 |
| 3 | 02/09/2016 | EZ | Easement | MILLER, CLAYTON W | MILLER, CLAYTON W | | | $500.00 | 24121 | 4398612 |
| 4 | 03/04/2002 | WD | Warranty Deed | ROBERTS, STANFORD D | MILLER, CLAYTON W | | | $85,000.00 | 20863 | 4013307 |
| 5 | 11/01/2000 | WD | Warranty Deed | WELLS ET AL, SAMUEL | ROBERTS, STANFORD D | | | $55,000.00 | 4316 | 20019757 |
| 6 | 05/12/1999 | WD | Warranty Deed | WELLS, SAMUEL E | WELLS ET AL, SAMUEL | | | $12,250.00 | 91970 | 99012507 |
| 7 | 04/01/1996 | QCD | Quit Claim Deed | GULLESSERIAN, JOHN C | EHRLICH, RICHARD M | | | $0.00 | 62379 | 96011755 |
| 8 | 04/01/1996 | QCD | Quit Claim Deed | EHRLICH, RICHARD M | WELLS, SAMUEL E | | | $0.00 | 62378 | 96011756 |
| 9 | 01/01/1990 | WD | Warranty Deed | PENN, COVE A | GULLESSERIAN, JOHN C | | | $85,000.00 | 398 | 90001215 |
| 10 | 04/01/1986 | EZ | Easement | PENN, COVE A | PENN, COVE A | | | $0.00 | 61572 | 86003749 |
| 11 | 12/01/1983 | CD | DNU - Correction Deed | PENN, COVE A | PENN, COVE A | | | $0.00 | 60434 | 418707 |
| 12 | 08/01/1982 | CD | DNU - Correction Deed | Unknown | PENN, COVE A | | | $0.00 | 59608 | 0 |
Payout Agreement
| No payout information available.. |