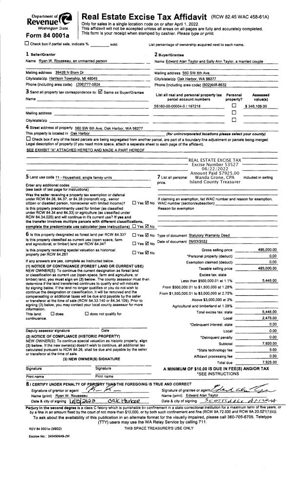
Property
Account |
| Property ID: | 577977 | Abbreviated Legal Description: | MS1:B OF E REPLACES 570-4020 PT SW NW & GL 5: BG SWCR GL 5 N88*E148.85' N0*W434.90' CUR/L 616.46'TPB ALG CUR/L 110' N75*E438.19' S13*E88 .62' S76*W364.92'TPB TR A SP 72-093 |
| Geographic ID: | R33025-370-4020 | Agent Code: | |
| Type: | Real | | |
| Tax Area: | 549 - APPRAISER-Stan/Cam Schl Dist, Special Dist, vacant & 50 acres or less | Land Use Code | 91 |
| Open Space: | N | DFL | N |
| Historic Property: | N | Remodel Property: | N |
| Multi-Family Redevelopment: | N | | |
| Township: | 30 | Section: | 25 |
| Range: | R3 |
Location |
| Address: | CAMANO ISLAND, WA 98282 | Mapsco: | |
| Neighborhood: | 58RecamNB-East Cam | Map ID: | 891 |
| Neighborhood CD: | 58RecamNB |
Owner |
| Name: | KIM TRUSTEE, FRANK H C | Owner ID: | 140009 |
| Mailing Address: | 15 POPLAR CT LAKE FOREST, CA 92630 | % Ownership: | 100.0000000000% |
| | | Exemptions: | |
Taxes and Assessment Details
Values
| (+) Improvement Homesite Value: | + | $0 | |
| (+) Improvement Non-Homesite Value: | + | $0 | |
| (+) Land Homesite Value: | + | $0 | |
| (+) Land Non-Homesite Value: | + | $40,000 | |
| (+) Curr Use (HS): | + | $0 | $0 |
| (+) Curr Use (NHS): | + | $0 | $0 |
| | | -------------------------- | |
| (=) Market Value: | = | $40,000 | |
| (–) Productivity Loss: | – | $0 | |
| | | -------------------------- | |
| (=) Subtotal: | = | $40,000 | |
| (+) Senior Appraised Value: | + | $0 | |
| (+) Non-Senior Appraised Value: | + | $40,000 | |
| | | -------------------------- | |
| (=) Total Appraised Value: | = | $40,000 | |
| (–) Senior Exemption Loss: | – | $0 | |
| (–) Exemption Loss: | – | $0 | |
| | | -------------------------- | |
| (=) Taxable Value: | = | $40,000 | |
Taxing Jurisdiction
| Owner: | KIM TRUSTEE, FRANK H C | | |
| % Ownership: | 100.0000000000% | | |
| Total Value: | $40,000 | | |
| Tax Area: | 549 - APPRAISER-Stan/Cam Schl Dist, Special Dist, vacant & 50 acres or less |
| CF | Conservation Futures | 0.0316035091 | $40,000 | $40,000 | $1.26 | | |
| EMS1 | Fire & Rescue Dist #1 Camano GEN (EMS) | 0.3677864386 | $40,000 | $40,000 | $14.71 | | |
| CE | County Current Expense | 0.3708482477 | $40,000 | $40,000 | $14.83 | | |
| CR | County Roads | 0.4584763726 | $40,000 | $40,000 | $18.34 | | |
| LCIB | Library Sno-Isle BOND (Camano Island) | 0.0396325772 | $40,000 | $40,000 | $1.59 | | |
| LIB | Library Sno-Isle GEN | 0.3153421757 | $40,000 | $40,000 | $12.61 | | |
| SCH205_401 | School 205-401 Enrichment | 1.2698420524 | $40,000 | $40,000 | $50.79 | | |
| SCH205BOND | School 205-401 BOND | 0.9396497583 | $40,000 | $40,000 | $37.59 | | |
| ST | State School | 1.3035497053 | $40,000 | $40,000 | $52.14 | | |
| ST2 | State School Part 2 | 0.8169543533 | $40,000 | $40,000 | $32.68 | | |
| | Total Tax Rate: | 5.9136851902 | | | | | |
| | | | | Taxes w/Current Exemptions: | $236.54 | | |
| | | | | Taxes w/o Exemptions: | $236.54 | | |
Improvement / Building
Sketch
| No sketches available for this property. |
Property Image
Land
| 1 | HB | HIGH BLUFF | 0.8000 | 34848.00 | 89.00 | 0.00 | 1.00 | $40,000 | $0 |
Roll Value History
| 2026 | N/A | N/A | N/A | N/A | N/A |
| 2025 | $0 | $40,000 | $0 | $40,000 | $40,000 |
| 2024 | $0 | $40,000 | $0 | $40,000 | $40,000 |
| 2023 | $0 | $40,000 | $0 | $40,000 | $40,000 |
| 2022 | $0 | $40,000 | $0 | $40,000 | $40,000 |
| 2021 | $0 | $40,000 | $0 | $40,000 | $40,000 |
| 2020 | $0 | $40,000 | $0 | $40,000 | $40,000 |
| 2019 | $0 | $40,000 | $0 | $40,000 | $40,000 |
| 2018 | $0 | $40,000 | $0 | $40,000 | $40,000 |
| 2017 | $0 | $30,000 | $0 | $30,000 | $30,000 |
| 2016 | $0 | $30,000 | $0 | $30,000 | $30,000 |
| 2015 | $0 | $30,000 | $0 | $30,000 | $30,000 |
| 2014 | $0 | $30,000 | $0 | $30,000 | $30,000 |
| 2013 | $0 | $29,729 | $0 | $29,729 | $29,729 |
| 2012 | $0 | $29,729 | $0 | $29,729 | $29,729 |
| 2011 | $0 | $37,161 | $0 | $37,161 | $37,161 |
| 2010 | $0 | $37,161 | $0 | $37,161 | $37,161 |
| 2009 | $0 | $145,771 | $0 | $145,771 | $145,771 |
| 2008 | $0 | $133,299 | $0 | $133,299 | $133,299 |
| 2007 | $0 | $133,299 | $0 | $133,299 | $133,299 |
Deed and Sales History
| 1 | 09/16/1998 | QCD | Quit Claim Deed | KIM, FRANK H | KIM TRSTEE, FRANK H C | | | $0.00 | 84424 | 98024015 |
| 2 | 09/01/1989 | WD | Warranty Deed | SHAW, HENRY E | KIM, FRANK H | | | $15,000.00 | 94084 | 89013523 |
| 3 | 01/01/1900 | OTHER | Other - Misc. Documents | Unknown | SHAW, HENRY E | | | $0.00 | 0 | 0 |
Payout Agreement
| No payout information available.. |