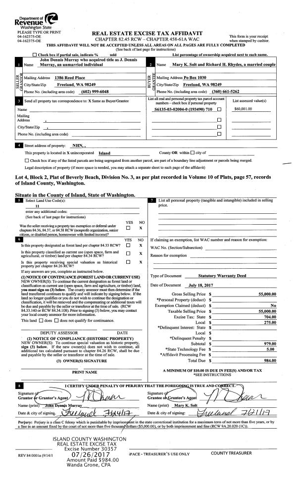
Property
Account |
| Property ID: | 578306 | Abbreviated Legal Description: | 1984 LIBERTY 27X66 VIN# 09L19725XU TPO %80719 |
| Geographic ID: | M90500000033-1 | Agent Code: | |
| Type: | Mobile Home | | |
| Tax Area: | 100 - APPRAISER-OH Schl Dist, in OH | Land Use Code | 11 |
| Open Space: | N | DFL | N |
| Historic Property: | N | Remodel Property: | N |
| Multi-Family Redevelopment: | N | | |
| Township: | | Section: | |
| Range: | |
Location |
| Address: | 1320 N OAK HARBOR ST # 111 OAK HARBOR, WA 98277 | Mapsco: | |
| Neighborhood: | Cycle 1 | Map ID: | |
| Neighborhood CD: | 1 |
Owner |
| Name: | GUZMAN, CRYSTAL | Owner ID: | 280496 |
| Mailing Address: | 1320 N OAK HARBOR ST #111 OAK HARBOR, WA 98277 | % Ownership: | 100.0000000000% |
| | | Exemptions: | |
Taxes and Assessment Details
Values
| (+) Improvement Homesite Value: | + | $0 | |
| (+) Improvement Non-Homesite Value: | + | $23,680 | |
| (+) Land Homesite Value: | + | $0 | |
| (+) Land Non-Homesite Value: | + | $0 | |
| (+) Curr Use (HS): | + | $0 | $0 |
| (+) Curr Use (NHS): | + | $0 | $0 |
| | | -------------------------- | |
| (=) Market Value: | = | $23,680 | |
| (–) Productivity Loss: | – | $0 | |
| | | -------------------------- | |
| (=) Subtotal: | = | $23,680 | |
| (+) Senior Appraised Value: | + | $0 | |
| (+) Non-Senior Appraised Value: | + | $23,680 | |
| | | -------------------------- | |
| (=) Total Appraised Value: | = | $23,680 | |
| (–) Senior Exemption Loss: | – | $0 | |
| (–) Exemption Loss: | – | $0 | |
| | | -------------------------- | |
| (=) Taxable Value: | = | $23,680 | |
Taxing Jurisdiction
| Owner: | GUZMAN, CRYSTAL | | |
| % Ownership: | 100.0000000000% | | |
| Total Value: | $23,680 | | |
| Tax Area: | 100 - APPRAISER-OH Schl Dist, in OH |
| CF | Conservation Futures | 0.0316035091 | $23,680 | $23,680 | $0.75 | | |
| CEM1 | Cemetery #1 | 0.0040320932 | $23,680 | $23,680 | $0.10 | | |
| COH | City of Oak Harbor | 2.3001546061 | $23,680 | $23,680 | $54.47 | | |
| OAKBOND | City of Oak Harbor BOND | 0.1926904192 | $23,680 | $23,680 | $4.56 | | |
| HOBOND | Hospital BOND | 0.1910887512 | $23,680 | $23,680 | $4.52 | | |
| HOGEN | Hospital GEN | 0.3902502903 | $23,680 | $23,680 | $9.24 | | |
| CE | County Current Expense | 0.3708482477 | $23,680 | $23,680 | $8.78 | | |
| ISLANDEMS | Hospital GEN (EMS) | 0.5000000000 | $23,680 | $23,680 | $11.84 | | |
| LIB | Library Sno-Isle GEN | 0.3153421757 | $23,680 | $23,680 | $7.47 | | |
| NWHIDPRMT | P & R N Whidbey GEN | 0.2004466701 | $23,680 | $23,680 | $4.75 | | |
| SCH201MO | School 201 Enrichment | 1.8559231640 | $23,680 | $23,680 | $43.95 | | |
| ST | State School | 1.3035497053 | $23,680 | $23,680 | $30.87 | | |
| ST2 | State School Part 2 | 0.8169543533 | $23,680 | $23,680 | $19.35 | | |
| | Total Tax Rate: | 8.4728839852 | | | | | |
| | | | | Taxes w/Current Exemptions: | $200.65 | | |
| | | | | Taxes w/o Exemptions: | $200.65 | | |
Improvement / Building
| Improvement #1: | MANUFACTURED HOME | State Code: | Y | 1762.0 sqft | Value: | $23,680 |
| Bathrooms: | 0 | Bedrooms: | 0 | | Ceiling: | PLASTER PAINTED | Cooling: | EVAP NO DUCT | | Exterior Wall/Cover: | VINYL | Floor Covering: | CARPET 100% | | Floor Structure: | SLAB ON GRADE | Foundation: | SLAB | | Heating: | FHA ELECTRIC | Interior Finish: | PLASTER | | Plumbing Fixture Cnt: | 1 | Roof Slope: | FLAT | | Roof Structure/Cover: | CJ ALUMINIUM HEAVY |   |   |
|
Sketch
Property Image
Land
No land segments exist for this property.
Roll Value History
| 2026 | N/A | N/A | N/A | N/A | N/A |
| 2025 | $23,680 | $0 | $0 | $23,680 | $23,680 |
| 2024 | $14,734 | $0 | $0 | $14,734 | $14,734 |
| 2023 | $14,015 | $0 | $0 | $14,015 | $14,015 |
| 2022 | $13,113 | $0 | $0 | $13,113 | $13,113 |
| 2021 | $12,137 | $0 | $0 | $12,137 | $12,137 |
| 2020 | $12,497 | $0 | $0 | $12,497 | $12,497 |
| 2019 | $10,689 | $0 | $0 | $10,689 | $10,689 |
| 2018 | $11,251 | $0 | $0 | $11,251 | $11,251 |
| 2017 | $11,814 | $0 | $0 | $11,814 | $11,814 |
| 2016 | $12,376 | $0 | $0 | $12,376 | $12,376 |
| 2015 | $12,939 | $0 | $0 | $12,939 | $12,939 |
| 2014 | $13,501 | $0 | $0 | $13,501 | $13,501 |
| 2013 | $14,345 | $0 | $0 | $14,345 | $14,345 |
| 2012 | $14,908 | $0 | $0 | $14,908 | $14,908 |
| 2011 | $21,641 | $0 | $0 | $21,641 | $21,641 |
| 2010 | $22,415 | $0 | $0 | $22,415 | $22,415 |
| 2009 | $23,945 | $0 | $0 | $23,945 | $23,945 |
| 2008 | $24,862 | $0 | $0 | $24,862 | $24,862 |
| 2007 | $25,779 | $0 | $0 | $25,779 | $25,779 |
Deed and Sales History
| 1 | 11/21/2016 | MANHOME | Manufactured Home | DRAKE, CHELSEA | GUZMAN, CRYSTAL | | | $8,000.00 | 29847 | |
| 2 | 01/20/2013 | MANHOME | Manufactured Home | DAVIS, WANDA | DRAKE, CHELSEA | | | $1,000.00 | 23758 | |
| 3 | 09/09/2010 | | | KESTREL LLC | DAVIS, WANDA | | | $12,000.00 | 2218 | |
| 4 | 03/02/2010 | OTHER | Other - Misc. Documents | CHURCHILL, GEORGE B | KESTREL LLC, | | | $0.00 | 651 | 0 |
| 5 | 01/14/2003 | TTAXD | Treasurer's Tax Deed | ARMSTRONG, DONALD P | CHURCHILL, GEORGE B | | | $30,565.00 | 30329 | 0 |
| 6 | 09/26/2000 | OTHER | Other - Misc. Documents | Unknown | JORDAN, ALICIA D | | | $34,092.00 | 3679 | 0 |
| 7 | 03/01/1990 | OTHER | Other - Misc. Documents | SHEARER, TONY/SHELLEY D | ARMSTRONG, DONALD P | | | $33,600.00 | 1270 | 0 |
| 8 | 09/01/1983 | OTHER | Other - Misc. Documents | JORDAN, ALICIA D | SHEARER, TONY/SHELLEY D | | | $30,000.00 | 11111111 | 0 |
Payout Agreement
| No payout information available.. |