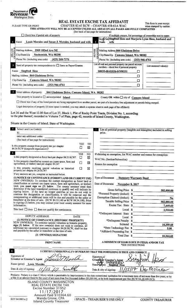
Property
Account |
| Property ID: | 578388 | Abbreviated Legal Description: | IN SE SW EX W718' EX S1008 .60'OF E235'OF SE SW EX RDS FR 067 2370 |
| Geographic ID: | R13205-080-2220 | Agent Code: | |
| Type: | Real | | |
| Tax Area: | 112 - APPRAISER-OH Schl Dist, outside OH, improved, greater than 1 acre | Land Use Code | 11 |
| Open Space: | N | DFL | N |
| Historic Property: | N | Remodel Property: | N |
| Multi-Family Redevelopment: | N | | |
| Township: | 32 | Section: | 05 |
| Range: | R1 |
Location |
| Address: | 2041 ZYLSTRA RD OAK HARBOR, WA 98277 | Mapsco: | |
| Neighborhood: | Cycle 1 | Map ID: | 98 |
| Neighborhood CD: | 1 |
Owner |
| Name: | LARSEN, CARL M | Owner ID: | 70283 |
| Mailing Address: | 2368 ZYLSTRA RD OAK HARBOR, WA 98277-7111 | % Ownership: | 100.0000000000% |
| | | Exemptions: | |
Taxes and Assessment Details
Values
| (+) Improvement Homesite Value: | + | $0 | |
| (+) Improvement Non-Homesite Value: | + | $34,400 | |
| (+) Land Homesite Value: | + | $0 | |
| (+) Land Non-Homesite Value: | + | $240,000 | |
| (+) Curr Use (HS): | + | $0 | $0 |
| (+) Curr Use (NHS): | + | $0 | $0 |
| | | -------------------------- | |
| (=) Market Value: | = | $274,400 | |
| (–) Productivity Loss: | – | $0 | |
| | | -------------------------- | |
| (=) Subtotal: | = | $274,400 | |
| (+) Senior Appraised Value: | + | $0 | |
| (+) Non-Senior Appraised Value: | + | $274,400 | |
| | | -------------------------- | |
| (=) Total Appraised Value: | = | $274,400 | |
| (–) Senior Exemption Loss: | – | $0 | |
| (–) Exemption Loss: | – | $0 | |
| | | -------------------------- | |
| (=) Taxable Value: | = | $274,400 | |
Taxing Jurisdiction
| Owner: | LARSEN, CARL M | | |
| % Ownership: | 100.0000000000% | | |
| Total Value: | $274,400 | | |
| Tax Area: | 112 - APPRAISER-OH Schl Dist, outside OH, improved, greater than 1 acre |
| CF | Conservation Futures | 0.0316035091 | $274,400 | $274,400 | $8.67 | | |
| CEM1 | Cemetery #1 | 0.0040320932 | $274,400 | $274,400 | $1.11 | | |
| FIRE2 | Fire & Rescue Dist #2 N Whidbey GEN | 0.5475949600 | $274,400 | $274,400 | $150.26 | | |
| HOBOND | Hospital BOND | 0.1910887512 | $274,400 | $274,400 | $52.43 | | |
| HOGEN | Hospital GEN | 0.3902502903 | $274,400 | $274,400 | $107.08 | | |
| CE | County Current Expense | 0.3708482477 | $274,400 | $274,400 | $101.76 | | |
| CR | County Roads | 0.4584763726 | $274,400 | $274,400 | $125.81 | | |
| ISLANDEMS | Hospital GEN (EMS) | 0.5000000000 | $274,400 | $274,400 | $137.20 | | |
| LIB | Library Sno-Isle GEN | 0.3153421757 | $274,400 | $274,400 | $86.53 | | |
| NWHIDPRMT | P & R N Whidbey GEN | 0.2004466701 | $274,400 | $274,400 | $55.00 | | |
| SCH201MO | School 201 Enrichment | 1.8559231640 | $274,400 | $274,400 | $509.27 | | |
| ST | State School | 1.3035497053 | $274,400 | $274,400 | $357.69 | | |
| ST2 | State School Part 2 | 0.8169543533 | $274,400 | $274,400 | $224.17 | | |
| | Total Tax Rate: | 6.9861102925 | | | | | |
| | | | | Taxes w/Current Exemptions: | $1,916.98 | | |
| | | | | Taxes w/o Exemptions: | $1,916.98 | | |
Improvement / Building
| Improvement #1: | RESIDENTIAL | State Code: | Y | 0.0 sqft | Value: | $34,400 |
| | Type | Description | Class CD | Sub Class CD | Year Built | Area |
| | DGR | DETACHED GARAGE | 3 | 0 | 1900 | 2000.0 |
| | CPD | OPEN CARPORT DIRT FLOOR | 3 | 0 | 1900 | 1440.0 |
Sketch
| No sketches available for this property. |
Property Image
Land
| 1 | 35 | AC (10.00-30.99) | 12.4700 | 543193.20 | 0.00 | 0.00 | 1.00 | $240,000 | $0 |
Roll Value History
| 2026 | N/A | N/A | N/A | N/A | N/A |
| 2025 | $34,400 | $240,000 | $0 | $274,400 | $274,400 |
| 2024 | $34,400 | $240,000 | $0 | $274,400 | $274,400 |
| 2023 | $34,400 | $240,000 | $0 | $274,400 | $274,400 |
| 2022 | $34,400 | $270,000 | $0 | $304,400 | $304,400 |
| 2021 | $34,400 | $255,000 | $0 | $289,400 | $289,400 |
| 2020 | $34,400 | $200,000 | $0 | $234,400 | $234,400 |
| 2019 | $34,400 | $160,000 | $0 | $194,400 | $194,400 |
| 2018 | $34,400 | $150,000 | $0 | $184,400 | $184,400 |
| 2017 | $35,500 | $160,000 | $0 | $195,500 | $195,500 |
| 2016 | $35,500 | $130,000 | $0 | $165,500 | $165,500 |
| 2015 | $35,500 | $130,000 | $0 | $165,500 | $165,500 |
| 2014 | $35,500 | $120,000 | $0 | $155,500 | $155,500 |
| 2013 | $35,500 | $145,899 | $0 | $181,399 | $181,399 |
| 2012 | $35,500 | $145,899 | $0 | $181,399 | $181,399 |
| 2011 | $21,951 | $162,110 | $0 | $184,061 | $184,061 |
| 2010 | $21,951 | $162,110 | $0 | $184,061 | $184,061 |
| 2009 | $22,484 | $149,640 | $0 | $172,124 | $172,124 |
| 2008 | $23,002 | $149,640 | $0 | $172,642 | $172,642 |
| 2007 | $15,601 | $157,747 | $0 | $173,348 | $173,348 |
Deed and Sales History
Payout Agreement
| No payout information available.. |