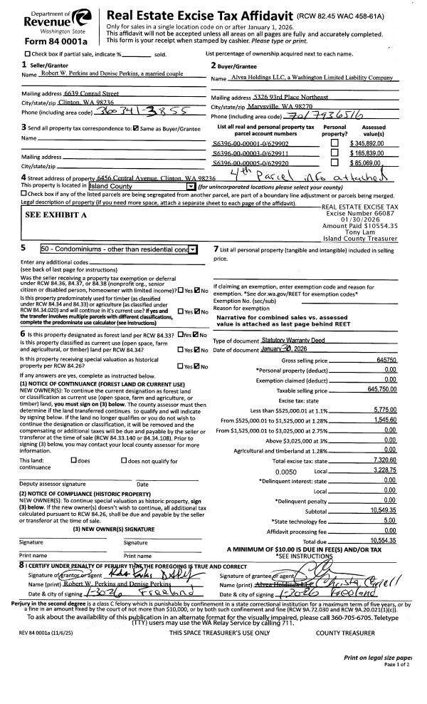
Property
Account |
| Property ID: | 57841 | Abbreviated Legal Description: | STATE ASSESSED TCO 15-85 85 - PT NE NE DESC: BG 8 RODS (132') E OF SWCR SD SUBD E ALG SLN OF SD NE NE 390' N190' W390' S TPB EX ANY PT LY IN FOLL DESC: BG PT 418'S OF NECR SD SUBD S571.4' W624.2' N39*E80' N21*E47.2' N40*E298.9' N54*E105.5' N36*E190' E1 |
| Geographic ID: | R22923-410-4270 | Agent Code: | |
| Type: | Real | | |
| Tax Area: | 719 - APPRAISER-S Whid Schl Dist, outside Langley, vacant & 50 acres or less | Land Use Code | 91 |
| Open Space: | N | DFL | N |
| Historic Property: | N | Remodel Property: | N |
| Multi-Family Redevelopment: | N | | |
| Township: | 29 | Section: | 23 |
| Range: | R2 |
Location |
| Address: | | Mapsco: | |
| Neighborhood: | Cycle 3 | Map ID: | 341 |
| Neighborhood CD: | 3 |
Owner |
| Name: | WHIDBEY TELEPHONE COMPANY | Owner ID: | 202559 |
| Mailing Address: | 14888 SR 525 LANGLEY, WA 98260 | % Ownership: | 100.0000000000% |
| | | Exemptions: | EX |
Taxes and Assessment Details
Values
| (+) Improvement Homesite Value: | + | $0 | |
| (+) Improvement Non-Homesite Value: | + | $0 | |
| (+) Land Homesite Value: | + | $0 | |
| (+) Land Non-Homesite Value: | + | $120,000 | |
| (+) Curr Use (HS): | + | $0 | $0 |
| (+) Curr Use (NHS): | + | $0 | $0 |
| | | -------------------------- | |
| (=) Market Value: | = | $120,000 | |
| (–) Productivity Loss: | – | $0 | |
| | | -------------------------- | |
| (=) Subtotal: | = | $120,000 | |
| (+) Senior Appraised Value: | + | $0 | |
| (+) Non-Senior Appraised Value: | + | $120,000 | |
| | | -------------------------- | |
| (=) Total Appraised Value: | = | $120,000 | |
| (–) Senior Exemption Loss: | – | $0 | |
| (–) Exemption Loss: | – | $120,000 | |
| | | -------------------------- | |
| (=) Taxable Value: | = | $0 | |
Taxing Jurisdiction
| Owner: | WHIDBEY TELEPHONE COMPANY | | |
| % Ownership: | 100.0000000000% | | |
| Total Value: | $120,000 | | |
| Tax Area: | 719 - APPRAISER-S Whid Schl Dist, outside Langley, vacant & 50 acres or less |
| CF | Conservation Futures | 0.0316035091 | $120,000 | $0 | $0.00 | | |
| HOBOND | Hospital BOND | 0.1910887512 | $120,000 | $0 | $0.00 | | |
| HOGEN | Hospital GEN | 0.3902502903 | $120,000 | $0 | $0.00 | | |
| CE | County Current Expense | 0.3708482477 | $120,000 | $0 | $0.00 | | |
| CR | County Roads | 0.4584763726 | $120,000 | $0 | $0.00 | | |
| ISLANDEMS | Hospital GEN (EMS) | 0.5000000000 | $120,000 | $0 | $0.00 | | |
| LIB | Library Sno-Isle GEN | 0.3153421757 | $120,000 | $0 | $0.00 | | |
| PORTWHID | Port of S Whidbey GEN | 0.1094540357 | $120,000 | $0 | $0.00 | | |
| SCH206BOND | School 206 BOND | 0.3161759235 | $120,000 | $0 | $0.00 | | |
| SCH206MO | School 206 Enrichment | 0.4547169547 | $120,000 | $0 | $0.00 | | |
| ST | State School | 1.3035497053 | $120,000 | $0 | $0.00 | | |
| ST2 | State School Part 2 | 0.8169543533 | $120,000 | $0 | $0.00 | | |
| SWHIDPRBD | P & R S Whidbey BOND | 0.0152817568 | $120,000 | $0 | $0.00 | | |
| SWHIDPRBD2 | P & R S Whidbey BOND2 | 0.0138911264 | $120,000 | $0 | $0.00 | | |
| SWHIDPRMT | P & R S Whidbey GEN | 0.2053334452 | $120,000 | $0 | $0.00 | | |
| | Total Tax Rate: | 5.4929666475 | | | | | |
| | | | | Taxes w/Current Exemptions: | $0.00 | | |
| | | | | Taxes w/o Exemptions: | $659.15 | | |
Improvement / Building
Sketch
| No sketches available for this property. |
Property Image
Land
| 1 | 17 | AC (01.01-02.00) | 1.0400 | 45302.40 | 0.00 | 0.00 | 1.00 | $120,000 | $0 |
Roll Value History
| 2026 | N/A | N/A | N/A | N/A | N/A |
| 2025 | $0 | $120,000 | $0 | $120,000 | $0 |
| 2024 | $0 | $120,000 | $0 | $120,000 | $0 |
| 2023 | $0 | $110,000 | $0 | $110,000 | $0 |
| 2022 | $0 | $110,000 | $0 | $110,000 | $0 |
| 2021 | $0 | $90,000 | $0 | $90,000 | $0 |
| 2020 | $0 | $90,000 | $0 | $90,000 | $0 |
| 2019 | $0 | $100,000 | $0 | $100,000 | $0 |
| 2018 | $0 | $100,000 | $0 | $100,000 | $0 |
| 2017 | $0 | $100,000 | $0 | $100,000 | $0 |
| 2016 | $0 | $100,000 | $0 | $100,000 | $0 |
| 2015 | $0 | $60,735 | $0 | $60,735 | $0 |
| 2014 | $0 | $60,735 | $0 | $60,735 | $0 |
| 2013 | $0 | $60,735 | $0 | $60,735 | $0 |
| 2012 | $0 | $60,735 | $0 | $60,735 | $0 |
| 2011 | $0 | $60,735 | $0 | $60,735 | $0 |
| 2010 | $0 | $60,735 | $0 | $60,735 | $60,735 |
| 2009 | $0 | $85,000 | $0 | $85,000 | $85,000 |
| 2008 | $0 | $32,190 | $0 | $32,190 | $32,190 |
| 2007 | $0 | $31,900 | $0 | $31,900 | $31,900 |
Deed and Sales History
| 1 | 02/05/2010 | WD | Warranty Deed | H & H PROPERTIES, INC, | WHIDBEY TELEPHONE COMPANY, | | | $30,000.00 | 288 | 4268495 |
| 2 | 01/01/1900 | OTHER | Other - Misc. Documents | Unknown | H & H PROPERTIES, INC, | | | $0.00 | 0 | 0 |
Payout Agreement
| No payout information available.. |