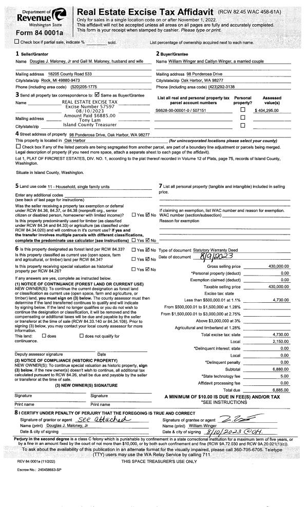
Property
Account |
| Property ID: | 578654 | Abbreviated Legal Description: | N585'OF E/2 E/2 SW NW TGW EZ FR 356-1240 & 305-1080 |
| Geographic ID: | R13302-365-1150 | Agent Code: | |
| Type: | Real | | |
| Tax Area: | 112 - APPRAISER-OH Schl Dist, outside OH, improved, greater than 1 acre | Land Use Code | 11 |
| Open Space: | N | DFL | N |
| Historic Property: | N | Remodel Property: | N |
| Multi-Family Redevelopment: | N | | |
| Township: | 33 | Section: | 02 |
| Range: | R1 |
Location |
| Address: | 730 SOUNDVIEW LN OAK HARBOR, WA 98277 | Mapsco: | |
| Neighborhood: | Cycle 6 | Map ID: | 195 |
| Neighborhood CD: | 6 |
Owner |
| Name: | HAZELO, TIMOTHY S | Owner ID: | 149793 |
| Mailing Address: | MARIA HAZELO 730 SOUNDVIEW LN OAK HARBOR, WA 98277 | % Ownership: | 100.0000000000% |
| | | Exemptions: | |
Taxes and Assessment Details
Values
| (+) Improvement Homesite Value: | + | $0 | |
| (+) Improvement Non-Homesite Value: | + | $304,216 | |
| (+) Land Homesite Value: | + | $0 | |
| (+) Land Non-Homesite Value: | + | $340,000 | |
| (+) Curr Use (HS): | + | $0 | $0 |
| (+) Curr Use (NHS): | + | $0 | $0 |
| | | -------------------------- | |
| (=) Market Value: | = | $644,216 | |
| (–) Productivity Loss: | – | $0 | |
| | | -------------------------- | |
| (=) Subtotal: | = | $644,216 | |
| (+) Senior Appraised Value: | + | $0 | |
| (+) Non-Senior Appraised Value: | + | $644,216 | |
| | | -------------------------- | |
| (=) Total Appraised Value: | = | $644,216 | |
| (–) Senior Exemption Loss: | – | $0 | |
| (–) Exemption Loss: | – | $0 | |
| | | -------------------------- | |
| (=) Taxable Value: | = | $644,216 | |
Taxing Jurisdiction
| Owner: | HAZELO, TIMOTHY S | | |
| % Ownership: | 100.0000000000% | | |
| Total Value: | $644,216 | | |
| Tax Area: | 112 - APPRAISER-OH Schl Dist, outside OH, improved, greater than 1 acre |
| CF | Conservation Futures | 0.0316035091 | $644,216 | $644,216 | $20.36 | | |
| CEM1 | Cemetery #1 | 0.0040320932 | $644,216 | $644,216 | $2.60 | | |
| FIRE2 | Fire & Rescue Dist #2 N Whidbey GEN | 0.5475949600 | $644,216 | $644,216 | $352.77 | | |
| HOBOND | Hospital BOND | 0.1910887512 | $644,216 | $644,216 | $123.10 | | |
| HOGEN | Hospital GEN | 0.3902502903 | $644,216 | $644,216 | $251.41 | | |
| CE | County Current Expense | 0.3708482477 | $644,216 | $644,216 | $238.91 | | |
| CR | County Roads | 0.4584763726 | $644,216 | $644,216 | $295.36 | | |
| ISLANDEMS | Hospital GEN (EMS) | 0.5000000000 | $644,216 | $644,216 | $322.11 | | |
| LIB | Library Sno-Isle GEN | 0.3153421757 | $644,216 | $644,216 | $203.15 | | |
| NWHIDPRMT | P & R N Whidbey GEN | 0.2004466701 | $644,216 | $644,216 | $129.13 | | |
| SCH201MO | School 201 Enrichment | 1.8559231640 | $644,216 | $644,216 | $1,195.62 | | |
| ST | State School | 1.3035497053 | $644,216 | $644,216 | $839.77 | | |
| ST2 | State School Part 2 | 0.8169543533 | $644,216 | $644,216 | $526.30 | | |
| | Total Tax Rate: | 6.9861102925 | | | | | |
| | | | | Taxes w/Current Exemptions: | $4,500.59 | | |
| | | | | Taxes w/o Exemptions: | $4,500.59 | | |
Improvement / Building
| Improvement #1: | RESIDENTIAL | State Code: | Y | 2170.0 sqft | Value: | $304,216 |
| Bathrooms: | 3 | Bedrooms: | 3 | | Ceiling: | DRY WALL SPRAYED | Exterior Wall/Cover: | WOOD SIDING | | Floor Covering: | CARPET/VINYL 80-20 | Floor Structure: | WOOD W/SUBFLOOR | | Foundation: | CONCRETE | Heating: | FHA ELECTRIC | | Interior Finish: | DRYWALL PAINT | Plumbing Fixture Cnt: | 13 | | Roof Slope: | 5" IN 12" | Roof Structure/Cover: | CJ ASPHALT |
|
| | Type | Description | Class CD | Sub Class CD | Year Built | Area |
| | BAS | BASE/MAIN FLOOR | 3 | 0 | 1977 | 1762.0 |
| | UB8 | BASEMENT UNFINISHED 8" | 3 | 0 | 1977 | 970.0 |
| | BGR | BASEMENT GARAGE | 3 | 0 | 1977 | 384.0 |
| | BAW | BALCONY WOOD RAIL | 3 | 0 | 1977 | 96.0 |
| | OWP | OPEN WOOD PORCH W/STEPS | 3 | 0 | 1977 | 671.6 |
| | OWP | OPEN WOOD PORCH W/STEPS | 3 | 0 | 1977 | 32.0 |
| | OWC | OPEN WOOD PORCH W/STEPS/ROOF/C | 3 | 0 | 1977 | 160.0 |
| | DWN | DOWNSTAIRS LIVING AREA | 3 | 0 | 1977 | 408.0 |
Sketch
Property Image
Land
| 1 | 32 | AC (03.01-09.99) | 4.4300 | 0.00 | 0.00 | 0.00 | 1.00 | $340,000 | $0 |
Roll Value History
| 2026 | N/A | N/A | N/A | N/A | N/A |
| 2025 | $304,216 | $340,000 | $0 | $644,216 | $644,216 |
| 2024 | $308,427 | $320,000 | $0 | $628,427 | $628,427 |
| 2023 | $312,638 | $320,000 | $0 | $632,638 | $632,638 |
| 2022 | $279,300 | $300,000 | $0 | $579,300 | $579,300 |
| 2021 | $246,182 | $200,000 | $0 | $446,182 | $446,182 |
| 2020 | $240,200 | $160,000 | $0 | $400,200 | $400,200 |
| 2019 | $181,173 | $220,000 | $0 | $401,173 | $401,173 |
| 2018 | $181,768 | $200,000 | $0 | $381,768 | $381,768 |
| 2017 | $182,956 | $140,000 | $0 | $322,956 | $322,956 |
| 2016 | $164,391 | $140,000 | $0 | $304,391 | $304,391 |
| 2015 | $166,883 | $120,000 | $0 | $286,883 | $286,883 |
| 2014 | $169,372 | $99,675 | $0 | $269,047 | $269,047 |
| 2013 | $171,864 | $99,675 | $0 | $271,539 | $271,539 |
| 2012 | $174,356 | $99,675 | $0 | $274,031 | $274,031 |
| 2011 | $176,846 | $110,750 | $0 | $287,596 | $287,596 |
| 2010 | $186,637 | $110,750 | $0 | $297,387 | $297,387 |
| 2009 | $195,013 | $110,750 | $0 | $305,763 | $305,763 |
| 2008 | $205,483 | $130,685 | $0 | $336,168 | $336,168 |
| 2007 | $205,788 | $130,685 | $0 | $336,473 | $336,473 |
Deed and Sales History
| 1 | 07/22/2002 | TRUSTEED | Trustee's Deed | TRAVELERS BANK & TRUST, FSB, | HAZELO, TIMOTHY S | | | $166,000.00 | 23160 | 4028280 |
| 2 | 12/07/2001 | TRUSTEED | Trustee's Deed | WENTLAND, PAUL D | TRAVELERS BANK & TRUST, FSB, | | | $155,800.00 | 14661 | 4005406 |
| 3 | 03/01/1986 | WD | Warranty Deed | SELTVEIT, ARNE | WENTLAND, PAUL D | | | $99,500.00 | 60528 | 86002630 |
| 4 | 08/01/1984 | EZ | Easement | SELTVEIT, ARNE | SELTVEIT, ARNE | | | $0.00 | 60738 | 424736 |
| 5 | 03/01/1984 | OTHER | Other - Misc. Documents | SELTVEIT, ARNE | SELTVEIT, ARNE | | | $0.00 | 60515 | 401941 |
| 6 | 01/01/1900 | OTHER | Other - Misc. Documents | Unknown | SELTVEIT, ARNE | | | $0.00 | 0 | 0 |
Payout Agreement
| No payout information available.. |