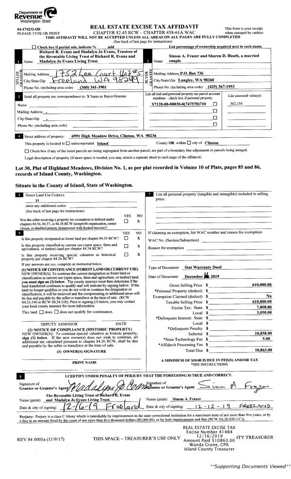
Property
Account |
| Property ID: | 579181 | Abbreviated Legal Description: | 1983 SUPREME 27X49 TPO %88356 VIN# AB7SC19950R |
| Geographic ID: | M91600000003-1 | Agent Code: | |
| Type: | Mobile Home | | |
| Tax Area: | 110 - APPRAISER-OH Schl Dist, outside OH, improved & 1 acre or less | Land Use Code | 11 |
| Open Space: | N | DFL | N |
| Historic Property: | N | Remodel Property: | N |
| Multi-Family Redevelopment: | N | | |
| Township: | | Section: | |
| Range: | |
Location |
| Address: | 2890 N OAK HARBOR RD # 3 OAK HARBOR, WA 98277 | Mapsco: | |
| Neighborhood: | Cycle 6 | Map ID: | |
| Neighborhood CD: | 6 |
Owner |
| Name: | FARAGE, DANIEL JOSEPH | Owner ID: | 292082 |
| Mailing Address: | 2890 N OAK HARBOR RD, TRLR 3 OAK HARBOR, WA 98277 | % Ownership: | 100.0000000000% |
| | | Exemptions: | |
Taxes and Assessment Details
Values
| (+) Improvement Homesite Value: | + | $0 | |
| (+) Improvement Non-Homesite Value: | + | $44,241 | |
| (+) Land Homesite Value: | + | $0 | |
| (+) Land Non-Homesite Value: | + | $0 | |
| (+) Curr Use (HS): | + | $0 | $0 |
| (+) Curr Use (NHS): | + | $0 | $0 |
| | | -------------------------- | |
| (=) Market Value: | = | $44,241 | |
| (–) Productivity Loss: | – | $0 | |
| | | -------------------------- | |
| (=) Subtotal: | = | $44,241 | |
| (+) Senior Appraised Value: | + | $0 | |
| (+) Non-Senior Appraised Value: | + | $44,241 | |
| | | -------------------------- | |
| (=) Total Appraised Value: | = | $44,241 | |
| (–) Senior Exemption Loss: | – | $0 | |
| (–) Exemption Loss: | – | $0 | |
| | | -------------------------- | |
| (=) Taxable Value: | = | $44,241 | |
Taxing Jurisdiction
| Owner: | FARAGE, DANIEL JOSEPH | | |
| % Ownership: | 100.0000000000% | | |
| Total Value: | $44,241 | | |
| Tax Area: | 110 - APPRAISER-OH Schl Dist, outside OH, improved & 1 acre or less |
| CF | Conservation Futures | 0.0316035091 | $44,241 | $44,241 | $1.40 | | |
| CEM1 | Cemetery #1 | 0.0040320932 | $44,241 | $44,241 | $0.18 | | |
| FIRE2 | Fire & Rescue Dist #2 N Whidbey GEN | 0.5475949600 | $44,241 | $44,241 | $24.23 | | |
| HOBOND | Hospital BOND | 0.1910887512 | $44,241 | $44,241 | $8.45 | | |
| HOGEN | Hospital GEN | 0.3902502903 | $44,241 | $44,241 | $17.27 | | |
| CE | County Current Expense | 0.3708482477 | $44,241 | $44,241 | $16.41 | | |
| CR | County Roads | 0.4584763726 | $44,241 | $44,241 | $20.28 | | |
| ISLANDEMS | Hospital GEN (EMS) | 0.5000000000 | $44,241 | $44,241 | $22.12 | | |
| LIB | Library Sno-Isle GEN | 0.3153421757 | $44,241 | $44,241 | $13.95 | | |
| NWHIDPRMT | P & R N Whidbey GEN | 0.2004466701 | $44,241 | $44,241 | $8.87 | | |
| SCH201MO | School 201 Enrichment | 1.8559231640 | $44,241 | $44,241 | $82.11 | | |
| ST | State School | 1.3035497053 | $44,241 | $44,241 | $57.67 | | |
| ST2 | State School Part 2 | 0.8169543533 | $44,241 | $44,241 | $36.14 | | |
| | Total Tax Rate: | 6.9861102925 | | | | | |
| | | | | Taxes w/Current Exemptions: | $309.08 | | |
| | | | | Taxes w/o Exemptions: | $309.08 | | |
Improvement / Building
| Improvement #1: | MANUFACTURED HOME | State Code: | Y | 1323.0 sqft | Value: | $44,241 |
| Bathrooms: | 0 | Bedrooms: | 0 | | Ceiling: | PLASTER PAINTED | Cooling: | EVAP NO DUCT | | Exterior Wall/Cover: | VINYL | Floor Covering: | CARPET 100% | | Floor Structure: | SLAB ON GRADE | Foundation: | SLAB | | Heating: | FHA ELECTRIC | Interior Finish: | PLASTER | | Plumbing Fixture Cnt: | 1 | Roof Slope: | FLAT | | Roof Structure/Cover: | CJ ALUMINIUM HEAVY |   |   |
|
Sketch
Property Image
Land
No land segments exist for this property.
Roll Value History
| 2026 | N/A | N/A | N/A | N/A | N/A |
| 2025 | $44,241 | $0 | $0 | $44,241 | $44,241 |
| 2024 | $46,570 | $0 | $0 | $46,570 | $46,570 |
| 2023 | $53,154 | $0 | $0 | $53,154 | $53,154 |
| 2022 | $24,767 | $0 | $0 | $24,767 | $24,767 |
| 2021 | $22,668 | $0 | $0 | $22,668 | $22,668 |
| 2020 | $23,108 | $0 | $0 | $23,108 | $23,108 |
| 2019 | $19,070 | $0 | $0 | $19,070 | $19,070 |
| 2018 | $19,937 | $0 | $0 | $19,937 | $19,937 |
| 2017 | $20,804 | $0 | $0 | $20,804 | $20,804 |
| 2016 | $25,093 | $0 | $0 | $25,093 | $25,093 |
| 2015 | $26,288 | $0 | $0 | $26,288 | $26,288 |
| 2014 | $27,483 | $0 | $0 | $27,483 | $27,483 |
| 2013 | $28,678 | $0 | $0 | $28,678 | $28,678 |
| 2012 | $30,471 | $0 | $0 | $30,471 | $30,471 |
| 2011 | $31,666 | $0 | $0 | $31,666 | $31,666 |
| 2010 | $41,718 | $0 | $0 | $41,718 | $41,718 |
| 2009 | $44,678 | $0 | $0 | $44,678 | $44,678 |
| 2008 | $46,400 | $0 | $0 | $46,400 | $46,400 |
| 2007 | $48,104 | $0 | $0 | $48,104 | $48,104 |
Deed and Sales History
| 1 | 09/19/2019 | MANHOME | Manufactured Home | GUTIERREZ-BARAJAS, ANA DELIA | FARAGE, DANIEL JOSEPH | | | $51,000.00 | 40541 | |
| 2 | 04/22/2019 | MANHOME | Manufactured Home | MANGAT, HARBHAJAN | GUTIERREZ-BARAJAS, ANA DELIA | | | $35,000.00 | 38104 | |
| 3 | 09/22/2010 | OTHER | Other - Misc. Documents | ARMSTRONG, SCOTT M / | ORIGEN FINACIAL LLC | | | $0.00 | 2357 | |
| 4 | 08/23/2010 | OTHER | Other - Misc. Documents | ORIGEN FINACIAL LLC | MANGAT, HARBHAJAN | | | $3,000.00 | 2358 | |
| 5 | 04/01/1997 | OTHER | Other - Misc. Documents | MOYER, RICHARD E | ARMSTRONG, SCOTT M | | | $29,950.00 | 71270 | 0 |
| 6 | 03/01/1992 | OTHER | Other - Misc. Documents | SCHMIDT, MARK E | MOYER, RICHARD E | | | $32,000.00 | 20992 | 0 |
| 7 | 06/01/1988 | OTHER | Other - Misc. Documents | RUSSELL, TIPTON J | SCHMIDT, MARK E | | | $0.00 | 82006 | 0 |
| 8 | 11/01/1985 | OTHER | Other - Misc. Documents | KENFIELD, JANICE | RUSSELL, TIPTON J | | | $26,500.00 | 53038 | 0 |
| 9 | 01/01/1900 | OTHER | Other - Misc. Documents | Unknown | KENFIELD, JANICE | | | $0.00 | 0 | 0 |
Payout Agreement
| No payout information available.. |