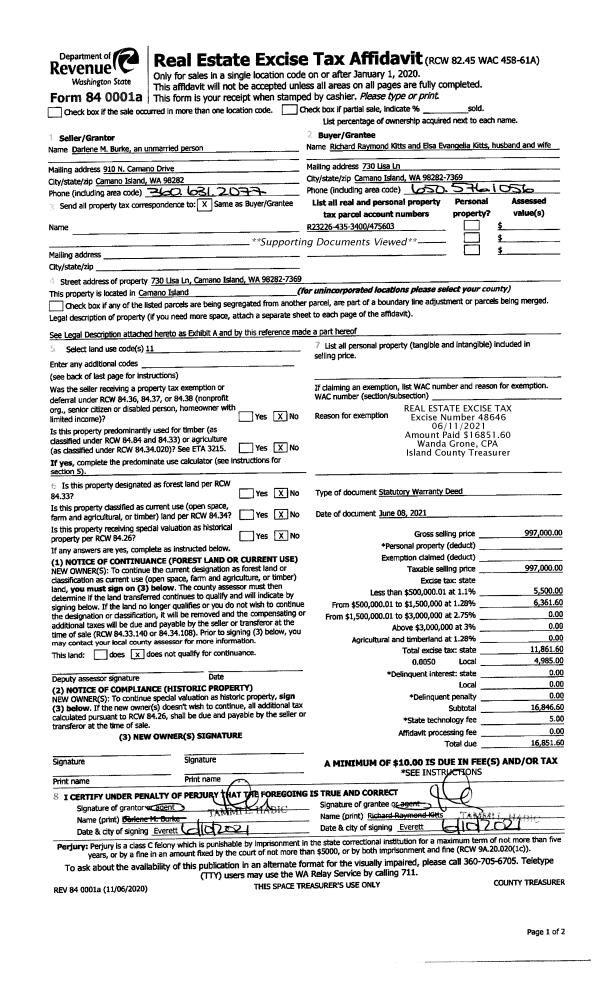
Property
Account |
| Property ID: | 579298 | Abbreviated Legal Description: | LOT 2 SP 83-53-7.33131.296-5300 V1 SP P256 AF#422943 |
| Geographic ID: | R33131-282-5350 | Agent Code: | |
| Type: | Real | | |
| Tax Area: | 542 - APPRAISER-Stan/Cam Schl Dist, Special Dist, improved, greater than 1 acre | Land Use Code | 11 |
| Open Space: | N | DFL | N |
| Historic Property: | N | Remodel Property: | N |
| Multi-Family Redevelopment: | N | | |
| Township: | 31 | Section: | 31 |
| Range: | R3 |
Location |
| Address: | 2185 S SOUTH CAMANO DR CAMANO ISLAND, WA 98282 | Mapsco: | |
| Neighborhood: | Cycle 5 | Map ID: | 943 |
| Neighborhood CD: | 5 |
Owner |
| Name: | HERRING, EDWIN A | Owner ID: | 297714 |
| Mailing Address: | 13725 MCELROY RD ARLINGTON, WA 98223 | % Ownership: | 100.0000000000% |
| | | Exemptions: | |
Taxes and Assessment Details
Values
| (+) Improvement Homesite Value: | + | $0 | |
| (+) Improvement Non-Homesite Value: | + | $50,400 | |
| (+) Land Homesite Value: | + | $0 | |
| (+) Land Non-Homesite Value: | + | $220,000 | |
| (+) Curr Use (HS): | + | $0 | $0 |
| (+) Curr Use (NHS): | + | $0 | $0 |
| | | -------------------------- | |
| (=) Market Value: | = | $270,400 | |
| (–) Productivity Loss: | – | $0 | |
| | | -------------------------- | |
| (=) Subtotal: | = | $270,400 | |
| (+) Senior Appraised Value: | + | $0 | |
| (+) Non-Senior Appraised Value: | + | $270,400 | |
| | | -------------------------- | |
| (=) Total Appraised Value: | = | $270,400 | |
| (–) Senior Exemption Loss: | – | $0 | |
| (–) Exemption Loss: | – | $0 | |
| | | -------------------------- | |
| (=) Taxable Value: | = | $270,400 | |
Taxing Jurisdiction
| Owner: | HERRING, EDWIN A | | |
| % Ownership: | 100.0000000000% | | |
| Total Value: | $270,400 | | |
| Tax Area: | 542 - APPRAISER-Stan/Cam Schl Dist, Special Dist, improved, greater than 1 acre |
| CF | Conservation Futures | 0.0316035091 | $270,400 | $270,400 | $8.55 | | |
| EMS1 | Fire & Rescue Dist #1 Camano GEN (EMS) | 0.3677864386 | $270,400 | $270,400 | $99.45 | | |
| FIRE1 | Fire & Rescue Dist #1 Camano GEN | 1.2502910536 | $270,400 | $270,400 | $338.08 | | |
| FIRE1BOND | Fire & Rescue Dist #1 Camano BOND | 0.1570001679 | $270,400 | $270,400 | $42.45 | | |
| CE | County Current Expense | 0.3708482477 | $270,400 | $270,400 | $100.28 | | |
| CR | County Roads | 0.4584763726 | $270,400 | $270,400 | $123.97 | | |
| LCIB | Library Sno-Isle BOND (Camano Island) | 0.0396325772 | $270,400 | $270,400 | $10.72 | | |
| LIB | Library Sno-Isle GEN | 0.3153421757 | $270,400 | $270,400 | $85.27 | | |
| SCH205_401 | School 205-401 Enrichment | 1.2698420524 | $270,400 | $270,400 | $343.37 | | |
| SCH205BOND | School 205-401 BOND | 0.9396497583 | $270,400 | $270,400 | $254.08 | | |
| ST | State School | 1.3035497053 | $270,400 | $270,400 | $352.48 | | |
| ST2 | State School Part 2 | 0.8169543533 | $270,400 | $270,400 | $220.90 | | |
| | Total Tax Rate: | 7.3209764117 | | | | | |
| | | | | Taxes w/Current Exemptions: | $1,979.60 | | |
| | | | | Taxes w/o Exemptions: | $1,979.60 | | |
Improvement / Building
| Improvement #1: | RESIDENTIAL | State Code: | Y | 0.0 sqft | Value: | $50,400 |
Sketch
Property Image
Land
| 1 | 18 | AC (02.01-03.00) | 2.7700 | 120661.20 | 0.00 | 0.00 | 1.00 | $220,000 | $0 |
Roll Value History
| 2026 | N/A | N/A | N/A | N/A | N/A |
| 2025 | $50,400 | $220,000 | $0 | $270,400 | $270,400 |
| 2024 | $50,400 | $210,000 | $0 | $260,400 | $260,400 |
| 2023 | $50,400 | $200,000 | $0 | $250,400 | $250,400 |
| 2022 | $50,400 | $200,000 | $0 | $250,400 | $250,400 |
| 2021 | $50,400 | $170,000 | $0 | $220,400 | $220,400 |
| 2020 | $42,000 | $120,000 | $0 | $162,000 | $162,000 |
| 2019 | $42,000 | $160,000 | $0 | $202,000 | $202,000 |
| 2018 | $42,000 | $120,000 | $0 | $162,000 | $162,000 |
| 2017 | $42,000 | $135,000 | $0 | $177,000 | $177,000 |
| 2016 | $42,000 | $105,000 | $0 | $147,000 | $147,000 |
| 2015 | $38,808 | $104,000 | $0 | $142,808 | $142,808 |
| 2014 | $38,808 | $104,000 | $0 | $142,808 | $142,808 |
| 2013 | $38,808 | $104,000 | $0 | $142,808 | $142,808 |
| 2012 | $38,808 | $104,000 | $0 | $142,808 | $142,808 |
| 2011 | $38,808 | $130,000 | $0 | $168,808 | $168,808 |
| 2010 | $38,808 | $130,000 | $0 | $168,808 | $168,808 |
| 2009 | $37,152 | $217,500 | $0 | $254,652 | $254,652 |
| 2008 | $38,448 | $217,500 | $0 | $255,948 | $255,948 |
| 2007 | $39,312 | $217,500 | $0 | $256,812 | $256,812 |
Deed and Sales History
| 1 | 01/05/2021 | WD | Warranty Deed | SLOAN, KATRINA M | HERRING, EDWIN A | | | $345,000.00 | 46547 | 4507931 |
| 2 | 06/10/2019 | TOD | Transfer On Death Deed | RAMAGE, KENNETH H | SLOAN, KATRINA M | | | $0.00 | 39805 | 4465119 |
| 3 | 10/22/2018 | QCD | Quit Claim Deed | RAMAGE, KEITH ROBERT | RAMAGE, KENNETH H | | | $0.00 | 36676 | 4455096 |
| 4 | 10/27/2018 | QCD | Quit Claim Deed | SLOAN, KATRINA M | RAMAGE, KENNETH H | | | $0.00 | 36675 | 4455097 |
| 5 | 10/20/2018 | QCD | Quit Claim Deed | RAMAGE, SHARALEE | RAMAGE, KENNETH H | | | $0.00 | 36674 | 4455098 |
| 6 | 06/05/2006 | 5 | DNU - Marriage License/Name Change | RAMAGE, KENNETH H | RAMAGE, KENNETH H | | | $0.00 | 62662 | 4173666 |
| 7 | 04/26/2001 | WD | Warranty Deed | RAMAGE, KENNETH H | RAMAGE, KENNETH H | | | $0.00 | 11551 | 20031384 |
| 8 | 04/26/2001 | WD | Warranty Deed | REED, RODNEY K | RAMAGE, KENNETH H | | | $140,000.00 | 11515 | 20031214 |
| 9 | 05/01/1988 | WD | Warranty Deed | CRAWFORD, GARY C | CRAWFORD, GARY C | | | $0.00 | 81428 | 88005339 |
| 10 | 05/01/1988 | WD | Warranty Deed | CRAWFORD, GARY C | REED, RODNEY K | | | $26,000.00 | 81479 | 88005614 |
| 11 | 03/01/1985 | OTHER | Other - Misc. Documents | CRAWFORD, GARY C | CRAWFORD, GARY C | | | $0.00 | 61091 | 0 |
| 12 | 11/01/1984 | QCD | Quit Claim Deed | CRAWFORD, RONALD W | CRAWFORD, GARY C | | | $15,000.00 | 43197 | 84005109 |
| 13 | 01/01/1976 | EXECUTORD | Executor Deed | Unknown | CRAWFORD, RONALD W | | | $0.00 | 60345 | 0 |
| 14 | 01/01/1900 | OTHER | Other - Misc. Documents | CRAWFORD, RONALD W | CRAWFORD, RONALD W | | | $0.00 | 60557 | 0 |
Payout Agreement
| No payout information available.. |