Property
Account |
| Property ID: | 579751 | Abbreviated Legal Description: | TR 8 - VOL 5 SUR P451 IN W CROCKETT DLC: BG NWCR S CROCKETT DLC S01*W3277.64 N88*W888.38' S01*W584.84' TPB N88*W300' S01*W2116.24' TO CTRLN CROCKETT LAKE ALG CTRLN N70*E321.58' N01*E 1999.91'TPB EX 25'STRIP TO DD#6 AF#71882 FR 200 2870 TGW & SUB TO SCENI |
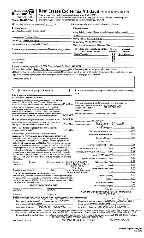
| Geographic ID: | R13115-027-2830 | Agent Code: | |
| Type: | Real | | |
| Tax Area: | 312 - APPRAISER-Cpvl Schl Dist, outside Cpvl, improved, greater than 1 acre | Land Use Code | 94 |
| Open Space: | Y | DFL | N |
| Historic Property: | N | Remodel Property: | N |
| Multi-Family Redevelopment: | N | | |
| Township: | 31 | Section: | 15 |
| Range: | R1 |
Location |
| Address: | 1087 CROCKETT FARM RD COUPEVILLE, WA 98239 | Mapsco: | |
| Neighborhood: | Cycle 2 | Map ID: | 67 |
| Neighborhood CD: | 2 |
Owner |
| Name: | MATTHES, RITA R | Owner ID: | 186104 |
| Mailing Address: | PO BOX 185 COUPEVILLE, WA 98239-0185 | % Ownership: | 100.0000000000% |
| | | Exemptions: | SNR/DSBL |
Taxes and Assessment Details
Values
| (+) Improvement Homesite Value: | + | $593,046 | |
| (+) Improvement Non-Homesite Value: | + | $0 | |
| (+) Land Homesite Value: | + | $340,000 | |
| (+) Land Non-Homesite Value: | + | $0 | |
| (+) Curr Use (HS): | + | $30,906 | $15,453 |
| (+) Curr Use (NHS): | + | $51,074 | $25,537 |
| | | -------------------------- | |
| (=) Market Value: | = | $1,015,026 | |
| (–) Productivity Loss: | – | $40,990 | |
| | | -------------------------- | |
| (=) Subtotal: | = | $974,036 | |
| (+) Senior Appraised Value: | + | $412,516 | |
| (+) Non-Senior Appraised Value: | + | $25,537 | |
| | | -------------------------- | |
| (=) Total Appraised Value: | = | $438,053 | |
| (–) Senior Exemption Loss: | – | $247,510 | |
| (–) Exemption Loss: | – | $0 | |
| | | -------------------------- | |
| (=) Taxable Value: | = | $190,543 | |
Taxing Jurisdiction
| Owner: | MATTHES, RITA R | | |
| % Ownership: | 100.0000000000% | | |
| Total Value: | $1,015,026 | | |
| Tax Area: | 312 - APPRAISER-Cpvl Schl Dist, outside Cpvl, improved, greater than 1 acre |
| CF | Conservation Futures | 0.0316035091 | $974,036 | $190,543 | $6.02 | | |
| CEM2 | Cemetery #2 | 0.0095056933 | $974,036 | $190,543 | $1.81 | | |
| FIRE5 | Fire & Rescue Dist #5 C Whidbey GEN | 1.2008080668 | $974,036 | $190,543 | $228.81 | | |
| FIRE5BOND | Fire & Rescue Dist #5 C Whidbey BOND | 0.0000000000 | $974,036 | $25,537 | $3.58 | | |
| HOBOND | Hospital BOND | 0.0000000000 | $974,036 | $25,537 | $4.88 | | |
| HOGEN | Hospital GEN | 0.3902502903 | $974,036 | $190,543 | $74.36 | | |
| CE | County Current Expense | 0.3708482477 | $974,036 | $190,543 | $70.66 | | |
| CR | County Roads | 0.4584763726 | $974,036 | $190,543 | $87.36 | | |
| ISLANDEMS | Hospital GEN (EMS) | 0.5000000000 | $974,036 | $190,543 | $95.27 | | |
| LIB | Library Sno-Isle GEN | 0.3153421757 | $974,036 | $190,543 | $60.09 | | |
| LIBCAP | Library Sno-Isle BOND (Cap Fac Imp Area) | 0.0000000000 | $974,036 | $25,537 | $1.39 | | |
| POCOUP | Port of Coupeville GEN | 0.1093371703 | $974,036 | $190,543 | $20.83 | | |
| POCOUPIDD | Port of Coupeville IDD | 0.3409740022 | $974,036 | $190,543 | $64.97 | | |
| COUPSDTECH | School 204 CP (TECH) | 0.0000000000 | $974,036 | $25,537 | $19.27 | | |
| SCH204MO | School 204 Enrichment | 0.0000000000 | $974,036 | $25,537 | $17.15 | | |
| ST | State School | 1.3035497053 | $974,036 | $190,543 | $248.38 | | |
| ST2 | State School Part 2 | 0.0000000000 | $974,036 | $25,537 | $20.86 | | |
| | Total Tax Rate: | 5.0306952333 | | | | | |
| | | | | Taxes w/Current Exemptions: | $1,025.69 | | |
| | | | | Taxes w/o Exemptions: | $7,460.38 | | |
Improvement / Building
| Improvement #1: | RESIDENTIAL | State Code: | Y | 2178.2 sqft | Value: | $593,046 |
| Bathrooms: | 3.5 | Bedrooms: | 2 | | Ceiling: | DRYWALL PAINTED | Exterior Wall/Cover: | WOOD SIDING | | Floor Covering: | CARPET 100% | Floor Structure: | WOOD W/SUBFLOOR | | Foundation: | CONCRETE | Heating: | FHA GAS | | Interior Finish: | DRYWALL PAINT | Plumbing Fixture Cnt: | 17 | | Roof Slope: | 8" IN 12" | Roof Structure/Cover: | CJ ALUMINIUM HEAVY |
|
| | Type | Description | Class CD | Sub Class CD | Year Built | Area |
| | BAS | BASE/MAIN FLOOR | 4 | 0 | 2003 | 1536.0 |
| | AGR | ATTACHED GARAGE | 4 | 0 | 2003 | 676.0 |
| | UPS | UPPER STORY | 4 | 0 | 2003 | 642.2 |
| | OWP | OPEN WOOD PORCH W/STEPS | 4 | 0 | 2003 | 416.0 |
| | OWR | OPEN WOOD PORCH W/STEPS/ROOF | 4 | 0 | 2003 | 180.0 |
| | OWC | OPEN WOOD PORCH W/STEPS/ROOF/C | 4 | 0 | 2003 | 96.0 |
| | DGR | DETACHED GARAGE | 4 | 0 | 2003 | 1008.0 |
| | ENP | ENCLOSED PORCH | 4 | 0 | 2003 | 280.0 |
| | UTY | STORAGE/UTILITY | 4 | 0 | 2003 | 110.5 |
| | UTY | STORAGE/UTILITY | 4 | 0 | 2003 | 296.0 |
| | OWP | OPEN WOOD PORCH W/STEPS | 4 | 0 | 2003 | 421.0 |
| | CPD | OPEN CARPORT DIRT FLOOR | 4 | 0 | 2003 | 180.0 |
Sketch
Property Image
Land
| 1 | 97 | PUBLIC BENEFIT | 12.3000 | 535788.00 | 0.00 | 0.00 | 1.00 | $81,980 | $40,990 |
| 2 | HS | HOMESITE | 0.3700 | 16117.20 | 0.00 | 0.00 | 1.00 | $340,000 | $0 |
Roll Value History
| 2026 | N/A | N/A | N/A | N/A | N/A |
| 2025 | $593,046 | $421,980 | $40,990 | $974,036 | $190,543 |
| 2024 | $585,729 | $390,000 | $34,375 | $941,354 | $186,422 |
| 2023 | $593,029 | $370,000 | $179,598 | $783,432 | $276,896 |
| 2022 | $543,599 | $310,000 | $150,474 | $703,126 | $436,261 |
| 2021 | $478,444 | $240,000 | $116,496 | $601,949 | $237,583 |
| 2020 | $465,067 | $240,000 | $116,496 | $588,572 | $237,583 |
| 2019 | $339,429 | $350,000 | $169,890 | $519,540 | $270,847 |
| 2018 | $306,650 | $300,000 | $145,620 | $461,030 | $238,845 |
| 2017 | $308,062 | $250,000 | $121,350 | $436,712 | $220,045 |
| 2016 | $310,890 | $250,000 | $121,350 | $439,540 | $221,177 |
| 2015 | $313,718 | $250,000 | $121,350 | $442,368 | $442,368 |
| 2014 | $316,547 | $250,000 | $121,350 | $445,197 | $445,197 |
| 2013 | $319,375 | $342,090 | $166,050 | $495,415 | $495,415 |
| 2012 | $326,316 | $342,090 | $166,050 | $502,356 | $502,356 |
| 2011 | $0 | $369,000 | $184,500 | $184,500 | $184,500 |
| 2010 | $0 | $369,000 | $184,500 | $184,500 | $184,500 |
| 2009 | $0 | $369,000 | $184,500 | $184,500 | $184,500 |
| 2008 | $85,064 | $88,536 | $0 | $173,600 | $173,600 |
| 2007 | $378,349 | $363,511 | $0 | $741,860 | $741,860 |
Deed and Sales History
| 1 | 03/01/1987 | WD | Warranty Deed | SCHOLZ, IRMA R | PATZWALDT, RITA R | | | $29,000.00 | 70662 | 87003630 |
| 2 | 07/01/1986 | QCD | Quit Claim Deed | SCHOLZ, IRMA R | SCHOLZ, IRMA R | | | $0.00 | 62189 | 86010145 |
| 3 | 01/01/1986 | EZ | Easement | SCHOLZ, IRMA R | SCHOLZ, IRMA R | | | $0.00 | 61418 | 85013408 |
| 4 | 04/01/1984 | WD | Warranty Deed | SCHOLZ, EDGAR A | SCHOLZ, IRMA R | | | $0.00 | 40936 | 423167 |
| 5 | 06/01/1973 | REC | Real Estate Contract | Unknown | SCHOLZ, EDGAR A | | | $0.00 | 0 | 263513 |
Payout Agreement
| No payout information available.. |