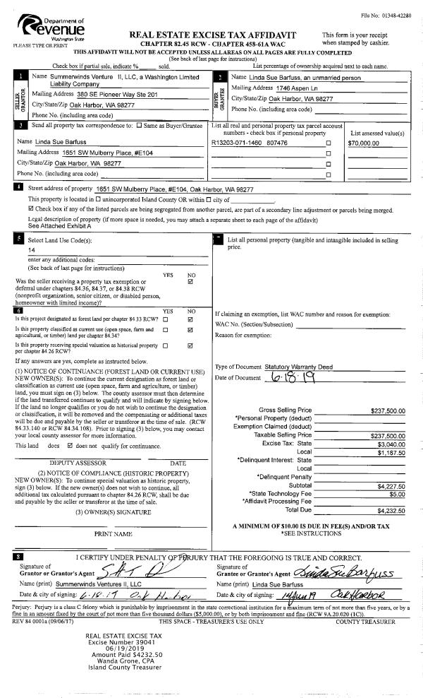
Property
Account |
| Property ID: | 580534 | Abbreviated Legal Description: | LOT A SP 83-42.6.23021.120-0660 V1 SP P261 AF#424554 TGW W112' OF LOT B SP 83-42 TGW EZ AF#90006171 |
| Geographic ID: | R23021-118-0280 | Agent Code: | |
| Type: | Real | | |
| Tax Area: | 312 - APPRAISER-Cpvl Schl Dist, outside Cpvl, improved, greater than 1 acre | Land Use Code | 11 |
| Open Space: | N | DFL | N |
| Historic Property: | N | Remodel Property: | N |
| Multi-Family Redevelopment: | N | | |
| Township: | 30 | Section: | 21 |
| Range: | R2 |
Location |
| Address: | 22899 SR525 GREENBANK, WA 98253 | Mapsco: | |
| Neighborhood: | Cycle 3 | Map ID: | 400 |
| Neighborhood CD: | 3 |
Owner |
| Name: | EDELEN JTWROS, RENA A | Owner ID: | 283657 |
| Mailing Address: | JAMES M EDELEN JTWROS PO BOX 244 GREENBANK, WA 98253-0244 | % Ownership: | 100.0000000000% |
| | | Exemptions: | |
Taxes and Assessment Details
Values
| (+) Improvement Homesite Value: | + | $0 | |
| (+) Improvement Non-Homesite Value: | + | $244,454 | |
| (+) Land Homesite Value: | + | $0 | |
| (+) Land Non-Homesite Value: | + | $350,000 | |
| (+) Curr Use (HS): | + | $0 | $0 |
| (+) Curr Use (NHS): | + | $0 | $0 |
| | | -------------------------- | |
| (=) Market Value: | = | $594,454 | |
| (–) Productivity Loss: | – | $0 | |
| | | -------------------------- | |
| (=) Subtotal: | = | $594,454 | |
| (+) Senior Appraised Value: | + | $0 | |
| (+) Non-Senior Appraised Value: | + | $594,454 | |
| | | -------------------------- | |
| (=) Total Appraised Value: | = | $594,454 | |
| (–) Senior Exemption Loss: | – | $0 | |
| (–) Exemption Loss: | – | $0 | |
| | | -------------------------- | |
| (=) Taxable Value: | = | $594,454 | |
Taxing Jurisdiction
| Owner: | EDELEN JTWROS, RENA A | | |
| % Ownership: | 100.0000000000% | | |
| Total Value: | $594,454 | | |
| Tax Area: | 312 - APPRAISER-Cpvl Schl Dist, outside Cpvl, improved, greater than 1 acre |
| CF | Conservation Futures | 0.0316035091 | $594,454 | $594,454 | $18.79 | | |
| CEM2 | Cemetery #2 | 0.0095056933 | $594,454 | $594,454 | $5.65 | | |
| FIRE5 | Fire & Rescue Dist #5 C Whidbey GEN | 1.2008080668 | $594,454 | $594,454 | $713.83 | | |
| FIRE5BOND | Fire & Rescue Dist #5 C Whidbey BOND | 0.1400090713 | $594,454 | $594,454 | $83.23 | | |
| HOBOND | Hospital BOND | 0.1910887512 | $594,454 | $594,454 | $113.59 | | |
| HOGEN | Hospital GEN | 0.3902502903 | $594,454 | $594,454 | $231.99 | | |
| CE | County Current Expense | 0.3708482477 | $594,454 | $594,454 | $220.45 | | |
| CR | County Roads | 0.4584763726 | $594,454 | $594,454 | $272.54 | | |
| ISLANDEMS | Hospital GEN (EMS) | 0.5000000000 | $594,454 | $594,454 | $297.23 | | |
| LIB | Library Sno-Isle GEN | 0.3153421757 | $594,454 | $594,454 | $187.46 | | |
| LIBCAP | Library Sno-Isle BOND (Cap Fac Imp Area) | 0.0543427938 | $594,454 | $594,454 | $32.30 | | |
| POCOUP | Port of Coupeville GEN | 0.1093371703 | $594,454 | $594,454 | $65.00 | | |
| POCOUPIDD | Port of Coupeville IDD | 0.3409740022 | $594,454 | $594,454 | $202.69 | | |
| COUPSDTECH | School 204 CP (TECH) | 0.7545480007 | $594,454 | $594,454 | $448.54 | | |
| SCH204MO | School 204 Enrichment | 0.6716186034 | $594,454 | $594,454 | $399.25 | | |
| ST | State School | 1.3035497053 | $594,454 | $594,454 | $774.90 | | |
| ST2 | State School Part 2 | 0.8169543533 | $594,454 | $594,454 | $485.64 | | |
| | Total Tax Rate: | 7.6592568070 | | | | | |
| | | | | Taxes w/Current Exemptions: | $4,553.08 | | |
| | | | | Taxes w/o Exemptions: | $4,553.08 | | |
Improvement / Building
| Improvement #1: | MANUFACTURED HOME | State Code: | Y | 2590.0 sqft | Value: | $172,608 |
| Bathrooms: | 3 | Bedrooms: | 4 | | Ceiling: | PLASTER PAINTED | Cooling: | EVAP NO DUCT | | Exterior Wall/Cover: | VINYL | Floor Covering: | CARPET 100% | | Floor Structure: | SLAB ON GRADE | Foundation: | SLAB | | Heating: | FHA ELECTRIC | Interior Finish: | PLASTER | | Plumbing Fixture Cnt: | 1 | Roof Slope: | FLAT | | Roof Structure/Cover: | CJ ALUMINIUM HEAVY |   |   |
|
| | Type | Description | Class CD | Sub Class CD | Year Built | Area |
| | BAS | BASE/MAIN FLOOR | 5 | 0 | 1997 | 2590.0 |
| | OWC | OPEN WOOD PORCH W/STEPS/ROOF/C | 5 | 0 | 1997 | 258.0 |
| | OWP | OPEN WOOD PORCH W/STEPS | 5 | 0 | 1997 | 172.0 |
| | OWP | OPEN WOOD PORCH W/STEPS | 5 | 0 | 1997 | 72.0 |
| Improvement #2: | MANUFACTURED HOME | State Code: | Y | 901.7 sqft | Value: | $71,846 |
| Bathrooms: | 0 | Bedrooms: | 0 | | Ceiling: | PLASTER PAINTED | Cooling: | EVAP NO DUCT | | Exterior Wall/Cover: | VINYL | Floor Covering: | CARPET 100% | | Floor Structure: | SLAB ON GRADE | Foundation: | SLAB | | Heating: | FHA ELECTRIC | Interior Finish: | PLASTER | | Plumbing Fixture Cnt: | 1 | Roof Slope: | FLAT | | Roof Structure/Cover: | CJ ALUMINIUM HEAVY |   |   |
|
| | Type | Description | Class CD | Sub Class CD | Year Built | Area |
| | BAS | BASE/MAIN FLOOR | 3 | 0 | 2005 | 901.7 |
| | OWP | OPEN WOOD PORCH W/STEPS | 3 | 0 | 2005 | 28.0 |
| | UTY | STORAGE/UTILITY | 3 | 0 | 2005 | 256.0 |
Sketch
Property Image
Land
| 1 | 32 | AC (03.01-09.99) | 4.8900 | 0.00 | 0.00 | 0.00 | 1.00 | $350,000 | $0 |
Roll Value History
| 2026 | N/A | N/A | N/A | N/A | N/A |
| 2025 | $244,454 | $350,000 | $0 | $594,454 | $594,454 |
| 2024 | $251,395 | $340,000 | $0 | $591,395 | $591,395 |
| 2023 | $236,325 | $320,000 | $0 | $556,325 | $556,325 |
| 2022 | $217,732 | $260,000 | $0 | $477,732 | $477,732 |
| 2021 | $194,312 | $230,000 | $0 | $424,312 | $424,312 |
| 2020 | $192,736 | $180,000 | $0 | $372,736 | $372,736 |
| 2019 | $121,668 | $220,000 | $0 | $341,668 | $341,668 |
| 2018 | $124,558 | $170,000 | $0 | $294,558 | $294,558 |
| 2017 | $127,448 | $160,000 | $0 | $287,448 | $287,448 |
| 2016 | $129,931 | $120,000 | $0 | $249,931 | $249,931 |
| 2015 | $131,376 | $130,000 | $0 | $261,376 | $261,376 |
| 2014 | $134,266 | $125,000 | $0 | $259,266 | $259,266 |
| 2013 | $142,060 | $118,827 | $0 | $260,887 | $260,887 |
| 2012 | $144,949 | $118,827 | $0 | $263,776 | $263,776 |
| 2011 | $147,433 | $132,030 | $0 | $279,463 | $279,463 |
| 2010 | $148,687 | $132,030 | $0 | $280,717 | $280,717 |
| 2009 | $156,417 | $190,710 | $0 | $347,127 | $347,127 |
| 2008 | $160,819 | $165,038 | $0 | $325,857 | $325,857 |
| 2007 | $163,197 | $151,590 | $0 | $314,787 | $314,787 |
Deed and Sales History
| 1 | 01/06/2018 | QCD | Quit Claim Deed | EDELEN, JAMES M / RENA A | EDELEN JTWROS, RENA A | | | $0.00 | 32685 | 4437857 |
| 2 | 12/01/1997 | OTHER | Other - Misc. Documents | EDELEN, JAMES M | EDELEN, JAMES M | | | $108,318.00 | 11111111 | 0 |
| 3 | 08/01/1997 | QCD | Quit Claim Deed | EDELEN, JAMES M | EDELEN, JAMES M | | | $0.00 | 72837 | 97013457 |
| 4 | 09/01/1992 | OTHER | Other - Misc. Documents | EDELEN, JAMES M | EDELEN, JAMES M | | | $4,000.00 | 11111111 | 0 |
| 5 | 07/01/1992 | WD | Warranty Deed | SCHOELER, EDWARD C | EDELEN, JAMES M | | | $47,000.00 | 22725 | 92013167 |
| 6 | 03/01/1990 | WD | Warranty Deed | MATHEWS, PETER | SCHOELER, EDWARD C | | | $39,500.00 | 1920 | 90006168 |
| 7 | 01/01/1988 | OTHER | Other - Misc. Documents | MATHEWS, PETER | MATHEWS, PETER | | | $0.00 | 62352 | 88001420 |
| 8 | 09/01/1987 | OTHER | Other - Misc. Documents | MATHEWS, PETER | MATHEWS, PETER | | | $0.00 | 62352 | 87012578 |
| 9 | 08/01/1987 | QCD | Quit Claim Deed | MATHEWS, PETER | MATHEWS, PETER | | | $0.00 | 72798 | 87012577 |
| 10 | 04/01/1987 | QCD | Quit Claim Deed | BADE, MICHAEL E | MATHEWS, PETER | | | $0.00 | 71158 | 87005765 |
| 11 | 04/01/1983 | REC | Real Estate Contract | Unknown | BADE, MICHAEL E | | | $16,000.00 | 31286 | 409674 |
Payout Agreement
| No payout information available.. |