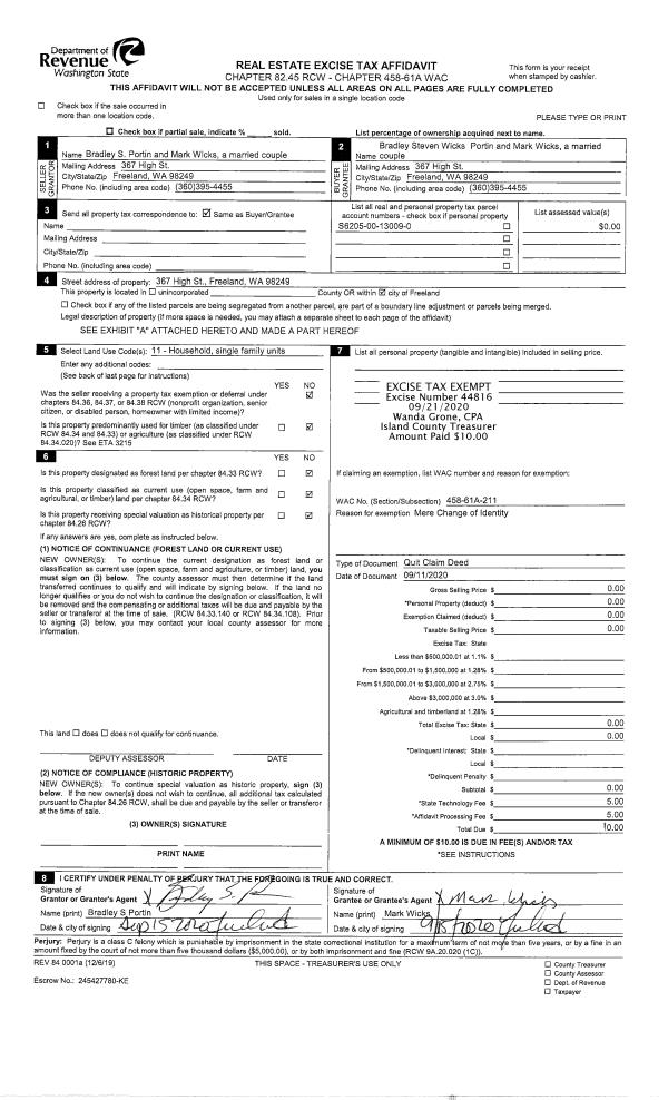
Property
Account |
| Property ID: | 58065 | Abbreviated Legal Description: | 3 - S/2 NE NW NE |
| Geographic ID: | R22923-485-3640 | Agent Code: | |
| Type: | Real | | |
| Tax Area: | 712 - APPRAISER-S Whid Schl Dist, outside Langley, improved, greater than 1 acre | Land Use Code | 11 |
| Open Space: | N | DFL | N |
| Historic Property: | N | Remodel Property: | N |
| Multi-Family Redevelopment: | N | | |
| Township: | 29 | Section: | 23 |
| Range: | R2 |
Location |
| Address: | 6045 MCMASTER RD FREELAND, WA 98249 | Mapsco: | |
| Neighborhood: | Cycle 3 | Map ID: | 341 |
| Neighborhood CD: | 3 |
Owner |
| Name: | KEOHANE, THOMAS | Owner ID: | 273879 |
| Mailing Address: | LINDSEY RICHARDS 6543 HUMPHREY RD CLINTON, WA 98236 | % Ownership: | 100.0000000000% |
| | | Exemptions: | |
Taxes and Assessment Details
Values
| (+) Improvement Homesite Value: | + | $0 | |
| (+) Improvement Non-Homesite Value: | + | $514,127 | |
| (+) Land Homesite Value: | + | $0 | |
| (+) Land Non-Homesite Value: | + | $470,000 | |
| (+) Curr Use (HS): | + | $0 | $0 |
| (+) Curr Use (NHS): | + | $0 | $0 |
| | | -------------------------- | |
| (=) Market Value: | = | $984,127 | |
| (–) Productivity Loss: | – | $0 | |
| | | -------------------------- | |
| (=) Subtotal: | = | $984,127 | |
| (+) Senior Appraised Value: | + | $0 | |
| (+) Non-Senior Appraised Value: | + | $984,127 | |
| | | -------------------------- | |
| (=) Total Appraised Value: | = | $984,127 | |
| (–) Senior Exemption Loss: | – | $0 | |
| (–) Exemption Loss: | – | $0 | |
| | | -------------------------- | |
| (=) Taxable Value: | = | $984,127 | |
Taxing Jurisdiction
| Owner: | KEOHANE, THOMAS | | |
| % Ownership: | 100.0000000000% | | |
| Total Value: | $984,127 | | |
| Tax Area: | 712 - APPRAISER-S Whid Schl Dist, outside Langley, improved, greater than 1 acre |
| CF | Conservation Futures | 0.0316035091 | $984,127 | $984,127 | $31.10 | | |
| FIRE3 | Fire & Rescue Dist #3 S Whidbey GEN | 1.2004855531 | $984,127 | $984,127 | $1,181.43 | | |
| HOBOND | Hospital BOND | 0.1910887512 | $984,127 | $984,127 | $188.06 | | |
| HOGEN | Hospital GEN | 0.3902502903 | $984,127 | $984,127 | $384.06 | | |
| CE | County Current Expense | 0.3708482477 | $984,127 | $984,127 | $364.96 | | |
| CR | County Roads | 0.4584763726 | $984,127 | $984,127 | $451.20 | | |
| ISLANDEMS | Hospital GEN (EMS) | 0.5000000000 | $984,127 | $984,127 | $492.06 | | |
| LIB | Library Sno-Isle GEN | 0.3153421757 | $984,127 | $984,127 | $310.34 | | |
| PORTWHID | Port of S Whidbey GEN | 0.1094540357 | $984,127 | $984,127 | $107.72 | | |
| SCH206BOND | School 206 BOND | 0.3161759235 | $984,127 | $984,127 | $311.16 | | |
| SCH206MO | School 206 Enrichment | 0.4547169547 | $984,127 | $984,127 | $447.50 | | |
| ST | State School | 1.3035497053 | $984,127 | $984,127 | $1,282.86 | | |
| ST2 | State School Part 2 | 0.8169543533 | $984,127 | $984,127 | $803.99 | | |
| SWHIDPRBD | P & R S Whidbey BOND | 0.0152817568 | $984,127 | $984,127 | $15.04 | | |
| SWHIDPRBD2 | P & R S Whidbey BOND2 | 0.0138911264 | $984,127 | $984,127 | $13.67 | | |
| SWHIDPRMT | P & R S Whidbey GEN | 0.2053334452 | $984,127 | $984,127 | $202.07 | | |
| | Total Tax Rate: | 6.6934522006 | | | | | |
| | | | | Taxes w/Current Exemptions: | $6,587.22 | | |
| | | | | Taxes w/o Exemptions: | $6,587.22 | | |
Improvement / Building
| Improvement #1: | RESIDENTIAL | State Code: | Y | 1373.0 sqft | Value: | $317,602 |
| Bathrooms: | 1.5 | Bedrooms: | 2 | | Ceiling: | DRYWALL PAINTED | Cooling: | HEAT PUMP/CONV/V | | Exterior Wall/Cover: | SHINGLE | Floor Covering: | VINYL/HARDWOOD 80-20 | | Floor Structure: | WOOD W/SUBFLOOR | Foundation: | CONCRETE | | Interior Finish: | DRYWALL PAINT | Plumbing Fixture Cnt: | 9 | | Roof Slope: | 8" IN 12" | Roof Structure/Cover: | CJ WOOD SHINGLE |
|
| | Type | Description | Class CD | Sub Class CD | Year Built | Area |
| | BAS | BASE/MAIN FLOOR | 3 | 0 | 1940 | 956.0 |
| | OWR | OPEN WOOD PORCH W/STEPS/ROOF | 3 | 0 | 1940 | 21.0 |
| | UPH | HALF STORY | 3 | 0 | 1940 | 417.0 |
| | UB8 | BASEMENT UNFINISHED 8" | 3 | 0 | 1940 | 904.0 |
| | UTY | STORAGE/UTILITY | 3 | 0 | 1940 | 120.0 |
| | OWP | OPEN WOOD PORCH W/STEPS | 3 | 0 | 1940 | 909.0 |
| | OWP | OPEN WOOD PORCH W/STEPS | 3 | 0 | 1940 | 77.0 |
| | OWR | OPEN WOOD PORCH W/STEPS/ROOF | 3 | 0 | 1940 | 48.0 |
| Improvement #2: | RESIDENTIAL | State Code: | Y | 720.0 sqft | Value: | $196,525 |
| Bathrooms: | 0.75 | Bedrooms: | 1 | | Ceiling: | DRYWALL PAINTED | Exterior Wall/Cover: | SHINGLE | | Floor Covering: | HARDWOOD 100% | Floor Structure: | SLAB ON GRADE | | Foundation: | CONCRETE | Heating: | FHA OIL | | Interior Finish: | PLASTER | Plumbing Fixture Cnt: | 6 | | Roof Slope: | 8" IN 12" | Roof Structure/Cover: | CJ WOOD SHINGLE |
|
| | Type | Description | Class CD | Sub Class CD | Year Built | Area |
| | BAS | BASE/MAIN FLOOR | 3 | 0 | 1940 | 720.0 |
| | oBAR | BARN | 3 | 0 | 1940 | 1800.0 |
| | CPD | OPEN CARPORT DIRT FLOOR | 3 | 0 | 1940 | 612.0 |
| | UTY | STORAGE/UTILITY | 3 | 0 | 1940 | 720.0 |
| | OWP | OPEN WOOD PORCH W/STEPS | 3 | 0 | 1940 | 288.0 |
Sketch
Property Image
Land
| 1 | 32 | AC (03.01-09.99) | 5.0000 | 0.00 | 0.00 | 0.00 | 1.00 | $470,000 | $0 |
Roll Value History
| 2026 | N/A | N/A | N/A | N/A | N/A |
| 2025 | $514,127 | $470,000 | $0 | $984,127 | $984,127 |
| 2024 | $520,024 | $450,000 | $0 | $970,024 | $970,024 |
| 2023 | $525,918 | $420,000 | $0 | $945,918 | $945,918 |
| 2022 | $486,942 | $400,000 | $0 | $886,942 | $886,942 |
| 2021 | $420,301 | $360,000 | $0 | $780,301 | $780,301 |
| 2020 | $410,828 | $360,000 | $0 | $770,828 | $770,828 |
| 2019 | $313,985 | $370,000 | $0 | $683,985 | $683,985 |
| 2018 | $314,737 | $300,000 | $0 | $614,737 | $614,737 |
| 2017 | $316,242 | $275,000 | $0 | $591,242 | $591,242 |
| 2016 | $311,480 | $275,000 | $0 | $586,480 | $586,480 |
| 2015 | $265,356 | $275,000 | $0 | $540,356 | $540,356 |
| 2014 | $267,456 | $275,000 | $0 | $542,456 | $542,456 |
| 2013 | $265,339 | $275,000 | $0 | $540,339 | $540,339 |
| 2012 | $267,451 | $275,000 | $0 | $542,451 | $542,451 |
| 2011 | $269,566 | $275,000 | $0 | $544,566 | $544,566 |
| 2010 | $278,509 | $275,000 | $0 | $553,509 | $553,509 |
| 2009 | $287,021 | $375,000 | $0 | $662,021 | $662,021 |
| 2008 | $291,973 | $320,000 | $0 | $611,973 | $611,973 |
| 2007 | $173,343 | $276,000 | $0 | $449,343 | $449,343 |
Deed and Sales History
| 1 | 02/16/2016 | WD | Warranty Deed | MCMASTER, LARRY R | KEOHANE, THOMAS | | | $625,000.00 | 23305 | 4394799 |
| 2 | 04/01/1989 | OTHER | Other - Misc. Documents | MCMASTER, M J | MCMASTER, LARRY R | | | $0.00 | 63090 | 0 |
| 3 | 05/01/1981 | CD | DNU - Correction Deed | CATES, VESTA B | MCMASTER, M J | | | $1.00 | 11553 | 383273 |
| 4 | 01/01/1900 | OTHER | Other - Misc. Documents | MCMASTER, DUNCAN | CATES, VESTA B | | | $0.00 | 0 | 0 |
| 5 | 01/01/1900 | OTHER | Other - Misc. Documents | MCMASTER, MERRILL | MCMASTER, DUNCAN | | | $0.00 | 0 | 20538 |
| 6 | 01/01/1900 | OTHER | Other - Misc. Documents | Unknown | MCMASTER, MERRILL | | | $0.00 | 0 | 0 |
Payout Agreement
| No payout information available.. |