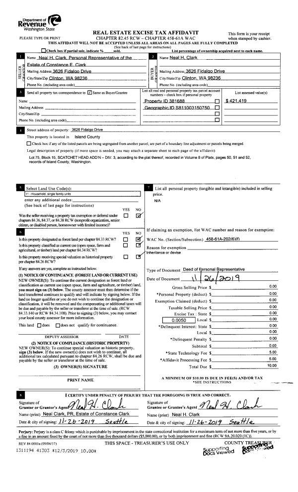
Property
Account |
| Property ID: | 580801 | Abbreviated Legal Description: | N/2 N/2 SE NE EX W1080' TGW EZ DESC 88D357 FR 371-5130 5/31/84 |
| Geographic ID: | R22922-376-5180 | Agent Code: | |
| Type: | Real | | |
| Tax Area: | 710 - APPRAISER-S Whid Schl Dist, outside Langley, improved & 1 acre or less | Land Use Code | 48 |
| Open Space: | N | DFL | N |
| Historic Property: | N | Remodel Property: | N |
| Multi-Family Redevelopment: | N | | |
| Township: | 29 | Section: | 22 |
| Range: | R2 |
Location |
| Address: | 1589 ROY RD FREELAND, WA 98249 | Mapsco: | |
| Neighborhood: | Cycle 3 | Map ID: | 337 |
| Neighborhood CD: | 3 |
Owner |
| Name: | CASCADIA WATER LLC | Owner ID: | 287569 |
| Mailing Address: | PO BOX 549 FREELAND, WA 98249 | % Ownership: | 100.0000000000% |
| | | Exemptions: | |
Taxes and Assessment Details
Values
| (+) Improvement Homesite Value: | + | $0 | |
| (+) Improvement Non-Homesite Value: | + | $109,600 | |
| (+) Land Homesite Value: | + | $0 | |
| (+) Land Non-Homesite Value: | + | $110,000 | |
| (+) Curr Use (HS): | + | $0 | $0 |
| (+) Curr Use (NHS): | + | $0 | $0 |
| | | -------------------------- | |
| (=) Market Value: | = | $219,600 | |
| (–) Productivity Loss: | – | $0 | |
| | | -------------------------- | |
| (=) Subtotal: | = | $219,600 | |
| (+) Senior Appraised Value: | + | $0 | |
| (+) Non-Senior Appraised Value: | + | $219,600 | |
| | | -------------------------- | |
| (=) Total Appraised Value: | = | $219,600 | |
| (–) Senior Exemption Loss: | – | $0 | |
| (–) Exemption Loss: | – | $0 | |
| | | -------------------------- | |
| (=) Taxable Value: | = | $219,600 | |
Taxing Jurisdiction
| Owner: | CASCADIA WATER LLC | | |
| % Ownership: | 100.0000000000% | | |
| Total Value: | $219,600 | | |
| Tax Area: | 710 - APPRAISER-S Whid Schl Dist, outside Langley, improved & 1 acre or less |
| CF | Conservation Futures | 0.0316035091 | $219,600 | $219,600 | $6.94 | | |
| FIRE3 | Fire & Rescue Dist #3 S Whidbey GEN | 1.2004855531 | $219,600 | $219,600 | $263.63 | | |
| HOBOND | Hospital BOND | 0.1910887512 | $219,600 | $219,600 | $41.96 | | |
| HOGEN | Hospital GEN | 0.3902502903 | $219,600 | $219,600 | $85.70 | | |
| CE | County Current Expense | 0.3708482477 | $219,600 | $219,600 | $81.44 | | |
| CR | County Roads | 0.4584763726 | $219,600 | $219,600 | $100.68 | | |
| ISLANDEMS | Hospital GEN (EMS) | 0.5000000000 | $219,600 | $219,600 | $109.80 | | |
| LIB | Library Sno-Isle GEN | 0.3153421757 | $219,600 | $219,600 | $69.25 | | |
| PORTWHID | Port of S Whidbey GEN | 0.1094540357 | $219,600 | $219,600 | $24.04 | | |
| SCH206BOND | School 206 BOND | 0.3161759235 | $219,600 | $219,600 | $69.43 | | |
| SCH206MO | School 206 Enrichment | 0.4547169547 | $219,600 | $219,600 | $99.86 | | |
| ST | State School | 1.3035497053 | $219,600 | $219,600 | $286.26 | | |
| ST2 | State School Part 2 | 0.8169543533 | $219,600 | $219,600 | $179.40 | | |
| SWHIDPRBD | P & R S Whidbey BOND | 0.0152817568 | $219,600 | $219,600 | $3.36 | | |
| SWHIDPRBD2 | P & R S Whidbey BOND2 | 0.0138911264 | $219,600 | $219,600 | $3.05 | | |
| SWHIDPRMT | P & R S Whidbey GEN | 0.2053334452 | $219,600 | $219,600 | $45.09 | | |
| | Total Tax Rate: | 6.6934522006 | | | | | |
| | | | | Taxes w/Current Exemptions: | $1,469.89 | | |
| | | | | Taxes w/o Exemptions: | $1,469.89 | | |
Improvement / Building
| Improvement #1: | RESIDENTIAL | State Code: | Y | 0.0 sqft | Value: | $109,600 |
| | Type | Description | Class CD | Sub Class CD | Year Built | Area |
| | oPUM | PUMP HOUSE | 3 | 0 | 1977 | 0.0 |
| | oWT6 | 70K GALLON TANK | 3 | 0 | 1977 | 0.0 |
Sketch
Property Image
Land
| 1 | 16 | AC (00.51-01.00) | 1.0000 | 43560.00 | 0.00 | 0.00 | 1.00 | $110,000 | $0 |
Roll Value History
| 2026 | N/A | N/A | N/A | N/A | N/A |
| 2025 | $109,600 | $110,000 | $0 | $219,600 | $219,600 |
| 2024 | $4,000 | $220,000 | $0 | $224,000 | $224,000 |
| 2023 | $4,000 | $240,000 | $0 | $244,000 | $244,000 |
| 2022 | $4,000 | $240,000 | $0 | $244,000 | $244,000 |
| 2021 | $4,000 | $160,000 | $0 | $164,000 | $164,000 |
| 2020 | $4,000 | $150,000 | $0 | $154,000 | $154,000 |
| 2019 | $4,000 | $170,000 | $0 | $174,000 | $174,000 |
| 2018 | $25,975 | $130,000 | $0 | $155,975 | $39,570 |
| 2017 | $27,997 | $100,000 | $0 | $127,997 | $39,570 |
| 2016 | $29,344 | $100,000 | $0 | $129,344 | $39,570 |
| 2015 | $30,692 | $80,000 | $0 | $110,692 | $39,570 |
| 2014 | $32,039 | $59,500 | $0 | $91,539 | $31,539 |
| 2013 | $33,098 | $100,000 | $0 | $133,098 | $39,570 |
| 2012 | $34,878 | $110,500 | $0 | $145,378 | $39,570 |
| 2011 | $36,065 | $130,000 | $0 | $166,065 | $39,570 |
| 2010 | $34,587 | $130,000 | $0 | $164,587 | $39,570 |
| 2009 | $36,148 | $154,103 | $0 | $190,250 | $39,569 |
| 2008 | $36,267 | $154,614 | $0 | $190,881 | $39,569 |
| 2007 | $37,039 | $86,425 | $0 | $123,464 | $39,569 |
Deed and Sales History
| 1 | 09/30/2019 | WD | Warranty Deed | LEHMAN, BETTY L | CASCADIA WATER LLC | | | $165,000.00 | 40552 | 4472691 |
| 2 | 08/19/1998 | OTHER | Other - Misc. Documents | LEHMAN, BETTY L | LEHMAN, BETTY L | | | $0.00 | 83280 | 0 |
| 3 | 01/01/1995 | OTHER | Other - Misc. Documents | LEHMAN, WALTER C | LEHMAN, BETTY L | | | $0.00 | 66201 | 231094 |
| 4 | 03/01/1981 | CD | DNU - Correction Deed | LEHMAN, WALTER C | LEHMAN, WALTER C | | | $0.00 | 10739 | 380521 |
| 5 | 03/01/1981 | OTHER | Other - Misc. Documents | LEHMAN, WALTER | LEHMAN, WALTER C | | | $0.00 | 60632 | 380521 |
| 6 | 01/01/1900 | OTHER | Other - Misc. Documents | Unknown | LEHMAN, WALTER | | | $0.00 | 0 | 0 |
Payout Agreement
| No payout information available.. |