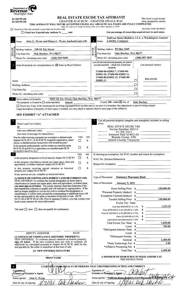
Property
Account |
| Property ID: | 580883 | Abbreviated Legal Description: | LOT 3 SP 83-44.6.32915.500-0780 V1 SP P264 AF#425265 |
| Geographic ID: | R32915-497-1100 | Agent Code: | |
| Type: | Real | | |
| Tax Area: | 712 - APPRAISER-S Whid Schl Dist, outside Langley, improved, greater than 1 acre | Land Use Code | 11 |
| Open Space: | N | DFL | N |
| Historic Property: | N | Remodel Property: | N |
| Multi-Family Redevelopment: | N | | |
| Township: | 29 | Section: | 15 |
| Range: | R3 |
Location |
| Address: | 5639 WINONA LN LANGLEY, WA 98260 | Mapsco: | |
| Neighborhood: | Cycle 4 | Map ID: | 772 |
| Neighborhood CD: | 4 |
Owner |
| Name: | BENDER, TRACY | Owner ID: | 93131 |
| Mailing Address: | JEFFREY RUNNFELDT PO BOX 1147 LANGLEY, WA 98260 | % Ownership: | 100.0000000000% |
| | | Exemptions: | |
Taxes and Assessment Details
Values
| (+) Improvement Homesite Value: | + | $0 | |
| (+) Improvement Non-Homesite Value: | + | $311,129 | |
| (+) Land Homesite Value: | + | $0 | |
| (+) Land Non-Homesite Value: | + | $380,000 | |
| (+) Curr Use (HS): | + | $0 | $0 |
| (+) Curr Use (NHS): | + | $0 | $0 |
| | | -------------------------- | |
| (=) Market Value: | = | $691,129 | |
| (–) Productivity Loss: | – | $0 | |
| | | -------------------------- | |
| (=) Subtotal: | = | $691,129 | |
| (+) Senior Appraised Value: | + | $0 | |
| (+) Non-Senior Appraised Value: | + | $691,129 | |
| | | -------------------------- | |
| (=) Total Appraised Value: | = | $691,129 | |
| (–) Senior Exemption Loss: | – | $0 | |
| (–) Exemption Loss: | – | $0 | |
| | | -------------------------- | |
| (=) Taxable Value: | = | $691,129 | |
Taxing Jurisdiction
| Owner: | BENDER, TRACY | | |
| % Ownership: | 100.0000000000% | | |
| Total Value: | $691,129 | | |
| Tax Area: | 712 - APPRAISER-S Whid Schl Dist, outside Langley, improved, greater than 1 acre |
| CF | Conservation Futures | 0.0316035091 | $691,129 | $691,129 | $21.84 | | |
| FIRE3 | Fire & Rescue Dist #3 S Whidbey GEN | 1.2004855531 | $691,129 | $691,129 | $829.69 | | |
| HOBOND | Hospital BOND | 0.1910887512 | $691,129 | $691,129 | $132.07 | | |
| HOGEN | Hospital GEN | 0.3902502903 | $691,129 | $691,129 | $269.71 | | |
| CE | County Current Expense | 0.3708482477 | $691,129 | $691,129 | $256.30 | | |
| CR | County Roads | 0.4584763726 | $691,129 | $691,129 | $316.87 | | |
| ISLANDEMS | Hospital GEN (EMS) | 0.5000000000 | $691,129 | $691,129 | $345.56 | | |
| LIB | Library Sno-Isle GEN | 0.3153421757 | $691,129 | $691,129 | $217.94 | | |
| PORTWHID | Port of S Whidbey GEN | 0.1094540357 | $691,129 | $691,129 | $75.65 | | |
| SCH206BOND | School 206 BOND | 0.3161759235 | $691,129 | $691,129 | $218.52 | | |
| SCH206MO | School 206 Enrichment | 0.4547169547 | $691,129 | $691,129 | $314.27 | | |
| ST | State School | 1.3035497053 | $691,129 | $691,129 | $900.92 | | |
| ST2 | State School Part 2 | 0.8169543533 | $691,129 | $691,129 | $564.62 | | |
| SWHIDPRBD | P & R S Whidbey BOND | 0.0152817568 | $691,129 | $691,129 | $10.56 | | |
| SWHIDPRBD2 | P & R S Whidbey BOND2 | 0.0138911264 | $691,129 | $691,129 | $9.60 | | |
| SWHIDPRMT | P & R S Whidbey GEN | 0.2053334452 | $691,129 | $691,129 | $141.91 | | |
| | Total Tax Rate: | 6.6934522006 | | | | | |
| | | | | Taxes w/Current Exemptions: | $4,626.03 | | |
| | | | | Taxes w/o Exemptions: | $4,626.03 | | |
Improvement / Building
| Improvement #1: | RESIDENTIAL | State Code: | Y | 1782.0 sqft | Value: | $311,129 |
| Bathrooms: | 2 | Bedrooms: | 3 | | Ceiling: | DRYWALL PAINTED | Exterior Wall/Cover: | COMMON BRICK VENEER | | Floor Covering: | CARPET/VINYL 80-20 | Floor Structure: | WOOD W/SUBFLOOR | | Foundation: | CONCRETE | Heating: | WALL HEAT ELECTRIC | | Interior Finish: | DRYWALL PAINT | Plumbing Fixture Cnt: | 9 | | Roof Slope: | 6" IN 12" | Roof Structure/Cover: | CJ ASPHALT |
|
| | Type | Description | Class CD | Sub Class CD | Year Built | Area |
| | BAS | BASE/MAIN FLOOR | 3 | 0 | 1993 | 1782.0 |
| | AGR | ATTACHED GARAGE | 3 | 0 | 1993 | 525.0 |
| | OWP | OPEN WOOD PORCH W/STEPS | 3 | 0 | 1993 | 112.0 |
| | OWP | OPEN WOOD PORCH W/STEPS | 3 | 0 | 1993 | 513.0 |
Sketch
Property Image
Land
| 1 | 32 | AC (03.01-09.99) | 5.0000 | 0.00 | 0.00 | 0.00 | 1.00 | $380,000 | $0 |
Roll Value History
| 2026 | N/A | N/A | N/A | N/A | N/A |
| 2025 | $311,129 | $380,000 | $0 | $691,129 | $691,129 |
| 2024 | $315,055 | $350,000 | $0 | $665,055 | $665,055 |
| 2023 | $318,981 | $330,000 | $0 | $648,981 | $648,981 |
| 2022 | $292,395 | $290,000 | $0 | $582,395 | $582,395 |
| 2021 | $257,349 | $230,000 | $0 | $487,349 | $487,349 |
| 2020 | $245,147 | $190,000 | $0 | $435,147 | $435,147 |
| 2019 | $182,952 | $250,000 | $0 | $432,952 | $432,952 |
| 2018 | $183,500 | $210,000 | $0 | $393,500 | $393,500 |
| 2017 | $184,599 | $190,000 | $0 | $374,599 | $374,599 |
| 2016 | $186,796 | $165,000 | $0 | $351,796 | $351,796 |
| 2015 | $188,995 | $135,000 | $0 | $323,995 | $323,995 |
| 2014 | $191,654 | $160,000 | $0 | $351,654 | $351,654 |
| 2013 | $194,080 | $160,000 | $0 | $354,080 | $354,080 |
| 2012 | $196,507 | $160,000 | $0 | $356,507 | $356,507 |
| 2011 | $198,934 | $160,000 | $0 | $358,934 | $358,934 |
| 2010 | $210,224 | $160,000 | $0 | $370,224 | $370,224 |
| 2009 | $219,155 | $220,000 | $0 | $439,155 | $439,155 |
| 2008 | $201,188 | $192,000 | $0 | $393,188 | $393,188 |
| 2007 | $203,869 | $192,000 | $0 | $395,869 | $395,869 |
Deed and Sales History
| 1 | 11/09/2009 | WD | Warranty Deed | DAVIS TRUSTEE, LESTER D | BENDER, TRACY | | | $400,000.00 | 92748 | 4263437 |
| 2 | 01/12/2005 | 5 | DNU - Marriage License/Name Change | DAVIS, LESTER D | DAVIS TRUSTEE, LESTER D | | | $0.00 | 50258 | 4123726 |
| 3 | 05/01/1995 | WD | Warranty Deed | VAN, DYKE, W | DAVIS, LESTER D | | | $182,500.00 | 51774 | 95008350 |
| 4 | 01/01/1993 | WD | Warranty Deed | PETOSA, JOHN F | VAN, DYKE, W | | | $57,000.00 | 30031 | 93000184 |
| 5 | 06/01/1984 | OTHER | Other - Misc. Documents | GLEASON, RICHARD P | GLEASON, RICHARD P | | | $0.00 | 60640 | 0 |
| 6 | 06/01/1984 | WD | Warranty Deed | GLEASON, RICHARD P | PETOSA, JOHN F | | | $26,500.00 | 41588 | 425424 |
| 7 | 06/01/1984 | WD | Warranty Deed | PETOSA, JOHN F | PETOSA, JOHN F | | | $0.00 | 41739 | 426039 |
| 8 | 01/01/1984 | WD | Warranty Deed | Unknown | GLEASON, RICHARD P | | | $11,222.00 | 40087 | 419733 |
Payout Agreement
| No payout information available.. |