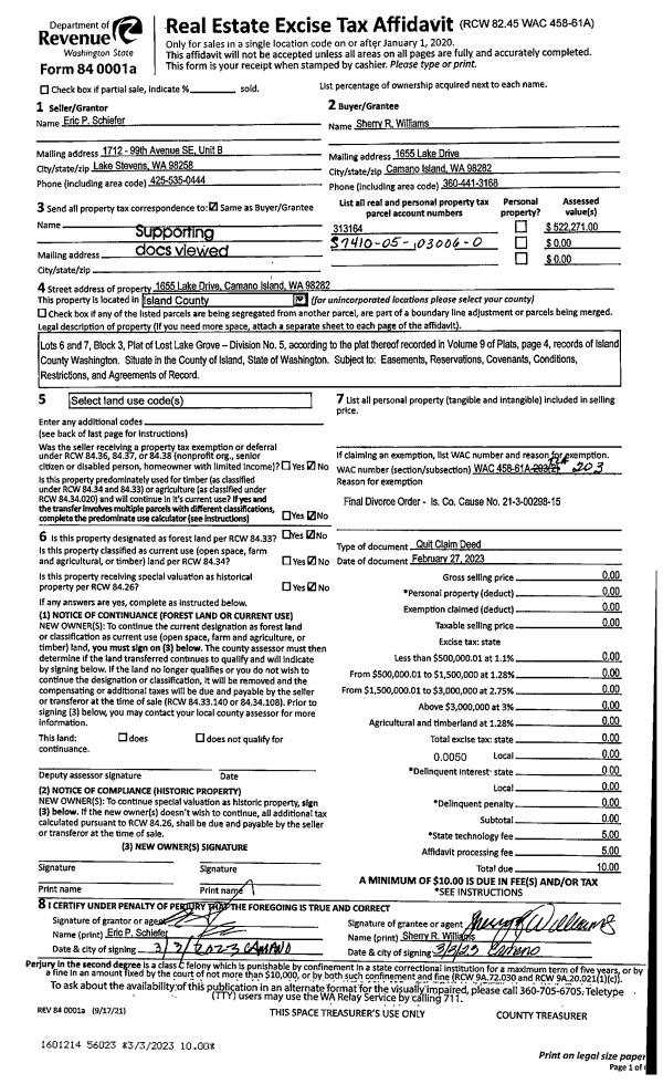
Property
Account |
| Property ID: | 581169 | Abbreviated Legal Description: | LOT A SP 83-14-2.23009.092-0400 V1 SP P265 AF#425584 |
| Geographic ID: | R23009-094-0110 | Agent Code: | |
| Type: | Real | | |
| Tax Area: | 312 - APPRAISER-Cpvl Schl Dist, outside Cpvl, improved, greater than 1 acre | Land Use Code | 11 |
| Open Space: | N | DFL | N |
| Historic Property: | N | Remodel Property: | N |
| Multi-Family Redevelopment: | N | | |
| Township: | 30 | Section: | 09 |
| Range: | R2 |
Location |
| Address: | 25014 SR525 GREENBANK, WA 98253 | Mapsco: | |
| Neighborhood: | Cycle 3 | Map ID: | 367 |
| Neighborhood CD: | 3 |
Owner |
| Name: | MERCADO, RACHEL | Owner ID: | 311451 |
| Mailing Address: | GRECIA MERCADO ANGULO 25014 SR 525 GREENBANK, WA 98253 | % Ownership: | 100.0000000000% |
| | | Exemptions: | |
Taxes and Assessment Details
Values
| (+) Improvement Homesite Value: | + | $0 | |
| (+) Improvement Non-Homesite Value: | + | $334,295 | |
| (+) Land Homesite Value: | + | $0 | |
| (+) Land Non-Homesite Value: | + | $350,000 | |
| (+) Curr Use (HS): | + | $0 | $0 |
| (+) Curr Use (NHS): | + | $0 | $0 |
| | | -------------------------- | |
| (=) Market Value: | = | $684,295 | |
| (–) Productivity Loss: | – | $0 | |
| | | -------------------------- | |
| (=) Subtotal: | = | $684,295 | |
| (+) Senior Appraised Value: | + | $0 | |
| (+) Non-Senior Appraised Value: | + | $684,295 | |
| | | -------------------------- | |
| (=) Total Appraised Value: | = | $684,295 | |
| (–) Senior Exemption Loss: | – | $0 | |
| (–) Exemption Loss: | – | $0 | |
| | | -------------------------- | |
| (=) Taxable Value: | = | $684,295 | |
Taxing Jurisdiction
| Owner: | MERCADO, RACHEL | | |
| % Ownership: | 100.0000000000% | | |
| Total Value: | $684,295 | | |
| Tax Area: | 312 - APPRAISER-Cpvl Schl Dist, outside Cpvl, improved, greater than 1 acre |
| CF | Conservation Futures | 0.0316035091 | $684,295 | $684,295 | $21.63 | | |
| CEM2 | Cemetery #2 | 0.0095056933 | $684,295 | $684,295 | $6.50 | | |
| FIRE5 | Fire & Rescue Dist #5 C Whidbey GEN | 1.2008080668 | $684,295 | $684,295 | $821.71 | | |
| FIRE5BOND | Fire & Rescue Dist #5 C Whidbey BOND | 0.1400090713 | $684,295 | $684,295 | $95.81 | | |
| HOBOND | Hospital BOND | 0.1910887512 | $684,295 | $684,295 | $130.76 | | |
| HOGEN | Hospital GEN | 0.3902502903 | $684,295 | $684,295 | $267.05 | | |
| CE | County Current Expense | 0.3708482477 | $684,295 | $684,295 | $253.77 | | |
| CR | County Roads | 0.4584763726 | $684,295 | $684,295 | $313.73 | | |
| ISLANDEMS | Hospital GEN (EMS) | 0.5000000000 | $684,295 | $684,295 | $342.15 | | |
| LIB | Library Sno-Isle GEN | 0.3153421757 | $684,295 | $684,295 | $215.79 | | |
| LIBCAP | Library Sno-Isle BOND (Cap Fac Imp Area) | 0.0543427938 | $684,295 | $684,295 | $37.19 | | |
| POCOUP | Port of Coupeville GEN | 0.1093371703 | $684,295 | $684,295 | $74.82 | | |
| POCOUPIDD | Port of Coupeville IDD | 0.3409740022 | $684,295 | $684,295 | $233.33 | | |
| COUPSDTECH | School 204 CP (TECH) | 0.7545480007 | $684,295 | $684,295 | $516.33 | | |
| SCH204MO | School 204 Enrichment | 0.6716186034 | $684,295 | $684,295 | $459.59 | | |
| ST | State School | 1.3035497053 | $684,295 | $684,295 | $892.01 | | |
| ST2 | State School Part 2 | 0.8169543533 | $684,295 | $684,295 | $559.04 | | |
| | Total Tax Rate: | 7.6592568070 | | | | | |
| | | | | Taxes w/Current Exemptions: | $5,241.21 | | |
| | | | | Taxes w/o Exemptions: | $5,241.21 | | |
Improvement / Building
| Improvement #1: | RESIDENTIAL | State Code: | Y | 3167.4 sqft | Value: | $334,295 |
| Bathrooms: | 3.5 | Bedrooms: | 3 | | Ceiling: | ACOUSTIC FURRED | Exterior Wall/Cover: | WOOD SIDING | | Floor Covering: | CARPET/VINYL 80-20 | Floor Structure: | WOOD W/SUBFLOOR | | Foundation: | CONCRETE BLOCKS | Heating: | BASEBOARD ELECTRIC | | Interior Finish: | DRYWALL PAINT | Plumbing Fixture Cnt: | 15 | | Roof Slope: | 4" IN 12" | Roof Structure/Cover: | CJ ASPHALT |
|
| | Type | Description | Class CD | Sub Class CD | Year Built | Area |
| | BAS | BASE/MAIN FLOOR | 3 | 0 | 1925 | 2783.4 |
| | UPH | HALF STORY | 3 | 0 | 1925 | 384.0 |
| | OP4 | OPEN PORCH W/CEILING-ROOF | 3 | 0 | 1925 | 60.0 |
| | AGR | ATTACHED GARAGE | 3 | 0 | 1925 | 240.0 |
| | OWC | OPEN WOOD PORCH W/STEPS/ROOF/C | 3 | 0 | 1925 | 160.0 |
| | DGR | DETACHED GARAGE | 3 | 0 | 1925 | 832.0 |
Sketch
Property Image
Land
| 1 | 17 | AC (01.01-02.00) | 1.0400 | 45302.40 | 0.00 | 0.00 | 1.00 | $350,000 | $0 |
Roll Value History
| 2026 | N/A | N/A | N/A | N/A | N/A |
| 2025 | $334,295 | $350,000 | $0 | $684,295 | $684,295 |
| 2024 | $347,125 | $330,000 | $0 | $677,125 | $677,125 |
| 2023 | $296,123 | $300,000 | $0 | $596,123 | $596,123 |
| 2022 | $272,382 | $260,000 | $0 | $532,382 | $532,382 |
| 2021 | $240,533 | $250,000 | $0 | $490,533 | $490,533 |
| 2020 | $235,795 | $200,000 | $0 | $435,795 | $435,795 |
| 2019 | $209,170 | $200,000 | $0 | $409,170 | $409,170 |
| 2018 | $209,925 | $155,000 | $0 | $364,925 | $364,925 |
| 2017 | $189,825 | $115,000 | $0 | $304,825 | $304,825 |
| 2016 | $192,505 | $85,000 | $0 | $277,505 | $277,505 |
| 2015 | $195,187 | $90,000 | $0 | $285,187 | $285,187 |
| 2014 | $197,868 | $70,000 | $0 | $267,868 | $267,868 |
| 2013 | $199,370 | $70,000 | $0 | $269,370 | $269,370 |
| 2012 | $202,136 | $85,000 | $0 | $287,136 | $287,136 |
| 2011 | $204,902 | $100,000 | $0 | $304,902 | $304,902 |
| 2010 | $217,746 | $100,000 | $0 | $317,746 | $317,746 |
| 2009 | $227,052 | $130,000 | $0 | $357,052 | $357,052 |
| 2008 | $230,520 | $120,000 | $0 | $350,520 | $350,520 |
| 2007 | $224,855 | $100,000 | $0 | $324,855 | $324,855 |
Deed and Sales History
| 1 | 02/12/2024 | WD | Warranty Deed | BLAIS, RACHELLE | MERCADO, RACHEL | | | $675,000.00 | 59231 | 4569527 |
| 2 | 11/22/2022 | QCD | Quit Claim Deed | WEAVER, SANDRA | BLAIS, RACHELLE | | | $0.00 | 55204 | 4554085 |
| 3 | 06/01/2022 | OTHER | Other - Misc. Documents | WEAVER, HOWARD J | WEAVER, SANDRA | | | | 89278 | |
| 4 | 09/01/1989 | WD | Warranty Deed | YOUNGBERG, D B | WEAVER, HOWARD J | | | $110,000.00 | 93708 | 89012373 |
| 5 | 06/01/1984 | OTHER | Other - Misc. Documents | Unknown | YOUNGBERG, D B | | | $0.00 | 60723 | 425584 |
Payout Agreement
| No payout information available.. |