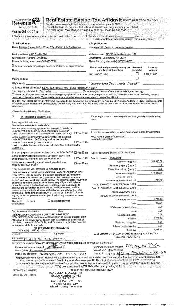
Property
Account |
| Property ID: | 58154 | Abbreviated Legal Description: | 92 - N/2 NE NW NW EX W220' TGW & SUB EZ |
| Geographic ID: | R22923-515-1050 | Agent Code: | |
| Type: | Real | | |
| Tax Area: | 719 - APPRAISER-S Whid Schl Dist, outside Langley, vacant & 50 acres or less | Land Use Code | 91 |
| Open Space: | N | DFL | N |
| Historic Property: | N | Remodel Property: | N |
| Multi-Family Redevelopment: | N | | |
| Township: | 29 | Section: | 23 |
| Range: | R2 |
Location |
| Address: | | Mapsco: | |
| Neighborhood: | Cycle 3 | Map ID: | 340 |
| Neighborhood CD: | 3 |
Owner |
| Name: | KLOSI, ENGJELLUSH | Owner ID: | 299008 |
| Mailing Address: | 2819 211TH ST SW LYNNWOOD, WA 98036 | % Ownership: | 100.0000000000% |
| | | Exemptions: | |
Taxes and Assessment Details
Values
| (+) Improvement Homesite Value: | + | $0 | |
| (+) Improvement Non-Homesite Value: | + | $0 | |
| (+) Land Homesite Value: | + | $0 | |
| (+) Land Non-Homesite Value: | + | $210,000 | |
| (+) Curr Use (HS): | + | $0 | $0 |
| (+) Curr Use (NHS): | + | $0 | $0 |
| | | -------------------------- | |
| (=) Market Value: | = | $210,000 | |
| (–) Productivity Loss: | – | $0 | |
| | | -------------------------- | |
| (=) Subtotal: | = | $210,000 | |
| (+) Senior Appraised Value: | + | $0 | |
| (+) Non-Senior Appraised Value: | + | $210,000 | |
| | | -------------------------- | |
| (=) Total Appraised Value: | = | $210,000 | |
| (–) Senior Exemption Loss: | – | $0 | |
| (–) Exemption Loss: | – | $0 | |
| | | -------------------------- | |
| (=) Taxable Value: | = | $210,000 | |
Taxing Jurisdiction
| Owner: | KLOSI, ENGJELLUSH | | |
| % Ownership: | 100.0000000000% | | |
| Total Value: | $210,000 | | |
| Tax Area: | 719 - APPRAISER-S Whid Schl Dist, outside Langley, vacant & 50 acres or less |
| CF | Conservation Futures | 0.0316035091 | $210,000 | $210,000 | $6.64 | | |
| HOBOND | Hospital BOND | 0.1910887512 | $210,000 | $210,000 | $40.13 | | |
| HOGEN | Hospital GEN | 0.3902502903 | $210,000 | $210,000 | $81.95 | | |
| CE | County Current Expense | 0.3708482477 | $210,000 | $210,000 | $77.88 | | |
| CR | County Roads | 0.4584763726 | $210,000 | $210,000 | $96.28 | | |
| ISLANDEMS | Hospital GEN (EMS) | 0.5000000000 | $210,000 | $210,000 | $105.00 | | |
| LIB | Library Sno-Isle GEN | 0.3153421757 | $210,000 | $210,000 | $66.22 | | |
| PORTWHID | Port of S Whidbey GEN | 0.1094540357 | $210,000 | $210,000 | $22.99 | | |
| SCH206BOND | School 206 BOND | 0.3161759235 | $210,000 | $210,000 | $66.40 | | |
| SCH206MO | School 206 Enrichment | 0.4547169547 | $210,000 | $210,000 | $95.49 | | |
| ST | State School | 1.3035497053 | $210,000 | $210,000 | $273.75 | | |
| ST2 | State School Part 2 | 0.8169543533 | $210,000 | $210,000 | $171.56 | | |
| SWHIDPRBD | P & R S Whidbey BOND | 0.0152817568 | $210,000 | $210,000 | $3.21 | | |
| SWHIDPRBD2 | P & R S Whidbey BOND2 | 0.0138911264 | $210,000 | $210,000 | $2.92 | | |
| SWHIDPRMT | P & R S Whidbey GEN | 0.2053334452 | $210,000 | $210,000 | $43.12 | | |
| | Total Tax Rate: | 5.4929666475 | | | | | |
| | | | | Taxes w/Current Exemptions: | $1,153.54 | | |
| | | | | Taxes w/o Exemptions: | $1,153.54 | | |
Improvement / Building
Sketch
| No sketches available for this property. |
Property Image
Land
| 1 | 32 | AC (03.01-09.99) | 3.1400 | 0.00 | 0.00 | 0.00 | 1.00 | $210,000 | $0 |
Roll Value History
| 2026 | N/A | N/A | N/A | N/A | N/A |
| 2025 | $0 | $210,000 | $0 | $210,000 | $210,000 |
| 2024 | $0 | $200,000 | $0 | $200,000 | $200,000 |
| 2023 | $0 | $180,000 | $0 | $180,000 | $180,000 |
| 2022 | $0 | $170,000 | $0 | $170,000 | $170,000 |
| 2021 | $0 | $135,000 | $0 | $135,000 | $135,000 |
| 2020 | $0 | $135,000 | $0 | $135,000 | $135,000 |
| 2019 | $0 | $135,000 | $0 | $135,000 | $135,000 |
| 2018 | $0 | $130,000 | $0 | $130,000 | $130,000 |
| 2017 | $0 | $130,000 | $0 | $130,000 | $130,000 |
| 2016 | $0 | $100,000 | $0 | $100,000 | $100,000 |
| 2015 | $0 | $85,000 | $0 | $85,000 | $85,000 |
| 2014 | $0 | $55,000 | $0 | $55,000 | $55,000 |
| 2013 | $0 | $60,853 | $0 | $60,853 | $60,853 |
| 2012 | $0 | $60,853 | $0 | $60,853 | $60,853 |
| 2011 | $0 | $71,592 | $0 | $71,592 | $71,592 |
| 2010 | $0 | $71,592 | $0 | $71,592 | $71,592 |
| 2009 | $0 | $71,592 | $0 | $71,592 | $71,592 |
| 2008 | $0 | $71,592 | $0 | $71,592 | $71,592 |
| 2007 | $0 | $10,291 | $0 | $10,291 | $10,291 |
Deed and Sales History
| 1 | 04/12/2021 | TRUSTEED | Trustee's Deed | OLIN, CLIFFORD A | KLOSI, ENGJELLUSH | | | $0.00 | 47910 | 4517253 |
| 2 | 10/21/2020 | TRUSTEED | Trustee's Deed | LACEWELL, DAN | OLIN, CLIFFORD A | | | $0.00 | 45702 | 4502475 |
| 3 | 06/04/2007 | WD | Warranty Deed | OLIN, CLIFFORD A | LACEWELL, DAN | | | $89,500.00 | 71964 | 4204590 |
| 4 | 01/04/1998 | WD | Warranty Deed | PARIS, GEORGE M | OLIN, CLIFFORD A | | | $10,000.00 | 90112 | 99000671 |
| 5 | 04/01/1987 | QCD | Quit Claim Deed | PARIS, GEORGE M | PARIS, GEORGE M | | | $3,203.00 | 71717 | 87008036 |
| 6 | 04/01/1987 | EZ | Easement | PARIS, GEORGE M | PARIS, GEORGE M | | | $0.00 | 71715 | 87008034 |
| 7 | 04/01/1987 | QCD | Quit Claim Deed | GLEASON, RICHARD P | PARIS, GEORGE M | | | $0.00 | 71972 | 87009053 |
| 8 | 07/01/1979 | EXECUTORD | Executor Deed | HARKER, THOMAS M | GLEASON, RICHARD P | | | $3,600.00 | 93476 | 355733 |
| 9 | 01/01/1900 | OTHER | Other - Misc. Documents | Unknown | HARKER, THOMAS M | | | $0.00 | 0 | 0 |
Payout Agreement
| No payout information available.. |