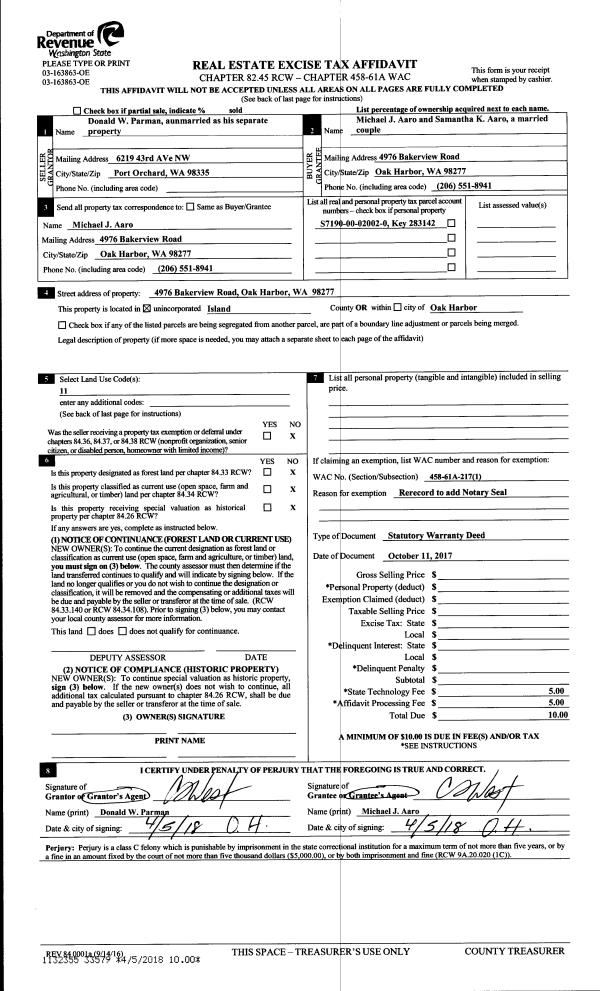
Property
Account |
| Property ID: | 58172 | Abbreviated Legal Description: | 25 - N/2 NE NW NE LESS 16' STRIP OFF E SIDE & LESS WEST 1 ROD (16.5') |
| Geographic ID: | R22923-519-3640 | Agent Code: | |
| Type: | Real | | |
| Tax Area: | 712 - APPRAISER-S Whid Schl Dist, outside Langley, improved, greater than 1 acre | Land Use Code | 11 |
| Open Space: | N | DFL | N |
| Historic Property: | N | Remodel Property: | N |
| Multi-Family Redevelopment: | N | | |
| Township: | 29 | Section: | 23 |
| Range: | R2 |
Location |
| Address: | 1884 LANCASTER RD FREELAND, WA 98249 | Mapsco: | |
| Neighborhood: | Cycle 3 | Map ID: | 341 |
| Neighborhood CD: | 3 |
Owner |
| Name: | WILLIE, ROBERT H | Owner ID: | 284849 |
| Mailing Address: | JILL WILLIE 1884 LANCASTER RD FREELAND, WA 98249 | % Ownership: | 100.0000000000% |
| | | Exemptions: | |
Taxes and Assessment Details
Values
| (+) Improvement Homesite Value: | + | $0 | |
| (+) Improvement Non-Homesite Value: | + | $275,303 | |
| (+) Land Homesite Value: | + | $0 | |
| (+) Land Non-Homesite Value: | + | $410,000 | |
| (+) Curr Use (HS): | + | $0 | $0 |
| (+) Curr Use (NHS): | + | $0 | $0 |
| | | -------------------------- | |
| (=) Market Value: | = | $685,303 | |
| (–) Productivity Loss: | – | $0 | |
| | | -------------------------- | |
| (=) Subtotal: | = | $685,303 | |
| (+) Senior Appraised Value: | + | $0 | |
| (+) Non-Senior Appraised Value: | + | $685,303 | |
| | | -------------------------- | |
| (=) Total Appraised Value: | = | $685,303 | |
| (–) Senior Exemption Loss: | – | $0 | |
| (–) Exemption Loss: | – | $0 | |
| | | -------------------------- | |
| (=) Taxable Value: | = | $685,303 | |
Taxing Jurisdiction
| Owner: | WILLIE, ROBERT H | | |
| % Ownership: | 100.0000000000% | | |
| Total Value: | $685,303 | | |
| Tax Area: | 712 - APPRAISER-S Whid Schl Dist, outside Langley, improved, greater than 1 acre |
| CF | Conservation Futures | 0.0316035091 | $685,303 | $685,303 | $21.66 | | |
| FIRE3 | Fire & Rescue Dist #3 S Whidbey GEN | 1.2004855531 | $685,303 | $685,303 | $822.70 | | |
| HOBOND | Hospital BOND | 0.1910887512 | $685,303 | $685,303 | $130.95 | | |
| HOGEN | Hospital GEN | 0.3902502903 | $685,303 | $685,303 | $267.44 | | |
| CE | County Current Expense | 0.3708482477 | $685,303 | $685,303 | $254.14 | | |
| CR | County Roads | 0.4584763726 | $685,303 | $685,303 | $314.20 | | |
| ISLANDEMS | Hospital GEN (EMS) | 0.5000000000 | $685,303 | $685,303 | $342.65 | | |
| LIB | Library Sno-Isle GEN | 0.3153421757 | $685,303 | $685,303 | $216.10 | | |
| PORTWHID | Port of S Whidbey GEN | 0.1094540357 | $685,303 | $685,303 | $75.01 | | |
| SCH206BOND | School 206 BOND | 0.3161759235 | $685,303 | $685,303 | $216.68 | | |
| SCH206MO | School 206 Enrichment | 0.4547169547 | $685,303 | $685,303 | $311.62 | | |
| ST | State School | 1.3035497053 | $685,303 | $685,303 | $893.33 | | |
| ST2 | State School Part 2 | 0.8169543533 | $685,303 | $685,303 | $559.86 | | |
| SWHIDPRBD | P & R S Whidbey BOND | 0.0152817568 | $685,303 | $685,303 | $10.47 | | |
| SWHIDPRBD2 | P & R S Whidbey BOND2 | 0.0138911264 | $685,303 | $685,303 | $9.52 | | |
| SWHIDPRMT | P & R S Whidbey GEN | 0.2053334452 | $685,303 | $685,303 | $140.72 | | |
| | Total Tax Rate: | 6.6934522006 | | | | | |
| | | | | Taxes w/Current Exemptions: | $4,587.05 | | |
| | | | | Taxes w/o Exemptions: | $4,587.05 | | |
Improvement / Building
| Improvement #1: | RESIDENTIAL | State Code: | Y | 1628.0 sqft | Value: | $275,303 |
| Bathrooms: | 2 | Bedrooms: | 2 | | Ceiling: | DRY WALL SPRAYED | Exterior Wall/Cover: | WOOD SIDING | | Floor Covering: | CARPET/VINYL 80-20 | Floor Structure: | WOOD W/SUBFLOOR | | Foundation: | CONCRETE | Heating: | FHA GAS | | Interior Finish: | DRYWALL PAINT | Plumbing Fixture Cnt: | 9 | | Roof Slope: | 8" IN 12" | Roof Structure/Cover: | CJ ASPHALT |
|
| | Type | Description | Class CD | Sub Class CD | Year Built | Area |
| | BAS | BASE/MAIN FLOOR | 3 | 0 | 1978 | 924.0 |
| | BIG | BUILT IN GARAGE | 3 | 0 | 1978 | 484.0 |
| | UPS | UPPER STORY | 3 | 0 | 1978 | 704.0 |
| | OWP | OPEN WOOD PORCH W/STEPS | 3 | 0 | 1978 | 404.0 |
| | OWR | OPEN WOOD PORCH W/STEPS/ROOF | 3 | 0 | 1978 | 64.0 |
| | UTY | STORAGE/UTILITY | 3 | 0 | 1978 | 216.0 |
Sketch
Property Image
Land
| 1 | 32 | AC (03.01-09.99) | 5.0000 | 0.00 | 0.00 | 0.00 | 1.00 | $410,000 | $0 |
Roll Value History
| 2026 | N/A | N/A | N/A | N/A | N/A |
| 2025 | $275,303 | $410,000 | $0 | $685,303 | $685,303 |
| 2024 | $279,011 | $390,000 | $0 | $669,011 | $669,011 |
| 2023 | $282,719 | $350,000 | $0 | $632,719 | $632,719 |
| 2022 | $259,361 | $350,000 | $0 | $609,361 | $609,361 |
| 2021 | $228,455 | $300,000 | $0 | $528,455 | $528,455 |
| 2020 | $222,899 | $275,000 | $0 | $497,899 | $497,899 |
| 2019 | $163,648 | $300,000 | $0 | $463,648 | $463,648 |
| 2018 | $121,367 | $250,000 | $0 | $371,367 | $371,367 |
| 2017 | $122,303 | $275,000 | $0 | $397,303 | $397,303 |
| 2016 | $124,172 | $275,000 | $0 | $399,172 | $399,172 |
| 2015 | $126,042 | $275,000 | $0 | $401,042 | $401,042 |
| 2014 | $127,913 | $275,000 | $0 | $402,913 | $402,913 |
| 2013 | $124,371 | $275,000 | $0 | $399,371 | $399,371 |
| 2012 | $126,243 | $275,000 | $0 | $401,243 | $401,243 |
| 2011 | $128,113 | $275,000 | $0 | $403,113 | $403,113 |
| 2010 | $135,947 | $275,000 | $0 | $410,947 | $410,947 |
| 2009 | $141,978 | $300,000 | $0 | $441,978 | $441,978 |
| 2008 | $143,870 | $192,000 | $0 | $335,870 | $335,870 |
| 2007 | $146,160 | $192,000 | $0 | $338,160 | $338,160 |
Deed and Sales History
| 1 | 04/20/2018 | WD | Warranty Deed | CREIGHTON, JOHN JEFFREY | WILLIE, ROBERT H | | | $620,000.00 | 33921 | 4443599 |
| 2 | 01/21/2014 | CCOMPROP | Create Community Property | CREIGHTON, TERRELYNN L | CREIGHTON, JOHN JEFFREY | | | $0.00 | 14137 | 4354537 |
| 3 | 12/06/2013 | TRUSTEED | Trustee's Deed | PIPKIN, F D | CREIGHTON, TERRELYNN L | | | $0.00 | 14029 | 4353963 |
| 4 | 03/01/1994 | QCD | Quit Claim Deed | PIPKIN, FELTON D | PIPKIN, F D | | | $0.00 | 41094 | 94016981 |
| 5 | 07/01/1976 | TRUSTEED | Trustee's Deed | BELL, WARREN W | PIPKIN, FELTON D | | | $25,000.00 | 62320 | 0 |
| 6 | 03/01/1976 | CD | DNU - Correction Deed | BELL, GERALDINE | BELL, WARREN W | | | $0.00 | 60890 | 0 |
| 7 | 01/01/1900 | OTHER | Other - Misc. Documents | Unknown | BELL, GERALDINE | | | $0.00 | 0 | 0 |
Payout Agreement
| No payout information available.. |