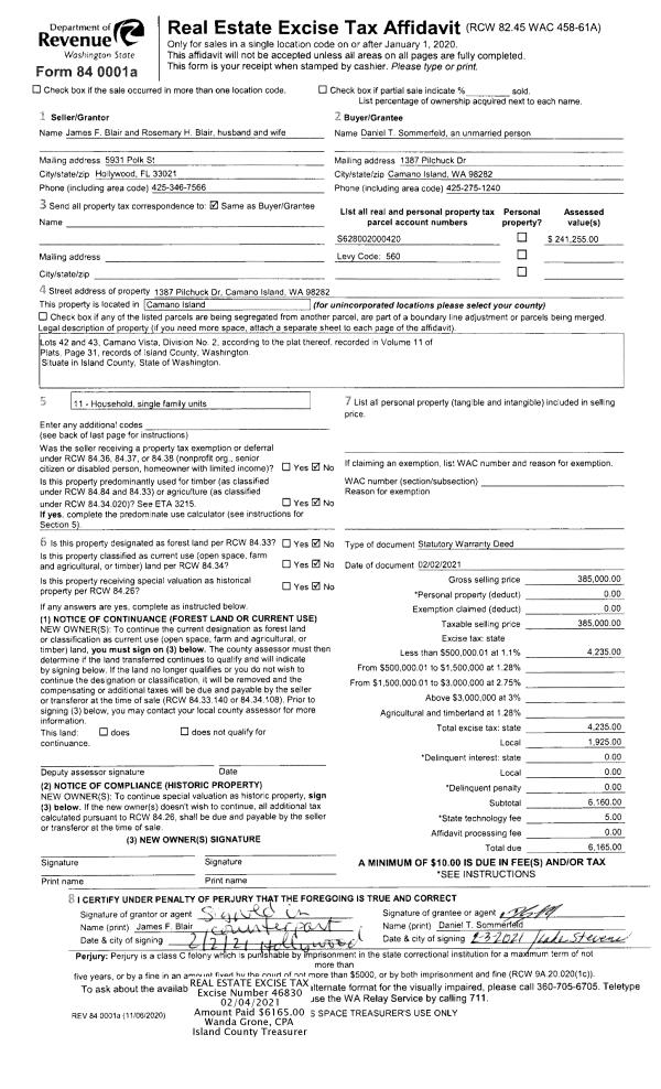
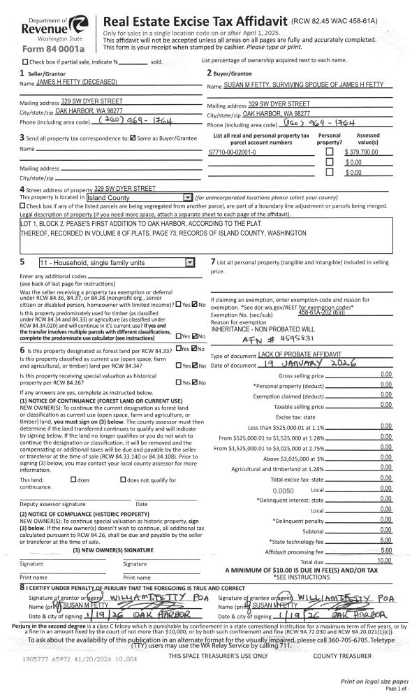
Property
Account |
| Property ID: | 583032 | Abbreviated Legal Description: | IN GL2: S/2 OF: BG 1320'S & 539'W FR SWCR SEC 4 N200' W275' TO ML S ALG ML 201' E295' TPB INCL ADJ TIDES ALSO: BG 1120'S OF SWCR SEC 4 S200' W539' N200.20' E542 .50' TPB EX E20' FOR RD TGW EZ FR 405-4750 R/USE HOUSE ONLY BY POLLOCK |
| Geographic ID: | R32808-402-4830 | Agent Code: | |
| Type: | Real | | |
| Tax Area: | 712 - APPRAISER-S Whid Schl Dist, outside Langley, improved, greater than 1 acre | Land Use Code | 11 |
| Open Space: | N | DFL | N |
| Historic Property: | N | Remodel Property: | N |
| Multi-Family Redevelopment: | N | | |
| Township: | 28 | Section: | 08 |
| Range: | R3 |
Location |
| Address: | | Mapsco: | |
| Neighborhood: | Cycle 4 | Map ID: | 692 |
| Neighborhood CD: | 4 |
Owner |
| Name: | POLLOCK TTEE, THOMAS | Owner ID: | 315802 |
| Mailing Address: | 142 VILLAGE RUN WEST ENCINITAS, CA 92024 | % Ownership: | 100.0000000000% |
| | | Exemptions: | |
Taxes and Assessment Details
Values
| (+) Improvement Homesite Value: | + | $0 | |
| (+) Improvement Non-Homesite Value: | + | $86,485 | |
| (+) Land Homesite Value: | + | $0 | |
| (+) Land Non-Homesite Value: | + | $251,000 | |
| (+) Curr Use (HS): | + | $0 | $0 |
| (+) Curr Use (NHS): | + | $0 | $0 |
| | | -------------------------- | |
| (=) Market Value: | = | $337,485 | |
| (–) Productivity Loss: | – | $0 | |
| | | -------------------------- | |
| (=) Subtotal: | = | $337,485 | |
| (+) Senior Appraised Value: | + | $0 | |
| (+) Non-Senior Appraised Value: | + | $337,485 | |
| | | -------------------------- | |
| (=) Total Appraised Value: | = | $337,485 | |
| (–) Senior Exemption Loss: | – | $0 | |
| (–) Exemption Loss: | – | $0 | |
| | | -------------------------- | |
| (=) Taxable Value: | = | $337,485 | |
Taxing Jurisdiction
| Owner: | POLLOCK TTEE, THOMAS | | |
| % Ownership: | 100.0000000000% | | |
| Total Value: | $337,485 | | |
| Tax Area: | 712 - APPRAISER-S Whid Schl Dist, outside Langley, improved, greater than 1 acre |
| CF | Conservation Futures | 0.0316035091 | $337,485 | $337,485 | $10.67 | | |
| FIRE3 | Fire & Rescue Dist #3 S Whidbey GEN | 1.2004855531 | $337,485 | $337,485 | $405.15 | | |
| HOBOND | Hospital BOND | 0.1910887512 | $337,485 | $337,485 | $64.49 | | |
| HOGEN | Hospital GEN | 0.3902502903 | $337,485 | $337,485 | $131.70 | | |
| CE | County Current Expense | 0.3708482477 | $337,485 | $337,485 | $125.16 | | |
| CR | County Roads | 0.4584763726 | $337,485 | $337,485 | $154.73 | | |
| ISLANDEMS | Hospital GEN (EMS) | 0.5000000000 | $337,485 | $337,485 | $168.74 | | |
| LIB | Library Sno-Isle GEN | 0.3153421757 | $337,485 | $337,485 | $106.42 | | |
| PORTWHID | Port of S Whidbey GEN | 0.1094540357 | $337,485 | $337,485 | $36.94 | | |
| SCH206BOND | School 206 BOND | 0.3161759235 | $337,485 | $337,485 | $106.70 | | |
| SCH206MO | School 206 Enrichment | 0.4547169547 | $337,485 | $337,485 | $153.46 | | |
| ST | State School | 1.3035497053 | $337,485 | $337,485 | $439.93 | | |
| ST2 | State School Part 2 | 0.8169543533 | $337,485 | $337,485 | $275.71 | | |
| SWHIDPRBD | P & R S Whidbey BOND | 0.0152817568 | $337,485 | $337,485 | $5.16 | | |
| SWHIDPRBD2 | P & R S Whidbey BOND2 | 0.0138911264 | $337,485 | $337,485 | $4.69 | | |
| SWHIDPRMT | P & R S Whidbey GEN | 0.2053334452 | $337,485 | $337,485 | $69.30 | | |
| | Total Tax Rate: | 6.6934522006 | | | | | |
| | | | | Taxes w/Current Exemptions: | $2,258.95 | | |
| | | | | Taxes w/o Exemptions: | $2,258.95 | | |
Improvement / Building
| Improvement #1: | RESIDENTIAL | State Code: | Y | 776.0 sqft | Value: | $86,485 |
| Bathrooms: | 1 | Bedrooms: | 2 | | Ceiling: | PLYWOOD PAINTED | Exterior Wall/Cover: | PLY/HARDBOARD T-111 | | Floor Covering: | VINYL 100% | Floor Structure: | WOOD W/SUBFLOOR | | Foundation: | CONCRETE | Interior Finish: | DRYWALL PAINT | | Plumbing Fixture Cnt: | 5 | Roof Slope: | 4" IN 12" | | Roof Structure/Cover: | CJ ALUMINIUM HEAVY |   |   |
|
| | Type | Description | Class CD | Sub Class CD | Year Built | Area |
| | BAS | BASE/MAIN FLOOR | 3 | 0 | 1925 | 776.0 |
| | OWP | OPEN WOOD PORCH W/STEPS | 3 | 0 | 1925 | 240.0 |
| | OWR | OPEN WOOD PORCH W/STEPS/ROOF | 3 | 0 | 1925 | 184.0 |
Sketch
Property Image
Land
| 1 | LB | LOW BANK | 2.0100 | 87555.60 | 100.00 | 0.00 | 1.00 | $250,000 | $0 |
| 2 | 55 | TIDES | 0.0000 | 0.00 | 100.00 | 0.00 | 1.00 | $1,000 | $0 |
Roll Value History
| 2026 | N/A | N/A | N/A | N/A | N/A |
| 2025 | $86,485 | $251,000 | $0 | $337,485 | $337,485 |
| 2024 | $88,316 | $251,000 | $0 | $339,316 | $339,316 |
| 2023 | $90,146 | $251,000 | $0 | $341,146 | $341,146 |
| 2022 | $83,289 | $251,000 | $0 | $334,289 | $334,289 |
| 2021 | $73,867 | $101,000 | $0 | $174,867 | $174,867 |
| 2020 | $56,890 | $101,000 | $0 | $157,890 | $157,890 |
| 2019 | $40,946 | $101,000 | $0 | $141,946 | $141,946 |
| 2018 | $41,137 | $101,000 | $0 | $142,137 | $142,137 |
| 2017 | $41,524 | $101,000 | $0 | $142,524 | $142,524 |
| 2016 | $39,631 | $101,000 | $0 | $140,631 | $140,631 |
| 2015 | $40,351 | $101,000 | $0 | $141,351 | $141,351 |
| 2014 | $26,879 | $101,000 | $0 | $127,879 | $127,879 |
| 2013 | $25,879 | $124,013 | $0 | $149,892 | $149,892 |
| 2012 | $28,073 | $914,107 | $0 | $942,180 | $942,180 |
| 2011 | $28,671 | $914,107 | $0 | $942,778 | $942,778 |
| 2010 | $36,091 | $914,107 | $0 | $950,198 | $950,198 |
| 2009 | $37,842 | $1,142,384 | $0 | $1,180,226 | $1,180,226 |
| 2008 | $36,521 | $1,142,400 | $0 | $1,178,921 | $1,178,921 |
| 2007 | $37,181 | $800,564 | $0 | $837,745 | $837,745 |
Deed and Sales History
| 1 | 10/21/2024 | QCD | Quit Claim Deed | MARASTELLA, LLC | POLLOCK TTEE, THOMAS | | | $10.00 | 62824 | 4583304 |
| 2 | 12/12/2016 | QCD | Quit Claim Deed | URSHAN | MARASTELLA, LLC | | | $0.00 | 27245 | 4413061 |
| 3 | 01/26/2015 | PRD | Personal Representatives Deed | MORITZ, HAROLD K | URSHAN | | | $110,000.00 | 18445 | 4373074 |
| 4 | 09/01/1994 | QCD | Quit Claim Deed | MORITZ, HAROLD K | MORITZ, HAROLD K | | | $0.00 | 43845 | 94019997 |
| 5 | 02/01/1973 | QCD | Quit Claim Deed | Unknown | MORITZ, HAROLD K | | | $0.00 | 60810 | 258844 |
Payout Agreement
| No payout information available.. |