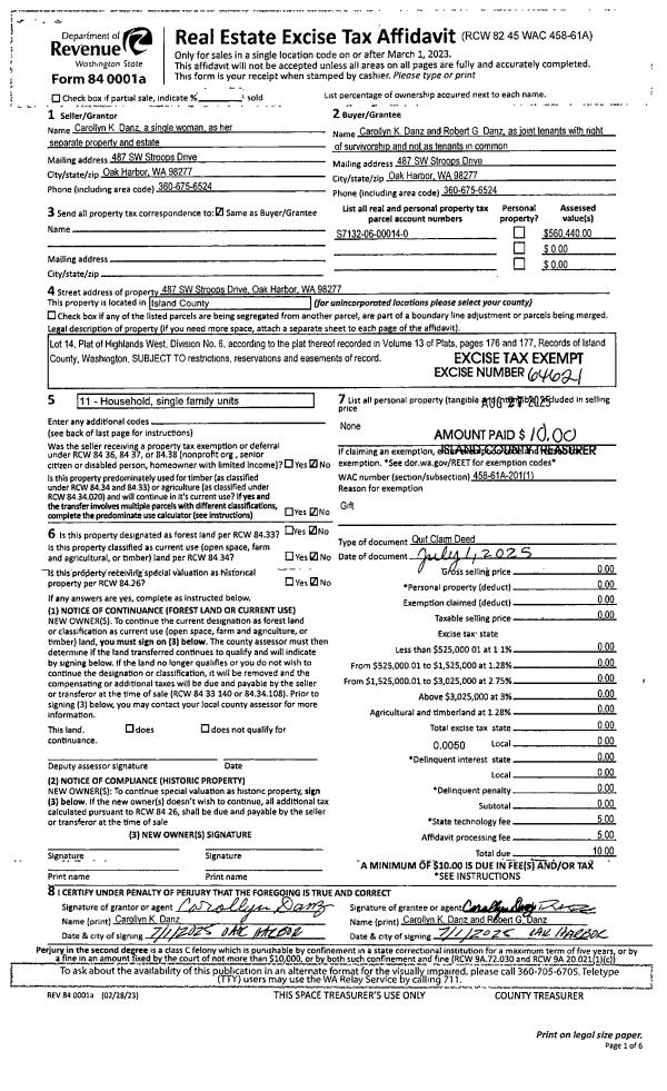
Property
Account |
| Property ID: | 583130 | Abbreviated Legal Description: | RIDGEHAVEN #2 LOT 19 |
| Geographic ID: | S8012-02-00019-0 | Agent Code: | |
| Type: | Real | | |
| Tax Area: | 100 - APPRAISER-OH Schl Dist, in OH | Land Use Code | 11 |
| Open Space: | N | DFL | N |
| Historic Property: | N | Remodel Property: | N |
| Multi-Family Redevelopment: | N | | |
| Township: | | Section: | |
| Range: | |
Location |
| Address: | 1279 SW BARRINGTON DR OAK HARBOR, WA 98277 | Mapsco: | |
| Neighborhood: | Cycle 1 | Map ID: | 90 |
| Neighborhood CD: | 1 |
Owner |
| Name: | PARKER, JESSERAY | Owner ID: | 315032 |
| Mailing Address: | EMALEA TANNER 1279 SW BARRINGTON DR OAK HARBOR, WA 98277 | % Ownership: | 100.0000000000% |
| | | Exemptions: | |
Taxes and Assessment Details
Values
| (+) Improvement Homesite Value: | + | $0 | |
| (+) Improvement Non-Homesite Value: | + | $332,465 | |
| (+) Land Homesite Value: | + | $0 | |
| (+) Land Non-Homesite Value: | + | $200,000 | |
| (+) Curr Use (HS): | + | $0 | $0 |
| (+) Curr Use (NHS): | + | $0 | $0 |
| | | -------------------------- | |
| (=) Market Value: | = | $532,465 | |
| (–) Productivity Loss: | – | $0 | |
| | | -------------------------- | |
| (=) Subtotal: | = | $532,465 | |
| (+) Senior Appraised Value: | + | $0 | |
| (+) Non-Senior Appraised Value: | + | $532,465 | |
| | | -------------------------- | |
| (=) Total Appraised Value: | = | $532,465 | |
| (–) Senior Exemption Loss: | – | $0 | |
| (–) Exemption Loss: | – | $0 | |
| | | -------------------------- | |
| (=) Taxable Value: | = | $532,465 | |
Taxing Jurisdiction
| Owner: | PARKER, JESSERAY | | |
| % Ownership: | 100.0000000000% | | |
| Total Value: | $532,465 | | |
| Tax Area: | 100 - APPRAISER-OH Schl Dist, in OH |
| CF | Conservation Futures | 0.0316035091 | $532,465 | $532,465 | $16.83 | | |
| CEM1 | Cemetery #1 | 0.0040320932 | $532,465 | $532,465 | $2.15 | | |
| COH | City of Oak Harbor | 2.3001546061 | $532,465 | $532,465 | $1,224.75 | | |
| OAKBOND | City of Oak Harbor BOND | 0.1926904192 | $532,465 | $532,465 | $102.60 | | |
| HOBOND | Hospital BOND | 0.1910887512 | $532,465 | $532,465 | $101.75 | | |
| HOGEN | Hospital GEN | 0.3902502903 | $532,465 | $532,465 | $207.79 | | |
| CE | County Current Expense | 0.3708482477 | $532,465 | $532,465 | $197.46 | | |
| ISLANDEMS | Hospital GEN (EMS) | 0.5000000000 | $532,465 | $532,465 | $266.23 | | |
| LIB | Library Sno-Isle GEN | 0.3153421757 | $532,465 | $532,465 | $167.91 | | |
| NWHIDPRMT | P & R N Whidbey GEN | 0.2004466701 | $532,465 | $532,465 | $106.73 | | |
| SCH201MO | School 201 Enrichment | 1.8559231640 | $532,465 | $532,465 | $988.21 | | |
| ST | State School | 1.3035497053 | $532,465 | $532,465 | $694.09 | | |
| ST2 | State School Part 2 | 0.8169543533 | $532,465 | $532,465 | $435.00 | | |
| | Total Tax Rate: | 8.4728839852 | | | | | |
| | | | | Taxes w/Current Exemptions: | $4,511.50 | | |
| | | | | Taxes w/o Exemptions: | $4,511.50 | | |
Improvement / Building
| Improvement #1: | RESIDENTIAL | State Code: | Y | 1888.1 sqft | Value: | $332,465 |
| Bathrooms: | 2 | Bedrooms: | 3 | | Ceiling: | DRYWALL PAINTED | Exterior Wall/Cover: | WOOD SIDING | | Floor Covering: | HARDWOOD/CARP 60-40 | Floor Structure: | WOOD W/SUBFLOOR | | Foundation: | CONCRETE | Heating: | FHA GAS | | Interior Finish: | DRYWALL PAINT | Plumbing Fixture Cnt: | 9 | | Roof Slope: | 4" IN 12" | Roof Structure/Cover: | CJ ASPHALT |
|
| | Type | Description | Class CD | Sub Class CD | Year Built | Area |
| | BAS | BASE/MAIN FLOOR | 3 | 0 | 1985 | 1888.1 |
| | AGR | ATTACHED GARAGE | 3 | 0 | 1985 | 630.0 |
| | OWP | OPEN WOOD PORCH W/STEPS | 3 | 0 | 1985 | 388.5 |
| | OWC | OPEN WOOD PORCH W/STEPS/ROOF/C | 3 | 0 | 1985 | 56.0 |
Sketch
Property Image
Land
| 1 | 15 | SQ (12001-21780) | 0.0000 | 0.00 | 0.00 | 0.00 | 1.00 | $200,000 | $0 |
Roll Value History
| 2026 | N/A | N/A | N/A | N/A | N/A |
| 2025 | $332,465 | $200,000 | $0 | $532,465 | $532,465 |
| 2024 | $336,457 | $190,000 | $0 | $526,457 | $526,457 |
| 2023 | $328,470 | $200,000 | $0 | $528,470 | $528,470 |
| 2022 | $301,057 | $180,000 | $0 | $481,057 | $481,057 |
| 2021 | $264,924 | $150,000 | $0 | $414,924 | $414,924 |
| 2020 | $258,567 | $100,000 | $0 | $358,567 | $358,567 |
| 2019 | $195,630 | $150,000 | $0 | $345,630 | $345,630 |
| 2018 | $196,197 | $130,000 | $0 | $326,197 | $326,197 |
| 2017 | $193,533 | $110,000 | $0 | $303,533 | $303,533 |
| 2016 | $195,759 | $90,000 | $0 | $285,759 | $285,759 |
| 2015 | $197,983 | $70,000 | $0 | $267,983 | $267,983 |
| 2014 | $168,122 | $55,000 | $0 | $223,122 | $223,122 |
| 2013 | $170,148 | $55,000 | $0 | $225,148 | $225,148 |
| 2012 | $172,172 | $60,000 | $0 | $232,172 | $232,172 |
| 2011 | $185,629 | $50,000 | $0 | $235,629 | $235,629 |
| 2010 | $188,093 | $50,000 | $0 | $238,093 | $238,093 |
| 2009 | $196,107 | $60,000 | $0 | $256,107 | $256,107 |
| 2008 | $198,474 | $73,000 | $0 | $271,474 | $271,474 |
| 2007 | $200,840 | $73,000 | $0 | $273,840 | $273,840 |
Deed and Sales History
| 1 | 12/23/2024 | WD | Warranty Deed | CRANE, RAYMOND L | PARKER, JESSERAY | | | $535,000.00 | 62233 | 4580915 |
| 2 | 06/27/2013 | WD | Warranty Deed | HAGNESS, RYAN JAMES | CRANE, RAYMOND L | | | $274,000.00 | 11838 | 4342923 |
| 3 | 08/26/2010 | WD | Warranty Deed | WRIGHT, MICHAEL W | HAGNESS, RYAN JAMES | | | $261,000.00 | 2169 | 4279955 |
| 4 | 01/01/1988 | WD | Warranty Deed | BERG, KENNETH D | WRIGHT, MICHAEL W | | | $86,700.00 | 80286 | 88001258 |
| 5 | 04/01/1985 | WD | Warranty Deed | RIDGEHAVEN, ASSOCIATES | BERG, KENNETH D | | | $20,500.00 | 51034 | 85004306 |
| 6 | 01/01/1900 | OTHER | Other - Misc. Documents | Unknown | RIDGEHAVEN, ASSOCIATES | | | $0.00 | 32811 | 415478 |
Payout Agreement
| No payout information available.. |