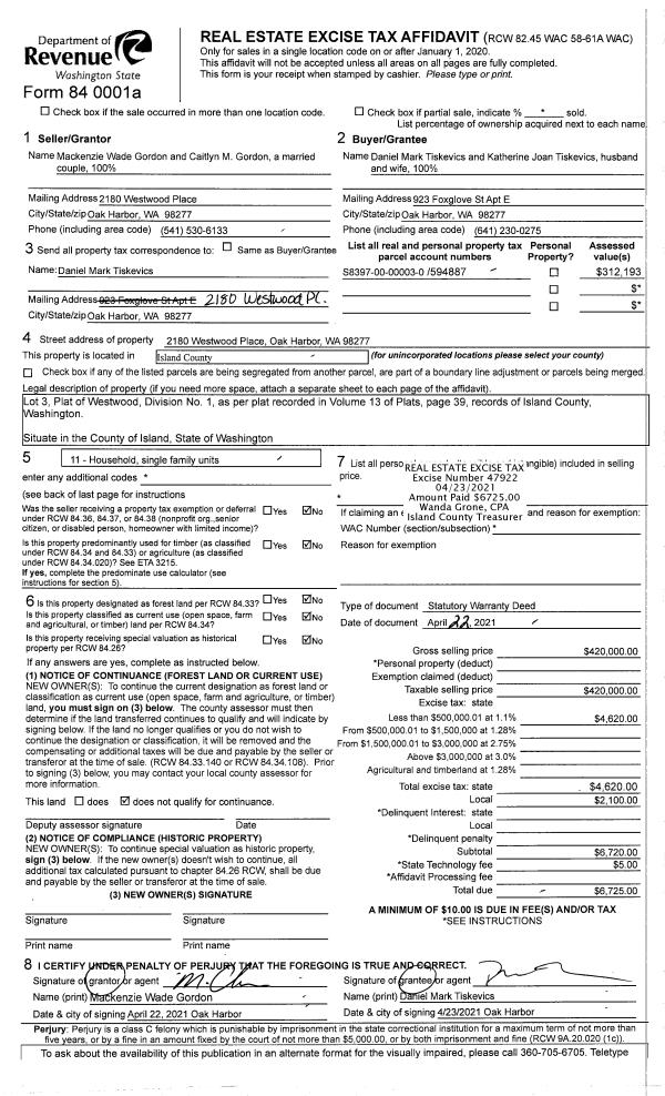
Property
Account |
| Property ID: | 583283 | Abbreviated Legal Description: | DAWNCREST LOT 2 |
| Geographic ID: | S6452-00-00002-0 | Agent Code: | |
| Type: | Real | | |
| Tax Area: | 110 - APPRAISER-OH Schl Dist, outside OH, improved & 1 acre or less | Land Use Code | 11 |
| Open Space: | N | DFL | N |
| Historic Property: | N | Remodel Property: | N |
| Multi-Family Redevelopment: | N | | |
| Township: | | Section: | |
| Range: | |
Location |
| Address: | 2026 BAYMONT DR OAK HARBOR, WA 98277 | Mapsco: | |
| Neighborhood: | Cycle 1 | Map ID: | 90 |
| Neighborhood CD: | 1 |
Owner |
| Name: | O'DONNELL, MATTHEW TIMOTHY | Owner ID: | 308521 |
| Mailing Address: | 2026 BAYMONT DR OAK HARBOR, WA 98277 | % Ownership: | 100.0000000000% |
| | | Exemptions: | |
Taxes and Assessment Details
Values
| (+) Improvement Homesite Value: | + | $0 | |
| (+) Improvement Non-Homesite Value: | + | $338,460 | |
| (+) Land Homesite Value: | + | $0 | |
| (+) Land Non-Homesite Value: | + | $180,000 | |
| (+) Curr Use (HS): | + | $0 | $0 |
| (+) Curr Use (NHS): | + | $0 | $0 |
| | | -------------------------- | |
| (=) Market Value: | = | $518,460 | |
| (–) Productivity Loss: | – | $0 | |
| | | -------------------------- | |
| (=) Subtotal: | = | $518,460 | |
| (+) Senior Appraised Value: | + | $0 | |
| (+) Non-Senior Appraised Value: | + | $518,460 | |
| | | -------------------------- | |
| (=) Total Appraised Value: | = | $518,460 | |
| (–) Senior Exemption Loss: | – | $0 | |
| (–) Exemption Loss: | – | $0 | |
| | | -------------------------- | |
| (=) Taxable Value: | = | $518,460 | |
Taxing Jurisdiction
| Owner: | O'DONNELL, MATTHEW TIMOTHY | | |
| % Ownership: | 100.0000000000% | | |
| Total Value: | $518,460 | | |
| Tax Area: | 110 - APPRAISER-OH Schl Dist, outside OH, improved & 1 acre or less |
| CF | Conservation Futures | 0.0316035091 | $518,460 | $518,460 | $16.39 | | |
| CEM1 | Cemetery #1 | 0.0040320932 | $518,460 | $518,460 | $2.09 | | |
| FIRE2 | Fire & Rescue Dist #2 N Whidbey GEN | 0.5475949600 | $518,460 | $518,460 | $283.91 | | |
| HOBOND | Hospital BOND | 0.1910887512 | $518,460 | $518,460 | $99.07 | | |
| HOGEN | Hospital GEN | 0.3902502903 | $518,460 | $518,460 | $202.33 | | |
| CE | County Current Expense | 0.3708482477 | $518,460 | $518,460 | $192.27 | | |
| CR | County Roads | 0.4584763726 | $518,460 | $518,460 | $237.70 | | |
| ISLANDEMS | Hospital GEN (EMS) | 0.5000000000 | $518,460 | $518,460 | $259.23 | | |
| LIB | Library Sno-Isle GEN | 0.3153421757 | $518,460 | $518,460 | $163.49 | | |
| NWHIDPRMT | P & R N Whidbey GEN | 0.2004466701 | $518,460 | $518,460 | $103.92 | | |
| SCH201MO | School 201 Enrichment | 1.8559231640 | $518,460 | $518,460 | $962.22 | | |
| ST | State School | 1.3035497053 | $518,460 | $518,460 | $675.84 | | |
| ST2 | State School Part 2 | 0.8169543533 | $518,460 | $518,460 | $423.56 | | |
| | Total Tax Rate: | 6.9861102925 | | | | | |
| | | | | Taxes w/Current Exemptions: | $3,622.02 | | |
| | | | | Taxes w/o Exemptions: | $3,622.02 | | |
Improvement / Building
| Improvement #1: | RESIDENTIAL | State Code: | Y | 1771.5 sqft | Value: | $338,460 |
| Bathrooms: | 2.25 | Bedrooms: | 3 | | Ceiling: | DRYWALL PAINTED | Exterior Wall/Cover: | WOOD SIDING | | Floor Covering: | CARPET/VINYL 80-20 | Floor Structure: | WOOD W/SUBFLOOR | | Foundation: | CONCRETE | Heating: | HEAT PUMP | | Interior Finish: | DRYWALL PAINT | Plumbing Fixture Cnt: | 11 | | Roof Slope: | 4" IN 12" | Roof Structure/Cover: | CJ ASPHALT |
|
| | Type | Description | Class CD | Sub Class CD | Year Built | Area |
| | BAS | BASE/MAIN FLOOR | 3 | 0 | 1987 | 1051.5 |
| | OP2 | OPEN PORCH W/STEPS | 3 | 0 | 1987 | 205.0 |
| | UPS | UPPER STORY | 3 | 0 | 1987 | 720.0 |
| | OWP | OPEN WOOD PORCH W/STEPS | 3 | 0 | 1987 | 350.3 |
| | AGR | ATTACHED GARAGE | 3 | 0 | 1987 | 576.0 |
Sketch
Property Image
Land
| 1 | 15 | SQ (12001-21780) | 0.2964 | 12912.88 | 96.68 | 133.57 | 1.00 | $180,000 | $0 |
Roll Value History
| 2026 | N/A | N/A | N/A | N/A | N/A |
| 2025 | $338,460 | $180,000 | $0 | $518,460 | $518,460 |
| 2024 | $338,232 | $180,000 | $0 | $518,232 | $518,232 |
| 2023 | $338,767 | $180,000 | $0 | $518,767 | $518,767 |
| 2022 | $310,723 | $180,000 | $0 | $490,723 | $490,723 |
| 2021 | $273,656 | $140,000 | $0 | $413,656 | $413,656 |
| 2020 | $225,635 | $100,000 | $0 | $325,635 | $325,635 |
| 2019 | $174,904 | $150,000 | $0 | $324,904 | $324,904 |
| 2018 | $175,471 | $140,000 | $0 | $315,471 | $315,471 |
| 2017 | $171,353 | $120,000 | $0 | $291,353 | $291,353 |
| 2016 | $169,099 | $90,000 | $0 | $259,099 | $259,099 |
| 2015 | $171,353 | $70,000 | $0 | $241,353 | $241,353 |
| 2014 | $173,608 | $55,000 | $0 | $228,608 | $228,608 |
| 2013 | $175,863 | $55,000 | $0 | $230,863 | $230,863 |
| 2012 | $178,117 | $60,000 | $0 | $238,117 | $238,117 |
| 2011 | $174,363 | $50,000 | $0 | $224,363 | $224,363 |
| 2010 | $179,466 | $50,000 | $0 | $229,466 | $229,466 |
| 2009 | $187,304 | $75,000 | $0 | $262,304 | $262,304 |
| 2008 | $189,721 | $100,000 | $0 | $289,721 | $289,721 |
| 2007 | $192,148 | $100,000 | $0 | $292,148 | $292,148 |
Deed and Sales History
| 1 | 04/27/2023 | WD | Warranty Deed | TYSON, EDDIE | O'DONNELL, MATTHEW TIMOTHY | | | $528,765.00 | 56537 | 4559303 |
| 2 | 09/25/2020 | WD | Warranty Deed | LARSON, NICHOLAS W | TYSON, EDDIE | | | $450,000.00 | 45535 | 4501329 |
| 3 | 02/25/2016 | WD | Warranty Deed | SWITTS, GLENN D | LARSON, NICHOLAS W | | | $299,000.00 | 23605 | 4396189 |
| 4 | 10/05/2001 | WD | Warranty Deed | NEPOMUCENO, YVES/TRISHA A | SWITTS, GLENN D | | | $173,000.00 | 14006 | 4000160 |
| 5 | 12/01/1995 | WD | Warranty Deed | ANDERSON, WILLIAM | NEPOMUCENO, YVES/TRISHA A | | | $169,000.00 | 54251 | 95019642 |
| 6 | 12/01/1986 | WD | Warranty Deed | BWB, CONSTRUCTION C | ANDERSON, WILLIAM | | | $89,900.00 | 63548 | 86015944 |
| 7 | 09/01/1986 | WD | Warranty Deed | WALDEN, STEPHEN M | BWB, CONSTRUCTION C | | | $18,525.00 | 62467 | 86011190 |
| 8 | 07/01/1983 | OTHER | Other - Misc. Documents | Unknown | WALDEN, STEPHEN M | | | $0.00 | 60121 | 0 |
Payout Agreement
| No payout information available.. |