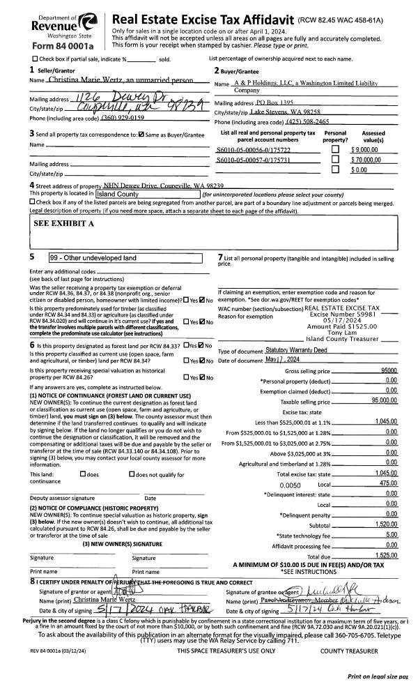
Property
Account |
| Property ID: | 583309 | Abbreviated Legal Description: | DAWNCREST LOT 4 |
| Geographic ID: | S6452-00-00004-0 | Agent Code: | |
| Type: | Real | | |
| Tax Area: | 110 - APPRAISER-OH Schl Dist, outside OH, improved & 1 acre or less | Land Use Code | 11 |
| Open Space: | N | DFL | N |
| Historic Property: | N | Remodel Property: | N |
| Multi-Family Redevelopment: | N | | |
| Township: | | Section: | |
| Range: | |
Location |
| Address: | 1021 OAKMONT LN OAK HARBOR, WA 98277 | Mapsco: | |
| Neighborhood: | Cycle 1 | Map ID: | 90 |
| Neighborhood CD: | 1 |
Owner |
| Name: | FLETCHER, DARRYL | Owner ID: | 269486 |
| Mailing Address: | RAELENE FLETCHER 1021 OAKMONT LN OAK HARBOR, WA 98277 | % Ownership: | 100.0000000000% |
| | | Exemptions: | |
Taxes and Assessment Details
Values
| (+) Improvement Homesite Value: | + | $0 | |
| (+) Improvement Non-Homesite Value: | + | $313,058 | |
| (+) Land Homesite Value: | + | $0 | |
| (+) Land Non-Homesite Value: | + | $180,000 | |
| (+) Curr Use (HS): | + | $0 | $0 |
| (+) Curr Use (NHS): | + | $0 | $0 |
| | | -------------------------- | |
| (=) Market Value: | = | $493,058 | |
| (–) Productivity Loss: | – | $0 | |
| | | -------------------------- | |
| (=) Subtotal: | = | $493,058 | |
| (+) Senior Appraised Value: | + | $0 | |
| (+) Non-Senior Appraised Value: | + | $493,058 | |
| | | -------------------------- | |
| (=) Total Appraised Value: | = | $493,058 | |
| (–) Senior Exemption Loss: | – | $0 | |
| (–) Exemption Loss: | – | $0 | |
| | | -------------------------- | |
| (=) Taxable Value: | = | $493,058 | |
Taxing Jurisdiction
| Owner: | FLETCHER, DARRYL | | |
| % Ownership: | 100.0000000000% | | |
| Total Value: | $493,058 | | |
| Tax Area: | 110 - APPRAISER-OH Schl Dist, outside OH, improved & 1 acre or less |
| CF | Conservation Futures | 0.0316035091 | $493,058 | $493,058 | $15.58 | | |
| CEM1 | Cemetery #1 | 0.0040320932 | $493,058 | $493,058 | $1.99 | | |
| FIRE2 | Fire & Rescue Dist #2 N Whidbey GEN | 0.5475949600 | $493,058 | $493,058 | $270.00 | | |
| HOBOND | Hospital BOND | 0.1910887512 | $493,058 | $493,058 | $94.22 | | |
| HOGEN | Hospital GEN | 0.3902502903 | $493,058 | $493,058 | $192.42 | | |
| CE | County Current Expense | 0.3708482477 | $493,058 | $493,058 | $182.85 | | |
| CR | County Roads | 0.4584763726 | $493,058 | $493,058 | $226.06 | | |
| ISLANDEMS | Hospital GEN (EMS) | 0.5000000000 | $493,058 | $493,058 | $246.53 | | |
| LIB | Library Sno-Isle GEN | 0.3153421757 | $493,058 | $493,058 | $155.48 | | |
| NWHIDPRMT | P & R N Whidbey GEN | 0.2004466701 | $493,058 | $493,058 | $98.83 | | |
| SCH201MO | School 201 Enrichment | 1.8559231640 | $493,058 | $493,058 | $915.08 | | |
| ST | State School | 1.3035497053 | $493,058 | $493,058 | $642.73 | | |
| ST2 | State School Part 2 | 0.8169543533 | $493,058 | $493,058 | $402.81 | | |
| | Total Tax Rate: | 6.9861102925 | | | | | |
| | | | | Taxes w/Current Exemptions: | $3,444.58 | | |
| | | | | Taxes w/o Exemptions: | $3,444.58 | | |
Improvement / Building
| Improvement #1: | RESIDENTIAL | State Code: | Y | 1890.0 sqft | Value: | $313,058 |
| Bathrooms: | 2.5 | Bedrooms: | 3 | | Ceiling: | DRYWALL PAINTED | Exterior Wall/Cover: | VINYL | | Floor Covering: | CARPET/VINYL 60-40 | Floor Structure: | WOOD W/SUBFLOOR | | Foundation: | CONCRETE | Heating: | FHA GAS | | Interior Finish: | DRYWALL PAINT | Plumbing Fixture Cnt: | 11 | | Roof Slope: | 4" IN 12" | Roof Structure/Cover: | CJ ASPHALT |
|
| | Type | Description | Class CD | Sub Class CD | Year Built | Area |
| | BAS | BASE/MAIN FLOOR | 3 | 0 | 1985 | 1890.0 |
| | AGR | ATTACHED GARAGE | 3 | 0 | 1985 | 520.0 |
| | OWP | OPEN WOOD PORCH W/STEPS | 3 | 0 | 1985 | 1237.0 |
Sketch
Property Image
Land
| 1 | 15 | SQ (12001-21780) | 0.0000 | 0.00 | 0.00 | 0.00 | 1.00 | $180,000 | $0 |
Roll Value History
| 2026 | N/A | N/A | N/A | N/A | N/A |
| 2025 | $313,058 | $180,000 | $0 | $493,058 | $493,058 |
| 2024 | $317,218 | $180,000 | $0 | $497,218 | $497,218 |
| 2023 | $297,887 | $180,000 | $0 | $477,887 | $477,887 |
| 2022 | $273,329 | $180,000 | $0 | $453,329 | $453,329 |
| 2021 | $240,780 | $140,000 | $0 | $380,780 | $380,780 |
| 2020 | $234,891 | $100,000 | $0 | $334,891 | $334,891 |
| 2019 | $176,199 | $150,000 | $0 | $326,199 | $326,199 |
| 2018 | $176,755 | $140,000 | $0 | $316,755 | $316,755 |
| 2017 | $180,303 | $120,000 | $0 | $300,303 | $300,303 |
| 2016 | $182,557 | $90,000 | $0 | $272,557 | $272,557 |
| 2015 | $171,288 | $70,000 | $0 | $241,288 | $241,288 |
| 2014 | $173,543 | $55,000 | $0 | $228,543 | $228,543 |
| 2013 | $175,796 | $55,000 | $0 | $230,796 | $230,796 |
| 2012 | $178,050 | $60,000 | $0 | $238,050 | $238,050 |
| 2011 | $175,633 | $50,000 | $0 | $225,633 | $225,633 |
| 2010 | $184,286 | $50,000 | $0 | $234,286 | $234,286 |
| 2009 | $192,303 | $75,000 | $0 | $267,303 | $267,303 |
| 2008 | $194,711 | $100,000 | $0 | $294,711 | $294,711 |
| 2007 | $197,135 | $100,000 | $0 | $297,135 | $297,135 |
Deed and Sales History
| 1 | 03/11/2015 | WD | Warranty Deed | MARTIN, DAVID | FLETCHER, DARRYL | | | $260,000.00 | 18778 | 4374880 |
| 2 | 02/12/2004 | WD | Warranty Deed | SCHALLOT, CHARLES T | MARTIN, DAVID | | | $219,900.00 | 40707 | 4092375 |
| 3 | 10/01/1985 | WD | Warranty Deed | WALDEN, STEPHEN M | SCHALLOT, CHARLES T | | | $78,500.00 | 53110 | 85012332 |
| 4 | 07/01/1983 | OTHER | Other - Misc. Documents | Unknown | WALDEN, STEPHEN M | | | $0.00 | 60121 | 0 |
Payout Agreement
| No payout information available.. |