Property
Account |
| Property ID: | 583381 | Abbreviated Legal Description: | DAWNCREST LOT 12 |
| Geographic ID: | S6452-00-00012-0 | Agent Code: | |
| Type: | Real | | |
| Tax Area: | 110 - APPRAISER-OH Schl Dist, outside OH, improved & 1 acre or less | Land Use Code | 11 |
| Open Space: | N | DFL | N |
| Historic Property: | N | Remodel Property: | N |
| Multi-Family Redevelopment: | N | | |
| Township: | | Section: | |
| Range: | |
Location |
| Address: | 1058 OAKMONT LN OAK HARBOR, WA 98277 | Mapsco: | |
| Neighborhood: | Cycle 1 | Map ID: | 90 |
| Neighborhood CD: | 1 |
Owner |
| Name: | WEAVER, LANCE JAMES | Owner ID: | 280706 |
| Mailing Address: | DEBORAH ANN WEAVER 1058 OAKMONT LN OAK HARBOR, WA 98277 | % Ownership: | 100.0000000000% |
| | | Exemptions: | |
Taxes and Assessment Details
Values
| (+) Improvement Homesite Value: | + | $0 | |
| (+) Improvement Non-Homesite Value: | + | $321,599 | |
| (+) Land Homesite Value: | + | $0 | |
| (+) Land Non-Homesite Value: | + | $180,000 | |
| (+) Curr Use (HS): | + | $0 | $0 |
| (+) Curr Use (NHS): | + | $0 | $0 |
| | | -------------------------- | |
| (=) Market Value: | = | $501,599 | |
| (–) Productivity Loss: | – | $0 | |
| | | -------------------------- | |
| (=) Subtotal: | = | $501,599 | |
| (+) Senior Appraised Value: | + | $0 | |
| (+) Non-Senior Appraised Value: | + | $501,599 | |
| | | -------------------------- | |
| (=) Total Appraised Value: | = | $501,599 | |
| (–) Senior Exemption Loss: | – | $0 | |
| (–) Exemption Loss: | – | $0 | |
| | | -------------------------- | |
| (=) Taxable Value: | = | $501,599 | |
Taxing Jurisdiction
| Owner: | WEAVER, LANCE JAMES | | |
| % Ownership: | 100.0000000000% | | |
| Total Value: | $501,599 | | |
| Tax Area: | 110 - APPRAISER-OH Schl Dist, outside OH, improved & 1 acre or less |
| CF | Conservation Futures | 0.0316035091 | $501,599 | $501,599 | $15.85 | | |
| CEM1 | Cemetery #1 | 0.0040320932 | $501,599 | $501,599 | $2.02 | | |
| FIRE2 | Fire & Rescue Dist #2 N Whidbey GEN | 0.5475949600 | $501,599 | $501,599 | $274.67 | | |
| HOBOND | Hospital BOND | 0.1910887512 | $501,599 | $501,599 | $95.85 | | |
| HOGEN | Hospital GEN | 0.3902502903 | $501,599 | $501,599 | $195.75 | | |
| CE | County Current Expense | 0.3708482477 | $501,599 | $501,599 | $186.02 | | |
| CR | County Roads | 0.4584763726 | $501,599 | $501,599 | $229.97 | | |
| ISLANDEMS | Hospital GEN (EMS) | 0.5000000000 | $501,599 | $501,599 | $250.80 | | |
| LIB | Library Sno-Isle GEN | 0.3153421757 | $501,599 | $501,599 | $158.18 | | |
| NWHIDPRMT | P & R N Whidbey GEN | 0.2004466701 | $501,599 | $501,599 | $100.54 | | |
| SCH201MO | School 201 Enrichment | 1.8559231640 | $501,599 | $501,599 | $930.93 | | |
| ST | State School | 1.3035497053 | $501,599 | $501,599 | $653.86 | | |
| ST2 | State School Part 2 | 0.8169543533 | $501,599 | $501,599 | $409.78 | | |
| | Total Tax Rate: | 6.9861102925 | | | | | |
| | | | | Taxes w/Current Exemptions: | $3,504.22 | | |
| | | | | Taxes w/o Exemptions: | $3,504.22 | | |
Improvement / Building
| Improvement #1: | RESIDENTIAL | State Code: | Y | 1668.0 sqft | Value: | $321,599 |
| Bathrooms: | 2.5 | Bedrooms: | 3 | | Ceiling: | DRYWALL PAINTED | Exterior Wall/Cover: | WOOD SIDING | | Floor Covering: | CARPET/VINYL 80-20 | Floor Structure: | WOOD W/SUBFLOOR | | Foundation: | CONCRETE | Heating: | FHA GAS | | Interior Finish: | DRYWALL PAINT | Plumbing Fixture Cnt: | 12 | | Roof Slope: | 5" IN 12" | Roof Structure/Cover: | CJ ASPHALT |
|
| | Type | Description | Class CD | Sub Class CD | Year Built | Area |
| | BAS | BASE/MAIN FLOOR | 3 | 0 | 1990 | 1332.0 |
| | BIG | BUILT IN GARAGE | 3 | 0 | 1990 | 606.0 |
| | OWP | OPEN WOOD PORCH W/STEPS | 3 | 0 | 1990 | 380.5 |
| | DWN | DOWNSTAIRS LIVING AREA | 3 | 0 | 1990 | 336.0 |
Sketch
Property Image
Land
| 1 | 15 | SQ (12001-21780) | 0.0000 | 0.00 | 0.00 | 0.00 | 1.00 | $180,000 | $0 |
Roll Value History
| 2026 | N/A | N/A | N/A | N/A | N/A |
| 2025 | $321,599 | $180,000 | $0 | $501,599 | $501,599 |
| 2024 | $325,462 | $180,000 | $0 | $505,462 | $505,462 |
| 2023 | $313,872 | $180,000 | $0 | $493,872 | $493,872 |
| 2022 | $287,721 | $180,000 | $0 | $467,721 | $467,721 |
| 2021 | $253,222 | $140,000 | $0 | $393,222 | $393,222 |
| 2020 | $246,388 | $100,000 | $0 | $346,388 | $346,388 |
| 2019 | $178,538 | $150,000 | $0 | $328,538 | $328,538 |
| 2018 | $179,061 | $140,000 | $0 | $319,061 | $319,061 |
| 2017 | $169,948 | $120,000 | $0 | $289,948 | $289,948 |
| 2016 | $161,263 | $90,000 | $0 | $251,263 | $251,263 |
| 2015 | $163,332 | $70,000 | $0 | $233,332 | $233,332 |
| 2014 | $165,399 | $55,000 | $0 | $220,399 | $220,399 |
| 2013 | $167,467 | $55,000 | $0 | $222,467 | $222,467 |
| 2012 | $169,534 | $60,000 | $0 | $229,534 | $229,534 |
| 2011 | $167,056 | $50,000 | $0 | $217,056 | $217,056 |
| 2010 | $175,394 | $50,000 | $0 | $225,394 | $225,394 |
| 2009 | $183,061 | $75,000 | $0 | $258,061 | $258,061 |
| 2008 | $185,404 | $100,000 | $0 | $285,404 | $285,404 |
| 2007 | $187,772 | $100,000 | $0 | $287,772 | $287,772 |
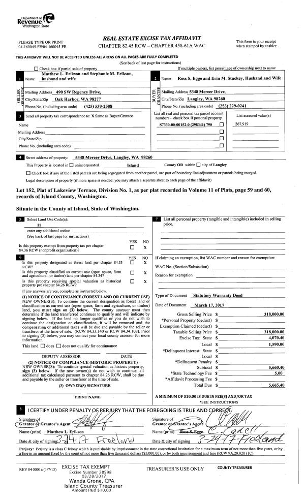
Deed and Sales History
| 1 | 06/12/2017 | WD | Warranty Deed | KRYMSKI, NOREEN L | WEAVER, LANCE JAMES | | | $320,000.00 | 30040 | 4425469 |
| 2 | 10/15/2013 | WD | Warranty Deed | BROWN, MARK C | KRYMSKI, NOREEN L | | | $239,900.00 | 13128 | 4349750 |
| 3 | 11/29/2010 | QCD | Quit Claim Deed | BROWN, MARK C & SANDRA K | BROWN, MARK C | | | $146,506.00 | 2948 | |
| 4 | 06/01/1994 | WD | Warranty Deed | RAHMAN, ROBERT C | BROWN, MARK C | | | $159,000.00 | 42734 | 94015024 |
| 5 | 05/01/1992 | QCD | Quit Claim Deed | RAHMAN, ROBERT C | RAHMAN, ROBERT C | | | $0.00 | 21773 | 92008458 |
| 6 | 03/01/1989 | WD | Warranty Deed | WALDEN, STEPHEN M | RAHMAN, ROBERT C | | | $23,900.00 | 91149 | 89004011 |
| 7 | 07/01/1983 | OTHER | Other - Misc. Documents | Unknown | WALDEN, STEPHEN M | | | $0.00 | 60121 | 0 |
Payout Agreement
| No payout information available.. |