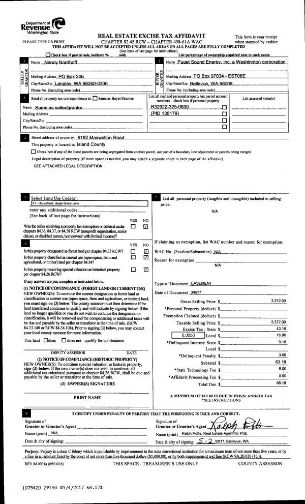
Property
Account |
| Property ID: | 583390 | Abbreviated Legal Description: | DAWNCREST LOT 13 |
| Geographic ID: | S6452-00-00013-0 | Agent Code: | |
| Type: | Real | | |
| Tax Area: | 110 - APPRAISER-OH Schl Dist, outside OH, improved & 1 acre or less | Land Use Code | 11 |
| Open Space: | N | DFL | N |
| Historic Property: | N | Remodel Property: | N |
| Multi-Family Redevelopment: | N | | |
| Township: | | Section: | |
| Range: | |
Location |
| Address: | 1060 OAKMONT LN OAK HARBOR, WA 98277 | Mapsco: | |
| Neighborhood: | Cycle 1 | Map ID: | 90 |
| Neighborhood CD: | 1 |
Owner |
| Name: | GAMBS, CATHERINE | Owner ID: | 287457 |
| Mailing Address: | 1060 OAKMONT LN OAK HARBOR, WA 98277 | % Ownership: | 100.0000000000% |
| | | Exemptions: | |
Taxes and Assessment Details
Values
| (+) Improvement Homesite Value: | + | $0 | |
| (+) Improvement Non-Homesite Value: | + | $379,546 | |
| (+) Land Homesite Value: | + | $0 | |
| (+) Land Non-Homesite Value: | + | $180,000 | |
| (+) Curr Use (HS): | + | $0 | $0 |
| (+) Curr Use (NHS): | + | $0 | $0 |
| | | -------------------------- | |
| (=) Market Value: | = | $559,546 | |
| (–) Productivity Loss: | – | $0 | |
| | | -------------------------- | |
| (=) Subtotal: | = | $559,546 | |
| (+) Senior Appraised Value: | + | $0 | |
| (+) Non-Senior Appraised Value: | + | $559,546 | |
| | | -------------------------- | |
| (=) Total Appraised Value: | = | $559,546 | |
| (–) Senior Exemption Loss: | – | $0 | |
| (–) Exemption Loss: | – | $0 | |
| | | -------------------------- | |
| (=) Taxable Value: | = | $559,546 | |
Taxing Jurisdiction
| Owner: | GAMBS, CATHERINE | | |
| % Ownership: | 100.0000000000% | | |
| Total Value: | $559,546 | | |
| Tax Area: | 110 - APPRAISER-OH Schl Dist, outside OH, improved & 1 acre or less |
| CF | Conservation Futures | 0.0316035091 | $559,546 | $559,546 | $17.68 | | |
| CEM1 | Cemetery #1 | 0.0040320932 | $559,546 | $559,546 | $2.26 | | |
| FIRE2 | Fire & Rescue Dist #2 N Whidbey GEN | 0.5475949600 | $559,546 | $559,546 | $306.40 | | |
| HOBOND | Hospital BOND | 0.1910887512 | $559,546 | $559,546 | $106.92 | | |
| HOGEN | Hospital GEN | 0.3902502903 | $559,546 | $559,546 | $218.36 | | |
| CE | County Current Expense | 0.3708482477 | $559,546 | $559,546 | $207.51 | | |
| CR | County Roads | 0.4584763726 | $559,546 | $559,546 | $256.54 | | |
| ISLANDEMS | Hospital GEN (EMS) | 0.5000000000 | $559,546 | $559,546 | $279.77 | | |
| LIB | Library Sno-Isle GEN | 0.3153421757 | $559,546 | $559,546 | $176.45 | | |
| NWHIDPRMT | P & R N Whidbey GEN | 0.2004466701 | $559,546 | $559,546 | $112.16 | | |
| SCH201MO | School 201 Enrichment | 1.8559231640 | $559,546 | $559,546 | $1,038.47 | | |
| ST | State School | 1.3035497053 | $559,546 | $559,546 | $729.40 | | |
| ST2 | State School Part 2 | 0.8169543533 | $559,546 | $559,546 | $457.12 | | |
| | Total Tax Rate: | 6.9861102925 | | | | | |
| | | | | Taxes w/Current Exemptions: | $3,909.04 | | |
| | | | | Taxes w/o Exemptions: | $3,909.04 | | |
Improvement / Building
| Improvement #1: | RESIDENTIAL | State Code: | Y | 2057.0 sqft | Value: | $379,546 |
| Bathrooms: | 2.5 | Bedrooms: | 3 | | Ceiling: | DRYWALL PAINTED | Exterior Wall/Cover: | WOOD SIDING | | Floor Covering: | HARDWOOD/CARP 60-40 | Floor Structure: | WOOD W/SUBFLOOR | | Foundation: | CONCRETE | Heating: | FHA GAS | | Interior Finish: | DRYWALL PAINT | Plumbing Fixture Cnt: | 11 | | Roof Slope: | 6" IN 12" | Roof Structure/Cover: | CJ ASPHALT |
|
| | Type | Description | Class CD | Sub Class CD | Year Built | Area |
| | BAS | BASE/MAIN FLOOR | 3 | 0 | 1985 | 1089.0 |
| | AGR | ATTACHED GARAGE | 3 | 0 | 1985 | 546.0 |
| | UPS | UPPER STORY | 3 | 0 | 1985 | 968.0 |
| | OWP | OPEN WOOD PORCH W/STEPS | 3 | 0 | 1985 | 509.2 |
| | OWC | OPEN WOOD PORCH W/STEPS/ROOF/C | 3 | 0 | 1985 | 39.5 |
| | OP1 | OPEN PORCH SLAB | 3 | 0 | 1985 | 528.0 |
Sketch
Property Image
Land
| 1 | 15 | SQ (12001-21780) | 0.0000 | 0.00 | 0.00 | 0.00 | 1.00 | $180,000 | $0 |
Roll Value History
| 2026 | N/A | N/A | N/A | N/A | N/A |
| 2025 | $379,546 | $180,000 | $0 | $559,546 | $559,546 |
| 2024 | $383,997 | $180,000 | $0 | $563,997 | $563,997 |
| 2023 | $361,738 | $180,000 | $0 | $541,738 | $541,738 |
| 2022 | $331,591 | $180,000 | $0 | $511,591 | $511,591 |
| 2021 | $291,832 | $140,000 | $0 | $431,832 | $431,832 |
| 2020 | $284,718 | $100,000 | $0 | $384,718 | $384,718 |
| 2019 | $217,822 | $150,000 | $0 | $367,822 | $367,822 |
| 2018 | $225,839 | $140,000 | $0 | $365,839 | $365,839 |
| 2017 | $223,234 | $120,000 | $0 | $343,234 | $343,234 |
| 2016 | $225,831 | $90,000 | $0 | $315,831 | $315,831 |
| 2015 | $228,426 | $70,000 | $0 | $298,426 | $298,426 |
| 2014 | $194,537 | $55,000 | $0 | $249,537 | $249,537 |
| 2013 | $197,063 | $55,000 | $0 | $252,063 | $252,063 |
| 2012 | $199,589 | $60,000 | $0 | $259,589 | $259,589 |
| 2011 | $192,571 | $50,000 | $0 | $242,571 | $242,571 |
| 2010 | $203,624 | $50,000 | $0 | $253,624 | $253,624 |
| 2009 | $212,410 | $75,000 | $0 | $287,410 | $287,410 |
| 2008 | $215,041 | $100,000 | $0 | $315,041 | $315,041 |
| 2007 | $217,684 | $100,000 | $0 | $317,684 | $317,684 |
Deed and Sales History
| 1 | 10/08/2018 | WD | Warranty Deed | LEWIS, JESSICA A | GAMBS, CATHERINE | | | $425,000.00 | 36236 | 4453186 |
| 2 | 04/24/2017 | WD | Warranty Deed | LUNDSTAD, JULIE A | LEWIS, JESSICA A | | | $395,000.00 | 29063 | 4421562 |
| 3 | 06/02/2014 | WD | Warranty Deed | ABBOTT, MARTIN J | LUNDSTAD, JULIE A | | | $317,500.00 | 15517 | 4360331 |
| 4 | 11/01/1984 | WD | Warranty Deed | WALDEN, STEPHEN M | ABBOTT, MARTIN J | | | $22,300.00 | 43230 | 84005242 |
| 5 | 07/01/1983 | OTHER | Other - Misc. Documents | Unknown | WALDEN, STEPHEN M | | | $0.00 | 60121 | 0 |
Payout Agreement
| No payout information available.. |