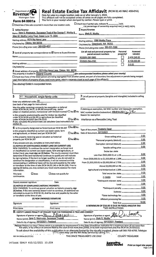
Property
Account |
| Property ID: | 583782 | Abbreviated Legal Description: | HILNDS CAM LOT 11-A SP 83-71 33015-S7125.11 V1 SP P275 AF#84001021 TGW INT WELL LOC LOT 12 AF#415197 |
| Geographic ID: | S7125-00-00011-A | Agent Code: | |
| Type: | Real | | |
| Tax Area: | 542 - APPRAISER-Stan/Cam Schl Dist, Special Dist, improved, greater than 1 acre | Land Use Code | 11 |
| Open Space: | N | DFL | N |
| Historic Property: | N | Remodel Property: | N |
| Multi-Family Redevelopment: | N | | |
| Township: | | Section: | |
| Range: | |
Location |
| Address: | 3772 SOUTH CAMANO DR CAMANO ISLAND, WA 98282 | Mapsco: | |
| Neighborhood: | 58RscamWF-South Cam | Map ID: | 875 |
| Neighborhood CD: | 58RscamWF |
Owner |
| Name: | TYMR LLC | Owner ID: | 299070 |
| Mailing Address: | 4555 FOREST AVE SE MERCER ISLAND, WA 98040 | % Ownership: | 100.0000000000% |
| | | Exemptions: | |
Taxes and Assessment Details
Values
| (+) Improvement Homesite Value: | + | $0 | |
| (+) Improvement Non-Homesite Value: | + | $742,959 | |
| (+) Land Homesite Value: | + | $0 | |
| (+) Land Non-Homesite Value: | + | $607,350 | |
| (+) Curr Use (HS): | + | $0 | $0 |
| (+) Curr Use (NHS): | + | $0 | $0 |
| | | -------------------------- | |
| (=) Market Value: | = | $1,350,309 | |
| (–) Productivity Loss: | – | $0 | |
| | | -------------------------- | |
| (=) Subtotal: | = | $1,350,309 | |
| (+) Senior Appraised Value: | + | $0 | |
| (+) Non-Senior Appraised Value: | + | $1,350,309 | |
| | | -------------------------- | |
| (=) Total Appraised Value: | = | $1,350,309 | |
| (–) Senior Exemption Loss: | – | $0 | |
| (–) Exemption Loss: | – | $0 | |
| | | -------------------------- | |
| (=) Taxable Value: | = | $1,350,309 | |
Taxing Jurisdiction
| Owner: | TYMR LLC | | |
| % Ownership: | 100.0000000000% | | |
| Total Value: | $1,350,309 | | |
| Tax Area: | 542 - APPRAISER-Stan/Cam Schl Dist, Special Dist, improved, greater than 1 acre |
| CF | Conservation Futures | 0.0316035091 | $1,350,309 | $1,350,309 | $42.67 | | |
| EMS1 | Fire & Rescue Dist #1 Camano GEN (EMS) | 0.3677864386 | $1,350,309 | $1,350,309 | $496.63 | | |
| FIRE1 | Fire & Rescue Dist #1 Camano GEN | 1.2502910536 | $1,350,309 | $1,350,309 | $1,688.28 | | |
| FIRE1BOND | Fire & Rescue Dist #1 Camano BOND | 0.1570001679 | $1,350,309 | $1,350,309 | $212.00 | | |
| CE | County Current Expense | 0.3708482477 | $1,350,309 | $1,350,309 | $500.76 | | |
| CR | County Roads | 0.4584763726 | $1,350,309 | $1,350,309 | $619.08 | | |
| LCIB | Library Sno-Isle BOND (Camano Island) | 0.0396325772 | $1,350,309 | $1,350,309 | $53.52 | | |
| LIB | Library Sno-Isle GEN | 0.3153421757 | $1,350,309 | $1,350,309 | $425.81 | | |
| SCH205_401 | School 205-401 Enrichment | 1.2698420524 | $1,350,309 | $1,350,309 | $1,714.68 | | |
| SCH205BOND | School 205-401 BOND | 0.9396497583 | $1,350,309 | $1,350,309 | $1,268.82 | | |
| ST | State School | 1.3035497053 | $1,350,309 | $1,350,309 | $1,760.19 | | |
| ST2 | State School Part 2 | 0.8169543533 | $1,350,309 | $1,350,309 | $1,103.14 | | |
| | Total Tax Rate: | 7.3209764117 | | | | | |
| | | | | Taxes w/Current Exemptions: | $9,885.58 | | |
| | | | | Taxes w/o Exemptions: | $9,885.58 | | |
Improvement / Building
| Improvement #1: | RESIDENTIAL | State Code: | Y | 3933.0 sqft | Value: | $742,959 |
| Bathrooms: | 3.5 | Bedrooms: | 4 | | Ceiling: | DRYWALL PAINTED | Exterior Wall/Cover: | METAL | | Floor Covering: | (NONE) | Floor Structure: | WOOD W/SUBFLOOR | | Foundation: | CONCRETE | Heating: | (NONE) | | Interior Finish: | DRYWALL PAINT | Plumbing Fixture Cnt: | 22 | | Roof Slope: | 1" IN 12" | Roof Structure/Cover: | CJ ALUMINIUM HEAVY |
|
| | Type | Description | Class CD | Sub Class CD | Year Built | Area |
| | BAS | BASE/MAIN FLOOR | 5 | 0 | 2025 | 2209.1 |
| | UPS | UPPER STORY | 5 | 0 | 2025 | 1723.9 |
| | AGR | ATTACHED GARAGE | 5 | 0 | 2025 | 331.3 |
| | UTY | STORAGE/UTILITY | 5 | 0 | 2025 | 621.9 |
| | UTY | STORAGE/UTILITY | 5 | 0 | 2025 | 93.0 |
| | OP2 | OPEN PORCH W/STEPS | 5 | 0 | 2025 | 26.0 |
| | OP2 | OPEN PORCH W/STEPS | 5 | 0 | 2025 | 30.0 |
| | OP2 | OPEN PORCH W/STEPS | 5 | 0 | 2025 | 298.0 |
| | OP4 | OPEN PORCH W/CEILING-ROOF | 5 | 0 | 2025 | 153.0 |
| | OP4 | OPEN PORCH W/CEILING-ROOF | 5 | 0 | 2025 | 627.5 |
Sketch
Property Image
Land
| 1 | HB | HIGH BLUFF | 2.4100 | 104979.60 | 110.00 | 0.00 | 1.00 | $606,250 | $0 |
| 2 | 55 | TIDES | 0.0000 | 0.00 | 110.00 | 0.00 | 1.00 | $1,100 | $0 |
Roll Value History
| 2026 | N/A | N/A | N/A | N/A | N/A |
| 2025 | $742,959 | $607,350 | $0 | $1,350,309 | $1,350,309 |
| 2024 | $140,068 | $376,100 | $0 | $516,168 | $516,168 |
| 2023 | $0 | $376,100 | $0 | $376,100 | $376,100 |
| 2022 | $0 | $351,100 | $0 | $351,100 | $351,100 |
| 2021 | $0 | $226,100 | $0 | $226,100 | $226,100 |
| 2020 | $0 | $201,100 | $0 | $201,100 | $201,100 |
| 2019 | $0 | $201,100 | $0 | $201,100 | $201,100 |
| 2018 | $0 | $201,100 | $0 | $201,100 | $201,100 |
| 2017 | $0 | $151,100 | $0 | $151,100 | $151,100 |
| 2016 | $0 | $151,100 | $0 | $151,100 | $151,100 |
| 2015 | $0 | $151,100 | $0 | $151,100 | $151,100 |
| 2014 | $0 | $141,100 | $0 | $141,100 | $141,100 |
| 2013 | $0 | $172,102 | $0 | $172,102 | $172,102 |
| 2012 | $0 | $172,102 | $0 | $172,102 | $172,102 |
| 2011 | $0 | $214,852 | $0 | $214,852 | $214,852 |
| 2010 | $0 | $306,460 | $0 | $306,460 | $306,460 |
| 2009 | $0 | $397,960 | $0 | $397,960 | $397,960 |
| 2008 | $0 | $397,431 | $0 | $397,431 | $397,431 |
| 2007 | $0 | $396,661 | $0 | $396,661 | $396,661 |
Deed and Sales History
| 1 | 04/23/2021 | WD | Warranty Deed | 3816 CAMANO, LLC | TYMR LLC | | | $715,000.00 | 47961 | 4517566 |
| 2 | 11/06/2018 | QCD | Quit Claim Deed | NOREN, GARY M | 3816 CAMANO, LLC | | | $0.00 | 36603 | 4454804 |
| 3 | 04/19/2007 | DECREE | Divorce Decree/Legal Separation | NOREN, GARY M | NOREN, GARY M | | | $0.00 | 71510 | 4201510 |
| 4 | 08/25/1999 | WD | Warranty Deed | MCCORMICK, NORMAN J | NOREN, GARY M | | | $195,000.00 | 93589 | 99020405 |
| 5 | 05/01/1992 | QCD | Quit Claim Deed | MCCORMICK, NORMAN J | MCCORMICK, NORMAN J | | | $0.00 | 21774 | 92008476 |
| 6 | 09/01/1983 | REC | Real Estate Contract | Unknown | MCCORMICK, NORMAN J | | | $55,000.00 | 32735 | 415196 |
| 7 | 09/01/1983 | EZ | Easement | MCCORMICK, NORMAN J | MCCORMICK, NORMAN J | | | $0.00 | 60896 | 415197 |
| 8 | 01/01/1900 | OTHER | Other - Misc. Documents | MCCORMICK, NORMAN J | MCCORMICK, NORMAN J | | | $0.00 | 0 | 0 |
Payout Agreement
| No payout information available.. |