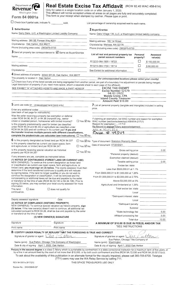
Property
Account |
| Property ID: | 583791 | Abbreviated Legal Description: | HILNDS CAM LOT 11-B SP 83-71.33015-S7125.11 V1 SP P275 AF#84001021 TGW INT IN WELL LOC LOT 12 AF#415197 |
| Geographic ID: | S7125-00-00011-B | Agent Code: | |
| Type: | Real | | |
| Tax Area: | 549 - APPRAISER-Stan/Cam Schl Dist, Special Dist, vacant & 50 acres or less | Land Use Code | 99 |
| Open Space: | N | DFL | N |
| Historic Property: | N | Remodel Property: | N |
| Multi-Family Redevelopment: | N | | |
| Township: | | Section: | |
| Range: | |
Location |
| Address: | 3788 SOUTH CAMANO DR CAMANO ISLAND, WA 98282 | Mapsco: | |
| Neighborhood: | 58RscamWF-South Cam | Map ID: | 875 |
| Neighborhood CD: | 58RscamWF |
Owner |
| Name: | 3816 CAMANO, LLC | Owner ID: | 287852 |
| Mailing Address: | 3816 S CAMANO DR CAMANO ISLAND, WA 98282 | % Ownership: | 100.0000000000% |
| | | Exemptions: | |
Taxes and Assessment Details
Values
| (+) Improvement Homesite Value: | + | $0 | |
| (+) Improvement Non-Homesite Value: | + | $0 | |
| (+) Land Homesite Value: | + | $0 | |
| (+) Land Non-Homesite Value: | + | $401,100 | |
| (+) Curr Use (HS): | + | $0 | $0 |
| (+) Curr Use (NHS): | + | $0 | $0 |
| | | -------------------------- | |
| (=) Market Value: | = | $401,100 | |
| (–) Productivity Loss: | – | $0 | |
| | | -------------------------- | |
| (=) Subtotal: | = | $401,100 | |
| (+) Senior Appraised Value: | + | $0 | |
| (+) Non-Senior Appraised Value: | + | $401,100 | |
| | | -------------------------- | |
| (=) Total Appraised Value: | = | $401,100 | |
| (–) Senior Exemption Loss: | – | $0 | |
| (–) Exemption Loss: | – | $0 | |
| | | -------------------------- | |
| (=) Taxable Value: | = | $401,100 | |
Taxing Jurisdiction
| Owner: | 3816 CAMANO, LLC | | |
| % Ownership: | 100.0000000000% | | |
| Total Value: | $401,100 | | |
| Tax Area: | 549 - APPRAISER-Stan/Cam Schl Dist, Special Dist, vacant & 50 acres or less |
| CF | Conservation Futures | 0.0316035091 | $401,100 | $401,100 | $12.68 | | |
| EMS1 | Fire & Rescue Dist #1 Camano GEN (EMS) | 0.3677864386 | $401,100 | $401,100 | $147.52 | | |
| CE | County Current Expense | 0.3708482477 | $401,100 | $401,100 | $148.75 | | |
| CR | County Roads | 0.4584763726 | $401,100 | $401,100 | $183.89 | | |
| LCIB | Library Sno-Isle BOND (Camano Island) | 0.0396325772 | $401,100 | $401,100 | $15.90 | | |
| LIB | Library Sno-Isle GEN | 0.3153421757 | $401,100 | $401,100 | $126.48 | | |
| SCH205_401 | School 205-401 Enrichment | 1.2698420524 | $401,100 | $401,100 | $509.33 | | |
| SCH205BOND | School 205-401 BOND | 0.9396497583 | $401,100 | $401,100 | $376.89 | | |
| ST | State School | 1.3035497053 | $401,100 | $401,100 | $522.85 | | |
| ST2 | State School Part 2 | 0.8169543533 | $401,100 | $401,100 | $327.68 | | |
| | Total Tax Rate: | 5.9136851902 | | | | | |
| | | | | Taxes w/Current Exemptions: | $2,371.97 | | |
| | | | | Taxes w/o Exemptions: | $2,371.97 | | |
Improvement / Building
Sketch
| No sketches available for this property. |
Property Image
Land
| 1 | HB | HIGH BLUFF | 2.3500 | 102366.00 | 110.00 | 0.00 | 1.00 | $400,000 | $0 |
| 2 | 55 | TIDES | 0.0000 | 0.00 | 110.00 | 0.00 | 1.00 | $1,100 | $0 |
Roll Value History
| 2026 | N/A | N/A | N/A | N/A | N/A |
| 2025 | $0 | $401,100 | $0 | $401,100 | $401,100 |
| 2024 | $0 | $376,100 | $0 | $376,100 | $376,100 |
| 2023 | $0 | $376,100 | $0 | $376,100 | $376,100 |
| 2022 | $0 | $351,100 | $0 | $351,100 | $351,100 |
| 2021 | $0 | $226,100 | $0 | $226,100 | $226,100 |
| 2020 | $0 | $201,100 | $0 | $201,100 | $201,100 |
| 2019 | $0 | $201,100 | $0 | $201,100 | $201,100 |
| 2018 | $0 | $201,100 | $0 | $201,100 | $201,100 |
| 2017 | $0 | $151,100 | $0 | $151,100 | $151,100 |
| 2016 | $0 | $151,100 | $0 | $151,100 | $151,100 |
| 2015 | $1 | $151,100 | $0 | $151,101 | $151,101 |
| 2014 | $1,128 | $151,100 | $0 | $152,228 | $152,228 |
| 2013 | $1,128 | $220,959 | $0 | $222,087 | $222,087 |
| 2012 | $1,128 | $220,959 | $0 | $222,087 | $222,087 |
| 2011 | $1,128 | $275,924 | $0 | $277,052 | $277,052 |
| 2010 | $1,128 | $306,460 | $0 | $307,588 | $307,588 |
| 2009 | $1,224 | $397,960 | $0 | $399,184 | $399,184 |
| 2008 | $1,296 | $397,431 | $0 | $398,727 | $398,727 |
| 2007 | $1,392 | $396,661 | $0 | $398,053 | $398,053 |
Deed and Sales History
| 1 | 11/06/2018 | QCD | Quit Claim Deed | NOREN, GARY M | 3816 CAMANO, LLC | | | $0.00 | 36604 | 4454805 |
| 2 | 04/19/2007 | DECREE | Divorce Decree/Legal Separation | NOREN, GARY M | NOREN, GARY M | | | $0.00 | 71511 | 4201511 |
| 3 | 05/01/1993 | WD | Warranty Deed | GERSTENBERGER, DONNA L | NOREN, GARY M | | | $155,000.00 | 31970 | 93010255 |
| 4 | 05/01/1992 | QCD | Quit Claim Deed | MCCORMICK, NORMAN J | GERSTENBERGER, DONNA L | | | $0.00 | 21775 | 92008477 |
| 5 | 09/01/1983 | REC | Real Estate Contract | Unknown | MCCORMICK, NORMAN J | | | $55,000.00 | 32735 | 415196 |
| 6 | 09/01/1983 | EZ | Easement | MCCORMICK, NORMAN J | MCCORMICK, NORMAN J | | | $0.00 | 60896 | 415197 |
Payout Agreement
| No payout information available.. |