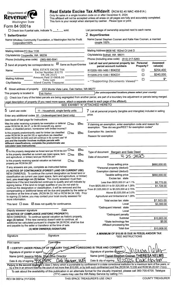
Property
Account |
| Property ID: | 584102 | Abbreviated Legal Description: | LOT 2 SP 81-53.23117.062-2080 V1 SP P289 AF#84003628 |
| Geographic ID: | R23117-062-1880 | Agent Code: | |
| Type: | Real | | |
| Tax Area: | 312 - APPRAISER-Cpvl Schl Dist, outside Cpvl, improved, greater than 1 acre | Land Use Code | 11 |
| Open Space: | N | DFL | N |
| Historic Property: | N | Remodel Property: | N |
| Multi-Family Redevelopment: | N | | |
| Township: | 31 | Section: | 17 |
| Range: | R2 |
Location |
| Address: | 545 MUSSEL BEACH RD COUPEVILLE, WA 98239 | Mapsco: | |
| Neighborhood: | Cycle 2 | Map ID: | 487 |
| Neighborhood CD: | 2 |
Owner |
| Name: | KELLY, BRIAN R | Owner ID: | 7872 |
| Mailing Address: | TAMMY K KELLY 545 MUSSEL BEACH RD COUPEVILLE, WA 98239 | % Ownership: | 100.0000000000% |
| | | Exemptions: | |
Taxes and Assessment Details
Values
| (+) Improvement Homesite Value: | + | $0 | |
| (+) Improvement Non-Homesite Value: | + | $429,762 | |
| (+) Land Homesite Value: | + | $0 | |
| (+) Land Non-Homesite Value: | + | $301,883 | |
| (+) Curr Use (HS): | + | $0 | $0 |
| (+) Curr Use (NHS): | + | $0 | $0 |
| | | -------------------------- | |
| (=) Market Value: | = | $731,645 | |
| (–) Productivity Loss: | – | $0 | |
| | | -------------------------- | |
| (=) Subtotal: | = | $731,645 | |
| (+) Senior Appraised Value: | + | $0 | |
| (+) Non-Senior Appraised Value: | + | $731,645 | |
| | | -------------------------- | |
| (=) Total Appraised Value: | = | $731,645 | |
| (–) Senior Exemption Loss: | – | $0 | |
| (–) Exemption Loss: | – | $0 | |
| | | -------------------------- | |
| (=) Taxable Value: | = | $731,645 | |
Taxing Jurisdiction
| Owner: | KELLY, BRIAN R | | |
| % Ownership: | 100.0000000000% | | |
| Total Value: | $731,645 | | |
| Tax Area: | 312 - APPRAISER-Cpvl Schl Dist, outside Cpvl, improved, greater than 1 acre |
| CF | Conservation Futures | 0.0316035091 | $731,645 | $731,645 | $23.12 | | |
| CEM2 | Cemetery #2 | 0.0095056933 | $731,645 | $731,645 | $6.95 | | |
| FIRE5 | Fire & Rescue Dist #5 C Whidbey GEN | 1.2008080668 | $731,645 | $731,645 | $878.57 | | |
| FIRE5BOND | Fire & Rescue Dist #5 C Whidbey BOND | 0.1400090713 | $731,645 | $731,645 | $102.44 | | |
| HOBOND | Hospital BOND | 0.1910887512 | $731,645 | $731,645 | $139.81 | | |
| HOGEN | Hospital GEN | 0.3902502903 | $731,645 | $731,645 | $285.52 | | |
| CE | County Current Expense | 0.3708482477 | $731,645 | $731,645 | $271.33 | | |
| CR | County Roads | 0.4584763726 | $731,645 | $731,645 | $335.44 | | |
| ISLANDEMS | Hospital GEN (EMS) | 0.5000000000 | $731,645 | $731,645 | $365.82 | | |
| LIB | Library Sno-Isle GEN | 0.3153421757 | $731,645 | $731,645 | $230.72 | | |
| LIBCAP | Library Sno-Isle BOND (Cap Fac Imp Area) | 0.0543427938 | $731,645 | $731,645 | $39.76 | | |
| POCOUP | Port of Coupeville GEN | 0.1093371703 | $731,645 | $731,645 | $80.00 | | |
| POCOUPIDD | Port of Coupeville IDD | 0.3409740022 | $731,645 | $731,645 | $249.47 | | |
| COUPSDTECH | School 204 CP (TECH) | 0.7545480007 | $731,645 | $731,645 | $552.06 | | |
| SCH204MO | School 204 Enrichment | 0.6716186034 | $731,645 | $731,645 | $491.39 | | |
| ST | State School | 1.3035497053 | $731,645 | $731,645 | $953.74 | | |
| ST2 | State School Part 2 | 0.8169543533 | $731,645 | $731,645 | $597.72 | | |
| | Total Tax Rate: | 7.6592568070 | | | | | |
| | | | | Taxes w/Current Exemptions: | $5,603.86 | | |
| | | | | Taxes w/o Exemptions: | $5,603.86 | | |
Improvement / Building
| Improvement #1: | RESIDENTIAL | State Code: | Y | 2393.8 sqft | Value: | $429,762 |
| Bathrooms: | 2.5 | Bedrooms: | 2 | | Ceiling: | DRYWALL PAINTED | Cooling: | HEAT PUMP/CONV/V | | Exterior Wall/Cover: | CEMENT FIBER | Floor Covering: | CARPET/VINYL 60-40 | | Floor Structure: | WOOD W/SUBFLOOR | Foundation: | CONCRETE | | Interior Finish: | DRYWALL PAINT | Plumbing Fixture Cnt: | 11 | | Roof Slope: | 5" IN 12" | Roof Structure/Cover: | CJ ASPHALT |
|
| | Type | Description | Class CD | Sub Class CD | Year Built | Area |
| | BAS | BASE/MAIN FLOOR | 3 | 0 | 2006 | 2393.8 |
| | AGR | ATTACHED GARAGE | 3 | 0 | 2006 | 480.0 |
| | OWP | OPEN WOOD PORCH W/STEPS | 3 | 0 | 2006 | 782.8 |
| | UTY | STORAGE/UTILITY | 3 | 0 | 2006 | 192.0 |
| | UTY | STORAGE/UTILITY | 3 | 0 | 2006 | 192.0 |
| | OP4 | OPEN PORCH W/CEILING-ROOF | 3 | 0 | 2006 | 270.0 |
| | OP1 | OPEN PORCH SLAB | 3 | 0 | 2006 | 48.0 |
Sketch
| No sketches available for this property. |
Property Image
Land
| 1 | HS | HOMESITE | 1.0000 | 43560.00 | 0.00 | 0.00 | 1.00 | $220,000 | $0 |
| 2 | 91 | UNDEVELOPED LAND-METES AND BOUNDS | 1.2900 | 56192.40 | 0.00 | 0.00 | 1.00 | $81,883 | $0 |
Roll Value History
| 2026 | N/A | N/A | N/A | N/A | N/A |
| 2025 | $429,762 | $301,883 | $0 | $731,645 | $731,645 |
| 2024 | $419,676 | $280,000 | $0 | $699,676 | $699,676 |
| 2023 | $424,542 | $270,000 | $0 | $694,542 | $694,542 |
| 2022 | $388,829 | $240,000 | $0 | $628,829 | $628,829 |
| 2021 | $341,954 | $170,000 | $0 | $511,954 | $511,954 |
| 2020 | $332,550 | $150,000 | $0 | $482,550 | $482,550 |
| 2019 | $258,258 | $180,000 | $0 | $438,258 | $438,258 |
| 2018 | $246,412 | $200,000 | $0 | $446,412 | $446,412 |
| 2017 | $247,722 | $125,000 | $0 | $372,722 | $372,722 |
| 2016 | $250,460 | $125,000 | $0 | $375,460 | $375,460 |
| 2015 | $253,200 | $90,000 | $0 | $343,200 | $343,200 |
| 2014 | $255,939 | $100,000 | $0 | $355,939 | $355,939 |
| 2013 | $258,677 | $100,000 | $0 | $358,677 | $358,677 |
| 2012 | $261,417 | $100,000 | $0 | $361,417 | $361,417 |
| 2011 | $264,156 | $100,000 | $0 | $364,156 | $364,156 |
| 2010 | $263,612 | $100,000 | $0 | $363,612 | $363,612 |
| 2009 | $274,435 | $125,000 | $0 | $399,435 | $399,435 |
| 2008 | $261,637 | $125,000 | $0 | $386,637 | $386,637 |
| 2007 | $261,711 | $125,000 | $0 | $386,711 | $386,711 |
Deed and Sales History
| 1 | 07/09/2004 | WD | Warranty Deed | MITCHELL, WILLIAM P | KELLY, BRIAN R | | | $47,000.00 | 43150 | 4106749 |
| 2 | 05/01/1992 | WD | Warranty Deed | ALSTON, THADDAS & | MITCHELL, WILLIAM P | | | $25,000.00 | 21673 | 92007885 |
| 3 | 09/01/1983 | EZ | Easement | Unknown | ALSTON, THADDAS & | | | $0.00 | 60678 | 415062 |
Payout Agreement
| No payout information available.. |