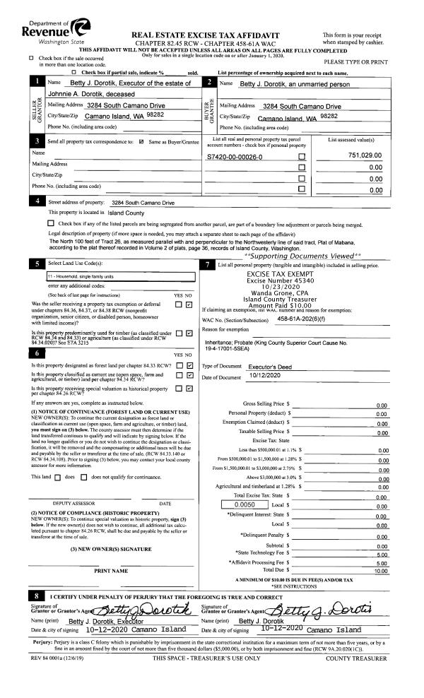
Property
Account |
| Property ID: | 584317 | Abbreviated Legal Description: | IN GL4: S150' OF N1000' OF GL4 LY ELY OF JONES RD FR 429-2040 & 437-2040 10/5/84 |
| Geographic ID: | R23305-433-2040 | Agent Code: | |
| Type: | Real | | |
| Tax Area: | 112 - APPRAISER-OH Schl Dist, outside OH, improved, greater than 1 acre | Land Use Code | 11 |
| Open Space: | N | DFL | N |
| Historic Property: | N | Remodel Property: | N |
| Multi-Family Redevelopment: | N | | |
| Township: | 33 | Section: | 05 |
| Range: | R2 |
Location |
| Address: | 4732 JONES RD OAK HARBOR, WA 98277 | Mapsco: | |
| Neighborhood: | Cycle 6 | Map ID: | 585 |
| Neighborhood CD: | 6 |
Owner |
| Name: | BERGEN TTEE, RANDY E | Owner ID: | 295611 |
| Mailing Address: | LANELLE D BERGEN 4732 JONES RD OAK HARBOR, WA 98277 | % Ownership: | 100.0000000000% |
| | | Exemptions: | |
Taxes and Assessment Details
Values
| (+) Improvement Homesite Value: | + | $0 | |
| (+) Improvement Non-Homesite Value: | + | $527,685 | |
| (+) Land Homesite Value: | + | $0 | |
| (+) Land Non-Homesite Value: | + | $515,000 | |
| (+) Curr Use (HS): | + | $0 | $0 |
| (+) Curr Use (NHS): | + | $0 | $0 |
| | | -------------------------- | |
| (=) Market Value: | = | $1,042,685 | |
| (–) Productivity Loss: | – | $0 | |
| | | -------------------------- | |
| (=) Subtotal: | = | $1,042,685 | |
| (+) Senior Appraised Value: | + | $0 | |
| (+) Non-Senior Appraised Value: | + | $1,042,685 | |
| | | -------------------------- | |
| (=) Total Appraised Value: | = | $1,042,685 | |
| (–) Senior Exemption Loss: | – | $0 | |
| (–) Exemption Loss: | – | $0 | |
| | | -------------------------- | |
| (=) Taxable Value: | = | $1,042,685 | |
Taxing Jurisdiction
| Owner: | BERGEN TTEE, RANDY E | | |
| % Ownership: | 100.0000000000% | | |
| Total Value: | $1,042,685 | | |
| Tax Area: | 112 - APPRAISER-OH Schl Dist, outside OH, improved, greater than 1 acre |
| CF | Conservation Futures | 0.0316035091 | $1,042,685 | $1,042,685 | $32.95 | | |
| CEM1 | Cemetery #1 | 0.0040320932 | $1,042,685 | $1,042,685 | $4.20 | | |
| FIRE2 | Fire & Rescue Dist #2 N Whidbey GEN | 0.5475949600 | $1,042,685 | $1,042,685 | $570.97 | | |
| HOBOND | Hospital BOND | 0.1910887512 | $1,042,685 | $1,042,685 | $199.25 | | |
| HOGEN | Hospital GEN | 0.3902502903 | $1,042,685 | $1,042,685 | $406.91 | | |
| CE | County Current Expense | 0.3708482477 | $1,042,685 | $1,042,685 | $386.68 | | |
| CR | County Roads | 0.4584763726 | $1,042,685 | $1,042,685 | $478.05 | | |
| ISLANDEMS | Hospital GEN (EMS) | 0.5000000000 | $1,042,685 | $1,042,685 | $521.34 | | |
| LIB | Library Sno-Isle GEN | 0.3153421757 | $1,042,685 | $1,042,685 | $328.80 | | |
| NWHIDPRMT | P & R N Whidbey GEN | 0.2004466701 | $1,042,685 | $1,042,685 | $209.00 | | |
| SCH201MO | School 201 Enrichment | 1.8559231640 | $1,042,685 | $1,042,685 | $1,935.14 | | |
| ST | State School | 1.3035497053 | $1,042,685 | $1,042,685 | $1,359.19 | | |
| ST2 | State School Part 2 | 0.8169543533 | $1,042,685 | $1,042,685 | $851.83 | | |
| | Total Tax Rate: | 6.9861102925 | | | | | |
| | | | | Taxes w/Current Exemptions: | $7,284.31 | | |
| | | | | Taxes w/o Exemptions: | $7,284.31 | | |
Improvement / Building
| Improvement #1: | RESIDENTIAL | State Code: | Y | 2586.0 sqft | Value: | $527,685 |
| Bathrooms: | 2.5 | Bedrooms: | 3 | | Ceiling: | DRYWALL PAINTED | Cooling: | HEAT PUMP/CONV/V | | Exterior Wall/Cover: | CEMENT FIBER | Floor Covering: | CARPET/VINYL 60-40 | | Floor Structure: | WOOD W/SUBFLOOR | Foundation: | CONCRETE | | Interior Finish: | DRYWALL PAINT | Plumbing Fixture Cnt: | 14 | | Roof Slope: | 6" IN 12" | Roof Structure/Cover: | CJ ASPHALT |
|
| | Type | Description | Class CD | Sub Class CD | Year Built | Area |
| | BAS | BASE/MAIN FLOOR | 4 | 0 | 1989 | 1450.8 |
| | OP4 | OPEN PORCH W/CEILING-ROOF | 4 | 0 | 1989 | 34.5 |
| | AGR | ATTACHED GARAGE | 4 | 0 | 1989 | 595.4 |
| | UTY | STORAGE/UTILITY | 4 | 0 | 1989 | 24.0 |
| | UTY | STORAGE/UTILITY | 4 | 0 | 1989 | 288.0 |
| | OWP | OPEN WOOD PORCH W/STEPS | 4 | 0 | 1989 | 330.1 |
| | OWP | OPEN WOOD PORCH W/STEPS | 4 | 0 | 1989 | 186.5 |
| | DWN | DOWNSTAIRS LIVING AREA | 4 | 0 | 1989 | 1135.2 |
| | OWR | OPEN WOOD PORCH W/STEPS/ROOF | 4 | 0 | 1989 | 117.6 |
Sketch
Property Image
Land
| 1 | HB | HIGH BLUFF | 1.5500 | 67518.00 | 150.00 | 0.00 | 1.00 | $515,000 | $0 |
Roll Value History
| 2026 | N/A | N/A | N/A | N/A | N/A |
| 2025 | $527,685 | $515,000 | $0 | $1,042,685 | $1,042,685 |
| 2024 | $533,875 | $500,000 | $0 | $1,033,875 | $1,033,875 |
| 2023 | $540,065 | $475,000 | $0 | $1,015,065 | $1,015,065 |
| 2022 | $494,669 | $450,000 | $0 | $944,669 | $944,669 |
| 2021 | $435,001 | $250,000 | $0 | $685,001 | $685,001 |
| 2020 | $398,679 | $230,000 | $0 | $628,679 | $628,679 |
| 2019 | $301,073 | $300,000 | $0 | $601,073 | $601,073 |
| 2018 | $301,936 | $200,000 | $0 | $501,936 | $501,936 |
| 2017 | $303,661 | $200,000 | $0 | $503,661 | $503,661 |
| 2016 | $303,967 | $200,000 | $0 | $503,967 | $503,967 |
| 2015 | $307,420 | $200,000 | $0 | $507,420 | $507,420 |
| 2014 | $310,876 | $200,000 | $0 | $510,876 | $510,876 |
| 2013 | $314,331 | $235,052 | $0 | $549,383 | $549,383 |
| 2012 | $292,614 | $235,052 | $0 | $527,666 | $527,666 |
| 2011 | $295,977 | $235,052 | $0 | $531,029 | $531,029 |
| 2010 | $320,499 | $235,052 | $0 | $555,551 | $555,551 |
| 2009 | $333,782 | $280,659 | $0 | $614,441 | $614,441 |
| 2008 | $271,100 | $280,659 | $0 | $551,759 | $551,759 |
| 2007 | $283,895 | $258,995 | $0 | $542,890 | $542,890 |
Deed and Sales History
| 1 | 08/12/2020 | WD | Warranty Deed | BLESSING TRUSTEE SHERI | BERGEN TTEE, RANDY E | | | $965,000.00 | 44211 | 4493723 |
| 2 | 10/24/2008 | WD | Warranty Deed | DIGIORGIO, JOSEPH R | BLESSING TTEE, SHERI | | | $750,000.00 | 82803 | 4239071 |
| 3 | 11/16/1999 | WD | Warranty Deed | KING, JOSEPH S | DIGIORGIO, JOSEPH R | | | $396,500.00 | 94862 | 99027261 |
| 4 | 05/01/1997 | WD | Warranty Deed | SMITH, DONALD D | KING, JOSEPH S | | | $365,000.00 | 71822 | 97008274 |
| 5 | 03/01/1989 | QCD | Quit Claim Deed | SMITH, DONALD D | SMITH, DONALD D | | | $0.00 | 90815 | 89002828 |
| 6 | 12/01/1988 | WD | Warranty Deed | BUCKLES, RAYMOND E | SMITH, DONALD D | | | $69,000.00 | 84281 | 88015952 |
| 7 | 02/01/1987 | WD | Warranty Deed | FRANZ, RODNEY C | BUCKLES, RAYMOND E | | | $50,000.00 | 70445 | 87002752 |
| 8 | 07/01/1984 | OTHER | Other - Misc. Documents | FRANZ, RODNEY C | FRANZ, RODNEY C | | | $0.00 | 60848 | 84001163 |
| 9 | 01/01/1900 | OTHER | Other - Misc. Documents | Unknown | FRANZ, RODNEY C | | | $0.00 | 0 | 0 |
| 10 | 01/01/1900 | OTHER | Other - Misc. Documents | KING, JOSEPH S | KING, JOSEPH S | | | $0.00 | 0 | 0 |
Payout Agreement
| No payout information available.. |