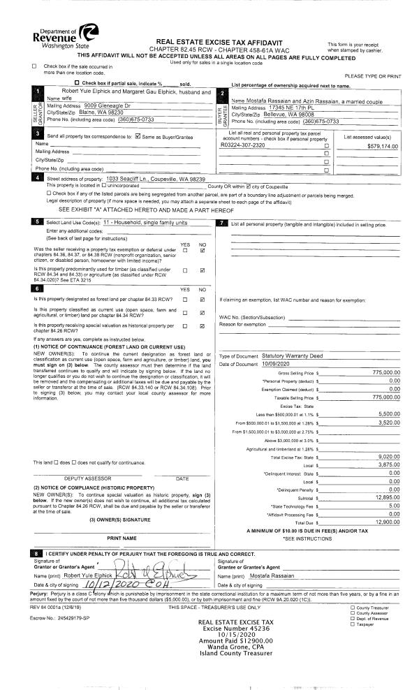
Property
Account |
| Property ID: | 584870 | Abbreviated Legal Description: | REV LOT C SP 84-38-5. FR SP 82-73.32812.312-0700 & .287-0540 V1 SP P294 AF#84004061 EX: BG NWCR LOT C S88*E ALG NLN 468' TPB S88*E 283.91' S62*W 268.90' N18*W 140' TPB |
| Geographic ID: | R32812-309-0570 | Agent Code: | |
| Type: | Real | | |
| Tax Area: | 712 - APPRAISER-S Whid Schl Dist, outside Langley, improved, greater than 1 acre | Land Use Code | 11 |
| Open Space: | N | DFL | N |
| Historic Property: | N | Remodel Property: | N |
| Multi-Family Redevelopment: | N | | |
| Township: | 28 | Section: | 12 |
| Range: | R3 |
Location |
| Address: | 4421 GLACIER POND LN CLINTON, WA 98236 | Mapsco: | |
| Neighborhood: | Cycle 4 | Map ID: | 706 |
| Neighborhood CD: | 4 |
Owner |
| Name: | WEEKLY, ROBERT | Owner ID: | 292922 |
| Mailing Address: | LORA WEEKLY 7511 GREENWOOD AVE N #513 SEATTLE, WA 98103 | % Ownership: | 100.0000000000% |
| | | Exemptions: | |
Taxes and Assessment Details
Values
| (+) Improvement Homesite Value: | + | $0 | |
| (+) Improvement Non-Homesite Value: | + | $277,533 | |
| (+) Land Homesite Value: | + | $0 | |
| (+) Land Non-Homesite Value: | + | $602,660 | |
| (+) Curr Use (HS): | + | $0 | $0 |
| (+) Curr Use (NHS): | + | $0 | $0 |
| | | -------------------------- | |
| (=) Market Value: | = | $880,193 | |
| (–) Productivity Loss: | – | $0 | |
| | | -------------------------- | |
| (=) Subtotal: | = | $880,193 | |
| (+) Senior Appraised Value: | + | $0 | |
| (+) Non-Senior Appraised Value: | + | $880,193 | |
| | | -------------------------- | |
| (=) Total Appraised Value: | = | $880,193 | |
| (–) Senior Exemption Loss: | – | $0 | |
| (–) Exemption Loss: | – | $0 | |
| | | -------------------------- | |
| (=) Taxable Value: | = | $880,193 | |
Taxing Jurisdiction
| Owner: | WEEKLY, ROBERT | | |
| % Ownership: | 100.0000000000% | | |
| Total Value: | $880,193 | | |
| Tax Area: | 712 - APPRAISER-S Whid Schl Dist, outside Langley, improved, greater than 1 acre |
| CF | Conservation Futures | 0.0316035091 | $880,193 | $880,193 | $27.82 | | |
| FIRE3 | Fire & Rescue Dist #3 S Whidbey GEN | 1.2004855531 | $880,193 | $880,193 | $1,056.66 | | |
| HOBOND | Hospital BOND | 0.1910887512 | $880,193 | $880,193 | $168.19 | | |
| HOGEN | Hospital GEN | 0.3902502903 | $880,193 | $880,193 | $343.50 | | |
| CE | County Current Expense | 0.3708482477 | $880,193 | $880,193 | $326.42 | | |
| CR | County Roads | 0.4584763726 | $880,193 | $880,193 | $403.55 | | |
| ISLANDEMS | Hospital GEN (EMS) | 0.5000000000 | $880,193 | $880,193 | $440.10 | | |
| LIB | Library Sno-Isle GEN | 0.3153421757 | $880,193 | $880,193 | $277.56 | | |
| PORTWHID | Port of S Whidbey GEN | 0.1094540357 | $880,193 | $880,193 | $96.34 | | |
| SCH206BOND | School 206 BOND | 0.3161759235 | $880,193 | $880,193 | $278.30 | | |
| SCH206MO | School 206 Enrichment | 0.4547169547 | $880,193 | $880,193 | $400.24 | | |
| ST | State School | 1.3035497053 | $880,193 | $880,193 | $1,147.38 | | |
| ST2 | State School Part 2 | 0.8169543533 | $880,193 | $880,193 | $719.08 | | |
| SWHIDPRBD | P & R S Whidbey BOND | 0.0152817568 | $880,193 | $880,193 | $13.45 | | |
| SWHIDPRBD2 | P & R S Whidbey BOND2 | 0.0138911264 | $880,193 | $880,193 | $12.23 | | |
| SWHIDPRMT | P & R S Whidbey GEN | 0.2053334452 | $880,193 | $880,193 | $180.73 | | |
| | Total Tax Rate: | 6.6934522006 | | | | | |
| | | | | Taxes w/Current Exemptions: | $5,891.55 | | |
| | | | | Taxes w/o Exemptions: | $5,891.55 | | |
Improvement / Building
| Improvement #1: | RESIDENTIAL | State Code: | Y | 2175.0 sqft | Value: | $277,533 |
| Bathrooms: | 2 | Bedrooms: | 2 | | Ceiling: | TONGUE & GROOVE | Exterior Wall/Cover: | CEMENT FIBER | | Floor Covering: | CERAMIC TILE/CPT 40-60 | Floor Structure: | WOOD W/SUBFLOOR | | Foundation: | CONCRETE | Heating: | FHA ELECTRIC | | Interior Finish: | DRYWALL PAINT | Plumbing Fixture Cnt: | 9 | | Roof Slope: | 4" IN 12" | Roof Structure/Cover: | BEAM ALUMINUM HEAVY |
|
| | Type | Description | Class CD | Sub Class CD | Year Built | Area |
| | BAS | BASE/MAIN FLOOR | 3 | 0 | 1975 | 1227.0 |
| | DWN | DOWNSTAIRS LIVING AREA | 3 | 0 | 1975 | 948.0 |
| | OP2 | OPEN PORCH W/STEPS | 3 | 0 | 1975 | 104.0 |
| | BIG | BUILT IN GARAGE | 3 | 0 | 1975 | 252.0 |
| | OWP | OPEN WOOD PORCH W/STEPS | 3 | 0 | 1975 | 343.0 |
| | OWR | OPEN WOOD PORCH W/STEPS/ROOF | 3 | 0 | 1975 | 32.0 |
Sketch
| No sketches available for this property. |
Property Image
Land
| 1 | HB | HIGH BLUFF | 5.6500 | 246114.00 | 266.00 | 0.00 | 1.00 | $600,000 | $0 |
| 2 | 55 | TIDES | 0.0000 | 0.00 | 266.00 | 0.00 | 1.00 | $2,660 | $0 |
Roll Value History
| 2026 | N/A | N/A | N/A | N/A | N/A |
| 2025 | $277,533 | $602,660 | $0 | $880,193 | $880,193 |
| 2024 | $280,878 | $577,660 | $0 | $858,538 | $858,538 |
| 2023 | $284,660 | $577,660 | $0 | $862,320 | $862,320 |
| 2022 | $261,190 | $527,660 | $0 | $788,850 | $788,850 |
| 2021 | $230,093 | $402,660 | $0 | $632,753 | $632,753 |
| 2020 | $219,262 | $402,660 | $0 | $621,922 | $621,922 |
| 2019 | $148,082 | $452,660 | $0 | $600,742 | $600,742 |
| 2018 | $148,580 | $402,660 | $0 | $551,240 | $551,240 |
| 2017 | $149,580 | $350,000 | $0 | $499,580 | $499,580 |
| 2016 | $151,573 | $302,660 | $0 | $454,233 | $454,233 |
| 2015 | $153,567 | $302,660 | $0 | $456,227 | $456,227 |
| 2014 | $150,205 | $302,660 | $0 | $452,865 | $452,865 |
| 2013 | $152,208 | $286,478 | $0 | $438,686 | $438,686 |
| 2012 | $154,210 | $286,478 | $0 | $440,688 | $440,688 |
| 2011 | $156,214 | $286,478 | $0 | $442,692 | $442,692 |
| 2010 | $164,295 | $286,478 | $0 | $450,773 | $450,773 |
| 2009 | $171,252 | $350,192 | $0 | $521,444 | $521,444 |
| 2008 | $170,623 | $350,192 | $0 | $520,815 | $520,815 |
| 2007 | $172,606 | $348,330 | $0 | $520,936 | $520,936 |
Deed and Sales History
| 1 | 12/11/2019 | WD | Warranty Deed | MALBIN, ZACHARY | WEEKLY, ROBERT | | | $673,000.00 | 41491 | 4477670 |
| 2 | 01/31/2013 | WD | Warranty Deed | DILL, WILLIAM J | MALBIN, ZACHARY | | | $445,500.00 | 10320 | 4332792 |
| 3 | 08/03/2009 | BLA | DNU - Boundary Line Adjustment | DILL, WILLIAM J | DILL, WILLIAM J | | | $0.00 | 81344 | 4206654 |
| 4 | 06/27/2008 | QCD | Quit Claim Deed | DILL, WILLIAM J | DILL, WILLIAM J | | | $0.00 | 81943 | 4233565 |
| 5 | 03/02/2005 | WD | Warranty Deed | EDWARDS, RICHARD E | DILL, WILLIAM J | | | $390,100.00 | 50992 | 4128171 |
| 6 | 08/05/2004 | EZ | Easement | EDWARDS, RICHARD E | EDWARDS, RICHARD E | | | $0.00 | 43822 | 4110322 |
| 7 | 05/11/1998 | DECREE | Divorce Decree/Legal Separation | Unknown | EDWARDS, RICHARD E | | | $0.00 | 81736 | 98009286 |
| 8 | 03/01/1996 | WD | Warranty Deed | DALLESSANDRO, VILETA A | EDWARDS, RICHARD E | | | $220,000.00 | 60940 | 96004885 |
| 9 | 03/01/1992 | WD | Warranty Deed | DAVID, DAVID A | DAVID, DAVID D | | | $0.00 | 20888 | 92004500 |
| 10 | 03/01/1992 | WD | Warranty Deed | DAVID, DAVID D | DALLESSANDRO, VILETA A | | | $59,750.00 | 20889 | 92004501 |
| 11 | 10/01/1984 | OTHER | Other - Misc. Documents | EDWARDS, RICHARD E | EDWARDS, RICHARD E | | | $0.00 | 60858 | 84004061 |
| 12 | 10/01/1984 | WD | Warranty Deed | EDWARDS, RICHARD E | DAVID, DAVID A | | | $143,000.00 | 43241 | 84005291 |
| 13 | 08/01/1982 | EZ | Easement | Unknown | EDWARDS, RICHARD E | | | $104,500.00 | 21992 | 399676 |
Payout Agreement
| No payout information available.. |