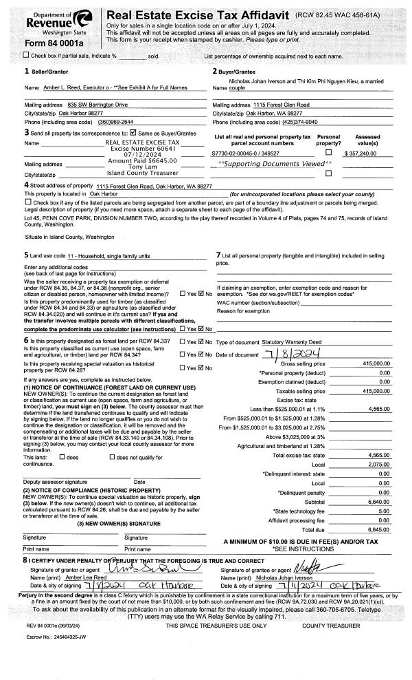
Property
Account |
| Property ID: | 584950 | Abbreviated Legal Description: | LOT B SP 83-61.32934.466-4470 V1 SP P295 AF#84004294 TGW & SUB EZ |
| Geographic ID: | R32934-517-4750 | Agent Code: | |
| Type: | Real | | |
| Tax Area: | 712 - APPRAISER-S Whid Schl Dist, outside Langley, improved, greater than 1 acre | Land Use Code | 11 |
| Open Space: | N | DFL | N |
| Historic Property: | N | Remodel Property: | N |
| Multi-Family Redevelopment: | N | | |
| Township: | 29 | Section: | 34 |
| Range: | R3 |
Location |
| Address: | 3979 NIXON LN CLINTON, WA 98236 | Mapsco: | |
| Neighborhood: | Cycle 4 | Map ID: | 841 |
| Neighborhood CD: | 4 |
Owner |
| Name: | GANNAWAY JTWROS, CAROL J | Owner ID: | 310440 |
| Mailing Address: | JERRY R O'NEILL JTWROS 821 5TH AVE HAMMOND, OR 97121 | % Ownership: | 100.0000000000% |
| | | Exemptions: | |
Taxes and Assessment Details
Values
| (+) Improvement Homesite Value: | + | $0 | |
| (+) Improvement Non-Homesite Value: | + | $531,803 | |
| (+) Land Homesite Value: | + | $0 | |
| (+) Land Non-Homesite Value: | + | $370,000 | |
| (+) Curr Use (HS): | + | $0 | $0 |
| (+) Curr Use (NHS): | + | $0 | $0 |
| | | -------------------------- | |
| (=) Market Value: | = | $901,803 | |
| (–) Productivity Loss: | – | $0 | |
| | | -------------------------- | |
| (=) Subtotal: | = | $901,803 | |
| (+) Senior Appraised Value: | + | $0 | |
| (+) Non-Senior Appraised Value: | + | $901,803 | |
| | | -------------------------- | |
| (=) Total Appraised Value: | = | $901,803 | |
| (–) Senior Exemption Loss: | – | $0 | |
| (–) Exemption Loss: | – | $0 | |
| | | -------------------------- | |
| (=) Taxable Value: | = | $901,803 | |
Taxing Jurisdiction
| Owner: | GANNAWAY JTWROS, CAROL J | | |
| % Ownership: | 100.0000000000% | | |
| Total Value: | $901,803 | | |
| Tax Area: | 712 - APPRAISER-S Whid Schl Dist, outside Langley, improved, greater than 1 acre |
| CF | Conservation Futures | 0.0316035091 | $901,803 | $901,803 | $28.50 | | |
| FIRE3 | Fire & Rescue Dist #3 S Whidbey GEN | 1.2004855531 | $901,803 | $901,803 | $1,082.60 | | |
| HOBOND | Hospital BOND | 0.1910887512 | $901,803 | $901,803 | $172.32 | | |
| HOGEN | Hospital GEN | 0.3902502903 | $901,803 | $901,803 | $351.93 | | |
| CE | County Current Expense | 0.3708482477 | $901,803 | $901,803 | $334.43 | | |
| CR | County Roads | 0.4584763726 | $901,803 | $901,803 | $413.46 | | |
| ISLANDEMS | Hospital GEN (EMS) | 0.5000000000 | $901,803 | $901,803 | $450.90 | | |
| LIB | Library Sno-Isle GEN | 0.3153421757 | $901,803 | $901,803 | $284.38 | | |
| PORTWHID | Port of S Whidbey GEN | 0.1094540357 | $901,803 | $901,803 | $98.71 | | |
| SCH206BOND | School 206 BOND | 0.3161759235 | $901,803 | $901,803 | $285.13 | | |
| SCH206MO | School 206 Enrichment | 0.4547169547 | $901,803 | $901,803 | $410.07 | | |
| ST | State School | 1.3035497053 | $901,803 | $901,803 | $1,175.55 | | |
| ST2 | State School Part 2 | 0.8169543533 | $901,803 | $901,803 | $736.73 | | |
| SWHIDPRBD | P & R S Whidbey BOND | 0.0152817568 | $901,803 | $901,803 | $13.78 | | |
| SWHIDPRBD2 | P & R S Whidbey BOND2 | 0.0138911264 | $901,803 | $901,803 | $12.53 | | |
| SWHIDPRMT | P & R S Whidbey GEN | 0.2053334452 | $901,803 | $901,803 | $185.17 | | |
| | Total Tax Rate: | 6.6934522006 | | | | | |
| | | | | Taxes w/Current Exemptions: | $6,036.19 | | |
| | | | | Taxes w/o Exemptions: | $6,036.19 | | |
Improvement / Building
| Improvement #1: | RESIDENTIAL | State Code: | Y | 1760.0 sqft | Value: | $282,443 |
| Bathrooms: | 2.5 | Bedrooms: | 4 | | Ceiling: | DRYWALL PAINTED | Cooling: | HEAT PUMP/CONV/V | | Exterior Wall/Cover: | WOOD SIDING | Floor Covering: | VINYL/HARDWOOD 60-40 | | Floor Structure: | WOOD W/SUBFLOOR | Foundation: | CONCRETE | | Interior Finish: | DRYWALL PAINT | Plumbing Fixture Cnt: | 13 | | Roof Slope: | 4" IN 12" | Roof Structure/Cover: | CJ ASPHALT |
|
| | Type | Description | Class CD | Sub Class CD | Year Built | Area |
| | BAS | BASE/MAIN FLOOR | 3 | 0 | 1988 | 890.0 |
| | BIG | BUILT IN GARAGE | 3 | 0 | 1988 | 484.0 |
| | UPS | UPPER STORY | 3 | 0 | 1988 | 870.0 |
| | OWP | OPEN WOOD PORCH W/STEPS | 3 | 0 | 1988 | 360.0 |
| | OWC | OPEN WOOD PORCH W/STEPS/ROOF/C | 3 | 0 | 1988 | 70.0 |
| | oPOL | POLE BARN | 3 | 0 | 1988 | 1440.0 |
| Improvement #2: | RESIDENTIAL | State Code: | Y | 1104.5 sqft | Value: | $249,360 |
| Bathrooms: | 1.5 | Bedrooms: | 1 | | Ceiling: | DRYWALL PAINTED | Cooling: | HEAT PUMP/CONV/V | | Exterior Wall/Cover: | WOOD SIDING | Floor Covering: | VINYL 100% | | Floor Structure: | WOOD W/SUBFLOOR | Foundation: | CONCRETE | | Interior Finish: | DRYWALL PAINT | Plumbing Fixture Cnt: | 8 | | Roof Slope: | 12" IN 12" | Roof Structure/Cover: | CJ ASPHALT |
|
| | Type | Description | Class CD | Sub Class CD | Year Built | Area |
| | BAS | BASE/MAIN FLOOR | 3 | 0 | 2009 | 955.0 |
| | BIG | BUILT IN GARAGE | 3 | 0 | 2009 | 306.0 |
| | LOF | LOFT | 3 | 0 | 2009 | 149.5 |
| | OWP | OPEN WOOD PORCH W/STEPS | 3 | 0 | 2009 | 494.0 |
| | ENP | ENCLOSED PORCH | 3 | 0 | 2009 | 224.0 |
Sketch
Property Image
Land
| 1 | 32 | AC (03.01-09.99) | 5.0000 | 0.00 | 0.00 | 0.00 | 1.00 | $370,000 | $0 |
Roll Value History
| 2026 | N/A | N/A | N/A | N/A | N/A |
| 2025 | $531,803 | $370,000 | $0 | $901,803 | $901,803 |
| 2024 | $538,495 | $350,000 | $0 | $888,495 | $888,495 |
| 2023 | $545,185 | $330,000 | $0 | $875,185 | $875,185 |
| 2022 | $493,062 | $280,000 | $0 | $773,062 | $773,062 |
| 2021 | $432,104 | $230,000 | $0 | $662,104 | $662,104 |
| 2020 | $418,310 | $190,000 | $0 | $608,310 | $608,310 |
| 2019 | $310,655 | $250,000 | $0 | $560,655 | $560,655 |
| 2018 | $311,535 | $210,000 | $0 | $521,535 | $521,535 |
| 2017 | $304,841 | $190,000 | $0 | $494,841 | $494,841 |
| 2016 | $308,265 | $165,000 | $0 | $473,265 | $473,265 |
| 2015 | $311,685 | $135,000 | $0 | $446,685 | $446,685 |
| 2014 | $264,374 | $160,000 | $0 | $424,374 | $424,374 |
| 2013 | $267,392 | $160,000 | $0 | $427,392 | $427,392 |
| 2012 | $270,415 | $160,000 | $0 | $430,415 | $430,415 |
| 2011 | $273,435 | $160,000 | $0 | $433,435 | $433,435 |
| 2010 | $293,326 | $160,000 | $0 | $453,326 | $453,326 |
| 2009 | $274,849 | $220,000 | $0 | $494,849 | $494,849 |
| 2008 | $239,055 | $215,000 | $0 | $454,055 | $454,055 |
| 2007 | $242,678 | $215,000 | $0 | $457,678 | $457,678 |
Deed and Sales History
| 1 | 10/18/2023 | QCD | Quit Claim Deed | GANNAWAY TTEE, CAROL | GANNAWAY JTWROS, CAROL J | | | $0.00 | 58301 | 4565947 |
| 2 | 09/26/2018 | QCD | Quit Claim Deed | GANNAWAY, CAROL J | GANNAWAY TTEE, CAROL | | | $0.00 | 36272 | 4453336 |
| 3 | 07/27/2015 | ESTSEPPROP | Establish Separate Property | GANNAWAY, CAROL J | GANNAWAY, CAROL J | | | $0.00 | 20683 | 4383065 |
| 4 | 06/11/2010 | QCD | Quit Claim Deed | GANNAWAY, CAROL J | GANNAWAY, CAROL J | | | $0.00 | 1787 | 4277404 |
| 5 | 06/13/2008 | ESTSEPPROP | Establish Separate Property | GALLOWAY, CAROL JEAN | GANNAWAY, CAROL J | | | $0.00 | 81659 | 4231698 |
| 6 | 10/24/2001 | ESTSEPPROP | Establish Separate Property | CRONAN, JOHN J | GALLOWAY, CAROL JEAN | | | $0.00 | 69163 | 0 |
| 7 | 07/01/1993 | QCD | Quit Claim Deed | CRONAN, JOHN J | CRONAN, JOHN J | | | $0.00 | 32816 | 93014487 |
| 8 | 11/01/1990 | WD | Warranty Deed | BAILEY, JAMES P | CRONAN, JOHN J | | | $162,000.00 | 6619 | 90023080 |
| 9 | 05/01/1989 | WD | Warranty Deed | VAN, BOCKEL, M | BAILEY, JAMES P | | | $120,000.00 | 92004 | 89006878 |
| 10 | 08/01/1988 | WD | Warranty Deed | R, K P | VAN, BOCKEL, M | | | $114,950.00 | 82723 | 88010279 |
| 11 | 05/01/1988 | WD | Warranty Deed | GORE, WILLIAM J | R, K P | | | $28,000.00 | 81770 | 88006568 |
| 12 | 12/01/1987 | WD | Warranty Deed | HAGGLUND, DALE E | GORE, WILLIAM J | | | $25,000.00 | 74016 | 87017417 |
| 13 | 06/01/1987 | EZ | Easement | HAGGLUND, DALE E | HAGGLUND, DALE E | | | $0.00 | 71884 | 87008759 |
| 14 | 10/01/1984 | WD | Warranty Deed | NORTHWEST, PARTNERS | HAGGLUND, DALE E | | | $23,000.00 | 43047 | 84004569 |
| 15 | 03/01/1981 | EXECUTORD | Executor Deed | Unknown | NORTHWEST, PARTNERS | | | $10,660.00 | 10792 | 380725 |
Payout Agreement
| No payout information available.. |