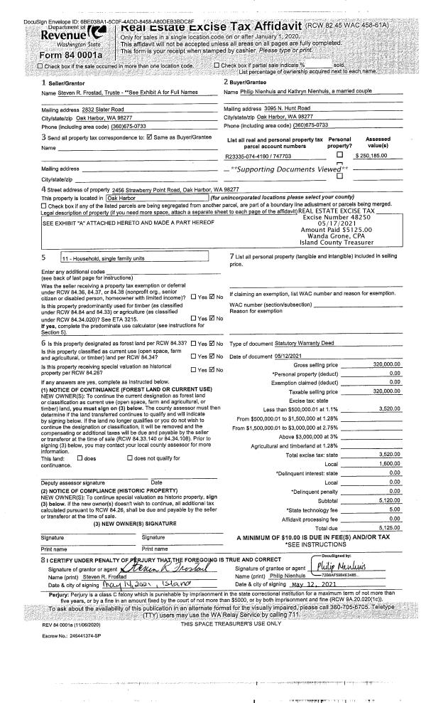
Property
Account |
| Property ID: | 585012 | Abbreviated Legal Description: | REPLACES 302 4180 10/18/84 LOT B SP 83-43-6.32908.413.2850 & 475.2500 V1 SP P272 AF#84000345 |
| Geographic ID: | R32908-418-3020 | Agent Code: | |
| Type: | Real | | |
| Tax Area: | 712 - APPRAISER-S Whid Schl Dist, outside Langley, improved, greater than 1 acre | Land Use Code | 11 |
| Open Space: | N | DFL | N |
| Historic Property: | N | Remodel Property: | N |
| Multi-Family Redevelopment: | N | | |
| Township: | 29 | Section: | 08 |
| Range: | R3 |
Location |
| Address: | 5287 DOE RUN LN LANGLEY, WA 98260 | Mapsco: | |
| Neighborhood: | Cycle 4 | Map ID: | 749 |
| Neighborhood CD: | 4 |
Owner |
| Name: | KAMERA, DENNIS W | Owner ID: | 92692 |
| Mailing Address: | 5287 DOE RUN LN LANGLEY, WA 98260-8504 | % Ownership: | 100.0000000000% |
| | | Exemptions: | |
Taxes and Assessment Details
Values
| (+) Improvement Homesite Value: | + | $0 | |
| (+) Improvement Non-Homesite Value: | + | $383,209 | |
| (+) Land Homesite Value: | + | $0 | |
| (+) Land Non-Homesite Value: | + | $380,000 | |
| (+) Curr Use (HS): | + | $0 | $0 |
| (+) Curr Use (NHS): | + | $0 | $0 |
| | | -------------------------- | |
| (=) Market Value: | = | $763,209 | |
| (–) Productivity Loss: | – | $0 | |
| | | -------------------------- | |
| (=) Subtotal: | = | $763,209 | |
| (+) Senior Appraised Value: | + | $0 | |
| (+) Non-Senior Appraised Value: | + | $763,209 | |
| | | -------------------------- | |
| (=) Total Appraised Value: | = | $763,209 | |
| (–) Senior Exemption Loss: | – | $0 | |
| (–) Exemption Loss: | – | $0 | |
| | | -------------------------- | |
| (=) Taxable Value: | = | $763,209 | |
Taxing Jurisdiction
| Owner: | KAMERA, DENNIS W | | |
| % Ownership: | 100.0000000000% | | |
| Total Value: | $763,209 | | |
| Tax Area: | 712 - APPRAISER-S Whid Schl Dist, outside Langley, improved, greater than 1 acre |
| CF | Conservation Futures | 0.0316035091 | $763,209 | $763,209 | $24.12 | | |
| FIRE3 | Fire & Rescue Dist #3 S Whidbey GEN | 1.2004855531 | $763,209 | $763,209 | $916.22 | | |
| HOBOND | Hospital BOND | 0.1910887512 | $763,209 | $763,209 | $145.84 | | |
| HOGEN | Hospital GEN | 0.3902502903 | $763,209 | $763,209 | $297.84 | | |
| CE | County Current Expense | 0.3708482477 | $763,209 | $763,209 | $283.03 | | |
| CR | County Roads | 0.4584763726 | $763,209 | $763,209 | $349.91 | | |
| ISLANDEMS | Hospital GEN (EMS) | 0.5000000000 | $763,209 | $763,209 | $381.60 | | |
| LIB | Library Sno-Isle GEN | 0.3153421757 | $763,209 | $763,209 | $240.67 | | |
| PORTWHID | Port of S Whidbey GEN | 0.1094540357 | $763,209 | $763,209 | $83.54 | | |
| SCH206BOND | School 206 BOND | 0.3161759235 | $763,209 | $763,209 | $241.31 | | |
| SCH206MO | School 206 Enrichment | 0.4547169547 | $763,209 | $763,209 | $347.04 | | |
| ST | State School | 1.3035497053 | $763,209 | $763,209 | $994.88 | | |
| ST2 | State School Part 2 | 0.8169543533 | $763,209 | $763,209 | $623.51 | | |
| SWHIDPRBD | P & R S Whidbey BOND | 0.0152817568 | $763,209 | $763,209 | $11.66 | | |
| SWHIDPRBD2 | P & R S Whidbey BOND2 | 0.0138911264 | $763,209 | $763,209 | $10.60 | | |
| SWHIDPRMT | P & R S Whidbey GEN | 0.2053334452 | $763,209 | $763,209 | $156.71 | | |
| | Total Tax Rate: | 6.6934522006 | | | | | |
| | | | | Taxes w/Current Exemptions: | $5,108.48 | | |
| | | | | Taxes w/o Exemptions: | $5,108.48 | | |
Improvement / Building
| Improvement #1: | RESIDENTIAL | State Code: | Y | 1586.0 sqft | Value: | $383,209 |
| Bathrooms: | 2 | Bedrooms: | 3 | | Ceiling: | BEAM PAINTED | Exterior Wall/Cover: | LOG TO 10" | | Floor Covering: | SOFTWOOD 100% | Floor Structure: | WOOD W/SUBFLOOR | | Foundation: | CONCRETE | Interior Finish: | DRYWALL PAINT | | Plumbing Fixture Cnt: | 9 | Roof Slope: | 5" IN 12" | | Roof Structure/Cover: | CJ ALUMINIUM HEAVY |   |   |
|
| | Type | Description | Class CD | Sub Class CD | Year Built | Area |
| | BAS | BASE/MAIN FLOOR | 3 | 0 | 1977 | 1020.0 |
| | UPS | UPPER STORY | 3 | 0 | 1977 | 566.0 |
| | BAW | BALCONY WOOD RAIL | 3 | 0 | 1977 | 24.0 |
| | OWR | OPEN WOOD PORCH W/STEPS/ROOF | 3 | 0 | 1977 | 504.0 |
| | ENP | ENCLOSED PORCH | 3 | 0 | 1977 | 220.0 |
| | ENP | ENCLOSED PORCH | 3 | 0 | 1977 | 716.0 |
Sketch
Property Image
Land
| 1 | 32 | AC (03.01-09.99) | 3.8600 | 0.00 | 0.00 | 0.00 | 1.00 | $380,000 | $0 |
Roll Value History
| 2026 | N/A | N/A | N/A | N/A | N/A |
| 2025 | $383,209 | $380,000 | $0 | $763,209 | $763,209 |
| 2024 | $384,093 | $350,000 | $0 | $734,093 | $734,093 |
| 2023 | $389,197 | $330,000 | $0 | $719,197 | $719,197 |
| 2022 | $357,036 | $290,000 | $0 | $647,036 | $647,036 |
| 2021 | $314,497 | $230,000 | $0 | $544,497 | $544,497 |
| 2020 | $248,393 | $190,000 | $0 | $438,393 | $438,393 |
| 2019 | $183,217 | $250,000 | $0 | $433,217 | $433,217 |
| 2018 | $183,861 | $210,000 | $0 | $393,861 | $393,861 |
| 2017 | $173,807 | $190,000 | $0 | $363,807 | $363,807 |
| 2016 | $176,221 | $135,000 | $0 | $311,221 | $311,221 |
| 2015 | $178,635 | $135,000 | $0 | $313,635 | $313,635 |
| 2014 | $164,077 | $121,500 | $0 | $285,577 | $285,577 |
| 2013 | $166,378 | $131,240 | $0 | $297,618 | $297,618 |
| 2012 | $168,678 | $131,240 | $0 | $299,918 | $299,918 |
| 2011 | $170,979 | $131,240 | $0 | $302,219 | $302,219 |
| 2010 | $183,963 | $131,240 | $0 | $315,203 | $315,203 |
| 2009 | $192,358 | $169,840 | $0 | $362,198 | $362,198 |
| 2008 | $194,011 | $165,980 | $0 | $359,991 | $359,991 |
| 2007 | $197,103 | $165,980 | $0 | $363,083 | $363,083 |
Deed and Sales History
| 1 | 07/01/1984 | WD | Warranty Deed | Unknown | KAMERA, DENNIS W | | | $48,500.00 | 42111 | 84000923 |
Payout Agreement
| No payout information available.. |