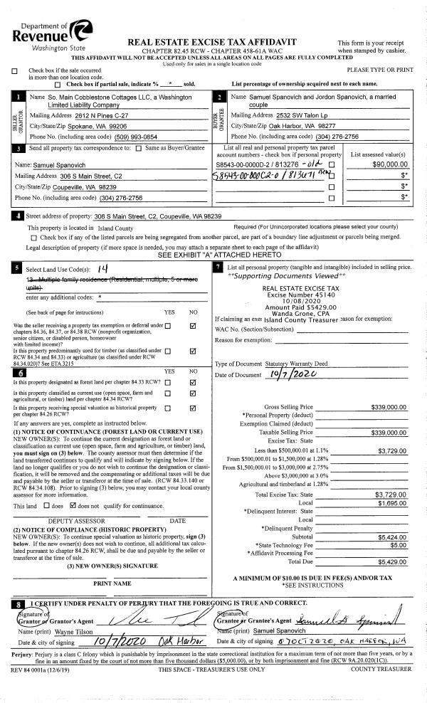
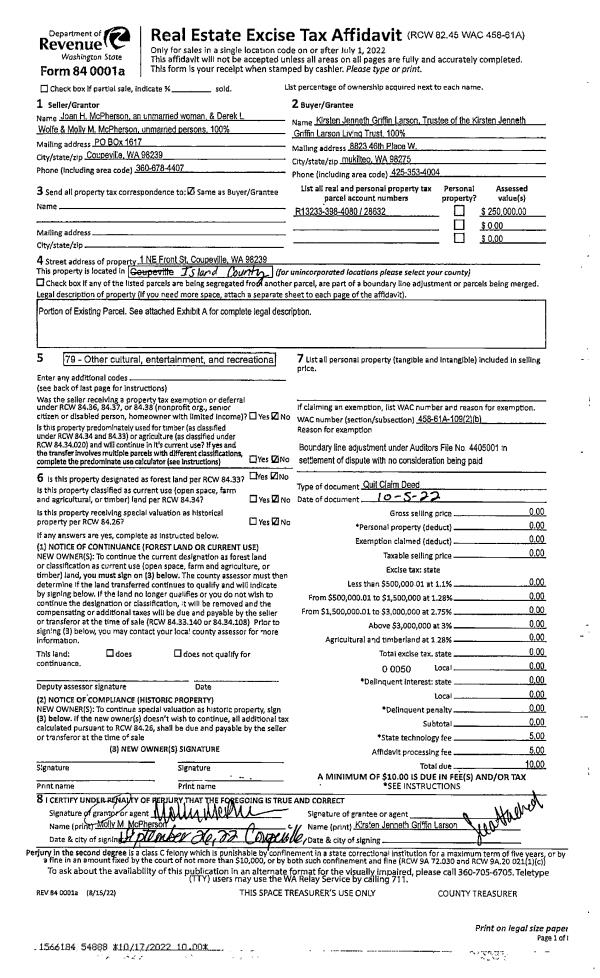
Property
Account |
| Property ID: | 58555 | Abbreviated Legal Description: | 11 - IN NE NW: BG NECR NE NW S689.99' W1023.65' TPB E329.84' S756.82' S87*W330' N766.64' TPB TGW & SUB TO EZ |
| Geographic ID: | R22927-362-1830 | Agent Code: | |
| Type: | Real | | |
| Tax Area: | 712 - APPRAISER-S Whid Schl Dist, outside Langley, improved, greater than 1 acre | Land Use Code | 11 |
| Open Space: | N | DFL | N |
| Historic Property: | N | Remodel Property: | N |
| Multi-Family Redevelopment: | N | | |
| Township: | 29 | Section: | 27 |
| Range: | R2 |
Location |
| Address: | 1336 ROLLING RD FREELAND, WA 98249 | Mapsco: | |
| Neighborhood: | Cycle 3 | Map ID: | 348 |
| Neighborhood CD: | 3 |
Owner |
| Name: | HENDERSON, DAVID | Owner ID: | 300879 |
| Mailing Address: | KILEY HENDERSON 1336 ROLLING RD FREELAND, WA 98249 | % Ownership: | 100.0000000000% |
| | | Exemptions: | |
Taxes and Assessment Details
Values
| (+) Improvement Homesite Value: | + | $0 | |
| (+) Improvement Non-Homesite Value: | + | $155,105 | |
| (+) Land Homesite Value: | + | $0 | |
| (+) Land Non-Homesite Value: | + | $370,000 | |
| (+) Curr Use (HS): | + | $0 | $0 |
| (+) Curr Use (NHS): | + | $0 | $0 |
| | | -------------------------- | |
| (=) Market Value: | = | $525,105 | |
| (–) Productivity Loss: | – | $0 | |
| | | -------------------------- | |
| (=) Subtotal: | = | $525,105 | |
| (+) Senior Appraised Value: | + | $0 | |
| (+) Non-Senior Appraised Value: | + | $525,105 | |
| | | -------------------------- | |
| (=) Total Appraised Value: | = | $525,105 | |
| (–) Senior Exemption Loss: | – | $0 | |
| (–) Exemption Loss: | – | $0 | |
| | | -------------------------- | |
| (=) Taxable Value: | = | $525,105 | |
Taxing Jurisdiction
| Owner: | HENDERSON, DAVID | | |
| % Ownership: | 100.0000000000% | | |
| Total Value: | $525,105 | | |
| Tax Area: | 712 - APPRAISER-S Whid Schl Dist, outside Langley, improved, greater than 1 acre |
| CF | Conservation Futures | 0.0316035091 | $525,105 | $525,105 | $16.60 | | |
| FIRE3 | Fire & Rescue Dist #3 S Whidbey GEN | 1.2004855531 | $525,105 | $525,105 | $630.38 | | |
| HOBOND | Hospital BOND | 0.1910887512 | $525,105 | $525,105 | $100.34 | | |
| HOGEN | Hospital GEN | 0.3902502903 | $525,105 | $525,105 | $204.92 | | |
| CE | County Current Expense | 0.3708482477 | $525,105 | $525,105 | $194.73 | | |
| CR | County Roads | 0.4584763726 | $525,105 | $525,105 | $240.75 | | |
| ISLANDEMS | Hospital GEN (EMS) | 0.5000000000 | $525,105 | $525,105 | $262.55 | | |
| LIB | Library Sno-Isle GEN | 0.3153421757 | $525,105 | $525,105 | $165.59 | | |
| PORTWHID | Port of S Whidbey GEN | 0.1094540357 | $525,105 | $525,105 | $57.47 | | |
| SCH206BOND | School 206 BOND | 0.3161759235 | $525,105 | $525,105 | $166.03 | | |
| SCH206MO | School 206 Enrichment | 0.4547169547 | $525,105 | $525,105 | $238.77 | | |
| ST | State School | 1.3035497053 | $525,105 | $525,105 | $684.50 | | |
| ST2 | State School Part 2 | 0.8169543533 | $525,105 | $525,105 | $428.99 | | |
| SWHIDPRBD | P & R S Whidbey BOND | 0.0152817568 | $525,105 | $525,105 | $8.02 | | |
| SWHIDPRBD2 | P & R S Whidbey BOND2 | 0.0138911264 | $525,105 | $525,105 | $7.29 | | |
| SWHIDPRMT | P & R S Whidbey GEN | 0.2053334452 | $525,105 | $525,105 | $107.82 | | |
| | Total Tax Rate: | 6.6934522006 | | | | | |
| | | | | Taxes w/Current Exemptions: | $3,514.75 | | |
| | | | | Taxes w/o Exemptions: | $3,514.75 | | |
Improvement / Building
| Improvement #1: | MANUFACTURED HOME | State Code: | Y | 2112.0 sqft | Value: | $155,105 |
| Bathrooms: | 2 | Bedrooms: | 2 | | Ceiling: | PLASTER PAINTED | Cooling: | EVAP NO DUCT | | Exterior Wall/Cover: | VINYL | Floor Covering: | CARPET 100% | | Floor Structure: | SLAB ON GRADE | Foundation: | SLAB | | Heating: | FHA ELECTRIC | Interior Finish: | PLASTER | | Plumbing Fixture Cnt: | 1 | Roof Slope: | FLAT | | Roof Structure/Cover: | CJ ALUMINIUM HEAVY |   |   |
|
| | Type | Description | Class CD | Sub Class CD | Year Built | Area |
| | BAS | BASE/MAIN FLOOR | 4 | 0 | 1980 | 1680.0 |
| | DGR | DETACHED GARAGE | 4 | 0 | 1980 | 1440.0 |
| | OWP | OPEN WOOD PORCH W/STEPS | 4 | 0 | 1980 | 912.0 |
| | LOF | LOFT | 4 | 0 | 1980 | 432.0 |
Sketch
Property Image
Land
| 1 | 32 | AC (03.01-09.99) | 5.8000 | 0.00 | 0.00 | 0.00 | 1.00 | $370,000 | $0 |
Roll Value History
| 2026 | N/A | N/A | N/A | N/A | N/A |
| 2025 | $155,105 | $370,000 | $0 | $525,105 | $525,105 |
| 2024 | $158,651 | $350,000 | $0 | $508,651 | $508,651 |
| 2023 | $150,097 | $330,000 | $0 | $480,097 | $480,097 |
| 2022 | $144,147 | $280,000 | $0 | $424,147 | $424,147 |
| 2021 | $54,144 | $230,000 | $0 | $284,144 | $284,144 |
| 2020 | $55,261 | $205,000 | $0 | $260,261 | $260,261 |
| 2019 | $49,652 | $230,000 | $0 | $279,652 | $279,652 |
| 2018 | $51,397 | $210,000 | $0 | $261,397 | $261,397 |
| 2017 | $53,142 | $190,000 | $0 | $243,142 | $243,142 |
| 2016 | $54,886 | $150,000 | $0 | $204,886 | $204,886 |
| 2015 | $56,631 | $135,000 | $0 | $191,631 | $191,631 |
| 2014 | $58,376 | $135,000 | $0 | $193,376 | $193,376 |
| 2013 | $60,179 | $191,400 | $0 | $251,579 | $251,579 |
| 2012 | $61,736 | $191,400 | $0 | $253,136 | $253,136 |
| 2011 | $63,294 | $191,400 | $0 | $254,694 | $254,694 |
| 2010 | $66,440 | $191,400 | $0 | $257,840 | $257,840 |
| 2009 | $70,080 | $226,200 | $0 | $296,280 | $296,280 |
| 2008 | $73,228 | $251,117 | $0 | $324,345 | $324,345 |
| 2007 | $76,003 | $250,560 | $0 | $326,563 | $326,563 |
Deed and Sales History
| 1 | 08/12/2020 | WD | Warranty Deed | BOSSE, JOHN A / DELORES E | BOSSE, MICHAEL W | | | $0.00 | 49783 | 4527671 |
| 2 | 08/09/2021 | WD | Warranty Deed | BOSSE, MICHAEL W | HENDERSON, DAVID | | | $403,333.00 | 49767 | 4527604 |
| 3 | 08/12/2020 | WD | Warranty Deed | BOSSE, JOHN A / DELORES E | BOSSE, MICHAEL W | | | $0.00 | 44318 | 4494297 |
| 4 | 08/01/1991 | QCD | Quit Claim Deed | BOSSE, JOHN A | BOSSE, JOHN A | | | $20,000.00 | 12878 | 91012280 |
| 5 | 12/01/1980 | OTHER | Other - Misc. Documents | BUCHANAN, C M | BOSSE, JOHN A | | | $42,679.00 | 0 | 0 |
| 6 | 11/01/1976 | EXECUTORD | Executor Deed | BENSON, BOYD H | BUCHANAN, C M | | | $0.00 | 64179 | 0 |
| 7 | 01/01/1900 | OTHER | Other - Misc. Documents | Unknown | BENSON, BOYD H | | | $0.00 | 0 | 0 |
Payout Agreement
| No payout information available.. |