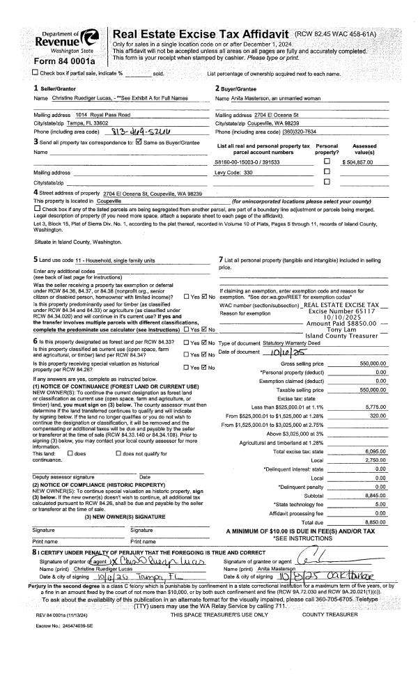
Property
Account |
| Property ID: | 58699 | Abbreviated Legal Description: | 8- IN GL1: BG 150'N OF SECR GL1 N50' W316.4' TO AVG HI WTR LN S2*W53.46' M/L TP W OF TPB E318.7' TPB EX E20' TGW & SUB EZ AF#85010400 |
| Geographic ID: | R22928-341-5050 | Agent Code: | |
| Type: | Real | | |
| Tax Area: | 710 - APPRAISER-S Whid Schl Dist, outside Langley, improved & 1 acre or less | Land Use Code | 12 |
| Open Space: | N | DFL | N |
| Historic Property: | N | Remodel Property: | N |
| Multi-Family Redevelopment: | N | | |
| Township: | 29 | Section: | 28 |
| Range: | R2 |
Location |
| Address: | 6546 EBB TIDE LN FREELAND, WA 98249 | Mapsco: | |
| Neighborhood: | Cycle 3 | Map ID: | 350 |
| Neighborhood CD: | 3 |
Owner |
| Name: | EBB TIDE PROPERTIES LLC | Owner ID: | 196271 |
| Mailing Address: | HARRIET Z CANER 6546 EBB TIDE LN FREELAND, WA 98249 | % Ownership: | 100.0000000000% |
| | | Exemptions: | |
Taxes and Assessment Details
Values
| (+) Improvement Homesite Value: | + | $0 | |
| (+) Improvement Non-Homesite Value: | + | $396,013 | |
| (+) Land Homesite Value: | + | $0 | |
| (+) Land Non-Homesite Value: | + | $500,000 | |
| (+) Curr Use (HS): | + | $0 | $0 |
| (+) Curr Use (NHS): | + | $0 | $0 |
| | | -------------------------- | |
| (=) Market Value: | = | $896,013 | |
| (–) Productivity Loss: | – | $0 | |
| | | -------------------------- | |
| (=) Subtotal: | = | $896,013 | |
| (+) Senior Appraised Value: | + | $0 | |
| (+) Non-Senior Appraised Value: | + | $896,013 | |
| | | -------------------------- | |
| (=) Total Appraised Value: | = | $896,013 | |
| (–) Senior Exemption Loss: | – | $0 | |
| (–) Exemption Loss: | – | $0 | |
| | | -------------------------- | |
| (=) Taxable Value: | = | $896,013 | |
Taxing Jurisdiction
| Owner: | EBB TIDE PROPERTIES LLC | | |
| % Ownership: | 100.0000000000% | | |
| Total Value: | $896,013 | | |
| Tax Area: | 710 - APPRAISER-S Whid Schl Dist, outside Langley, improved & 1 acre or less |
| CF | Conservation Futures | 0.0316035091 | $896,013 | $896,013 | $28.32 | | |
| FIRE3 | Fire & Rescue Dist #3 S Whidbey GEN | 1.2004855531 | $896,013 | $896,013 | $1,075.65 | | |
| HOBOND | Hospital BOND | 0.1910887512 | $896,013 | $896,013 | $171.22 | | |
| HOGEN | Hospital GEN | 0.3902502903 | $896,013 | $896,013 | $349.67 | | |
| CE | County Current Expense | 0.3708482477 | $896,013 | $896,013 | $332.28 | | |
| CR | County Roads | 0.4584763726 | $896,013 | $896,013 | $410.80 | | |
| ISLANDEMS | Hospital GEN (EMS) | 0.5000000000 | $896,013 | $896,013 | $448.01 | | |
| LIB | Library Sno-Isle GEN | 0.3153421757 | $896,013 | $896,013 | $282.55 | | |
| PORTWHID | Port of S Whidbey GEN | 0.1094540357 | $896,013 | $896,013 | $98.07 | | |
| SCH206BOND | School 206 BOND | 0.3161759235 | $896,013 | $896,013 | $283.30 | | |
| SCH206MO | School 206 Enrichment | 0.4547169547 | $896,013 | $896,013 | $407.43 | | |
| ST | State School | 1.3035497053 | $896,013 | $896,013 | $1,168.00 | | |
| ST2 | State School Part 2 | 0.8169543533 | $896,013 | $896,013 | $732.00 | | |
| SWHIDPRBD | P & R S Whidbey BOND | 0.0152817568 | $896,013 | $896,013 | $13.69 | | |
| SWHIDPRBD2 | P & R S Whidbey BOND2 | 0.0138911264 | $896,013 | $896,013 | $12.45 | | |
| SWHIDPRMT | P & R S Whidbey GEN | 0.2053334452 | $896,013 | $896,013 | $183.98 | | |
| | Total Tax Rate: | 6.6934522006 | | | | | |
| | | | | Taxes w/Current Exemptions: | $5,997.42 | | |
| | | | | Taxes w/o Exemptions: | $5,997.42 | | |
Improvement / Building
| Improvement #1: | RESIDENTIAL | State Code: | Y | 2734.3 sqft | Value: | $396,013 |
| Bathrooms: | 3 | Bedrooms: | 3 | | Ceiling: | DRYWALL PAINTED | Cooling: | HEAT PUMP/CONV/V | | Exterior Wall/Cover: | SHINGLE | Floor Covering: | CARPET/VINYL 80-20 | | Floor Structure: | WOOD W/SUBFLOOR | Foundation: | CONCRETE | | Interior Finish: | DRYWALL PAINT | Plumbing Fixture Cnt: | 12 | | Roof Slope: | 6" IN 12" | Roof Structure/Cover: | CJ ALUMINIUM HEAVY |
|
| | Type | Description | Class CD | Sub Class CD | Year Built | Area |
| | BAS | BASE/MAIN FLOOR | 3 | 0 | 1973 | 1294.3 |
| | ENP | ENCLOSED PORCH | 3 | 0 | 1973 | 102.7 |
| | DWN | DOWNSTAIRS LIVING AREA | 3 | 0 | 1973 | 1440.0 |
| | OWP | OPEN WOOD PORCH W/STEPS | 3 | 0 | 1973 | 385.7 |
Sketch
Property Image
Land
| 1 | HB | HIGH BLUFF | 0.3500 | 15246.00 | 50.00 | 0.00 | 1.00 | $500,000 | $0 |
Roll Value History
| 2026 | N/A | N/A | N/A | N/A | N/A |
| 2025 | $396,013 | $500,000 | $0 | $896,013 | $896,013 |
| 2024 | $165,543 | $500,000 | $0 | $665,543 | $665,543 |
| 2023 | $237,494 | $500,000 | $0 | $737,494 | $737,494 |
| 2022 | $218,251 | $500,000 | $0 | $718,251 | $718,251 |
| 2021 | $192,574 | $350,000 | $0 | $542,574 | $542,574 |
| 2020 | $187,586 | $300,000 | $0 | $487,586 | $487,586 |
| 2019 | $115,234 | $350,000 | $0 | $465,234 | $465,234 |
| 2018 | $115,698 | $300,910 | $0 | $416,608 | $416,608 |
| 2017 | $116,624 | $300,910 | $0 | $417,534 | $417,534 |
| 2016 | $118,475 | $300,910 | $0 | $419,385 | $419,385 |
| 2015 | $120,326 | $300,910 | $0 | $421,236 | $421,236 |
| 2014 | $122,178 | $300,910 | $0 | $423,088 | $423,088 |
| 2013 | $123,170 | $300,910 | $0 | $424,080 | $424,080 |
| 2012 | $125,038 | $300,910 | $0 | $425,948 | $425,948 |
| 2011 | $126,901 | $300,910 | $0 | $427,811 | $427,811 |
| 2010 | $137,339 | $300,910 | $0 | $438,249 | $438,249 |
| 2009 | $143,445 | $300,910 | $0 | $444,355 | $444,355 |
| 2008 | $145,360 | $300,910 | $0 | $446,270 | $446,270 |
| 2007 | $144,143 | $364,101 | $0 | $508,244 | $508,244 |
Deed and Sales History
| 1 | 12/07/2005 | 5 | DNU - Marriage License/Name Change | CANER, JOHN E | EBB TIDE PROPERTIES LLC, | | | $0.00 | 60446 | 4163107 |
| 2 | 09/01/1996 | QCD | Quit Claim Deed | PALLIS, CHRISTOPHER N | CANER, JOHN E | | | $0.00 | 70172 | 97000651 |
| 3 | 09/01/1993 | WD | Warranty Deed | SHAFFER, ROGER | PALLIS, CHRISTOPHER N | | | $210,000.00 | 33749 | 93019460 |
| 4 | 03/01/1986 | WD | Warranty Deed | MCREA, LYLE K | SHAFFER, ROGER | | | $124,430.00 | 60760 | 86003582 |
| 5 | 01/01/1900 | OTHER | Other - Misc. Documents | Unknown | MCREA, LYLE K | | | $0.00 | 0 | 0 |
Payout Agreement
| No payout information available.. |