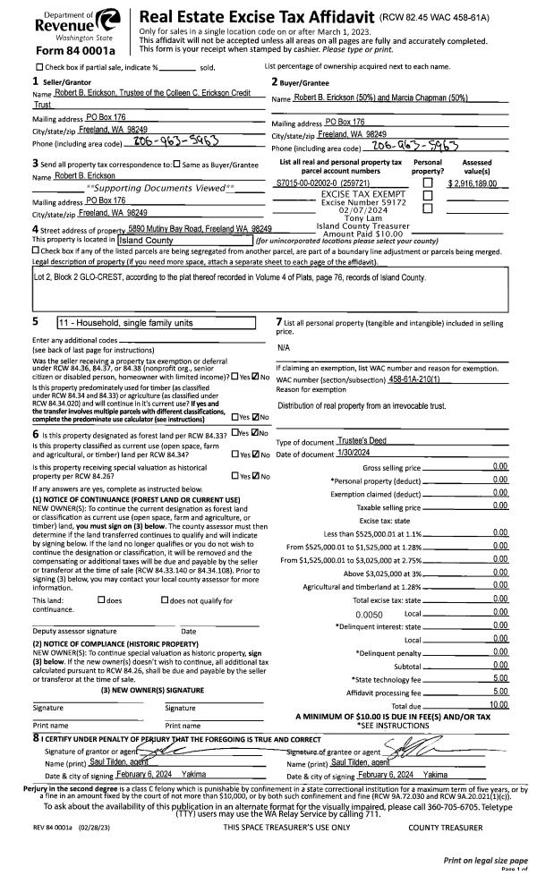
Property
Account |
| Property ID: | 587760 | Abbreviated Legal Description: | 1981 KOZY 14X66 TPO %08806 VIN# SE3722A FROM K-530973 |
| Geographic ID: | M911000000840 | Agent Code: | |
| Type: | Mobile Home | | |
| Tax Area: | 100 - APPRAISER-OH Schl Dist, in OH | Land Use Code | 11 |
| Open Space: | N | DFL | N |
| Historic Property: | N | Remodel Property: | N |
| Multi-Family Redevelopment: | N | | |
| Township: | | Section: | |
| Range: | |
Location |
| Address: | 700 NW CROSBY AVE # 84 OAK HARBOR, WA 98277 | Mapsco: | |
| Neighborhood: | Cycle 1 | Map ID: | |
| Neighborhood CD: | 1 |
Owner |
| Name: | ECIJAN, JUAN-ARCEUNA | Owner ID: | 275341 |
| Mailing Address: | 700 NW CROSBY AVE #84 OAK HARBOR, WA 98277 | % Ownership: | 100.0000000000% |
| | | Exemptions: | |
Taxes and Assessment Details
Values
| (+) Improvement Homesite Value: | + | $0 | |
| (+) Improvement Non-Homesite Value: | + | $14,181 | |
| (+) Land Homesite Value: | + | $0 | |
| (+) Land Non-Homesite Value: | + | $0 | |
| (+) Curr Use (HS): | + | $0 | $0 |
| (+) Curr Use (NHS): | + | $0 | $0 |
| | | -------------------------- | |
| (=) Market Value: | = | $14,181 | |
| (–) Productivity Loss: | – | $0 | |
| | | -------------------------- | |
| (=) Subtotal: | = | $14,181 | |
| (+) Senior Appraised Value: | + | $0 | |
| (+) Non-Senior Appraised Value: | + | $14,181 | |
| | | -------------------------- | |
| (=) Total Appraised Value: | = | $14,181 | |
| (–) Senior Exemption Loss: | – | $0 | |
| (–) Exemption Loss: | – | $0 | |
| | | -------------------------- | |
| (=) Taxable Value: | = | $14,181 | |
Taxing Jurisdiction
| Owner: | ECIJAN, JUAN-ARCEUNA | | |
| % Ownership: | 100.0000000000% | | |
| Total Value: | $14,181 | | |
| Tax Area: | 100 - APPRAISER-OH Schl Dist, in OH |
| CF | Conservation Futures | 0.0316035091 | $14,181 | $14,181 | $0.45 | | |
| CEM1 | Cemetery #1 | 0.0040320932 | $14,181 | $14,181 | $0.06 | | |
| COH | City of Oak Harbor | 2.3001546061 | $14,181 | $14,181 | $32.62 | | |
| OAKBOND | City of Oak Harbor BOND | 0.1926904192 | $14,181 | $14,181 | $2.73 | | |
| HOBOND | Hospital BOND | 0.1910887512 | $14,181 | $14,181 | $2.71 | | |
| HOGEN | Hospital GEN | 0.3902502903 | $14,181 | $14,181 | $5.53 | | |
| CE | County Current Expense | 0.3708482477 | $14,181 | $14,181 | $5.26 | | |
| ISLANDEMS | Hospital GEN (EMS) | 0.5000000000 | $14,181 | $14,181 | $7.09 | | |
| LIB | Library Sno-Isle GEN | 0.3153421757 | $14,181 | $14,181 | $4.47 | | |
| NWHIDPRMT | P & R N Whidbey GEN | 0.2004466701 | $14,181 | $14,181 | $2.84 | | |
| SCH201MO | School 201 Enrichment | 1.8559231640 | $14,181 | $14,181 | $26.32 | | |
| ST | State School | 1.3035497053 | $14,181 | $14,181 | $18.49 | | |
| ST2 | State School Part 2 | 0.8169543533 | $14,181 | $14,181 | $11.59 | | |
| | Total Tax Rate: | 8.4728839852 | | | | | |
| | | | | Taxes w/Current Exemptions: | $120.16 | | |
| | | | | Taxes w/o Exemptions: | $120.16 | | |
Improvement / Building
| Improvement #1: | MANUFACTURED HOME | State Code: | Y | 1052.0 sqft | Value: | $14,181 |
| Bathrooms: | 0 | Bedrooms: | 0 | | Ceiling: | PLASTER PAINTED | Cooling: | EVAP NO DUCT | | Exterior Wall/Cover: | VINYL | Floor Covering: | CARPET 100% | | Floor Structure: | SLAB ON GRADE | Foundation: | SLAB | | Heating: | FHA ELECTRIC | Interior Finish: | PLASTER | | Plumbing Fixture Cnt: | 1 | Roof Slope: | FLAT | | Roof Structure/Cover: | CJ ALUMINIUM HEAVY |   |   |
|
Sketch
Property Image
Land
No land segments exist for this property.
Roll Value History
| 2026 | N/A | N/A | N/A | N/A | N/A |
| 2025 | $14,181 | $0 | $0 | $14,181 | $14,181 |
| 2024 | $15,041 | $0 | $0 | $15,041 | $15,041 |
| 2023 | $11,883 | $0 | $0 | $11,883 | $11,883 |
| 2022 | $11,682 | $0 | $0 | $11,682 | $11,682 |
| 2021 | $10,695 | $0 | $0 | $10,695 | $10,695 |
| 2020 | $10,899 | $0 | $0 | $10,899 | $10,899 |
| 2019 | $8,994 | $0 | $0 | $8,994 | $8,994 |
| 2018 | $9,403 | $0 | $0 | $9,403 | $9,403 |
| 2017 | $3,040 | $0 | $0 | $3,040 | $3,040 |
| 2016 | $3,301 | $0 | $0 | $3,301 | $3,301 |
| 2015 | $1 | $0 | $0 | $1 | $0 |
| 2014 | $0 | $0 | $0 | $0 | $0 |
| 2013 | $7,644 | $0 | $0 | $7,644 | $7,644 |
| 2012 | $7,992 | $0 | $0 | $7,992 | $7,992 |
| 2011 | $10,229 | $0 | $0 | $10,229 | $10,229 |
| 2010 | $5,185 | $0 | $0 | $5,185 | $5,185 |
| 2009 | $6,897 | $0 | $0 | $6,897 | $6,897 |
| 2008 | $7,427 | $0 | $0 | $7,427 | $7,427 |
| 2007 | $7,787 | $0 | $0 | $7,787 | $7,787 |
Deed and Sales History
| 1 | 05/25/2016 | MANHOME | Manufactured Home | PARKWOOD MANOR | ECIJAN, JUAN-ARCEUNA | | | $0.00 | 24427 | |
| 2 | 05/25/2016 | MANHOME | Manufactured Home | RICCI, CAROLINA EULOGO | PARKWOOD MANOR | | | $0.00 | 24426 | |
| 3 | 01/23/2009 | OTHER | Other - Misc. Documents | FOWKES, JOHN | RICCI, CAROLINA EULOGO | | | $9,944.00 | 90160 | 0 |
| 4 | 02/21/2006 | OTHER | Other - Misc. Documents | RUTLEDGE, TOBY R | FOWKES, JOHN | | | $1,253.00 | 70289 | 0 |
| 5 | 04/01/1997 | OTHER | Other - Misc. Documents | SPRINGSTUN, CORWIN M | RUTLEDGE, TOBY R | | | $9,100.00 | 71178 | 0 |
| 6 | 02/01/1991 | OTHER | Other - Misc. Documents | PAULSON, MICHAEL D | SPRINGSTUN, CORWIN M | | | $0.00 | 10489 | 0 |
| 7 | 11/01/1988 | OTHER | Other - Misc. Documents | HOTZE, MICHAEL I | PAULSON, MICHAEL D | | | $0.00 | 83757 | 0 |
| 8 | 03/01/1985 | OTHER | Other - Misc. Documents | INTERWEST, SAVINGS B | HOTZE, MICHAEL I | | | $14,450.00 | 50440 | 0 |
| 9 | 10/01/1984 | OTHER | Other - Misc. Documents | DAUNT, STEPHEN R | INTERWEST, SAVINGS B | | | $0.00 | 43155000 | 0 |
| 10 | 05/01/1981 | OTHER | Other - Misc. Documents | Unknown | DAUNT, STEPHEN R | | | $15,727.00 | 0 | 0 |
Payout Agreement
| No payout information available.. |