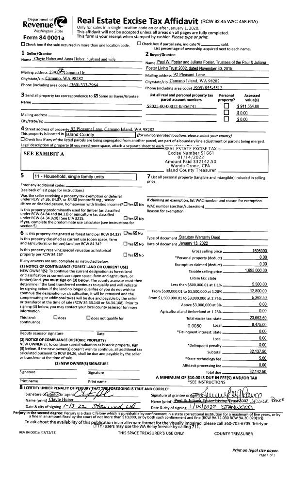
Property
Account |
| Property ID: | 58788 | Abbreviated Legal Description: | 1 - GL 1 INCL ADJ TIDELANDS |
| Geographic ID: | R23001-482-4180 | Agent Code: | |
| Type: | Real | | |
| Tax Area: | 542 - APPRAISER-Stan/Cam Schl Dist, Special Dist, improved, greater than 1 acre | Land Use Code | 76 |
| Open Space: | N | DFL | N |
| Historic Property: | N | Remodel Property: | N |
| Multi-Family Redevelopment: | N | | |
| Township: | 30 | Section: | 01 |
| Range: | R2 |
Location |
| Address: | 2269 LOWELL POINT RD CAMANO ISLAND, WA 98282 | Mapsco: | |
| Neighborhood: | 56cRR-wmt view rd | Map ID: | 351 |
| Neighborhood CD: | 56cRRwmtvw |
Owner |
| Name: | WASHINGTON STATE PARKS DEPT | Owner ID: | 120574 |
| Mailing Address: | PO BOX 42650 OLYMPIA, WA 98504-2650 | % Ownership: | 100.0000000000% |
| | | Exemptions: | EX |
Taxes and Assessment Details
Values
| (+) Improvement Homesite Value: | + | $0 | |
| (+) Improvement Non-Homesite Value: | + | $238,060 | |
| (+) Land Homesite Value: | + | $0 | |
| (+) Land Non-Homesite Value: | + | $14,640,000 | |
| (+) Curr Use (HS): | + | $0 | $0 |
| (+) Curr Use (NHS): | + | $0 | $0 |
| | | -------------------------- | |
| (=) Market Value: | = | $14,878,060 | |
| (–) Productivity Loss: | – | $0 | |
| | | -------------------------- | |
| (=) Subtotal: | = | $14,878,060 | |
| (+) Senior Appraised Value: | + | $0 | |
| (+) Non-Senior Appraised Value: | + | $14,878,060 | |
| | | -------------------------- | |
| (=) Total Appraised Value: | = | $14,878,060 | |
| (–) Senior Exemption Loss: | – | $0 | |
| (–) Exemption Loss: | – | $14,878,060 | |
| | | -------------------------- | |
| (=) Taxable Value: | = | $0 | |
Taxing Jurisdiction
| Owner: | WASHINGTON STATE PARKS DEPT | | |
| % Ownership: | 100.0000000000% | | |
| Total Value: | $14,878,060 | | |
| Tax Area: | 542 - APPRAISER-Stan/Cam Schl Dist, Special Dist, improved, greater than 1 acre |
| CF | Conservation Futures | 0.0316035091 | $14,878,060 | $0 | $0.00 | | |
| EMS1 | Fire & Rescue Dist #1 Camano GEN (EMS) | 0.3677864386 | $14,878,060 | $0 | $0.00 | | |
| FIRE1 | Fire & Rescue Dist #1 Camano GEN | 1.2502910536 | $14,878,060 | $0 | $0.00 | | |
| FIRE1BOND | Fire & Rescue Dist #1 Camano BOND | 0.1570001679 | $14,878,060 | $0 | $0.00 | | |
| CE | County Current Expense | 0.3708482477 | $14,878,060 | $0 | $0.00 | | |
| CR | County Roads | 0.4584763726 | $14,878,060 | $0 | $0.00 | | |
| LCIB | Library Sno-Isle BOND (Camano Island) | 0.0396325772 | $14,878,060 | $0 | $0.00 | | |
| LIB | Library Sno-Isle GEN | 0.3153421757 | $14,878,060 | $0 | $0.00 | | |
| SCH205_401 | School 205-401 Enrichment | 1.2698420524 | $14,878,060 | $0 | $0.00 | | |
| SCH205BOND | School 205-401 BOND | 0.9396497583 | $14,878,060 | $0 | $0.00 | | |
| ST | State School | 1.3035497053 | $14,878,060 | $0 | $0.00 | | |
| ST2 | State School Part 2 | 0.8169543533 | $14,878,060 | $0 | $0.00 | | |
| | Total Tax Rate: | 7.3209764117 | | | | | |
| | | | | Taxes w/Current Exemptions: | $0.00 | | |
| | | | | Taxes w/o Exemptions: | $108,921.95 | | |
Improvement / Building
| Improvement #1: | COMMERCIAL | State Code: | F1 | 0.0 sqft | Value: | $82,660 |
| | Type | Description | Class CD | Sub Class CD | Year Built | Area |
| | oCB2 | CABIN FIN | 3 | 0 | 1955 | 240.0 |
| | oCB2 | CABIN FIN | 3 | 0 | 1955 | 240.0 |
| | oCB2 | CABIN FIN | 3 | 0 | 1955 | 240.0 |
| | oCB2 | CABIN FIN | 3 | 0 | 1955 | 240.0 |
| | oCB2 | CABIN FIN | 3 | 0 | 1955 | 240.0 |
| | oOP4 | SLAB/RF/CL | 3 | 0 | 1955 | 84.0 |
| | oOP4 | SLAB/RF/CL | 3 | 0 | 1955 | 84.0 |
| | oOP4 | SLAB/RF/CL | 3 | 0 | 1955 | 84.0 |
| | oOP4 | SLAB/RF/CL | 3 | 0 | 1955 | 84.0 |
| | oOP4 | SLAB/RF/CL | 3 | 0 | 1955 | 84.0 |
| | oRST | RESTROOM | 3 | 0 | 1955 | 420.0 |
| Improvement #2: | COMMERCIAL | State Code: | F1 | 0.0 sqft | Value: | $155,400 |
| | Type | Description | Class CD | Sub Class CD | Year Built | Area |
| | oRST | RESTROOM | 3 | 0 | 1955 | 810.0 |
| | oRST | RESTROOM | 3 | 0 | 1955 | 810.0 |
| | oRST | RESTROOM | 3 | 0 | 1955 | 988.0 |
| | oCAB | CABANA | 3 | 0 | 1955 | 660.0 |
Sketch
Property Image
Land
| 1 | LB | LOW BANK | 13.5000 | 588060.00 | 1750.00 | 0.00 | 1.00 | $5,880,000 | $0 |
| 2 | HB | HIGH BLUFF | 18.5000 | 805860.00 | 3500.00 | 0.00 | 1.00 | $8,400,000 | $0 |
| 3 | 37 | AC (31.00-+) | 266.0000 | 11586960.00 | 0.00 | 0.00 | 1.00 | $360,000 | $0 |
Roll Value History
| 2026 | N/A | N/A | N/A | N/A | N/A |
| 2025 | $238,060 | $14,640,000 | $0 | $14,878,060 | $0 |
| 2024 | $238,060 | $14,640,000 | $0 | $14,878,060 | $0 |
| 2023 | $238,060 | $14,640,000 | $0 | $14,878,060 | $0 |
| 2022 | $238,060 | $14,640,000 | $0 | $14,878,060 | $0 |
| 2021 | $0 | $12,200,000 | $0 | $12,200,000 | $0 |
| 2020 | $0 | $12,200,000 | $0 | $12,200,000 | $0 |
| 2019 | $0 | $7,300,000 | $0 | $7,300,000 | $0 |
| 2018 | $0 | $7,300,000 | $0 | $7,300,000 | $0 |
| 2017 | $0 | $8,135,608 | $0 | $8,135,608 | $0 |
| 2016 | $0 | $8,135,608 | $0 | $8,135,608 | $0 |
| 2015 | $2,118 | $8,135,608 | $0 | $8,137,726 | $0 |
| 2014 | $2,118 | $8,135,608 | $0 | $8,137,726 | $0 |
| 2013 | $2,118 | $8,135,608 | $0 | $8,137,726 | $0 |
| 2012 | $2,118 | $8,135,608 | $0 | $8,137,726 | $0 |
| 2011 | $2,118 | $8,135,608 | $0 | $8,137,726 | $0 |
| 2010 | $2,118 | $8,135,608 | $0 | $8,137,726 | $0 |
| 2009 | $2,141 | $8,135,608 | $0 | $8,137,749 | $0 |
| 2008 | $2,163 | $8,145,428 | $0 | $8,147,591 | $0 |
| 2007 | $2,185 | $8,145,428 | $0 | $8,147,613 | $0 |
Deed and Sales History
Payout Agreement
| No payout information available.. |