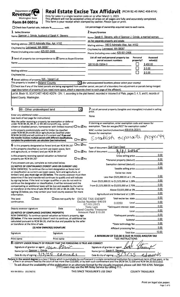
Property
Account |
| Property ID: | 588019 | Abbreviated Legal Description: | LOT B-1 SP 83-08.13236.254-3340 V1 SP P283 AF#84002313 |
| Geographic ID: | R13236-266-3310 | Agent Code: | |
| Type: | Real | | |
| Tax Area: | 312 - APPRAISER-Cpvl Schl Dist, outside Cpvl, improved, greater than 1 acre | Land Use Code | 11 |
| Open Space: | N | DFL | N |
| Historic Property: | N | Remodel Property: | N |
| Multi-Family Redevelopment: | N | | |
| Township: | 32 | Section: | 36 |
| Range: | R1 |
Location |
| Address: | 192 N PHEASANT RUN RD COUPEVILLE, WA 98239 | Mapsco: | |
| Neighborhood: | Area 2 Waterfront Eastside Res | Map ID: | 186 |
| Neighborhood CD: | 2WFTE01R |
Owner |
| Name: | BECK TTEE, MICHAEL O | Owner ID: | 286811 |
| Mailing Address: | 192 N PHEASANT RUN RD COUPEVILLE, WA 98239 | % Ownership: | 100.0000000000% |
| | | Exemptions: | |
Taxes and Assessment Details
Values
| (+) Improvement Homesite Value: | + | $0 | |
| (+) Improvement Non-Homesite Value: | + | $395,467 | |
| (+) Land Homesite Value: | + | $0 | |
| (+) Land Non-Homesite Value: | + | $511,100 | |
| (+) Curr Use (HS): | + | $0 | $0 |
| (+) Curr Use (NHS): | + | $0 | $0 |
| | | -------------------------- | |
| (=) Market Value: | = | $906,567 | |
| (–) Productivity Loss: | – | $0 | |
| | | -------------------------- | |
| (=) Subtotal: | = | $906,567 | |
| (+) Senior Appraised Value: | + | $0 | |
| (+) Non-Senior Appraised Value: | + | $906,567 | |
| | | -------------------------- | |
| (=) Total Appraised Value: | = | $906,567 | |
| (–) Senior Exemption Loss: | – | $0 | |
| (–) Exemption Loss: | – | $0 | |
| | | -------------------------- | |
| (=) Taxable Value: | = | $906,567 | |
Taxing Jurisdiction
| Owner: | BECK TTEE, MICHAEL O | | |
| % Ownership: | 100.0000000000% | | |
| Total Value: | $906,567 | | |
| Tax Area: | 312 - APPRAISER-Cpvl Schl Dist, outside Cpvl, improved, greater than 1 acre |
| CF | Conservation Futures | 0.0316035091 | $906,567 | $906,567 | $28.65 | | |
| CEM2 | Cemetery #2 | 0.0095056933 | $906,567 | $906,567 | $8.62 | | |
| FIRE5 | Fire & Rescue Dist #5 C Whidbey GEN | 1.2008080668 | $906,567 | $906,567 | $1,088.61 | | |
| FIRE5BOND | Fire & Rescue Dist #5 C Whidbey BOND | 0.1400090713 | $906,567 | $906,567 | $126.93 | | |
| HOBOND | Hospital BOND | 0.1910887512 | $906,567 | $906,567 | $173.23 | | |
| HOGEN | Hospital GEN | 0.3902502903 | $906,567 | $906,567 | $353.79 | | |
| CE | County Current Expense | 0.3708482477 | $906,567 | $906,567 | $336.20 | | |
| CR | County Roads | 0.4584763726 | $906,567 | $906,567 | $415.64 | | |
| ISLANDEMS | Hospital GEN (EMS) | 0.5000000000 | $906,567 | $906,567 | $453.28 | | |
| LIB | Library Sno-Isle GEN | 0.3153421757 | $906,567 | $906,567 | $285.88 | | |
| LIBCAP | Library Sno-Isle BOND (Cap Fac Imp Area) | 0.0543427938 | $906,567 | $906,567 | $49.27 | | |
| POCOUP | Port of Coupeville GEN | 0.1093371703 | $906,567 | $906,567 | $99.12 | | |
| POCOUPIDD | Port of Coupeville IDD | 0.3409740022 | $906,567 | $906,567 | $309.12 | | |
| COUPSDTECH | School 204 CP (TECH) | 0.7545480007 | $906,567 | $906,567 | $684.05 | | |
| SCH204MO | School 204 Enrichment | 0.6716186034 | $906,567 | $906,567 | $608.87 | | |
| ST | State School | 1.3035497053 | $906,567 | $906,567 | $1,181.76 | | |
| ST2 | State School Part 2 | 0.8169543533 | $906,567 | $906,567 | $740.62 | | |
| | Total Tax Rate: | 7.6592568070 | | | | | |
| | | | | Taxes w/Current Exemptions: | $6,943.64 | | |
| | | | | Taxes w/o Exemptions: | $6,943.64 | | |
Improvement / Building
| Improvement #1: | RESIDENTIAL | State Code: | Y | 1311.3 sqft | Value: | $395,467 |
| Bathrooms: | 2 | Bedrooms: | 2 | | Ceiling: | DRYWALL PAINTED | Cooling: | HEAT PUMP/CONV/V | | Exterior Wall/Cover: | WOOD SIDING | Floor Covering: | VINYL 100% | | Floor Structure: | WOOD W/SUBFLOOR | Foundation: | CONCRETE | | Interior Finish: | DRYWALL PAINT | Plumbing Fixture Cnt: | 10 | | Roof Slope: | 3" IN 12" | Roof Structure/Cover: | CJ ASPHALT |
|
| | Type | Description | Class CD | Sub Class CD | Year Built | Area |
| | BAS | BASE/MAIN FLOOR | 4 | 0 | 2021 | 1311.3 |
| | OCP | OPEN CARPORT | 4 | 0 | 2021 | 178.3 |
| | OWC | OPEN WOOD PORCH W/STEPS/ROOF/C | 4 | 0 | 2021 | 88.0 |
Sketch
Property Image
Land
| 1 | HB | HIGH BLUFF | 1.0000 | 43560.00 | 110.00 | 0.00 | 1.00 | $510,000 | $0 |
| 2 | 55 | TIDES | 0.0000 | 0.00 | 110.00 | 0.00 | 1.00 | $1,100 | $0 |
Roll Value History
| 2026 | N/A | N/A | N/A | N/A | N/A |
| 2025 | $395,467 | $511,100 | $0 | $906,567 | $906,567 |
| 2024 | $399,619 | $251,100 | $0 | $650,719 | $650,719 |
| 2023 | $406,884 | $251,100 | $0 | $657,984 | $657,984 |
| 2022 | $375,962 | $241,100 | $0 | $617,062 | $617,062 |
| 2021 | $200,522 | $201,100 | $0 | $401,622 | $401,622 |
| 2020 | $0 | $201,100 | $0 | $201,100 | $201,100 |
| 2019 | $0 | $201,100 | $0 | $201,100 | $201,100 |
| 2018 | $0 | $151,100 | $0 | $151,100 | $151,100 |
| 2017 | $0 | $151,100 | $0 | $151,100 | $151,100 |
| 2016 | $0 | $151,100 | $0 | $151,100 | $151,100 |
| 2015 | $0 | $151,100 | $0 | $151,100 | $151,100 |
| 2014 | $0 | $151,100 | $0 | $151,100 | $151,100 |
| 2013 | $0 | $155,832 | $0 | $155,832 | $155,832 |
| 2012 | $0 | $155,832 | $0 | $155,832 | $155,832 |
| 2011 | $0 | $155,832 | $0 | $155,832 | $155,832 |
| 2010 | $0 | $155,832 | $0 | $155,832 | $155,832 |
| 2009 | $0 | $161,348 | $0 | $161,348 | $161,348 |
| 2008 | $0 | $161,348 | $0 | $161,348 | $161,348 |
| 2007 | $0 | $160,578 | $0 | $160,578 | $160,578 |
Deed and Sales History
| 1 | 09/05/2018 | WD | Warranty Deed | ZIEMBA, WILLIAM | BECK TTEE, MICHAEL O | | | $182,000.00 | 35811 | 4451342 |
| 2 | 01/01/1900 | OTHER | Other - Misc. Documents | Unknown | ZIEMBA, WILLIAM | | | $0.00 | 0 | 0 |
Payout Agreement
| No payout information available.. |