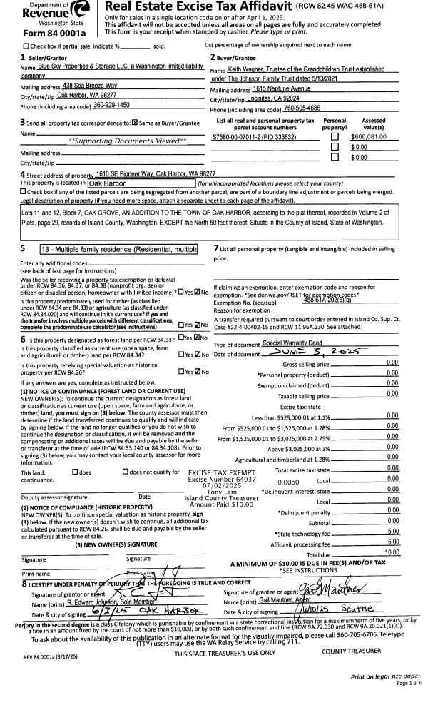
Property
Account |
| Property ID: | 588028 | Abbreviated Legal Description: | LOT B-2 SP 83-08.13236.254-3340 V1 SP P283 AF#84002313 |
| Geographic ID: | R13236-254-3360 | Agent Code: | |
| Type: | Real | | |
| Tax Area: | 312 - APPRAISER-Cpvl Schl Dist, outside Cpvl, improved, greater than 1 acre | Land Use Code | 11 |
| Open Space: | N | DFL | N |
| Historic Property: | N | Remodel Property: | N |
| Multi-Family Redevelopment: | N | | |
| Township: | 32 | Section: | 36 |
| Range: | R1 |
Location |
| Address: | 188 N PHEASANT RUN RD COUPEVILLE, WA 98239 | Mapsco: | |
| Neighborhood: | Area 2 Waterfront Eastside Res | Map ID: | 186 |
| Neighborhood CD: | 2WFTE01R |
Owner |
| Name: | BLANCHETTE, JOSEPH K | Owner ID: | 52266 |
| Mailing Address: | 188 N PHEASANT RUN RD COUPEVILLE, WA 98239-4511 | % Ownership: | 100.0000000000% |
| | | Exemptions: | |
Taxes and Assessment Details
Values
| (+) Improvement Homesite Value: | + | $0 | |
| (+) Improvement Non-Homesite Value: | + | $411,916 | |
| (+) Land Homesite Value: | + | $0 | |
| (+) Land Non-Homesite Value: | + | $511,100 | |
| (+) Curr Use (HS): | + | $0 | $0 |
| (+) Curr Use (NHS): | + | $0 | $0 |
| | | -------------------------- | |
| (=) Market Value: | = | $923,016 | |
| (–) Productivity Loss: | – | $0 | |
| | | -------------------------- | |
| (=) Subtotal: | = | $923,016 | |
| (+) Senior Appraised Value: | + | $0 | |
| (+) Non-Senior Appraised Value: | + | $923,016 | |
| | | -------------------------- | |
| (=) Total Appraised Value: | = | $923,016 | |
| (–) Senior Exemption Loss: | – | $0 | |
| (–) Exemption Loss: | – | $0 | |
| | | -------------------------- | |
| (=) Taxable Value: | = | $923,016 | |
Taxing Jurisdiction
| Owner: | BLANCHETTE, JOSEPH K | | |
| % Ownership: | 100.0000000000% | | |
| Total Value: | $923,016 | | |
| Tax Area: | 312 - APPRAISER-Cpvl Schl Dist, outside Cpvl, improved, greater than 1 acre |
| CF | Conservation Futures | 0.0316035091 | $923,016 | $923,016 | $29.17 | | |
| CEM2 | Cemetery #2 | 0.0095056933 | $923,016 | $923,016 | $8.77 | | |
| FIRE5 | Fire & Rescue Dist #5 C Whidbey GEN | 1.2008080668 | $923,016 | $923,016 | $1,108.37 | | |
| FIRE5BOND | Fire & Rescue Dist #5 C Whidbey BOND | 0.1400090713 | $923,016 | $923,016 | $129.23 | | |
| HOBOND | Hospital BOND | 0.1910887512 | $923,016 | $923,016 | $176.38 | | |
| HOGEN | Hospital GEN | 0.3902502903 | $923,016 | $923,016 | $360.21 | | |
| CE | County Current Expense | 0.3708482477 | $923,016 | $923,016 | $342.30 | | |
| CR | County Roads | 0.4584763726 | $923,016 | $923,016 | $423.18 | | |
| ISLANDEMS | Hospital GEN (EMS) | 0.5000000000 | $923,016 | $923,016 | $461.51 | | |
| LIB | Library Sno-Isle GEN | 0.3153421757 | $923,016 | $923,016 | $291.07 | | |
| LIBCAP | Library Sno-Isle BOND (Cap Fac Imp Area) | 0.0543427938 | $923,016 | $923,016 | $50.16 | | |
| POCOUP | Port of Coupeville GEN | 0.1093371703 | $923,016 | $923,016 | $100.92 | | |
| POCOUPIDD | Port of Coupeville IDD | 0.3409740022 | $923,016 | $923,016 | $314.72 | | |
| COUPSDTECH | School 204 CP (TECH) | 0.7545480007 | $923,016 | $923,016 | $696.46 | | |
| SCH204MO | School 204 Enrichment | 0.6716186034 | $923,016 | $923,016 | $619.91 | | |
| ST | State School | 1.3035497053 | $923,016 | $923,016 | $1,203.20 | | |
| ST2 | State School Part 2 | 0.8169543533 | $923,016 | $923,016 | $754.06 | | |
| | Total Tax Rate: | 7.6592568070 | | | | | |
| | | | | Taxes w/Current Exemptions: | $7,069.62 | | |
| | | | | Taxes w/o Exemptions: | $7,069.62 | | |
Improvement / Building
| Improvement #1: | RESIDENTIAL | State Code: | Y | 3010.6 sqft | Value: | $411,916 |
| Bathrooms: | 3 | Bedrooms: | 3 | | Ceiling: | DRYWALL PAINTED | Exterior Wall/Cover: | PLY/HARDBOARD T-111 | | Floor Covering: | HARDWOOD/CARP 80-20 | Floor Structure: | WOOD W/SUBFLOOR | | Foundation: | CONCRETE | Heating: | FHA GAS | | Interior Finish: | DRYWALL PAINT | Plumbing Fixture Cnt: | 13 | | Roof Slope: | 6" IN 12" | Roof Structure/Cover: | CJ ASPHALT |
|
| | Type | Description | Class CD | Sub Class CD | Year Built | Area |
| | BAS | BASE/MAIN FLOOR | 3 | 0 | 1994 | 1785.0 |
| | ATF | ATTIC FINISHED | 3 | 0 | 1994 | 468.0 |
| | AGR | ATTACHED GARAGE | 3 | 0 | 1994 | 1038.9 |
| | UPS | UPPER STORY | 3 | 0 | 1994 | 1225.6 |
| | OWP | OPEN WOOD PORCH W/STEPS | 3 | 0 | 1994 | 163.6 |
| | OWP | OPEN WOOD PORCH W/STEPS | 3 | 0 | 1994 | 279.3 |
| | OWC | OPEN WOOD PORCH W/STEPS/ROOF/C | 3 | 0 | 1994 | 177.6 |
Sketch
Property Image
Land
| 1 | HB | HIGH BLUFF | 1.0000 | 43560.00 | 110.00 | 0.00 | 1.00 | $510,000 | $0 |
| 2 | 55 | TIDES | 0.0000 | 0.00 | 110.00 | 0.00 | 1.00 | $1,100 | $0 |
Roll Value History
| 2026 | N/A | N/A | N/A | N/A | N/A |
| 2025 | $411,916 | $511,100 | $0 | $923,016 | $923,016 |
| 2024 | $417,538 | $461,100 | $0 | $878,638 | $878,638 |
| 2023 | $423,162 | $461,100 | $0 | $884,262 | $884,262 |
| 2022 | $388,272 | $421,100 | $0 | $809,372 | $809,372 |
| 2021 | $342,043 | $351,100 | $0 | $693,143 | $693,143 |
| 2020 | $334,393 | $326,100 | $0 | $660,493 | $660,493 |
| 2019 | $268,633 | $351,100 | $0 | $619,733 | $619,733 |
| 2018 | $263,229 | $276,100 | $0 | $539,329 | $539,329 |
| 2017 | $264,940 | $251,100 | $0 | $516,040 | $516,040 |
| 2016 | $268,426 | $251,100 | $0 | $519,526 | $519,526 |
| 2015 | $271,912 | $251,100 | $0 | $523,012 | $523,012 |
| 2014 | $275,397 | $251,100 | $0 | $526,497 | $526,497 |
| 2013 | $278,885 | $233,601 | $0 | $512,486 | $512,486 |
| 2012 | $282,994 | $233,601 | $0 | $516,595 | $516,595 |
| 2011 | $286,480 | $233,601 | $0 | $520,081 | $520,081 |
| 2010 | $292,794 | $233,601 | $0 | $526,395 | $526,395 |
| 2009 | $305,428 | $271,544 | $0 | $576,972 | $576,972 |
| 2008 | $309,081 | $271,544 | $0 | $580,625 | $580,625 |
| 2007 | $312,761 | $270,774 | $0 | $583,535 | $583,535 |
Deed and Sales History
| 1 | 03/16/2007 | ESTSEPPROP | Establish Separate Property | BLANCHETTE, JOSEPH K | BLANCHETTE, JOSEPH K | | | $0.00 | 70936 | 4197202 |
| 2 | 03/01/1994 | WD | Warranty Deed | MCGILLIVRAY, MICHAEL A | BLANCHETTE, JOSEPH K | | | $76,500.00 | 40999 | 94006544 |
| 3 | 09/01/1989 | WD | Warranty Deed | ZIEMBA, WILLIAM | MCGILLIVRAY, MICHAEL A | | | $32,000.00 | 93966 | 89013165 |
| 4 | 01/01/1900 | OTHER | Other - Misc. Documents | Unknown | ZIEMBA, WILLIAM | | | $0.00 | 0 | 0 |
Payout Agreement
| No payout information available.. |