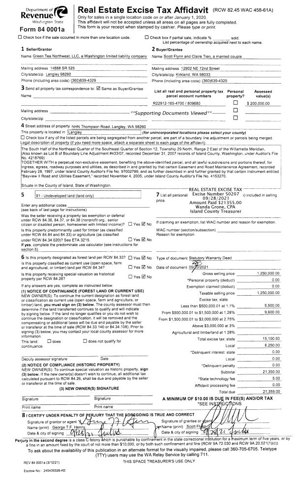
Property
Account |
| Property ID: | 588849 | Abbreviated Legal Description: | 1979 PEERLESS 14X66 S# 09L14695 TPO $85719 FR K-513457 |
| Geographic ID: | M901500000460 | Agent Code: | |
| Type: | Mobile Home | | |
| Tax Area: | 110 - APPRAISER-OH Schl Dist, outside OH, improved & 1 acre or less | Land Use Code | 11 |
| Open Space: | N | DFL | N |
| Historic Property: | N | Remodel Property: | N |
| Multi-Family Redevelopment: | N | | |
| Township: | | Section: | |
| Range: | |
Location |
| Address: | 367 BOE RD OAK HARBOR, WA 98277 | Mapsco: | |
| Neighborhood: | Cycle 6 | Map ID: | |
| Neighborhood CD: | 6 |
Owner |
| Name: | LEE, MARIE | Owner ID: | 298832 |
| Mailing Address: | 367 BOE RD OAK HARBOR, WA 98277 | % Ownership: | 100.0000000000% |
| | | Exemptions: | |
Taxes and Assessment Details
Values
| (+) Improvement Homesite Value: | + | $0 | |
| (+) Improvement Non-Homesite Value: | + | $13,215 | |
| (+) Land Homesite Value: | + | $0 | |
| (+) Land Non-Homesite Value: | + | $0 | |
| (+) Curr Use (HS): | + | $0 | $0 |
| (+) Curr Use (NHS): | + | $0 | $0 |
| | | -------------------------- | |
| (=) Market Value: | = | $13,215 | |
| (–) Productivity Loss: | – | $0 | |
| | | -------------------------- | |
| (=) Subtotal: | = | $13,215 | |
| (+) Senior Appraised Value: | + | $0 | |
| (+) Non-Senior Appraised Value: | + | $13,215 | |
| | | -------------------------- | |
| (=) Total Appraised Value: | = | $13,215 | |
| (–) Senior Exemption Loss: | – | $0 | |
| (–) Exemption Loss: | – | $0 | |
| | | -------------------------- | |
| (=) Taxable Value: | = | $13,215 | |
Taxing Jurisdiction
| Owner: | LEE, MARIE | | |
| % Ownership: | 100.0000000000% | | |
| Total Value: | $13,215 | | |
| Tax Area: | 110 - APPRAISER-OH Schl Dist, outside OH, improved & 1 acre or less |
| CF | Conservation Futures | 0.0316035091 | $13,215 | $13,215 | $0.42 | | |
| CEM1 | Cemetery #1 | 0.0040320932 | $13,215 | $13,215 | $0.05 | | |
| FIRE2 | Fire & Rescue Dist #2 N Whidbey GEN | 0.5475949600 | $13,215 | $13,215 | $7.24 | | |
| HOBOND | Hospital BOND | 0.1910887512 | $13,215 | $13,215 | $2.53 | | |
| HOGEN | Hospital GEN | 0.3902502903 | $13,215 | $13,215 | $5.16 | | |
| CE | County Current Expense | 0.3708482477 | $13,215 | $13,215 | $4.90 | | |
| CR | County Roads | 0.4584763726 | $13,215 | $13,215 | $6.06 | | |
| ISLANDEMS | Hospital GEN (EMS) | 0.5000000000 | $13,215 | $13,215 | $6.61 | | |
| LIB | Library Sno-Isle GEN | 0.3153421757 | $13,215 | $13,215 | $4.17 | | |
| NWHIDPRMT | P & R N Whidbey GEN | 0.2004466701 | $13,215 | $13,215 | $2.65 | | |
| SCH201MO | School 201 Enrichment | 1.8559231640 | $13,215 | $13,215 | $24.53 | | |
| ST | State School | 1.3035497053 | $13,215 | $13,215 | $17.23 | | |
| ST2 | State School Part 2 | 0.8169543533 | $13,215 | $13,215 | $10.80 | | |
| | Total Tax Rate: | 6.9861102925 | | | | | |
| | | | | Taxes w/Current Exemptions: | $92.35 | | |
| | | | | Taxes w/o Exemptions: | $92.35 | | |
Improvement / Building
| Improvement #1: | MANUFACTURED HOME | State Code: | Y | 924.0 sqft | Value: | $13,215 |
| Bathrooms: | 0 | Bedrooms: | 0 | | Ceiling: | PLASTER PAINTED | Cooling: | EVAP NO DUCT | | Exterior Wall/Cover: | VINYL | Floor Covering: | CARPET 100% | | Floor Structure: | SLAB ON GRADE | Foundation: | SLAB | | Heating: | FHA ELECTRIC | Interior Finish: | PLASTER | | Plumbing Fixture Cnt: | 1 | Roof Slope: | FLAT | | Roof Structure/Cover: | CJ ALUMINIUM HEAVY |   |   |
|
| | Type | Description | Class CD | Sub Class CD | Year Built | Area |
| | BAS | BASE/MAIN FLOOR | 3 | 0 | 1979 | 924.0 |
| | OWR | OPEN WOOD PORCH W/STEPS/ROOF | 3 | 0 | 1979 | 140.0 |
Sketch
Property Image
Land
No land segments exist for this property.
Roll Value History
| 2026 | N/A | N/A | N/A | N/A | N/A |
| 2025 | $13,215 | $0 | $0 | $13,215 | $13,215 |
| 2024 | $13,656 | $0 | $0 | $13,656 | $13,656 |
| 2023 | $13,215 | $0 | $0 | $13,215 | $13,215 |
| 2022 | $4,164 | $0 | $0 | $4,164 | $4,164 |
| 2021 | $3,840 | $0 | $0 | $3,840 | $3,840 |
| 2020 | $4,047 | $0 | $0 | $4,047 | $4,047 |
| 2019 | $3,356 | $0 | $0 | $3,356 | $3,356 |
| 2018 | $3,523 | $0 | $0 | $3,523 | $3,523 |
| 2017 | $3,691 | $0 | $0 | $3,691 | $3,691 |
| 2016 | $3,460 | $0 | $0 | $3,460 | $3,460 |
| 2015 | $3,670 | $0 | $0 | $3,670 | $3,670 |
| 2014 | $3,985 | $0 | $0 | $3,985 | $3,985 |
| 2013 | $4,195 | $0 | $0 | $4,195 | $4,195 |
| 2012 | $4,404 | $0 | $0 | $4,404 | $4,404 |
| 2011 | $4,614 | $0 | $0 | $4,614 | $4,614 |
| 2010 | $4,877 | $0 | $0 | $4,877 | $4,877 |
| 2009 | $5,272 | $0 | $0 | $5,272 | $5,272 |
| 2008 | $5,516 | $0 | $0 | $5,516 | $5,516 |
| 2007 | $5,732 | $0 | $0 | $5,732 | $5,732 |
Deed and Sales History
| 1 | 04/09/2021 | MANHOME | Manufactured Home | MOHLSICK, TOMMY | LEE, MARIE | | | $15,000.00 | 47711 | |
| 2 | 06/29/2016 | MANHOME | Manufactured Home | LASKO, MICHAEL SHAUN | MOHLSICK, TOMMY | | | $4,000.00 | 24999 | |
| 3 | 06/21/2006 | OTHER | Other - Misc. Documents | CEDERGREEN, SCOTT R | LASKO, MICHAEL SHAWN | | | $6,000.00 | 62720 | 0 |
| 4 | 10/01/1981 | OTHER | Other - Misc. Documents | Unknown | CEDERGREEN, SCOTT R | | | $13,040.00 | 13214 | 0 |
Payout Agreement
| No payout information available.. |