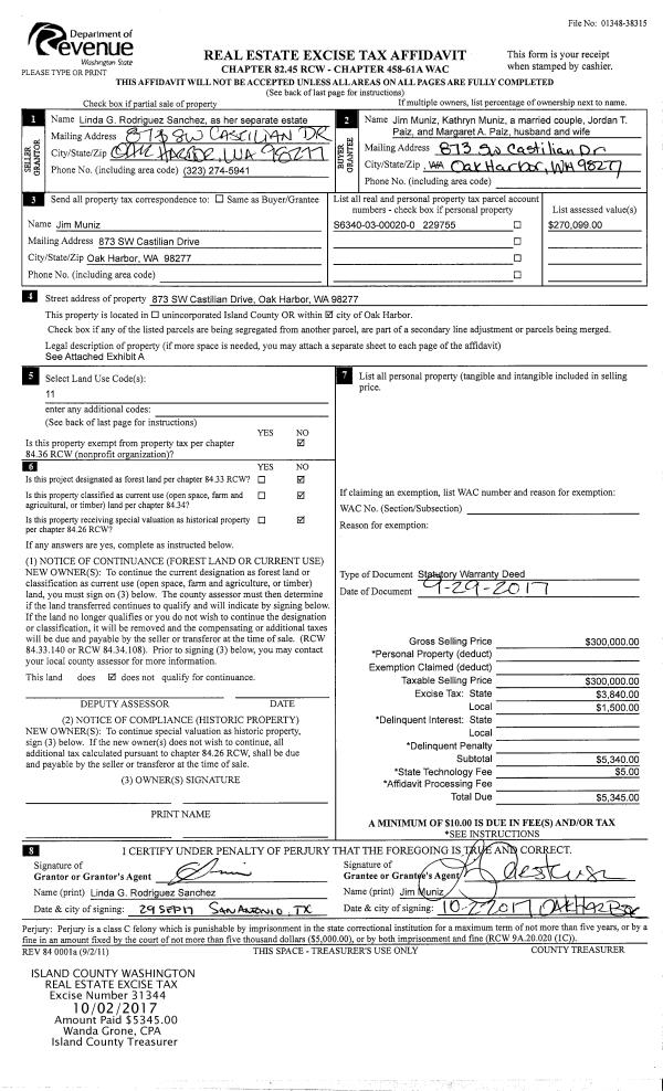
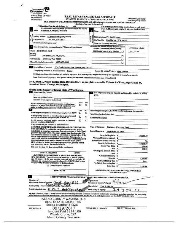
Property
Account |
| Property ID: | 58895 | Abbreviated Legal Description: | 22 - IN N/2 GL 2 |
| Geographic ID: | R23004-226-2300 | Agent Code: | |
| Type: | Real | | |
| Tax Area: | 312 - APPRAISER-Cpvl Schl Dist, outside Cpvl, improved, greater than 1 acre | Land Use Code | 11 |
| Open Space: | N | DFL | N |
| Historic Property: | N | Remodel Property: | N |
| Multi-Family Redevelopment: | N | | |
| Township: | 30 | Section: | 04 |
| Range: | R2 |
Location |
| Address: | 2606 NORTHBLUFF RD GREENBANK, WA 98253 | Mapsco: | |
| Neighborhood: | Cycle 3 | Map ID: | 352 |
| Neighborhood CD: | 3 |
Owner |
| Name: | LAFLEUR, ALAN | Owner ID: | 282857 |
| Mailing Address: | MORGAN LAFLEUR 2606 NORTH BLUFF RD GREENBANK, WA 98253 | % Ownership: | 100.0000000000% |
| | | Exemptions: | |
Taxes and Assessment Details
Values
| (+) Improvement Homesite Value: | + | $0 | |
| (+) Improvement Non-Homesite Value: | + | $429,142 | |
| (+) Land Homesite Value: | + | $0 | |
| (+) Land Non-Homesite Value: | + | $460,000 | |
| (+) Curr Use (HS): | + | $0 | $0 |
| (+) Curr Use (NHS): | + | $0 | $0 |
| | | -------------------------- | |
| (=) Market Value: | = | $889,142 | |
| (–) Productivity Loss: | – | $0 | |
| | | -------------------------- | |
| (=) Subtotal: | = | $889,142 | |
| (+) Senior Appraised Value: | + | $0 | |
| (+) Non-Senior Appraised Value: | + | $889,142 | |
| | | -------------------------- | |
| (=) Total Appraised Value: | = | $889,142 | |
| (–) Senior Exemption Loss: | – | $0 | |
| (–) Exemption Loss: | – | $0 | |
| | | -------------------------- | |
| (=) Taxable Value: | = | $889,142 | |
Taxing Jurisdiction
| Owner: | LAFLEUR, ALAN | | |
| % Ownership: | 100.0000000000% | | |
| Total Value: | $889,142 | | |
| Tax Area: | 312 - APPRAISER-Cpvl Schl Dist, outside Cpvl, improved, greater than 1 acre |
| CF | Conservation Futures | 0.0316035091 | $889,142 | $889,142 | $28.10 | | |
| CEM2 | Cemetery #2 | 0.0095056933 | $889,142 | $889,142 | $8.45 | | |
| FIRE5 | Fire & Rescue Dist #5 C Whidbey GEN | 1.2008080668 | $889,142 | $889,142 | $1,067.69 | | |
| FIRE5BOND | Fire & Rescue Dist #5 C Whidbey BOND | 0.1400090713 | $889,142 | $889,142 | $124.49 | | |
| HOBOND | Hospital BOND | 0.1910887512 | $889,142 | $889,142 | $169.91 | | |
| HOGEN | Hospital GEN | 0.3902502903 | $889,142 | $889,142 | $346.99 | | |
| CE | County Current Expense | 0.3708482477 | $889,142 | $889,142 | $329.74 | | |
| CR | County Roads | 0.4584763726 | $889,142 | $889,142 | $407.65 | | |
| ISLANDEMS | Hospital GEN (EMS) | 0.5000000000 | $889,142 | $889,142 | $444.57 | | |
| LIB | Library Sno-Isle GEN | 0.3153421757 | $889,142 | $889,142 | $280.38 | | |
| LIBCAP | Library Sno-Isle BOND (Cap Fac Imp Area) | 0.0543427938 | $889,142 | $889,142 | $48.32 | | |
| POCOUP | Port of Coupeville GEN | 0.1093371703 | $889,142 | $889,142 | $97.22 | | |
| POCOUPIDD | Port of Coupeville IDD | 0.3409740022 | $889,142 | $889,142 | $303.17 | | |
| COUPSDTECH | School 204 CP (TECH) | 0.7545480007 | $889,142 | $889,142 | $670.90 | | |
| SCH204MO | School 204 Enrichment | 0.6716186034 | $889,142 | $889,142 | $597.16 | | |
| ST | State School | 1.3035497053 | $889,142 | $889,142 | $1,159.04 | | |
| ST2 | State School Part 2 | 0.8169543533 | $889,142 | $889,142 | $726.39 | | |
| | Total Tax Rate: | 7.6592568070 | | | | | |
| | | | | Taxes w/Current Exemptions: | $6,810.17 | | |
| | | | | Taxes w/o Exemptions: | $6,810.17 | | |
Improvement / Building
| Improvement #1: | RESIDENTIAL | State Code: | Y | 1452.2 sqft | Value: | $381,652 |
| Bathrooms: | 1.5 | Bedrooms: | 1 | | Ceiling: | TONGUE & GROOVE | Cooling: | HEAT PUMP/CONV/V | | Exterior Wall/Cover: | CEMENT FIBER | Floor Covering: | CONCRETE SEALER | | Floor Structure: | SLAB ON GRADE | Foundation: | SLAB | | Interior Finish: | DRYWALL PAINT | Plumbing Fixture Cnt: | 11 | | Roof Slope: | 3" IN 12" | Roof Structure/Cover: | BEAM ALUMINUM HEAVY |
|
| | Type | Description | Class CD | Sub Class CD | Year Built | Area |
| | BAS | BASE/MAIN FLOOR | 4 | 0 | 2020 | 636.2 |
| | UPS | UPPER STORY | 4 | 0 | 2020 | 384.0 |
| | OP4 | OPEN PORCH W/CEILING-ROOF | 4 | 0 | 2020 | 64.0 |
| | OP4 | OPEN PORCH W/CEILING-ROOF | 4 | 0 | 2020 | 184.0 |
| | BIG | BUILT IN GARAGE | 4 | 0 | 2020 | 672.0 |
| | UPS | UPPER STORY | 4 | 0 | 2020 | 432.0 |
| | OWP | OPEN WOOD PORCH W/STEPS | 4 | 0 | 2020 | 158.0 |
| | OWP | OPEN WOOD PORCH W/STEPS | 4 | 0 | 2020 | 180.0 |
| Improvement #2: | RESIDENTIAL | State Code: | Y | 0.0 sqft | Value: | $47,490 |
| | Type | Description | Class CD | Sub Class CD | Year Built | Area |
| | oGAR | GARAGE | 4 | 0 | 2025 | 390.0 |
| | oUTI | UTILITY | 4 | 0 | 2025 | 390.0 |
| | oCAR | CARPORT | 3 | 0 | 2025 | 420.0 |
Sketch
Property Image
Land
| 1 | 35 | AC (10.00-30.99) | 10.5000 | 457380.00 | 0.00 | 0.00 | 1.00 | $460,000 | $0 |
Roll Value History
| 2026 | N/A | N/A | N/A | N/A | N/A |
| 2025 | $429,142 | $460,000 | $0 | $889,142 | $889,142 |
| 2024 | $384,680 | $430,000 | $0 | $814,680 | $814,680 |
| 2023 | $388,718 | $390,000 | $0 | $778,718 | $778,718 |
| 2022 | $358,401 | $320,000 | $0 | $678,401 | $678,401 |
| 2021 | $318,006 | $320,000 | $0 | $638,006 | $638,006 |
| 2020 | $69,135 | $220,000 | $0 | $289,135 | $289,135 |
| 2019 | $0 | $160,000 | $0 | $160,000 | $160,000 |
| 2018 | $0 | $130,000 | $0 | $130,000 | $130,000 |
| 2017 | $0 | $100,000 | $0 | $100,000 | $100,000 |
| 2016 | $0 | $130,000 | $0 | $130,000 | $130,000 |
| 2015 | $0 | $130,000 | $0 | $130,000 | $130,000 |
| 2014 | $0 | $135,000 | $0 | $135,000 | $135,000 |
| 2013 | $0 | $136,500 | $0 | $136,500 | $136,500 |
| 2012 | $0 | $136,500 | $0 | $136,500 | $136,500 |
| 2011 | $0 | $136,500 | $0 | $136,500 | $136,500 |
| 2010 | $0 | $136,500 | $0 | $136,500 | $136,500 |
| 2009 | $0 | $210,000 | $0 | $210,000 | $210,000 |
| 2008 | $0 | $178,480 | $0 | $178,480 | $178,480 |
| 2007 | $0 | $147,000 | $0 | $147,000 | $147,000 |
Deed and Sales History
| 1 | 03/22/2019 | EZ | Easement | LAFLEUR, ALAN | JORGENSON, RONALD D | | | $2,000.00 | 37971 | 4460967 |
| 2 | 11/09/2017 | WD | Warranty Deed | JOHNSON, NONA I | LAFLEUR, ALAN | | | $230,000.00 | 31869 | 4433852 |
Payout Agreement
| No payout information available.. |