Property
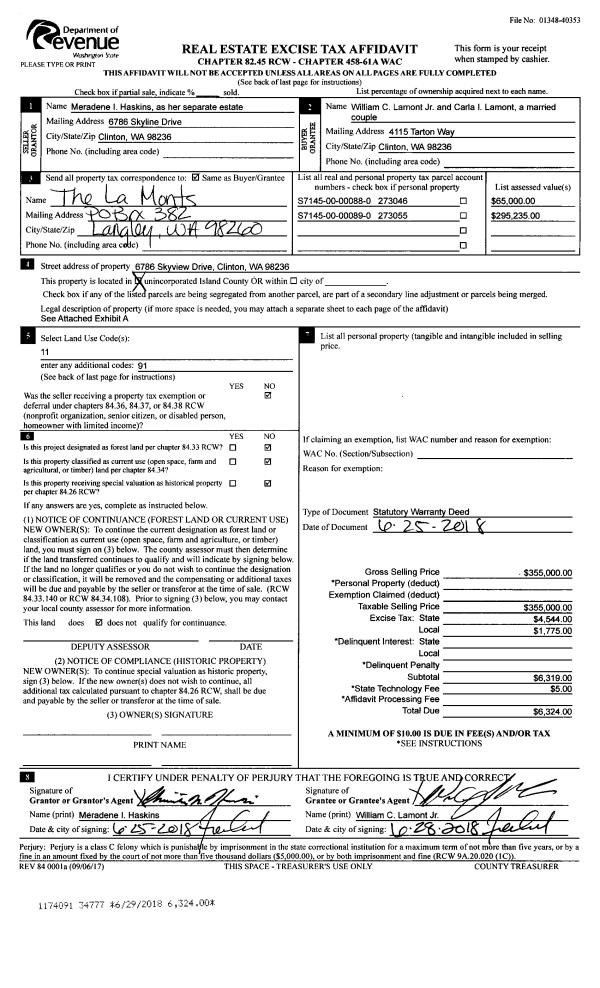
Account |
| Property ID: | 58902 | Abbreviated Legal Description: | 59 - E355.09' OF W649.55' OF GL2 EX S/2 GL 2 TGW EZ AF#96012795 |
| Geographic ID: | R23004-227-1810 | Agent Code: | |
| Type: | Real | | |
| Tax Area: | 312 - APPRAISER-Cpvl Schl Dist, outside Cpvl, improved, greater than 1 acre | Land Use Code | 11 |
| Open Space: | N | DFL | N |
| Historic Property: | N | Remodel Property: | N |
| Multi-Family Redevelopment: | N | | |
| Township: | 30 | Section: | 04 |
| Range: | R2 |
Location |
| Address: | 2604 NORTH BLUFF RD GREENBANK, WA 98253 | Mapsco: | |
| Neighborhood: | Cycle 3 | Map ID: | 352 |
| Neighborhood CD: | 3 |
Owner |
| Name: | STRAWFIELD FARM, LLC | Owner ID: | 287696 |
| Mailing Address: | 2604 NORTH BLUFF RD GREENBANK, WA 98253 | % Ownership: | 100.0000000000% |
| | | Exemptions: | |
Taxes and Assessment Details
Values
| (+) Improvement Homesite Value: | + | $0 | |
| (+) Improvement Non-Homesite Value: | + | $783,816 | |
| (+) Land Homesite Value: | + | $0 | |
| (+) Land Non-Homesite Value: | + | $350,000 | |
| (+) Curr Use (HS): | + | $0 | $0 |
| (+) Curr Use (NHS): | + | $0 | $0 |
| | | -------------------------- | |
| (=) Market Value: | = | $1,133,816 | |
| (–) Productivity Loss: | – | $0 | |
| | | -------------------------- | |
| (=) Subtotal: | = | $1,133,816 | |
| (+) Senior Appraised Value: | + | $0 | |
| (+) Non-Senior Appraised Value: | + | $1,133,816 | |
| | | -------------------------- | |
| (=) Total Appraised Value: | = | $1,133,816 | |
| (–) Senior Exemption Loss: | – | $0 | |
| (–) Exemption Loss: | – | $0 | |
| | | -------------------------- | |
| (=) Taxable Value: | = | $1,133,816 | |
Taxing Jurisdiction
| Owner: | STRAWFIELD FARM, LLC | | |
| % Ownership: | 100.0000000000% | | |
| Total Value: | $1,133,816 | | |
| Tax Area: | 312 - APPRAISER-Cpvl Schl Dist, outside Cpvl, improved, greater than 1 acre |
| CF | Conservation Futures | 0.0316035091 | $1,133,816 | $1,133,816 | $35.83 | | |
| CEM2 | Cemetery #2 | 0.0095056933 | $1,133,816 | $1,133,816 | $10.78 | | |
| FIRE5 | Fire & Rescue Dist #5 C Whidbey GEN | 1.2008080668 | $1,133,816 | $1,133,816 | $1,361.50 | | |
| FIRE5BOND | Fire & Rescue Dist #5 C Whidbey BOND | 0.1400090713 | $1,133,816 | $1,133,816 | $158.74 | | |
| HOBOND | Hospital BOND | 0.1910887512 | $1,133,816 | $1,133,816 | $216.66 | | |
| HOGEN | Hospital GEN | 0.3902502903 | $1,133,816 | $1,133,816 | $442.47 | | |
| CE | County Current Expense | 0.3708482477 | $1,133,816 | $1,133,816 | $420.47 | | |
| CR | County Roads | 0.4584763726 | $1,133,816 | $1,133,816 | $519.83 | | |
| ISLANDEMS | Hospital GEN (EMS) | 0.5000000000 | $1,133,816 | $1,133,816 | $566.91 | | |
| LIB | Library Sno-Isle GEN | 0.3153421757 | $1,133,816 | $1,133,816 | $357.54 | | |
| LIBCAP | Library Sno-Isle BOND (Cap Fac Imp Area) | 0.0543427938 | $1,133,816 | $1,133,816 | $61.61 | | |
| POCOUP | Port of Coupeville GEN | 0.1093371703 | $1,133,816 | $1,133,816 | $123.97 | | |
| POCOUPIDD | Port of Coupeville IDD | 0.3409740022 | $1,133,816 | $1,133,816 | $386.60 | | |
| COUPSDTECH | School 204 CP (TECH) | 0.7545480007 | $1,133,816 | $1,133,816 | $855.52 | | |
| SCH204MO | School 204 Enrichment | 0.6716186034 | $1,133,816 | $1,133,816 | $761.49 | | |
| ST | State School | 1.3035497053 | $1,133,816 | $1,133,816 | $1,477.99 | | |
| ST2 | State School Part 2 | 0.8169543533 | $1,133,816 | $1,133,816 | $926.28 | | |
| | Total Tax Rate: | 7.6592568070 | | | | | |
| | | | | Taxes w/Current Exemptions: | $8,684.19 | | |
| | | | | Taxes w/o Exemptions: | $8,684.19 | | |
Improvement / Building
| Improvement #1: | RESIDENTIAL | State Code: | Y | 952.0 sqft | Value: | $200,036 |
| Bathrooms: | 0.75 | Bedrooms: | 2 | | Ceiling: | DRYWALL PAINTED | Exterior Wall/Cover: | STUCCO/STRAW | | Floor Covering: | TILE CERAMIC | Floor Structure: | SLAB ABOVE GRADE | | Foundation: | CONCRETE | Heating: | RADIANT FLOOR | | Interior Finish: | DRYWALL PAINT | Plumbing Fixture Cnt: | 4 | | Roof Slope: | 4" IN 12" | Roof Structure/Cover: | CJ ASPHALT |
|
| | Type | Description | Class CD | Sub Class CD | Year Built | Area |
| | BAS | BASE/MAIN FLOOR | 3 | 0 | 2007 | 952.0 |
| | OP4 | OPEN PORCH W/CEILING-ROOF | 3 | 0 | 2007 | 72.0 |
| Improvement #2: | RESIDENTIAL | State Code: | Y | 2392.0 sqft | Value: | $583,780 |
| Bathrooms: | 2 | Bedrooms: | 2 | | Ceiling: | DRYWALL PAINTED | Exterior Wall/Cover: | STUCCO/STRAW | | Floor Covering: | TILE CERAMIC | Floor Structure: | SLAB ABOVE GRADE | | Foundation: | CONCRETE | Heating: | RADIANT FLOOR | | Interior Finish: | PLASTER | Plumbing Fixture Cnt: | 9 | | Roof Slope: | 18" IN 12" | Roof Structure/Cover: | BEAM ASPHALT |
|
| | Type | Description | Class CD | Sub Class CD | Year Built | Area |
| | BAS | BASE/MAIN FLOOR | 4 | 0 | 1997 | 2392.0 |
| | OP4 | OPEN PORCH W/CEILING-ROOF | 4 | 0 | 1997 | 270.0 |
| | OP4 | OPEN PORCH W/CEILING-ROOF | 4 | 0 | 1997 | 160.0 |
| | UTY | STORAGE/UTILITY | 4 | 0 | 1997 | 396.0 |
| | UTY | STORAGE/UTILITY | 4 | 0 | 1997 | 1600.0 |
| | ATF | ATTIC FINISHED | 4 | 0 | 1997 | 480.0 |
Sketch
Property Image
Land
| 1 | 32 | AC (03.01-09.99) | 5.4900 | 0.00 | 0.00 | 0.00 | 1.00 | $350,000 | $0 |
Roll Value History
| 2026 | N/A | N/A | N/A | N/A | N/A |
| 2025 | $783,816 | $350,000 | $0 | $1,133,816 | $1,133,816 |
| 2024 | $793,475 | $340,000 | $0 | $1,133,475 | $1,133,475 |
| 2023 | $803,135 | $320,000 | $0 | $1,123,135 | $1,123,135 |
| 2022 | $735,483 | $260,000 | $0 | $995,483 | $995,483 |
| 2021 | $646,790 | $230,000 | $0 | $876,790 | $876,790 |
| 2020 | $631,756 | $180,000 | $0 | $811,756 | $811,756 |
| 2019 | $495,902 | $230,000 | $0 | $725,902 | $725,902 |
| 2018 | $497,276 | $170,000 | $0 | $667,276 | $667,276 |
| 2017 | $477,893 | $160,000 | $0 | $637,893 | $637,893 |
| 2016 | $483,119 | $165,000 | $0 | $648,119 | $648,119 |
| 2015 | $488,346 | $130,000 | $0 | $618,346 | $618,346 |
| 2014 | $559,806 | $125,000 | $0 | $684,806 | $684,806 |
| 2013 | $565,432 | $133,407 | $0 | $698,839 | $698,839 |
| 2012 | $571,059 | $133,407 | $0 | $704,466 | $704,466 |
| 2011 | $576,688 | $148,230 | $0 | $724,918 | $724,918 |
| 2010 | $594,890 | $148,230 | $0 | $743,120 | $743,120 |
| 2009 | $617,218 | $214,110 | $0 | $831,328 | $831,328 |
| 2008 | $591,728 | $186,862 | $0 | $778,590 | $778,590 |
| 2007 | $403,617 | $170,190 | $0 | $573,807 | $573,807 |
Deed and Sales History
| 1 | 10/24/2018 | BARGSLD | Bargain And Sale Deed | KNOX TRUSTEE, JOHN H | STRAWFIELD FARM, LLC | | | $0.00 | 36463 | 4454179 |
| 2 | 08/02/2006 | WD | Warranty Deed | KETCHUM, DAVID C | KNOX TRUSTEE, JOHN H | | | $615,000.00 | 63759 | 4180532 |
| 3 | 08/01/1996 | WD | Warranty Deed | ESTES, JOHN C | KETCHUM, DAVID C | | | $53,000.00 | 63111 | 96015244 |
| 4 | 03/01/1981 | REC | Real Estate Contract | FRENCH, NEIL | ESTES, JOHN C | | | $21,000.00 | 10866 | 381011 |
| 5 | 01/01/1900 | OTHER | Other - Misc. Documents | Unknown | FRENCH, NEIL | | | $0.00 | 0 | 0 |
Payout Agreement
| No payout information available.. |