Property
Account |
| Property ID: | 58957 | Abbreviated Legal Description: | 3 - N/2 SW NW |
| Geographic ID: | R23004-363-0650 | Agent Code: | |
| Type: | Real | | |
| Tax Area: | 319 - APPRAISER-Cpvl Schl Dist, outside Cpvl, vacant & 50 acres or less | Land Use Code | 88 |
| Open Space: | N | DFL | Y |
| Historic Property: | N | Remodel Property: | N |
| Multi-Family Redevelopment: | N | | |
| Township: | 30 | Section: | 04 |
| Range: | R2 |
Location |
| Address: | | Mapsco: | |
| Neighborhood: | Cycle 3 | Map ID: | 353 |
| Neighborhood CD: | 3 |
Owner |
| Name: | GRAHAM, LARRY S | Owner ID: | 300013 |
| Mailing Address: | KAREN M GRAHAM PO BOX 415 GREENBANK, WA 98253 | % Ownership: | 100.0000000000% |
| | | Exemptions: | |
Taxes and Assessment Details
Values
| (+) Improvement Homesite Value: | + | $0 | |
| (+) Improvement Non-Homesite Value: | + | $0 | |
| (+) Land Homesite Value: | + | $0 | |
| (+) Land Non-Homesite Value: | + | $0 | |
| (+) Curr Use (HS): | + | $0 | $0 |
| (+) Curr Use (NHS): | + | $370,000 | $3,479 |
| | | -------------------------- | |
| (=) Market Value: | = | $370,000 | |
| (–) Productivity Loss: | – | $366,521 | |
| | | -------------------------- | |
| (=) Subtotal: | = | $3,479 | |
| (+) Senior Appraised Value: | + | $0 | |
| (+) Non-Senior Appraised Value: | + | $3,479 | |
| | | -------------------------- | |
| (=) Total Appraised Value: | = | $3,479 | |
| (–) Senior Exemption Loss: | – | $0 | |
| (–) Exemption Loss: | – | $0 | |
| | | -------------------------- | |
| (=) Taxable Value: | = | $3,479 | |
Taxing Jurisdiction
| Owner: | GRAHAM, LARRY S | | |
| % Ownership: | 100.0000000000% | | |
| Total Value: | $370,000 | | |
| Tax Area: | 319 - APPRAISER-Cpvl Schl Dist, outside Cpvl, vacant & 50 acres or less |
| CF | Conservation Futures | 0.0316035091 | $3,479 | $3,479 | $0.11 | | |
| CEM2 | Cemetery #2 | 0.0095056933 | $3,479 | $3,479 | $0.03 | | |
| HOBOND | Hospital BOND | 0.1910887512 | $3,479 | $3,479 | $0.66 | | |
| HOGEN | Hospital GEN | 0.3902502903 | $3,479 | $3,479 | $1.36 | | |
| CE | County Current Expense | 0.3708482477 | $3,479 | $3,479 | $1.29 | | |
| CR | County Roads | 0.4584763726 | $3,479 | $3,479 | $1.60 | | |
| ISLANDEMS | Hospital GEN (EMS) | 0.5000000000 | $3,479 | $3,479 | $1.74 | | |
| LIB | Library Sno-Isle GEN | 0.3153421757 | $3,479 | $3,479 | $1.10 | | |
| LIBCAP | Library Sno-Isle BOND (Cap Fac Imp Area) | 0.0543427938 | $3,479 | $3,479 | $0.19 | | |
| POCOUP | Port of Coupeville GEN | 0.1093371703 | $3,479 | $3,479 | $0.38 | | |
| POCOUPIDD | Port of Coupeville IDD | 0.3409740022 | $3,479 | $3,479 | $1.19 | | |
| COUPSDTECH | School 204 CP (TECH) | 0.7545480007 | $3,479 | $3,479 | $2.63 | | |
| SCH204MO | School 204 Enrichment | 0.6716186034 | $3,479 | $3,479 | $2.34 | | |
| ST | State School | 1.3035497053 | $3,479 | $3,479 | $4.54 | | |
| ST2 | State School Part 2 | 0.8169543533 | $3,479 | $3,479 | $2.84 | | |
| | Total Tax Rate: | 6.3184396689 | | | | | |
| | | | | Taxes w/Current Exemptions: | $22.00 | | |
| | | | | Taxes w/o Exemptions: | $22.00 | | |
Improvement / Building
Sketch
| No sketches available for this property. |
Property Image
Land
| 1 | 35 | AC (10.00-30.99) | 14.1200 | 615067.20 | 0.00 | 0.00 | 1.00 | $261,220 | $2,626 |
| 2 | 35 | AC (10.00-30.99) | 5.8800 | 256132.80 | 0.00 | 0.00 | 1.00 | $108,780 | $853 |
Roll Value History
| 2026 | N/A | N/A | N/A | N/A | N/A |
| 2025 | $0 | $370,000 | $3,479 | $3,479 | $3,479 |
| 2024 | $0 | $340,000 | $3,498 | $3,498 | $3,498 |
| 2023 | $0 | $300,000 | $3,350 | $3,350 | $3,350 |
| 2022 | $0 | $250,000 | $3,350 | $3,350 | $3,350 |
| 2021 | $0 | $250,000 | $3,350 | $3,350 | $3,350 |
| 2020 | $0 | $220,000 | $3,350 | $3,350 | $3,350 |
| 2019 | $0 | $210,000 | $3,237 | $3,237 | $3,237 |
| 2018 | $0 | $200,000 | $3,197 | $3,197 | $3,197 |
| 2017 | $0 | $200,000 | $3,197 | $3,197 | $3,197 |
| 2016 | $0 | $200,000 | $2,020 | $2,020 | $2,020 |
| 2015 | $0 | $200,000 | $2,020 | $2,020 | $2,020 |
| 2014 | $0 | $221,000 | $2,020 | $2,020 | $2,020 |
| 2013 | $0 | $221,000 | $2,020 | $2,020 | $2,020 |
| 2012 | $0 | $221,000 | $2,020 | $2,020 | $2,020 |
| 2011 | $0 | $260,000 | $2,020 | $2,020 | $2,020 |
| 2010 | $0 | $260,000 | $2,020 | $2,020 | $2,020 |
| 2009 | $0 | $400,000 | $2,020 | $2,020 | $2,020 |
| 2008 | $0 | $340,400 | $2,020 | $2,020 | $2,020 |
| 2007 | $0 | $280,000 | $2,020 | $2,020 | $2,020 |
Deed and Sales History
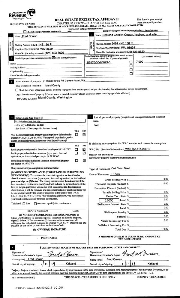
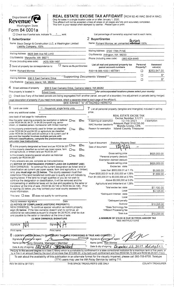
| 1 | 06/23/2021 | QCD | Quit Claim Deed | GRAHAM, LARRY | GRAHAM, LARRY S | | | $0.00 | 48936 | 4523175 |
| 2 | 06/22/2021 | WD | Warranty Deed | NUSSBAUM, ERIC | GRAHAM, LARRY | | | $850,000.00 | 48933 | 4523174 |
|   | |
Payout Agreement
| No payout information available.. |