Property
Account |
| Property ID: | 58975 | Abbreviated Legal Description: | 37 - S60'GL4 LY ELY OF SURF PARADISE#1 INCL ADJ TIDES & EZ 134D730 |
| Geographic ID: | R23004-396-2960 | Agent Code: | |
| Type: | Real | | |
| Tax Area: | 319 - APPRAISER-Cpvl Schl Dist, outside Cpvl, vacant & 50 acres or less | Land Use Code | 91 |
| Open Space: | N | DFL | N |
| Historic Property: | N | Remodel Property: | N |
| Multi-Family Redevelopment: | N | | |
| Township: | 30 | Section: | 04 |
| Range: | R2 |
Location |
| Address: | NORTH BLUFF RD GREENBANK, WA 98253 | Mapsco: | |
| Neighborhood: | Cycle 3 | Map ID: | 354 |
| Neighborhood CD: | 3 |
Owner |
| Name: | ABRAIBESH, AHMED A | Owner ID: | 279865 |
| Mailing Address: | 14522 NW LILIUM DR PORTLAND, OR 97229 | % Ownership: | 100.0000000000% |
| | | Exemptions: | |
Taxes and Assessment Details
Values
| (+) Improvement Homesite Value: | + | $0 | |
| (+) Improvement Non-Homesite Value: | + | $0 | |
| (+) Land Homesite Value: | + | $0 | |
| (+) Land Non-Homesite Value: | + | $9,600 | |
| (+) Curr Use (HS): | + | $0 | $0 |
| (+) Curr Use (NHS): | + | $0 | $0 |
| | | -------------------------- | |
| (=) Market Value: | = | $9,600 | |
| (–) Productivity Loss: | – | $0 | |
| | | -------------------------- | |
| (=) Subtotal: | = | $9,600 | |
| (+) Senior Appraised Value: | + | $0 | |
| (+) Non-Senior Appraised Value: | + | $9,600 | |
| | | -------------------------- | |
| (=) Total Appraised Value: | = | $9,600 | |
| (–) Senior Exemption Loss: | – | $0 | |
| (–) Exemption Loss: | – | $0 | |
| | | -------------------------- | |
| (=) Taxable Value: | = | $9,600 | |
Taxing Jurisdiction
| Owner: | ABRAIBESH, AHMED A | | |
| % Ownership: | 100.0000000000% | | |
| Total Value: | $9,600 | | |
| Tax Area: | 319 - APPRAISER-Cpvl Schl Dist, outside Cpvl, vacant & 50 acres or less |
| CF | Conservation Futures | 0.0316035091 | $9,600 | $9,600 | $0.30 | | |
| CEM2 | Cemetery #2 | 0.0095056933 | $9,600 | $9,600 | $0.09 | | |
| HOBOND | Hospital BOND | 0.1910887512 | $9,600 | $9,600 | $1.83 | | |
| HOGEN | Hospital GEN | 0.3902502903 | $9,600 | $9,600 | $3.75 | | |
| CE | County Current Expense | 0.3708482477 | $9,600 | $9,600 | $3.56 | | |
| CR | County Roads | 0.4584763726 | $9,600 | $9,600 | $4.40 | | |
| ISLANDEMS | Hospital GEN (EMS) | 0.5000000000 | $9,600 | $9,600 | $4.80 | | |
| LIB | Library Sno-Isle GEN | 0.3153421757 | $9,600 | $9,600 | $3.03 | | |
| LIBCAP | Library Sno-Isle BOND (Cap Fac Imp Area) | 0.0543427938 | $9,600 | $9,600 | $0.52 | | |
| POCOUP | Port of Coupeville GEN | 0.1093371703 | $9,600 | $9,600 | $1.05 | | |
| POCOUPIDD | Port of Coupeville IDD | 0.3409740022 | $9,600 | $9,600 | $3.27 | | |
| COUPSDTECH | School 204 CP (TECH) | 0.7545480007 | $9,600 | $9,600 | $7.24 | | |
| SCH204MO | School 204 Enrichment | 0.6716186034 | $9,600 | $9,600 | $6.45 | | |
| ST | State School | 1.3035497053 | $9,600 | $9,600 | $12.51 | | |
| ST2 | State School Part 2 | 0.8169543533 | $9,600 | $9,600 | $7.84 | | |
| | Total Tax Rate: | 6.3184396689 | | | | | |
| | | | | Taxes w/Current Exemptions: | $60.64 | | |
| | | | | Taxes w/o Exemptions: | $60.64 | | |
Improvement / Building
Sketch
| No sketches available for this property. |
Property Image
Land
| 1 | HB | HIGH BLUFF | 0.3000 | 13068.00 | 60.00 | 0.00 | 1.00 | $9,000 | $0 |
| 2 | 55 | TIDES | 0.0000 | 0.00 | 60.00 | 0.00 | 1.00 | $600 | $0 |
Roll Value History
| 2026 | N/A | N/A | N/A | N/A | N/A |
| 2025 | $0 | $9,600 | $0 | $9,600 | $9,600 |
| 2024 | $0 | $9,600 | $0 | $9,600 | $9,600 |
| 2023 | $0 | $9,600 | $0 | $9,600 | $9,600 |
| 2022 | $0 | $9,600 | $0 | $9,600 | $9,600 |
| 2021 | $0 | $9,600 | $0 | $9,600 | $9,600 |
| 2020 | $0 | $9,600 | $0 | $9,600 | $9,600 |
| 2019 | $0 | $9,600 | $0 | $9,600 | $9,600 |
| 2018 | $0 | $3,530 | $0 | $3,530 | $3,530 |
| 2017 | $0 | $3,530 | $0 | $3,530 | $3,530 |
| 2016 | $0 | $3,530 | $0 | $3,530 | $3,530 |
| 2015 | $0 | $3,530 | $0 | $3,530 | $3,530 |
| 2014 | $0 | $3,530 | $0 | $3,530 | $3,530 |
| 2013 | $0 | $3,530 | $0 | $3,530 | $3,530 |
| 2012 | $0 | $3,530 | $0 | $3,530 | $3,530 |
| 2011 | $0 | $3,530 | $0 | $3,530 | $3,530 |
| 2010 | $0 | $3,530 | $0 | $3,530 | $3,530 |
| 2009 | $0 | $3,998 | $0 | $3,998 | $3,998 |
| 2008 | $0 | $4,351 | $0 | $4,351 | $4,351 |
| 2007 | $0 | $4,112 | $0 | $4,112 | $4,112 |
Deed and Sales History
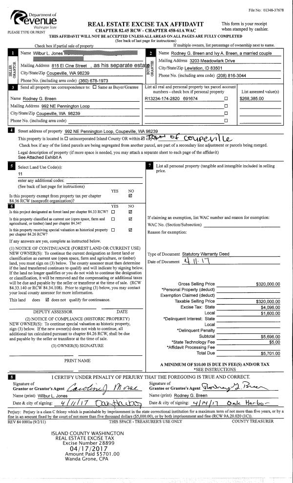
| 1 | 04/11/2017 | WD | Warranty Deed | ROSE TECHNICAL, LLC | ABRAIBESH, AHMED A | | | $22,542.00 | 29263 | 4422449 |
| 2 | 02/23/2007 | WD | Warranty Deed | UTHMANN, RICHARD W | ROSE TECHNICAL, LLC, | | | $5,107.00 | 70962 | 4198367 |
| 3 | 01/01/1900 | OTHER | Other - Misc. Documents | Unknown | UTHMANN, RICHARD W | | | $0.00 | 0 | 0 |
Payout Agreement
| No payout information available.. |